2200 Bank St.#
Last updated: 2021-12-15 · ID: D07-12-21-0182
Summary#
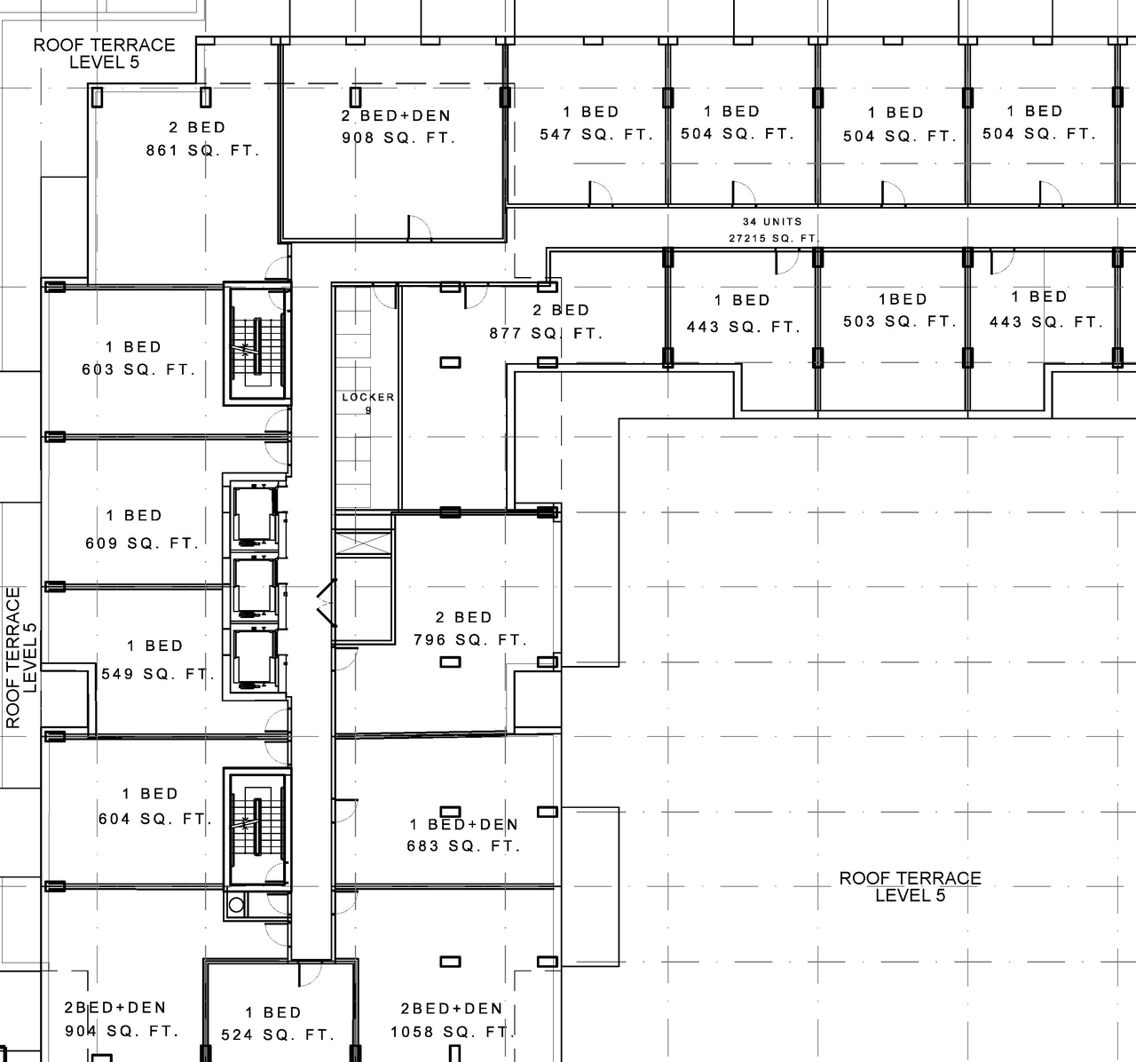
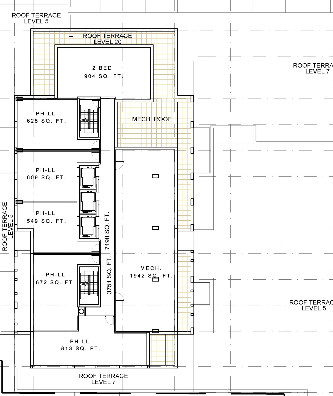
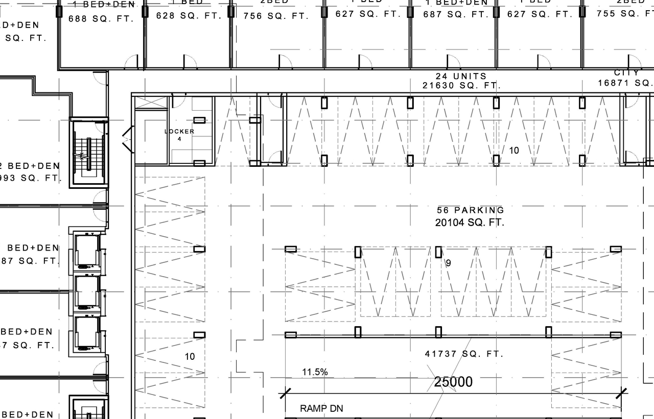
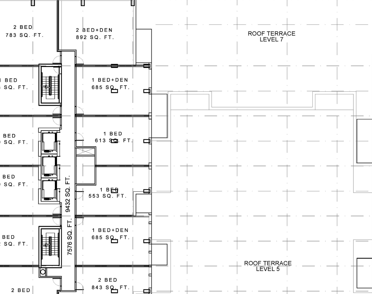
First phase of a multi-phase, mixed-use redevelopment. South Phase - Phase 1 (PH1) includes a single building with a 4-6 storey podium and two towers with a maximum building height of 21 storeys. Land uses will be commercial (at-grade) and high-rise residential (rental units ranging from one to three bedroom dwellings). The proposal consists of a total of 446 dwelling units, 314 parking stalls, 454 bicycle stalls, 1 loading stall, and approximately 466.3 m2 of commercial gross floor area.
Status
File Pending (Application File Pending)
Building Scale (Max.)
Based on elevation drawings. Values may be approximate. See sources for exact figures.
High-rise · 21 storeys
· 63.09 m
Renders#
Location#
Select a marker to view the address.
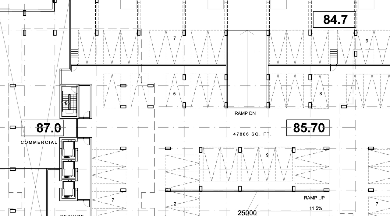
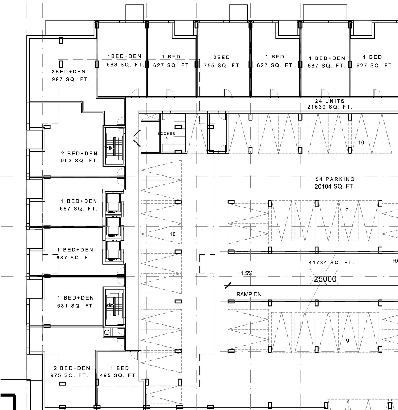
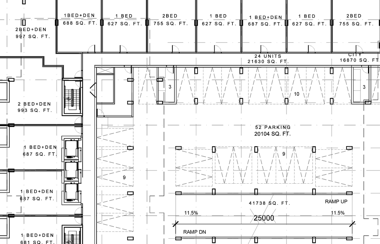
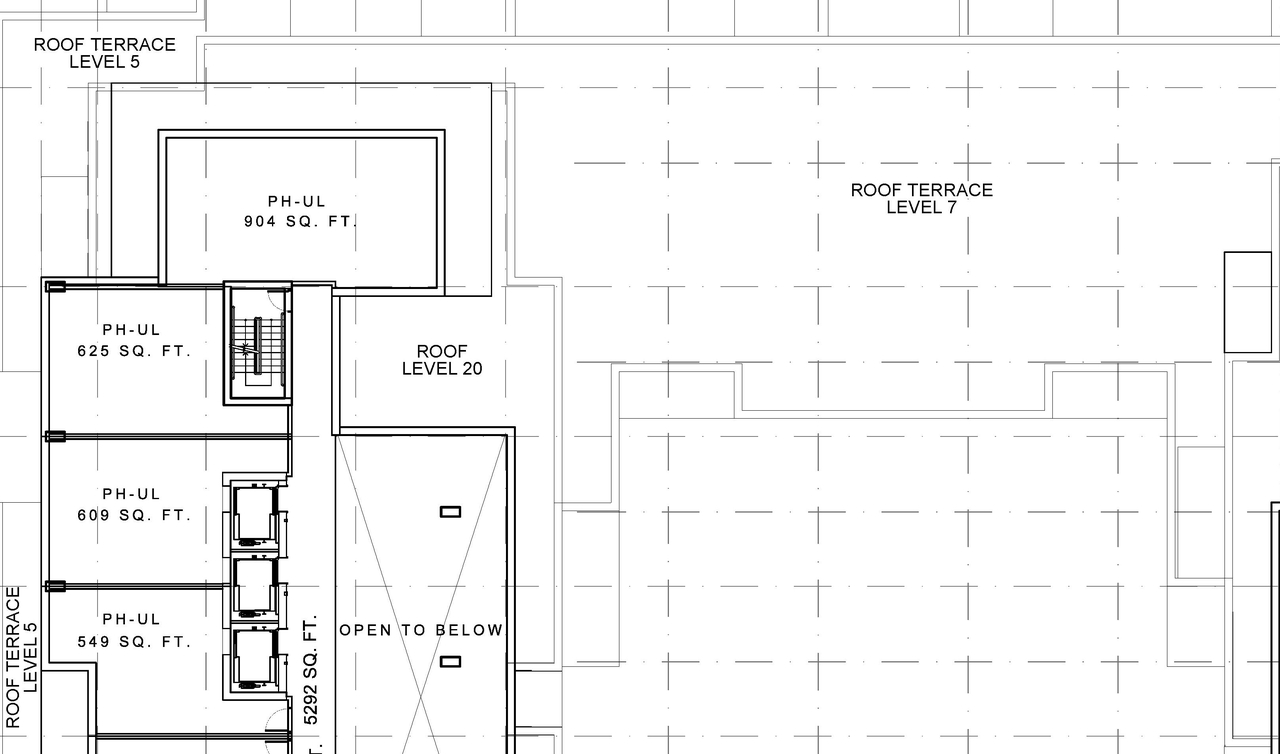
Site Plans, Elevations and Floor Plans#
Additional Information#
| Date Initiated | 2021-10-29 |
| Ward | Ward 10 - Jessica Bradley |



















