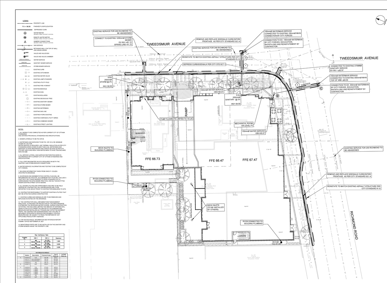
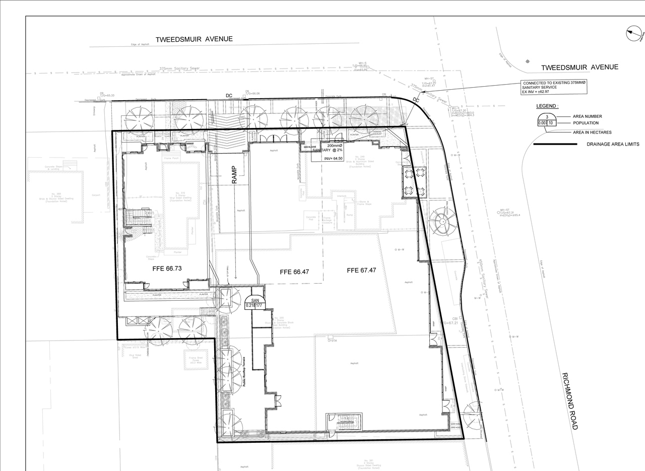
249-255 Richmond Rd./372 Tweedsmuir Ave.#
Last updated: 2026-03-03 · ID: D07-12-21-0179
Summary#
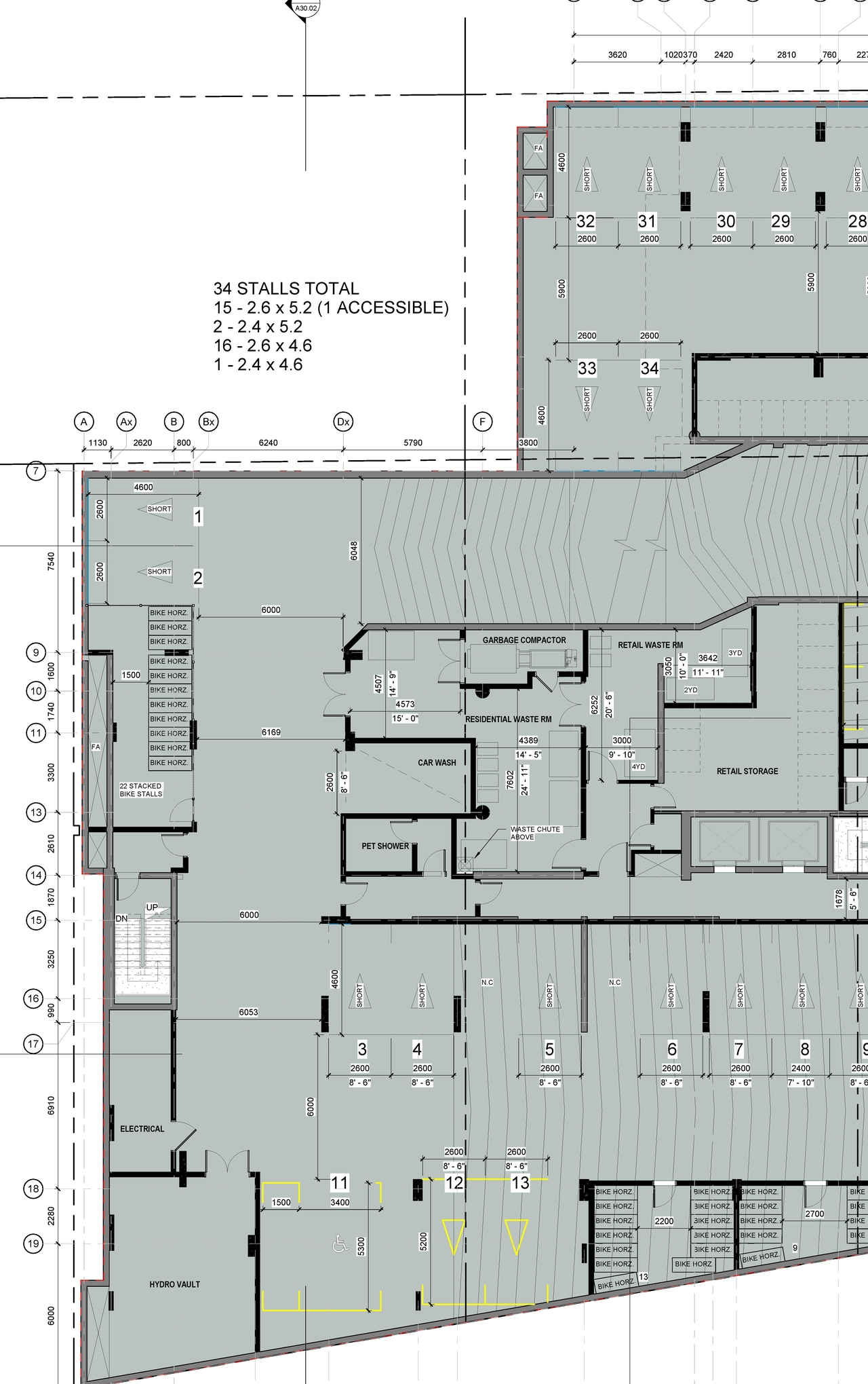
The City of Ottawa has received a Zoning By-law Amendment and Site Plan Control application to permit the development of a nine-storey, 87-dwelling unit, mixed-use building containing at-grade commercial and underground parking.
Status
Active (Initial Circulation Period Completed)
Building Scale (Max.)
Based on elevation drawings. Values may be approximate. See sources for exact figures.
High-rise · 10 storeys
· 30.6 m
Data Quality Note
Height was partially estimated using visual scale. This may be approximate.
Renders#
Location#
Select a marker to view the address.
Site Plans, Elevations and Floor Plans#
Additional Information#
| Date Initiated | 2021-10-27 |
| Ward | Ward 15 - Jeff Leiper |
| All Addresses | 249 Richmond Rd. 255 Richmond Rd. 372 Tweedsmuir Ave. |
















