1740-1760 St-Laurent Blvd.#
Last updated: 2022-02-10 ยท ID: D07-12-21-0177
Summary#
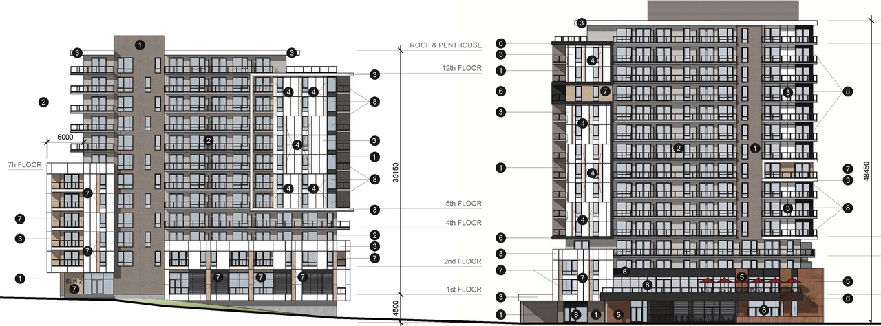
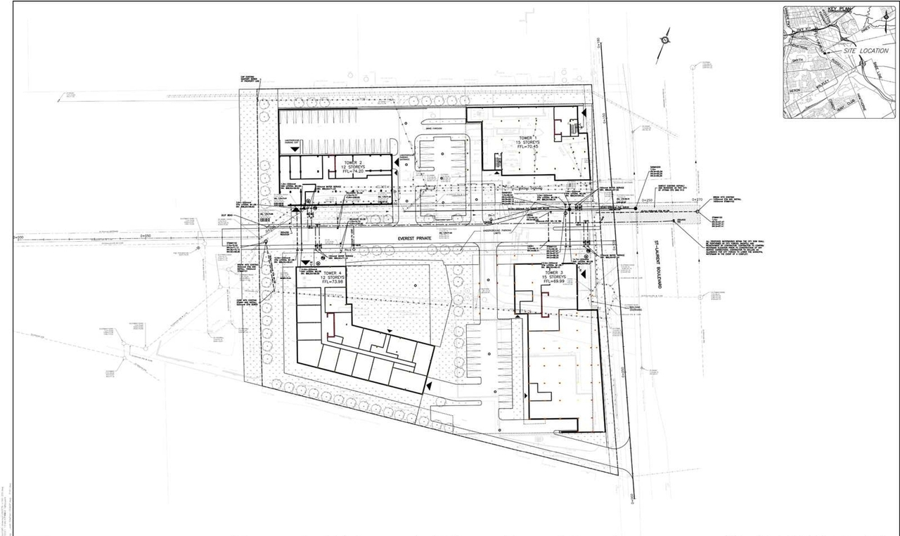
Four (4) buildings, two mixed use towers at 15-storeys and two residential towers at 12-storeys
Status
File Pending (Application File Pending)
Renders#
Location#
Select a marker to view the address.
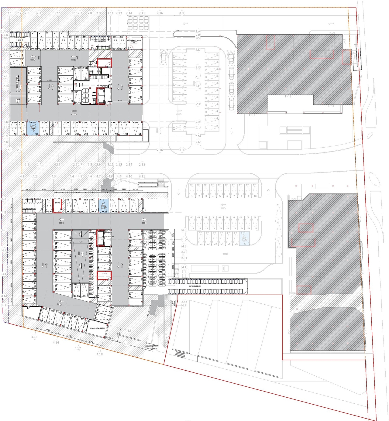
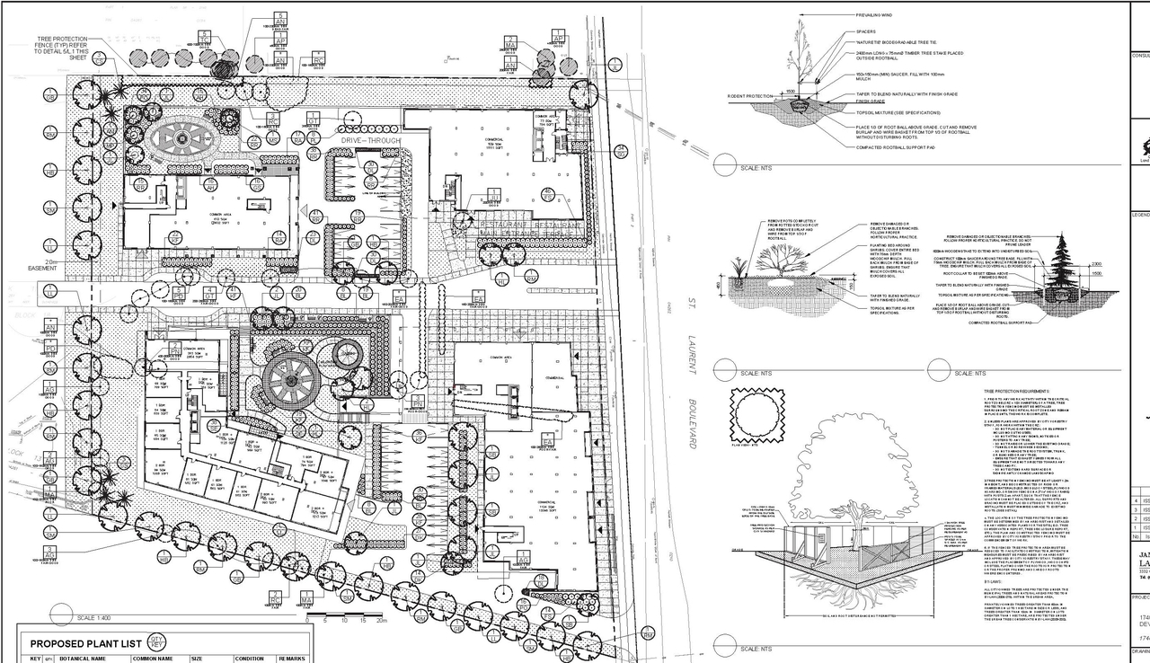
Site Plans, Elevations and Floor Plans#
Additional Information#
| Date Initiated | 2021-10-27 |
| Ward | Ward 18 - Marty Carr |
| All Addresses | 1740 St-Laurent Blvd. 1754 St-Laurent Blvd. 1760 St-Laurent Blvd. |














































































































