2262 Braeside Ave.#
Summary#
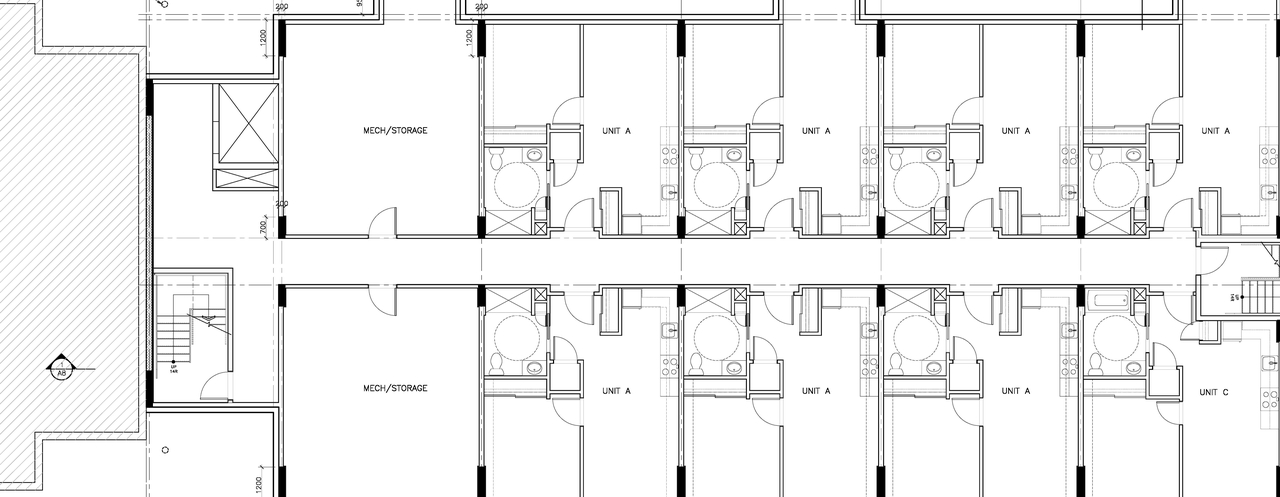
The existing rectory building is proposed to be demolished. A new 3.5-storey addition is proposed to the existing Ellwood House retirement home, and will consist of 38 retirement dwelling units. Parking is proposed to be redistributed and shared across the campus, containing St. Thomas the Apostle Church and Braeside House, and will be facilitated through a Minor Zoning By-law Amendment application to permit “one lot for zoning purposes.”
Status
Post Approval (Receipt of Agreement from Owner Pending)
Building Scale (Max.)
Based on elevation drawings. Values may be approximate. See sources for exact figures.
Mid-rise · 4 storeys
Data Quality Note
Text was extracted using optical character recognition. This may introduce artifacts or misreads.
Location#
Site Plans, Elevations and Floor Plans#
Additional Information#
| Date Initiated | 2021-10-26 |
| Ward | Ward 18 - Marty Carr |


