Ottawa Development Projects

330 McLeod St.#

Last updated: 2024-07-03 · ID: D07-12-21-0172

Summary#

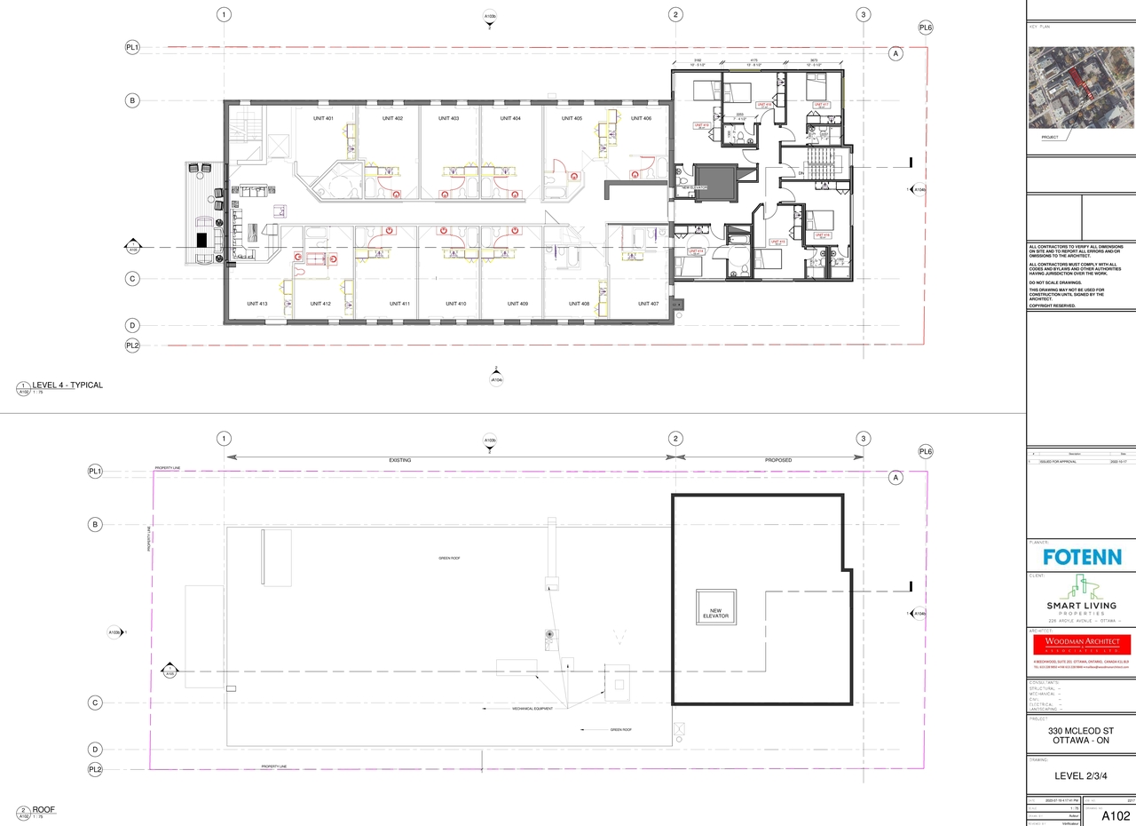
The development proposes to maintain the existing, 48-unit rooming house and construct a four-and-a-half storey rear addition.

Status
Post Approval (Receipt of Agreement from Owner Pending)

Building Scale (Max.) Based on elevation drawings. Values may be approximate. See sources for exact figures.
Mid-rise · 4 storeys · 18.25 m

Renders#

Location#

Select a marker to view the address.

Site Plans, Elevations and Floor Plans#

Additional Information#

Date Initiated2021-10-26
WardWard 14 - Ariel Troster

Documents#

TypeDocument
Application Summary2021-11-25 - Application Summary - D07-12-21-0172
Architectural Plans2024-03-12 - Approved Site Plan - D07-12-21-0172
Architectural Plans2024-03-12 - Approved Elevations - D07-12-21-0172
Architectural Plans2023-10-12 - Site Plan - D07-12-21-0172
Architectural Plans2022-12-30 - Site Plan - D07-12-21-0172
Architectural Plans2022-12-30 - Elevation and Plan Set - D07-12-21-0172
Architectural Plans2022-08-10 - Basement & Main Level Plan - D07-12-21-0172
Architectural Plans2022-06-28 - Site Plan (2) - D07-12-21-0172
Architectural Plans2022-06-28 - Site Plan - D07-12-21-0172
Architectural Plans2022-06-28 - Architectural Package (2) - D07-12-21-0172
Architectural Plans2022-06-28 - Architectural Package - D07-12-21-0172
Architectural Plans2021-11-18 - Architectural Plans - D07-12-21-0172
Architectural Plans2021-10-26 - Pre Development Service Plan - D07-12-21-0172
Architectural Plans2021-10-26 - Post Development Service Plan - D07-12-21-0172
Architectural Plans2021-10-26 - Engineering Plans - D07-12-21-0172
Civil Engineering Report2022-08-10 - Civil Plans - D07-12-21-0172
Environmental2022-06-28 - Phase Two Environmental Site Assessment - D07-12-21-0172
Environmental2022-06-28 - Phase II-Environmental Site Assessment - D07-12-21-0172
Environmental2022-06-28 - Phase I Environmental Site Assessment - D07-12-21-0172
Environmental2021-11-25 - Phase II Environmental Site Assessment - D07-12-21-0172
Environmental2021-10-26 - Phase 1 Environmental Site Assessment - D07-12-21-0172
Floor Plan2023-10-12 - Floor Plan Package - D07-12-21-0172
Geotechnical Report2024-03-12 - Approved Grading & Erosion Control Plan - D07-12-21-0172
Geotechnical Report2023-10-12 - Grading and Erosion Control Plan - D07-12-21-0172
Geotechnical Report2022-12-30 - Grading, Sediment and Erosion Control Plan - D07-12-21-0172
Geotechnical Report2022-08-10 - Grading & Sediment and Erosion Control Plan - D07-12-21-0172
Geotechnical Report2022-06-28 - Soil Remidiation Plan - D07-12-21-0172
Geotechnical Report2021-10-26 - Geotechnical - D07-12-21-0172
Landscape Plan2021-10-26 - Landscape - D07-12-21-0172
Noise Study2021-10-26 - Roadway Traffic Noise Assessment - D07-12-21-0172
Planning2022-12-30 - Planning Rationale Addendum - D07-12-21-0172
Planning2021-11-18 - Planning Rationale - D07-12-21-0172
Site Servicing2024-03-12 - Approved Servicing Plan - D07-12-21-0172
Site Servicing2023-10-12 - Servicing Plan - D07-12-21-0172
Site Servicing2022-12-30 - Servicing Report - D07-12-21-0172
Site Servicing2022-12-30 - Servicing plan - D07-12-21-0172
Site Servicing2022-08-10 - Servicing Report - D07-12-21-0172
Site Servicing2022-08-10 - Servicing Plan - D07-12-21-0172
Site Servicing2022-08-10 - Servicing & Stormwater Management Report - D07-12-21-0172
Site Servicing2021-10-26 - Servicing Plan - D07-12-21-0172
Site Servicing2021-10-26 - Servicing and Stormwater Management Report - D07-12-21-0172
Surveying2021-10-26 - Topographical - D07-12-21-0172
Transportation Analysis2022-12-30 - TDM Checklist - D07-12-21-0172
Transportation Analysis2022-08-10 - TDM Measures Checklist - D07-12-21-0172
Tree Information and Conservation2024-03-12 - Approved Tree Conservation Report & Landscape Plan - D07-12-21-0172
Tree Information and Conservation2023-10-12 - Tree Conservation Report & Landscape Plan - D07-12-21-0172
Tree Information and Conservation2022-12-30 - Tree Conservation Report & Landscape Plan - D07-12-21-0172
Tree Information and Conservation2022-08-10 - Tree Conservation Report & Landscape Plan (2) - D07-12-21-0172
Tree Information and Conservation2022-08-10 - Tree Conservation Report & Landscape Plan - D07-12-21-0172
2024-03-12 - Signed Delegated Authority Report - D07-12-21-0172