Ottawa Development Projects

233 Argyle Ave.#

Last updated: 2025-06-26 · ID: D07-12-21-0171

Summary#

The development proposes to maintain the existing heritage building and construct a three-storey rear addition.

Status
Post Approval (Receipt of Agreement from Owner Pending)

Building Scale (Max.) Based on elevation drawings. Values may be approximate. See sources for exact figures.
Low-rise · 3 storeys · 10.76 m

Renders#

Location#

Select a marker to view the address.

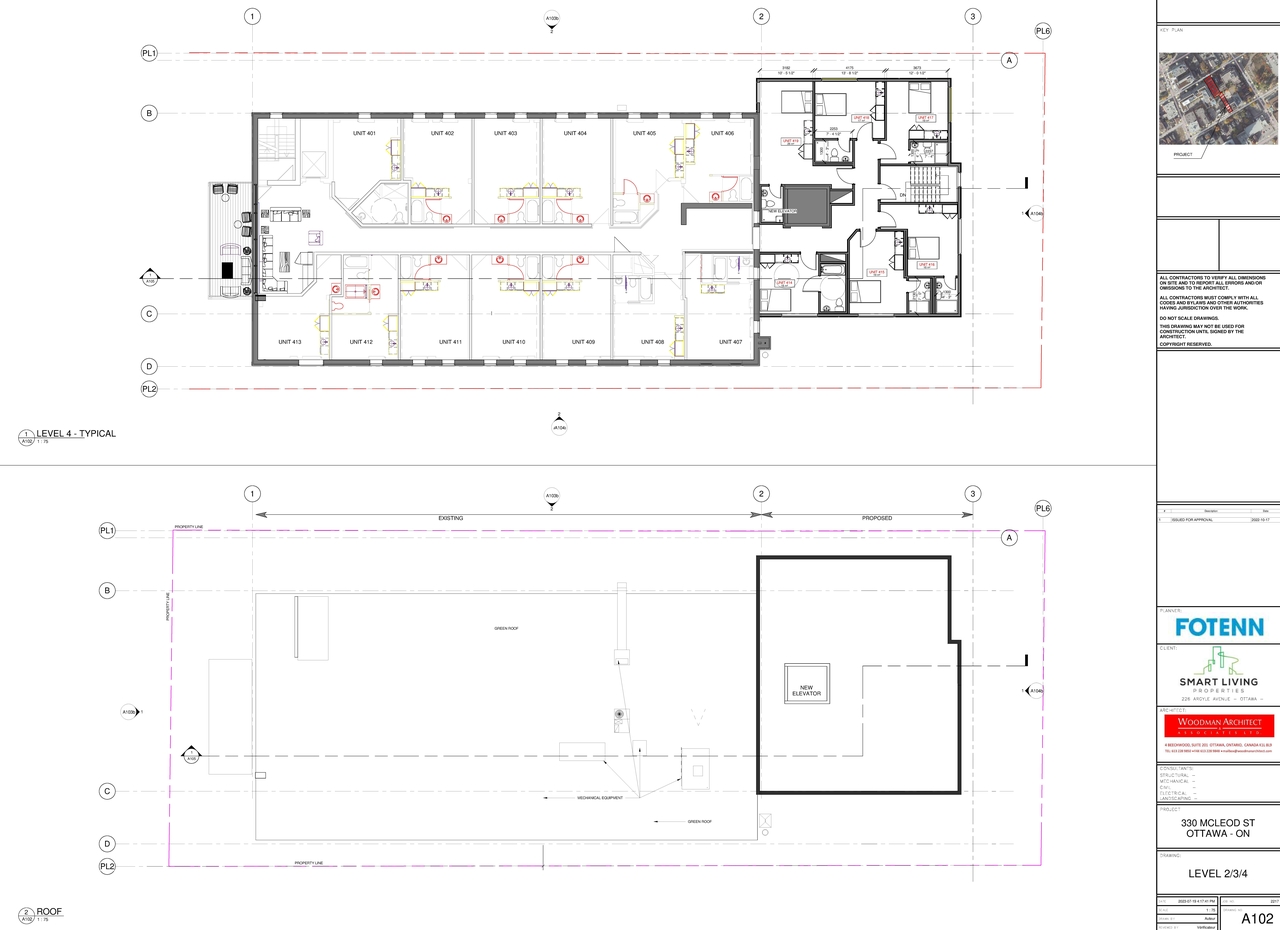
Site Plans, Elevations and Floor Plans#

Additional Information#

Date Initiated2021-10-26
WardWard 14 - Ariel Troster

Documents#

TypeDocument
Application Summary2021-11-25 - Application Summary - D07-12-21-0171
Architectural Plans2024-03-12 - Approved Site Plan - D07-12-21-0171
Architectural Plans2024-03-12 - Approved Elevations - D07-12-21-0171
Architectural Plans2023-10-12 - Site Plan - D07-12-21-0171
Architectural Plans2022-12-30 - Site Plan - D07-12-21-0171
Architectural Plans2022-12-30 - Elevation and Plan Set - D07-12-21-0171
Architectural Plans2022-08-10 - Basement Main Level Plan - D07-12-21-0171
Architectural Plans2022-06-28 - Site Plan (2) - D07-12-21-0171
Architectural Plans2022-06-28 - Site Plan - D07-12-21-0171
Architectural Plans2022-06-28 - Architectural Package (2) - D07-12-21-0171
Architectural Plans2022-06-28 - Architectural Package - D07-12-21-0171
Architectural Plans2021-11-18 - Architectural Plans - D07-12-21-0171
Architectural Plans2021-10-26 - Post Development Drainage Plan 2 - D07-12-21-0171
Architectural Plans2021-10-26 - Post Development Drainage Plan - D07-12-21-0171
Architectural Plans2021-10-26 - Engineering Plans - D07-12-21-0171
Civil Engineering Report2022-08-10 - Civil Plans - D07-12-21-0171
Environmental2022-06-28 - Phase Two Environmental Ste Assessment - D07-12-21-0171
Environmental2021-10-26 - Phase Two Environmental Site Assessment - D07-12-21-0171
Environmental2021-10-26 - Phase One Environmental Site Assessment - D07-12-21-0171
Floor Plan2023-10-12 - Floor Plan Package - D07-12-21-0171
Geotechnical Report2024-03-12 - Approved Grading & Erosion Control Plan - D07-12-21-0171
Geotechnical Report2023-10-12 - Grading and Erosion Control Plan - D07-12-21-0171
Geotechnical Report2022-12-30 - Grading, Drainage, Servicing and Sediment & Erosion Control Plan - D07-12-21-0171
Geotechnical Report2022-08-10 - Grading & Sediment and Erosion Control Plan - D07-12-21-0171
Geotechnical Report2022-06-28 - Soil Remidiation Plan - D07-12-21-0171
Geotechnical Report2021-10-26 - Geotechnical - D07-12-21-0171
Landscape Plan2021-10-26 - Landscape Plan - D07-12-21-0171
Noise Study2021-10-26 - Roadway Traffic Noise Assessment - D07-12-21-0171
Planning2023-01-04 - Planning Rationale Addendum - 233 Argyle Avenue FINAL - D07-12-21-0171
Planning2021-11-18 - Planning Rationale - D07-12-21-0171
Site Servicing2023-10-12 - Servicing Plan - D07-12-21-0171
Site Servicing2022-12-30 - Servicing Report - D07-12-21-0171
Site Servicing2022-08-10 - Servicing Report - D07-12-21-0171
Site Servicing2022-08-10 - Servicing Plan - D07-12-21-0171
Site Servicing2022-08-10 - Servicing & Stormwater Management Report - D07-12-21-0171
Site Servicing2021-10-26 - Servicing and Stormwater Management - D07-12-21-0171
Transportation Analysis2022-12-30 - TDM Checklist - D07-12-21-0171
Transportation Analysis2022-08-10 - TDM Measures Checklist - D07-12-21-0171
Tree Information and Conservation2024-03-12 - Approved Tree Conservation Report & Landscape Plan - D07-12-21-0171
Tree Information and Conservation2023-10-12 - Tree Conservation Report & Landscape Plan - D07-12-21-0171
Tree Information and Conservation2022-12-30 - Tree Conservation Report & Landscape Plan - D07-12-21-0171
Tree Information and Conservation2022-08-10 - Tree Conservation Report & Landscape Plan (2) - D07-12-21-0171
Tree Information and Conservation2022-08-10 - Tree Conservation Report & Landscape Plan - D07-12-21-0171
2024-03-12 - Signed Delegated Authority Report - D07-12-21-0171