Ottawa Development Projects

8605 Campeau Dr.#

Last updated: 2024-10-31 · ID: D07-12-21-0155

Summary#

Proposed gas station with associated convenience store and restaurant with drive-through.

Status
Post Approval (Signed Letter of Undertaking Received)

Building Scale (Max.) Based on elevation drawings. Values may be approximate. See sources for exact figures.
Low-rise · 1 storey · 6.3 m Data Quality Note Height was partially estimated using visual scale. This may be approximate.

Location#

Select a marker to view the address.

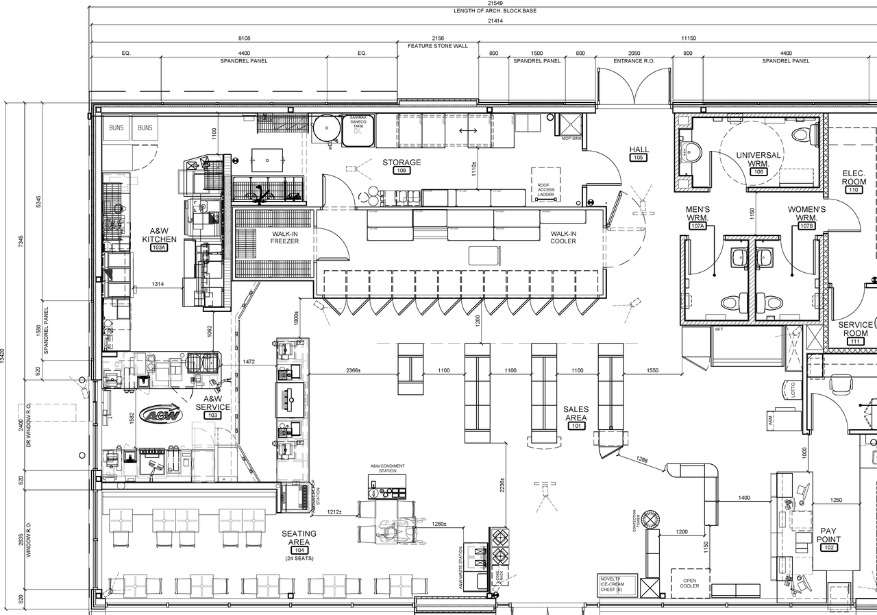
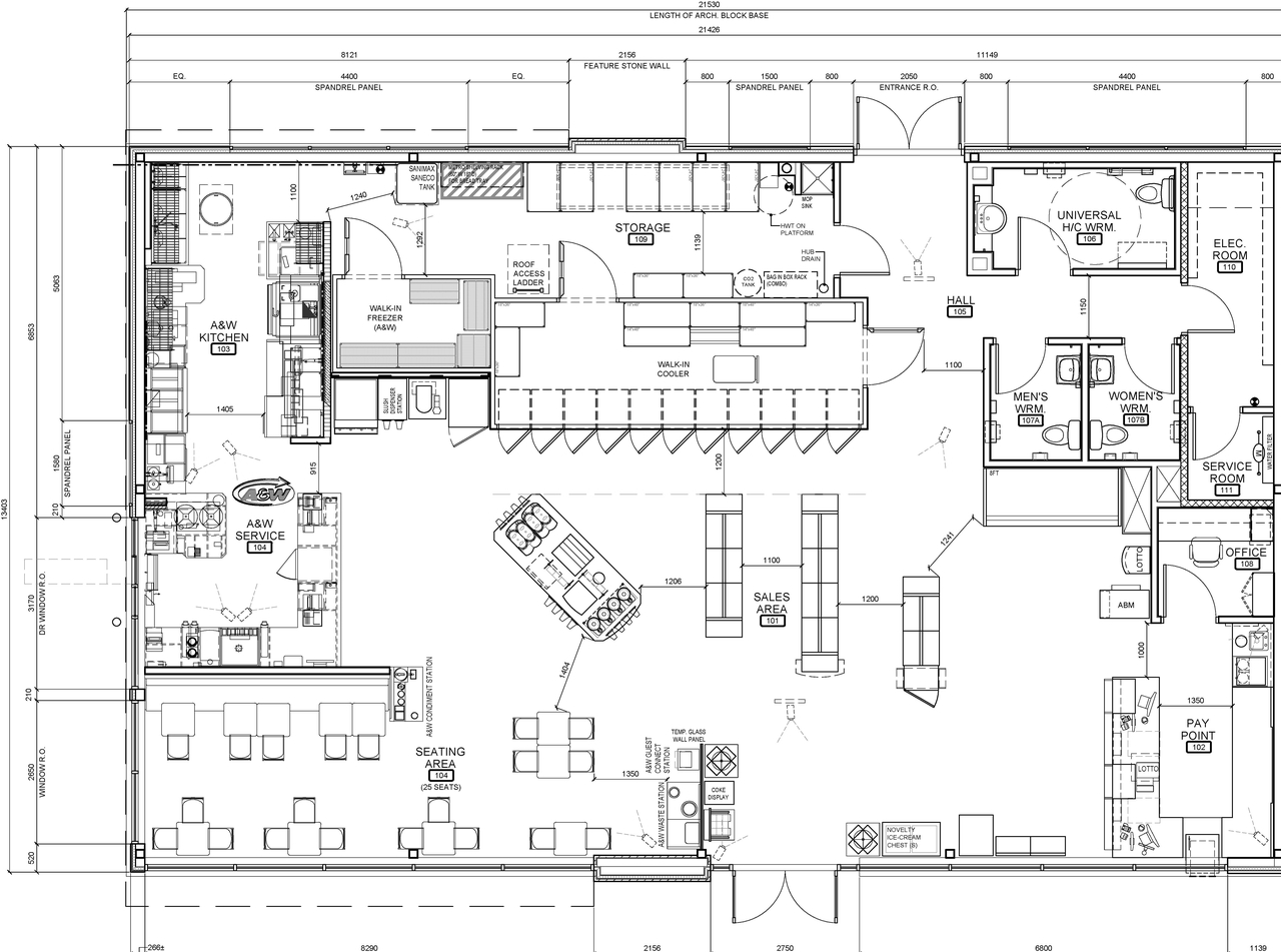
Site Plans, Elevations and Floor Plans#

Additional Information#

Date Initiated2021-10-01
WardWard 4 - Cathy Curry

Documents#

TypeDocument
Application Summary2021-11-30 - Application Summary - D07-12-21-0155
Architectural Plans2024-02-16 - Approved Utility Coordination Plan P306 - D07-12-21-0155
Architectural Plans2024-02-16 - Approved Site Plan SP1 - D07-12-21-0155
Architectural Plans2024-02-16 - Approved Pre-Post Drainage Plan P303 - D07-12-21-0155
Architectural Plans2024-02-16 - Approved Notes and Details P304 - D07-12-21-0155
Architectural Plans2024-02-16 - Approved Gas Bar Canopy Elevations - D07-12-21-0155
Architectural Plans2024-02-16 - Approved Car Wash Elevations - D07-12-21-0155
Architectural Plans2024-02-16 - Approved C-Store Elevations - D07-12-21-0155
Architectural Plans2023-11-27 - Approved Utility Coordination Plan - D07-12-21-0155
Architectural Plans2023-11-27 - Approved Site Plan - D07-12-21-0155
Architectural Plans2023-11-27 - Approved Pre-Post Drainage Plan - D07-12-21-0155
Architectural Plans2023-11-27 - Approved Notes and Details - D07-12-21-0155
Architectural Plans2023-11-27 - Approved Elevations - D07-12-21-0155
Architectural Plans2023-06-28 - Utility Coordination Plan - D07-12-21-0155
Architectural Plans2023-06-28 - Site Plan - D07-12-21-0155
Architectural Plans2023-06-28 - PRE-POST DRAINAGE PLAN - D07-12-21-0155
Architectural Plans2023-06-28 - Notes and Details - D07-12-21-0155
Architectural Plans2023-05-02 - Site Plan - D07-12-21-0155
Architectural Plans2023-05-02 - Site Layout Plan - D07-12-21-0155
Architectural Plans2023-05-02 - RL-7079-S1-R1 Plan - D07-12-21-0155
Architectural Plans2023-05-02 - Pre-Post Drainage Plan - D07-12-21-0155
Architectural Plans2023-05-02 - Notes and Details - D07-12-21-0155
Architectural Plans2023-05-02 - Exterior Elevations - D07-12-21-0155 (2)
Architectural Plans2023-05-02 - Exterior Elevations - D07-12-21-0155
Architectural Plans2023-05-02 - Elevations CANOPY - D07-12-21-0155
Architectural Plans2023-05-02 - 10565 SPA-WA01 CW PLAN
Architectural Plans2021-10-01 - Site Layout Plan - D07-12-21-0155
Architectural Plans2021-10-01 - Elevations - D07-12-21-0155
Electrical Plan2021-10-01 - Site Lighting Plan - D07-12-21-0155
Environmental2021-10-01 - Phase 1 Environmental Site Assessment Update - D07-12-21-0155
Erosion And Sediment Control Plan2024-02-16 - Approved Erosion and Sediment Control Plan P302 - D07-12-21-0155
Erosion And Sediment Control Plan2023-11-27 - Approved Erosion and Sediment Control Plan - D07-12-21-0155
Erosion And Sediment Control Plan2023-06-28 - EROSION AND SEDIMENT CONTROL PLAN - D07-12-21-0155
Erosion And Sediment Control Plan2023-05-02 - Erosion & Sediment Control Plan - D07-12-21-0155
Erosion And Sediment Control Plan2021-10-01 - Erosion and Sediment Control Plan - D07-12-21-0155
Floor Plan2023-05-02 - Floor Plan - D07-12-21-0155 (2)
Floor Plan2023-05-02 - Floor Plan - D07-12-21-0155
Floor Plan2021-10-01 - C-Store Floor Plan - D07-12-21-0155
Geotechnical Report2024-02-16 - Approved Landscape Plan Soil Volume Plan L4 - D07-12-21-0155
Geotechnical Report2024-02-16 - Approved Grading Plan - D07-12-21-0155
Geotechnical Report2023-11-27 - Approved Grading Plan - D07-12-21-0155
Geotechnical Report2023-06-28 - SOIL VOLUME PLAN - D07-12-21-0155
Geotechnical Report2023-06-28 - Grading Plan - D07-12-21-0155
Geotechnical Report2023-05-02 - SOIL VOLUME PLAN - D07-12-21-0155
Geotechnical Report2023-05-02 - Grading Plan - D07-12-21-0155
Geotechnical Report2021-10-01 - Grading Plan - D07-12-21-0155
Geotechnical Report2021-10-01 - Geotechnical Report - D07-12-21-0155
Landscape Plan2024-02-16 - Approved Landscape Plan L1 - D07-12-21-0155
Landscape Plan2024-02-16 - Approved Landscape Plan Details L3 - D07-12-21-0155
Landscape Plan2024-02-16 - Approved Landscape Plan Details L2 - D07-12-21-0155
Landscape Plan2023-11-27 - Approved Landscape Plans and Details L1-L4 - D07-12-21-0155
Landscape Plan2023-06-28 - LANDSCAPE PLAN - D07-12-21-0155
Landscape Plan2023-06-28 - LANDSCAPE DETAILS PLAN - D07-12-21-0155 (2)
Landscape Plan2023-06-28 - LANDSCAPE DETAILS PLAN - D07-12-21-0155
Landscape Plan2023-06-28 - LANDSCAPE COST ESTIMATE - D07-12-21-0155
Landscape Plan2023-05-02 - LANDSCAPE PLAN- DETAILS - D07-12-21-0155
Landscape Plan2023-05-02 - LANDSCAPE PLAN - D07-12-21-0155
Landscape Plan2023-05-02 - LANDSCAPE DETAILS PLAN - D07-12-21-0155
Landscape Plan2021-10-01 - Landscape Plan - D07-12-21-0155
Notification2024-02-28 - Commence Work Notification - D07-12-21-0155
Planning2023-09-19 - Planning Rationale & Design Brief - D07-12-21-0155
Planning2021-10-01 - Planning Rationale - D07-12-21-0155
Shadow Study2023-06-28 - Fire hydrant locations - D07-12-21-0155
Site Servicing2024-04-26 - Approved Servicing Plan - D07-12-21-0155
Site Servicing2024-02-26 - Servicing Plan - D07-12-21-0155
Site Servicing2023-11-27 - Approved Servicing Plan - D07-12-21-0155
Site Servicing2023-06-28 - Site Servicing Plan - D07-12-21-0155
Site Servicing2023-05-02 - Site Servicing Plan - D07-12-21-0155
Site Servicing2021-10-01 - Servicing Plan - D07-12-21-0155
Stormwater Management2024-02-16 - Approved Storm Sewer Reference Sheet P305 - D07-12-21-0155
Stormwater Management2023-11-27 - Approved Storm Sewer Reference Sheet - D07-12-21-0155
Stormwater Management2023-06-28 - STORMWATER MANAGEMENT REPORT - D07-12-21-0155
Stormwater Management2023-06-28 - Storm Design sheet - D07-12-21-0155
Stormwater Management2023-05-02 - Stormwater Management Report -D07-12-21-0155
Stormwater Management2023-05-02 - Storm Design Sheet -D07-12-21-0155
Stormwater Management2021-10-01 - Stormwater Management Report - D07-12-21-0155
Surveying2021-10-01 - Surveyors Report - D07-12-21-0155
Surveying2021-10-01 - Survey - D07-12-21-0155
Transportation Analysis2023-06-28 - Transportation Impact Assessment Addendum - D07-12-21-0155
Transportation Analysis2023-05-02 - Transportation Impact Assessment - D07-12-21-0155
Transportation Analysis2021-10-01 - Transportation Impact Assessment - D07-12-21-0155
Tree Information and Conservation2024-02-16 - Approved Tree Conservation Plan TC1 - D07-12-21-0155
Tree Information and Conservation2023-11-27 - Approved Tree Conservation Plan - D07-12-21-0155
Tree Information and Conservation2023-06-28 - TREE CONSERVATION PLAN - D07-12-21-0155
Tree Information and Conservation2023-05-02 - Tree Planting Recommedations Letter - D07-12-21-0155
Tree Information and Conservation2023-05-02 - TREE CONSERVATION PLAN - DO7-12-21-0155
2024-06-28 - Updated Signed Delegated Authority Report - D07-12-21-0155
2024-02-16 - Updated Signed Delegated Authority Report - D07-12-21-0155
2023-11-28 - Signed Delegated Authority Report - D07-12-21-0155
2023-06-28 - FUNCTIONAL SERVICING REPORT - D07-12-21-0155
2023-05-02 - Luminare Location Map - D07-12-21-0155
2023-05-02 - Luminare Full Design Package - D07-12-21-0155
2023-05-02 - Functional Service Report - D07-12-21-0155
2023-05-02 - Fixture Information - D07-12-21-0155
2021-10-01 - Functional Servicing Report - D07-12-21-0155