949 North River Rd.#
Last updated: 2023-08-15 · ID: D07-12-21-0150
Summary#
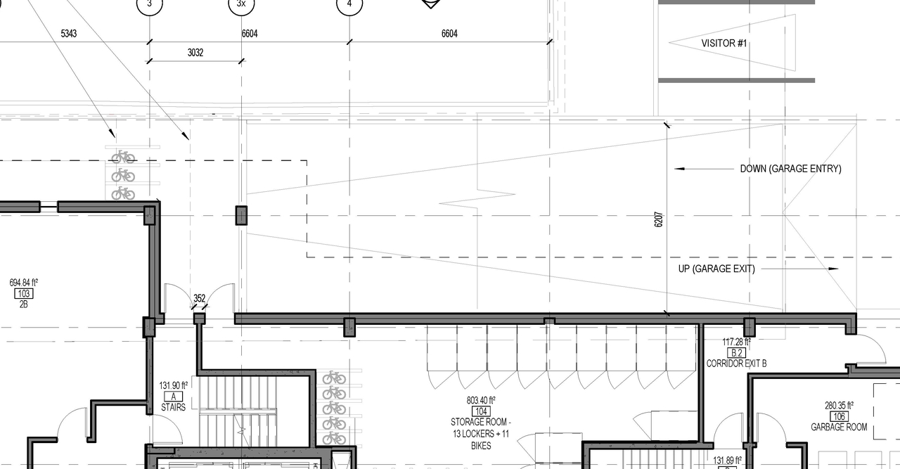
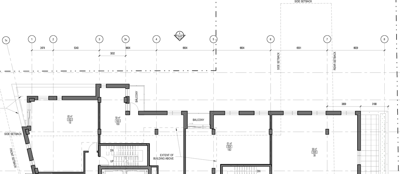
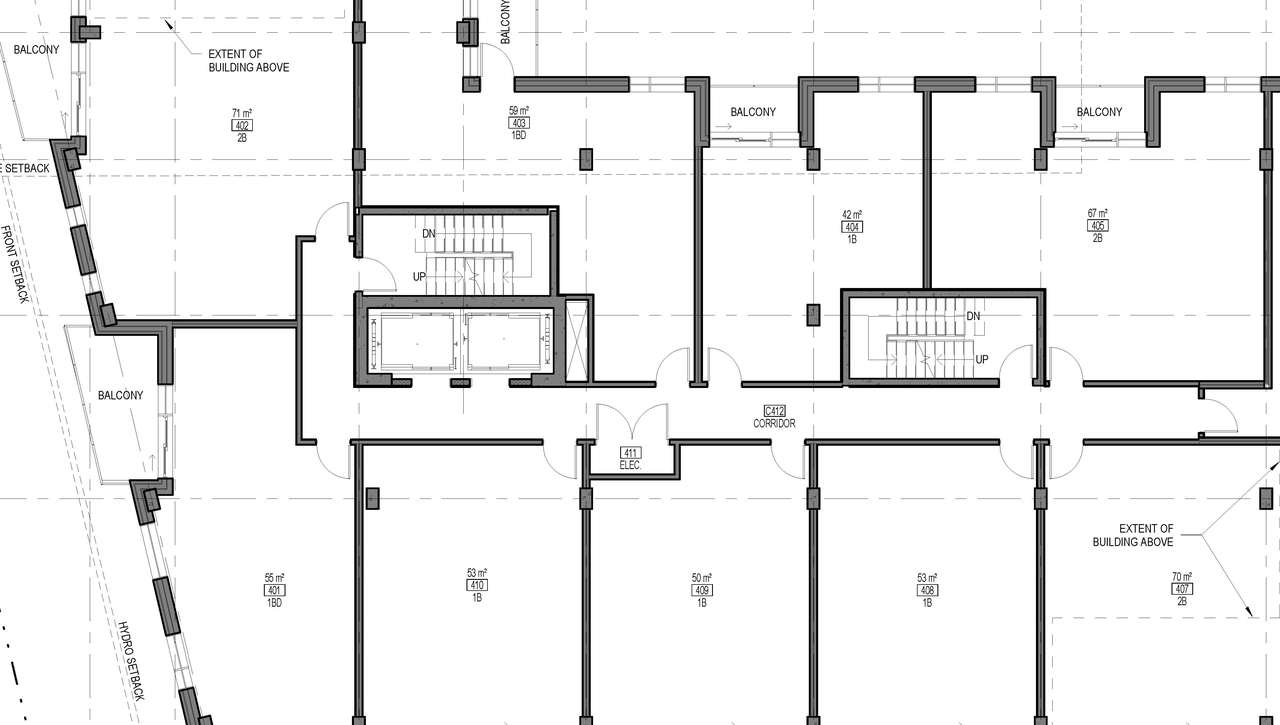
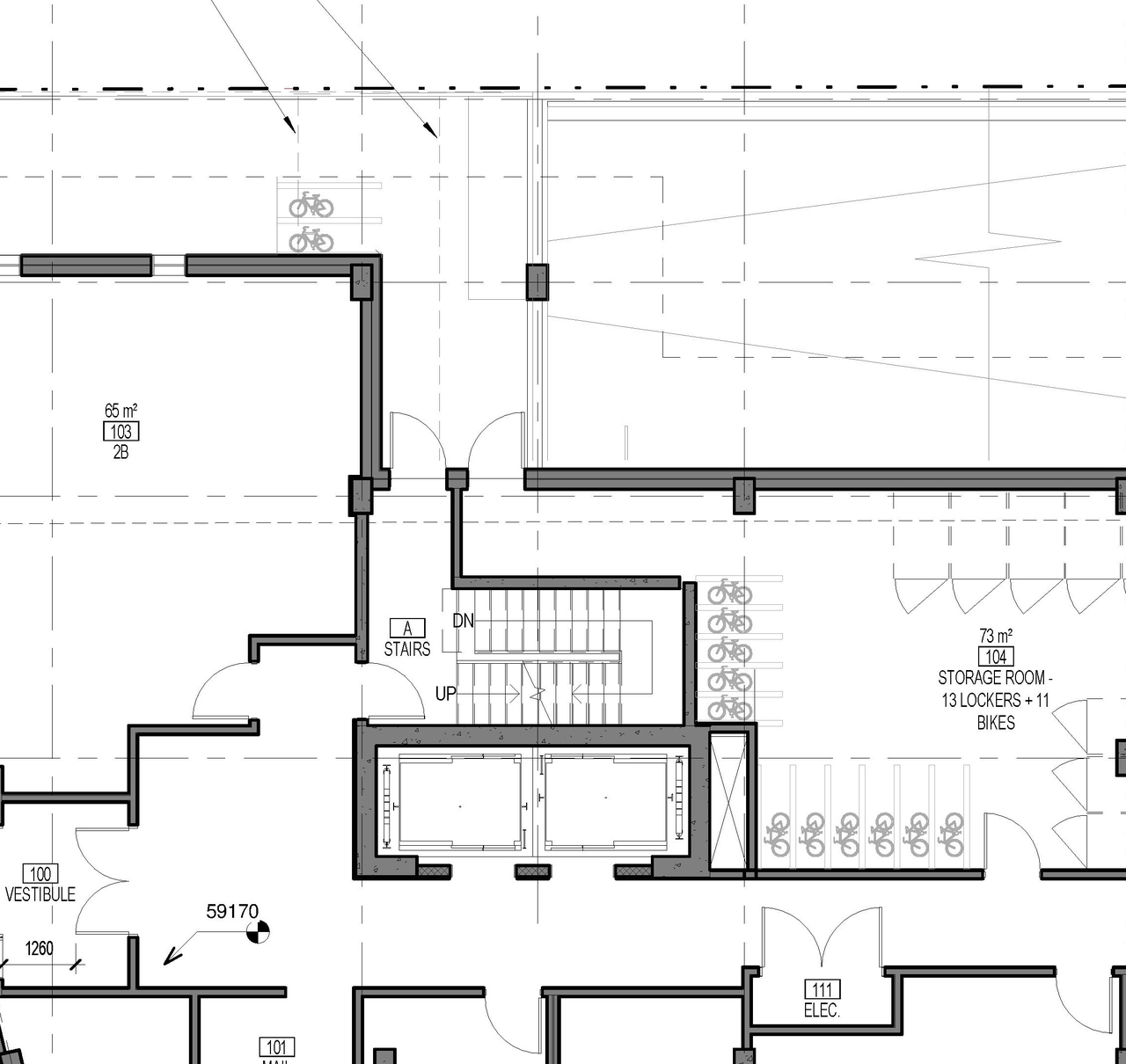
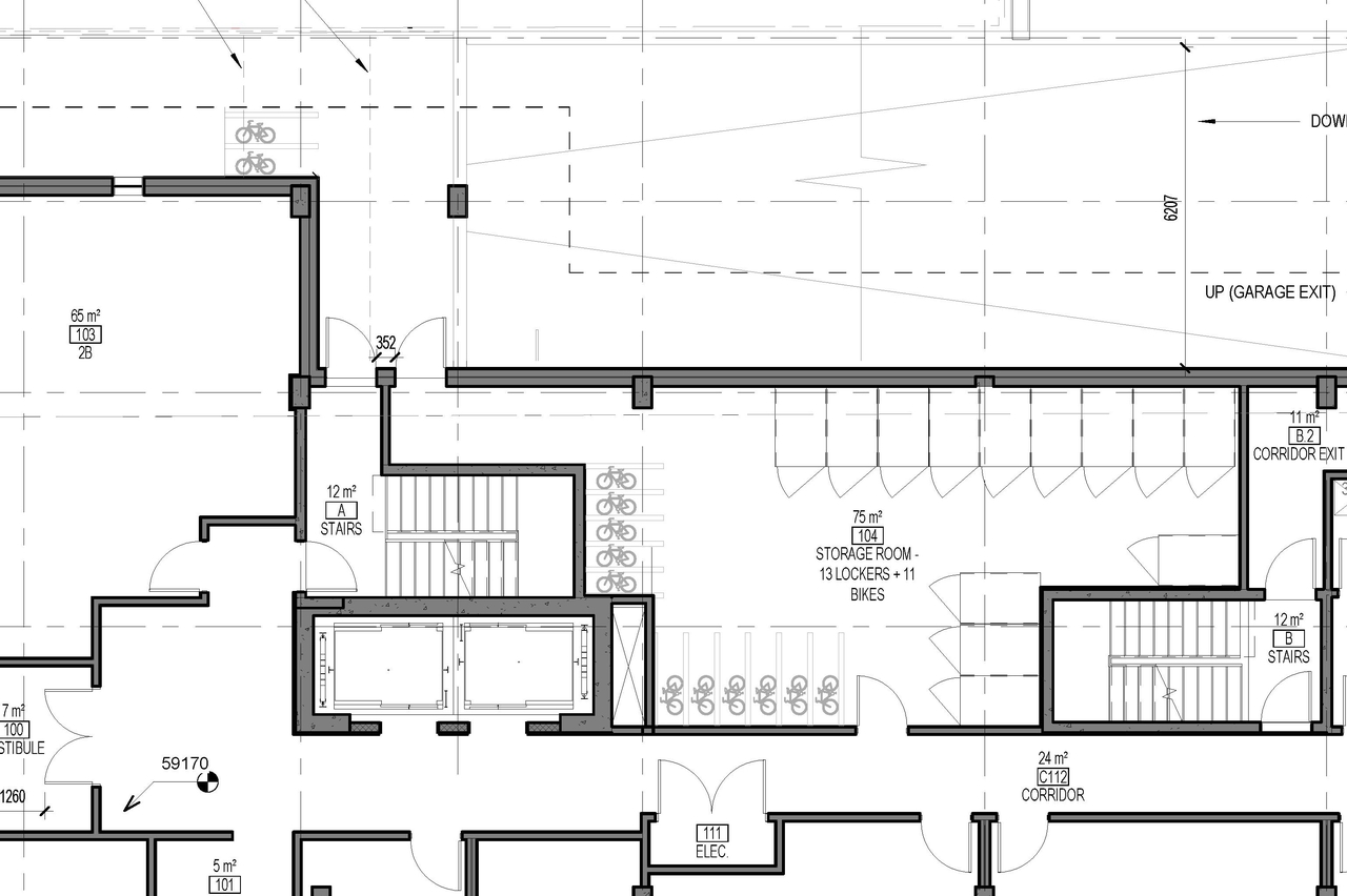
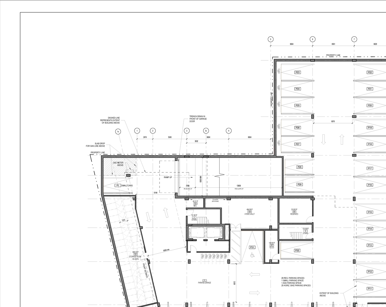
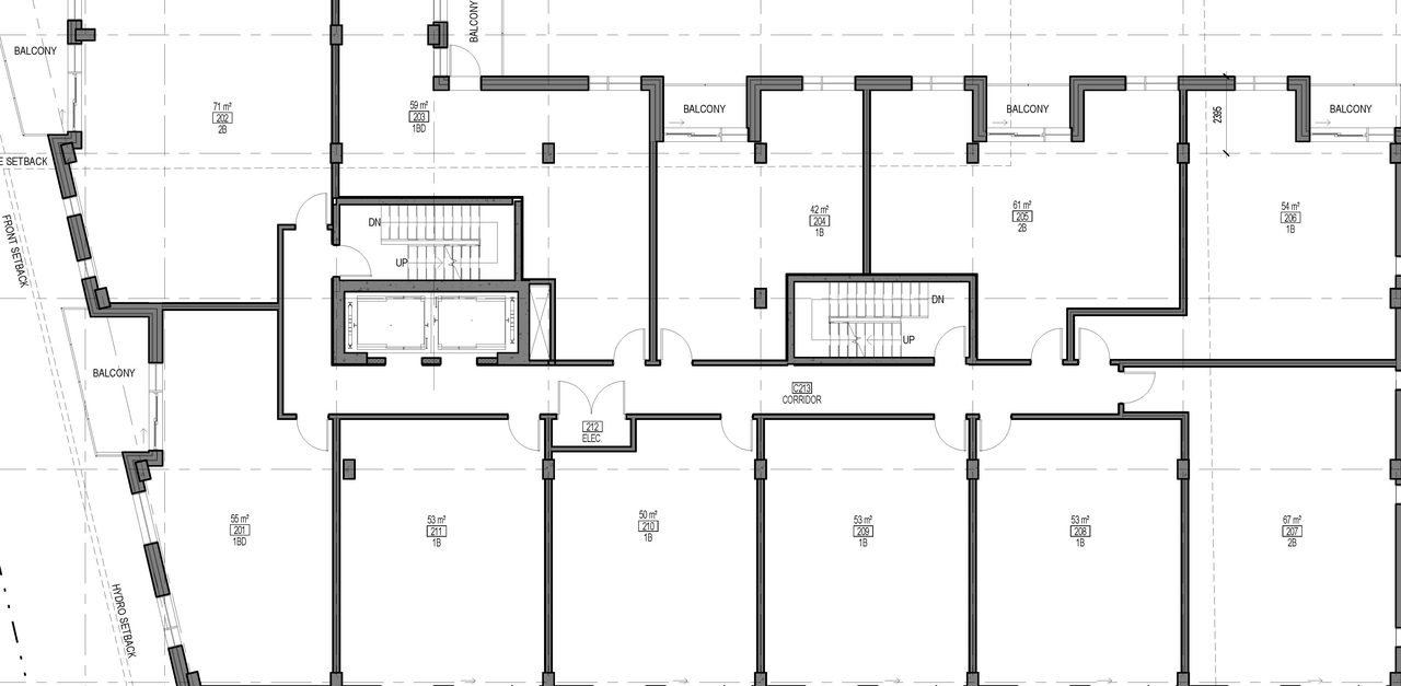
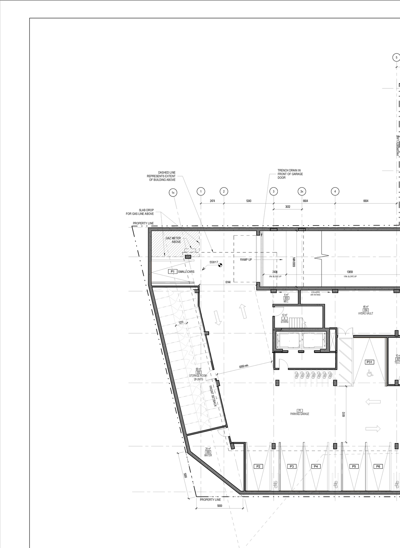
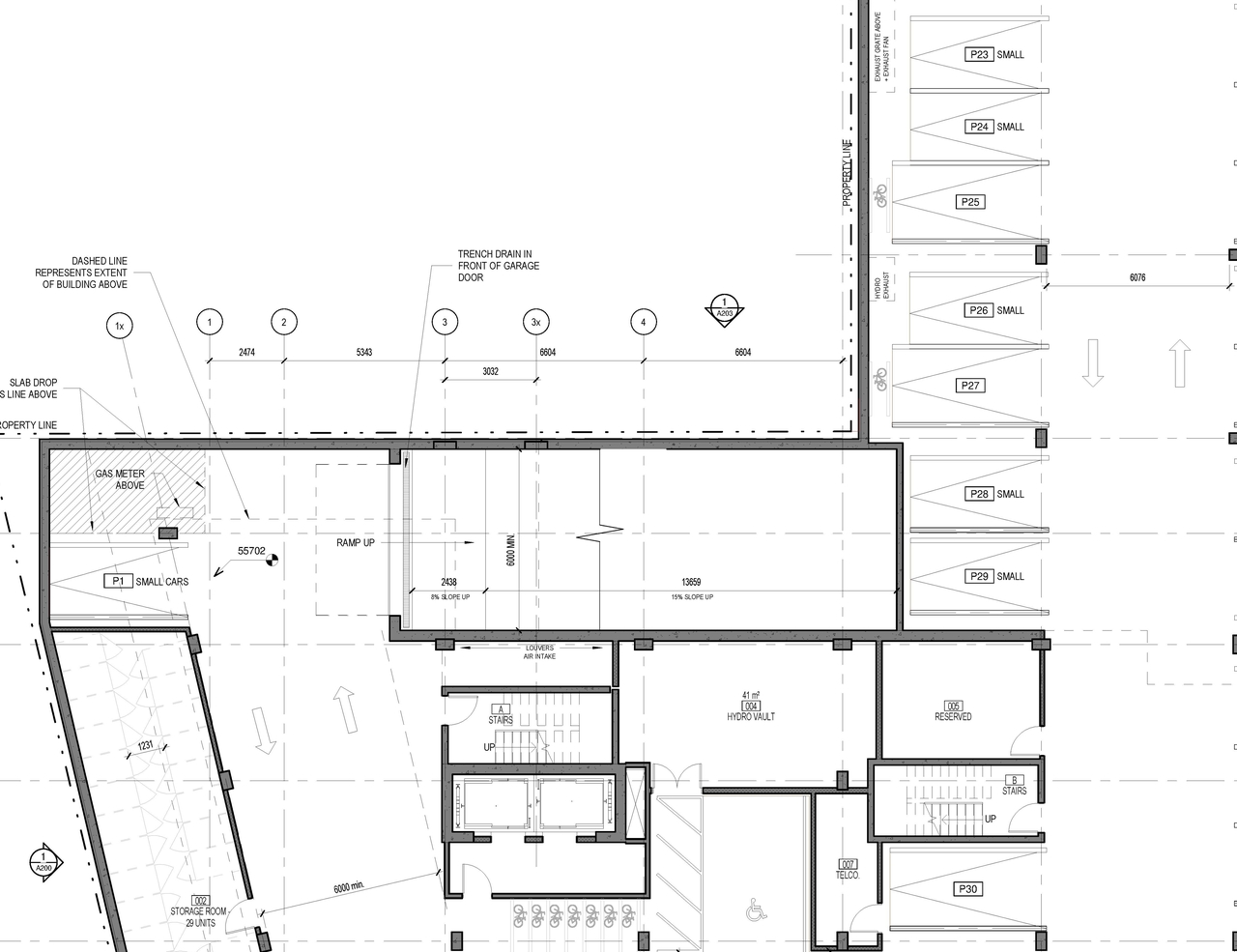
The City of Ottawa has received a Zoning By-law Amendment and Site Plan Control application to permit the construction of a five-storey condominium building containing 46 dwelling units. The applicant is proposing 40 vehicular parking spaces and 39 bicycle parking spaces.
Status
Post Approval (Request for Agreement Received)
Building Scale (Max.)
Based on elevation drawings. Values may be approximate. See sources for exact figures.
Mid-rise · 5 storeys
· 21.55 m
Renders#
Location#
Select a marker to view the address.
Site Plans, Elevations and Floor Plans#
Additional Information#
| Date Initiated | 2021-09-24 |
| Ward | Ward 13 - Rawlson King |













