933 Gladstone Ave.#
Last updated: 2024-10-24 · ID: D07-12-21-0149
Summary#
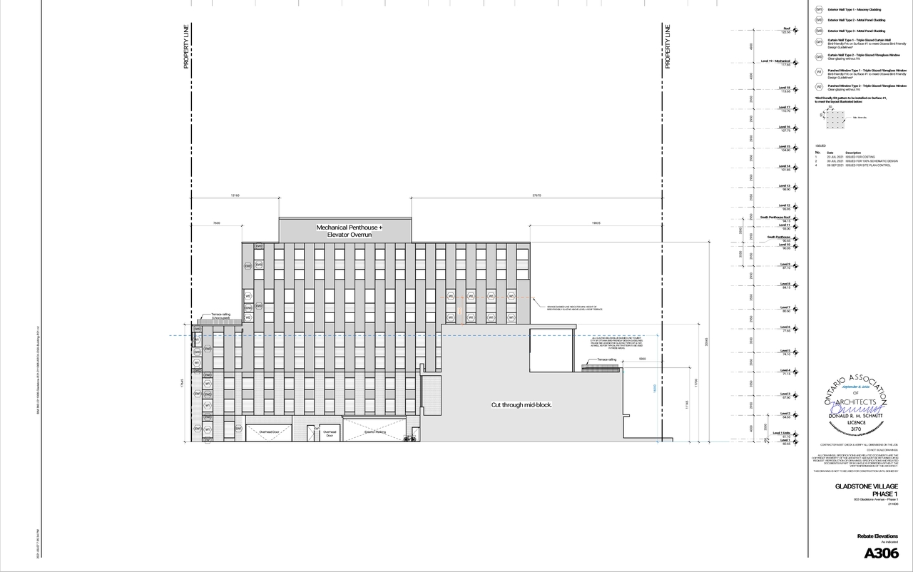
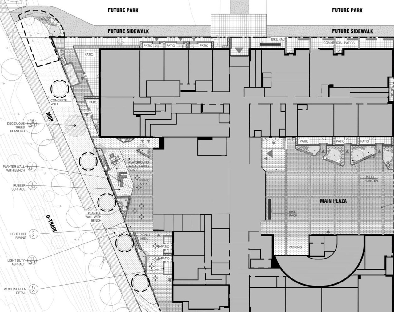
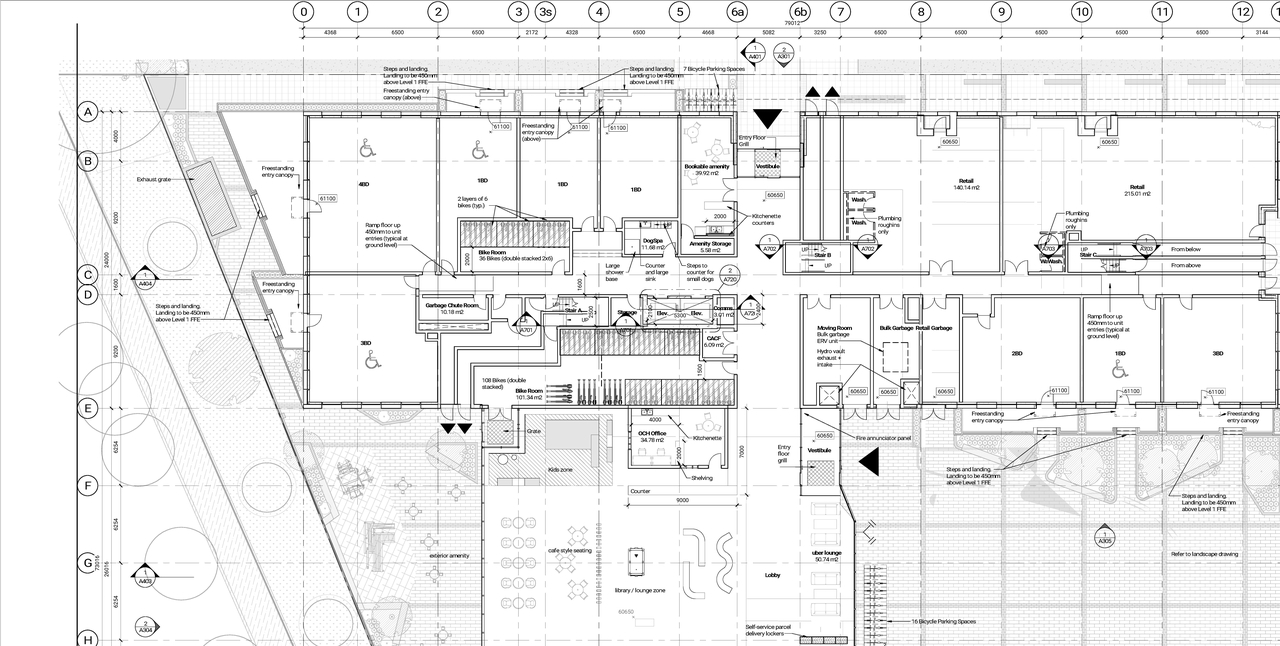
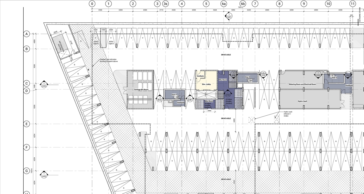
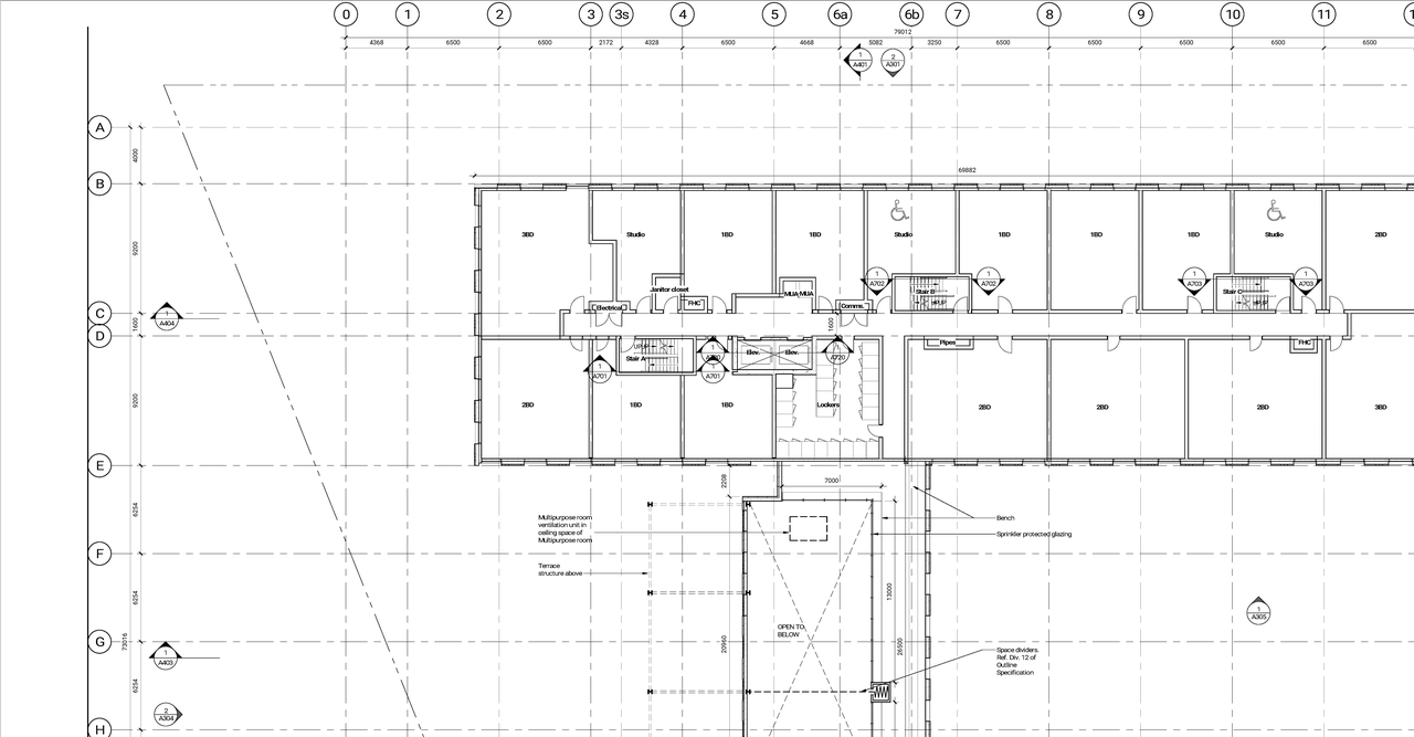
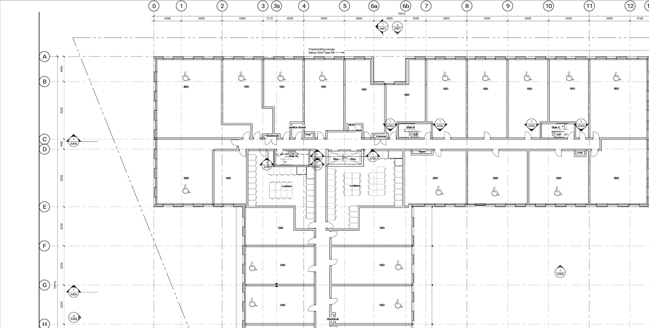
A Site Plan Control application has been submitted to construct 18-storey and 9-storey apartment buildings containing 338 dwelling units and 372 m2 of commercial space, with a total of 145 vehicle spaces and 340 bicycle spaces below grade.
Status
Post Approval (Receipt of Agreement from Owner Pending)
Building Scale (Max.)
Based on elevation drawings. Values may be approximate. See sources for exact figures.
High-rise · 18 storeys
· 61.45 m
Renders#
Location#
Select a marker to view the address.
Site Plans, Elevations and Floor Plans#
Additional Information#
| Date Initiated | 2021-09-24 |
| Ward | Ward 14 - Ariel Troster |
Documents#
Related Projects#
| Project | Last Updated | Date Initiated |
|---|---|---|
933 Gladstone Ave.
D07-16-21-0022 | 2024-07-26 | 2021-07-02 |














































