253-257 York St./78-80 Nelson St.#
Summary#
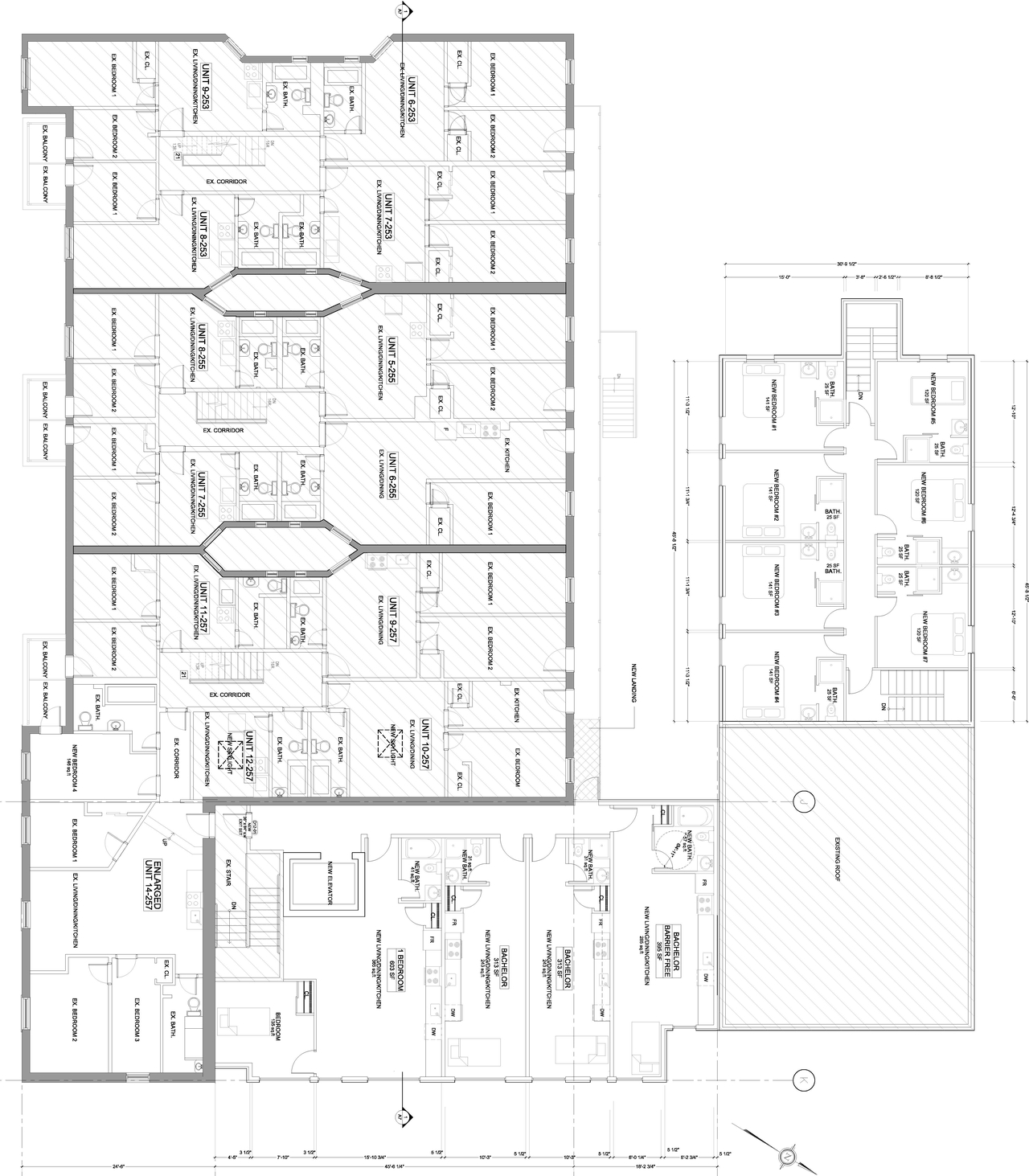
Two (2) additions to the two (2) existing buildings are proposed: one (1) four-storey low-rise addition including a total of 20 dwelling units to 253-257 York Street (Eastern addition) and one (1) three-storey low-rise addition including a total of 26 rooming units to 78-80 Nelson Street (Northern addition). The proposed development would result in the consolidation of two (2) lots into one (1) lot. Current land use is residential.
Status
Inactive (Notice of Decision Sent)
Building Scale (Max.)
Based on elevation drawings. Values may be approximate. See sources for exact figures.
Low-rise · 3 storeys
Data Quality Note
Text was extracted using optical character recognition. This may introduce artifacts or misreads.
· 14.7 m
Data Quality Note
Height was partially estimated using visual scale. This may be approximate.
Data Quality Note
Text was extracted using optical character recognition. This may introduce artifacts or misreads.
Renders#
Location#
Site Plans, Elevations and Floor Plans#
Additional Information#
| Date Initiated | 2021-08-27 |
| Ward | Ward 12 - Stéphanie Plante |
| All Addresses | 253 York St. 255 York St. 257 York St. 78 Nelson St. 80 Nelson St. |















