1291 Summerville Ave.#
Last updated: 2025-12-02 · ID: D07-12-21-0126
Summary#
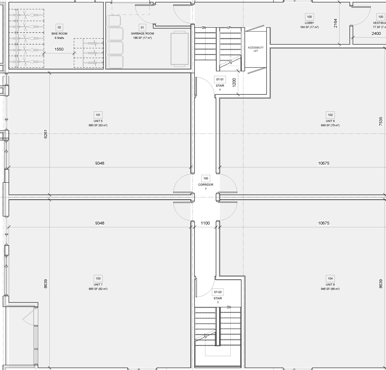
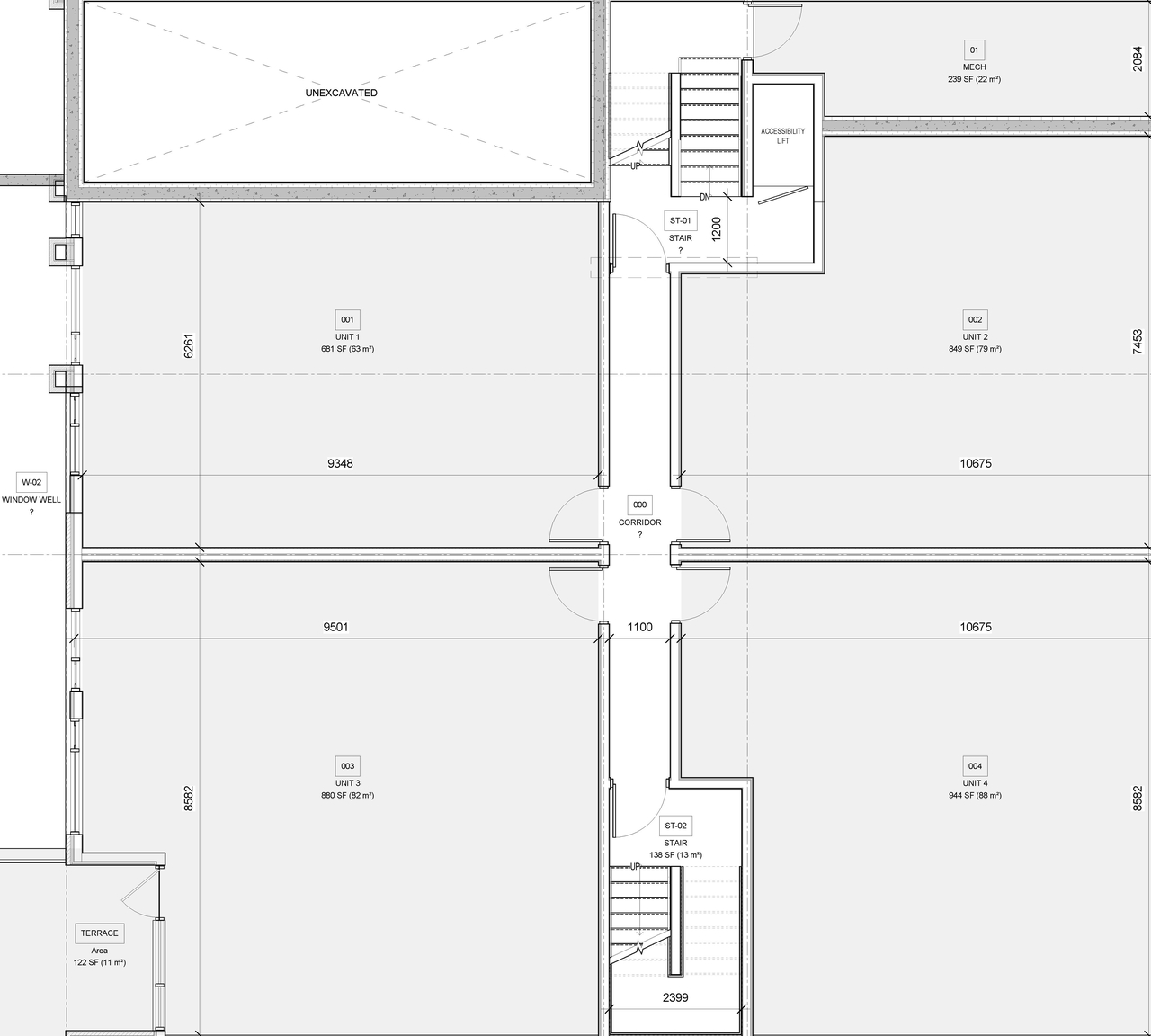
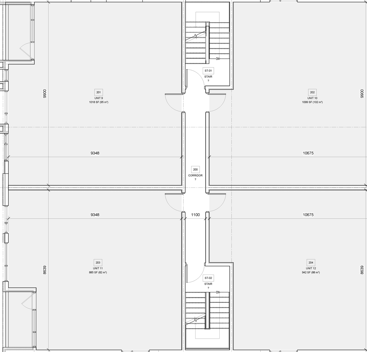
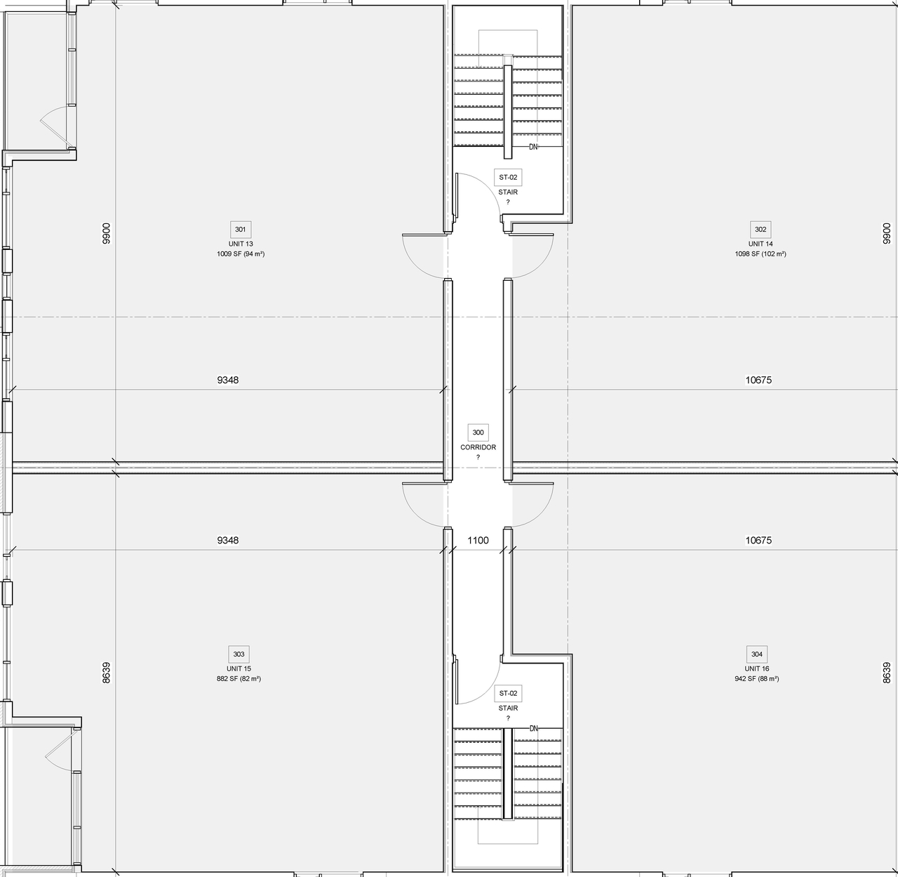
Proposed low-rise apartment building containing 16 units with four parking spaces located in the rear yard.
Status
Post Approval (Agreement Signed)
Building Scale (Max.)
Based on elevation drawings. Values may be approximate. See sources for exact figures.
Mid-rise · 4 storeys
· 11.09 m
Renders#
Location#
Select a marker to view the address.
Site Plans, Elevations and Floor Plans#
Additional Information#
| Date Initiated | 2021-08-19 |
| Ward | Ward 16 - Riley Brockington |











