Ottawa Development Projects

112-134 Nelson St.#

Last updated: 2025-02-19 · ID: D07-12-21-0115

Summary#

The proposal includes the demolition of the existing mixed-use building and construction of a mid-rise, mixed-use development to a maximum building height of 30 metres. 322 DWELLING UNITS.

Status
Post Approval (Request for Agreement Received)

Renders#

Location#

Select a marker to view the address.

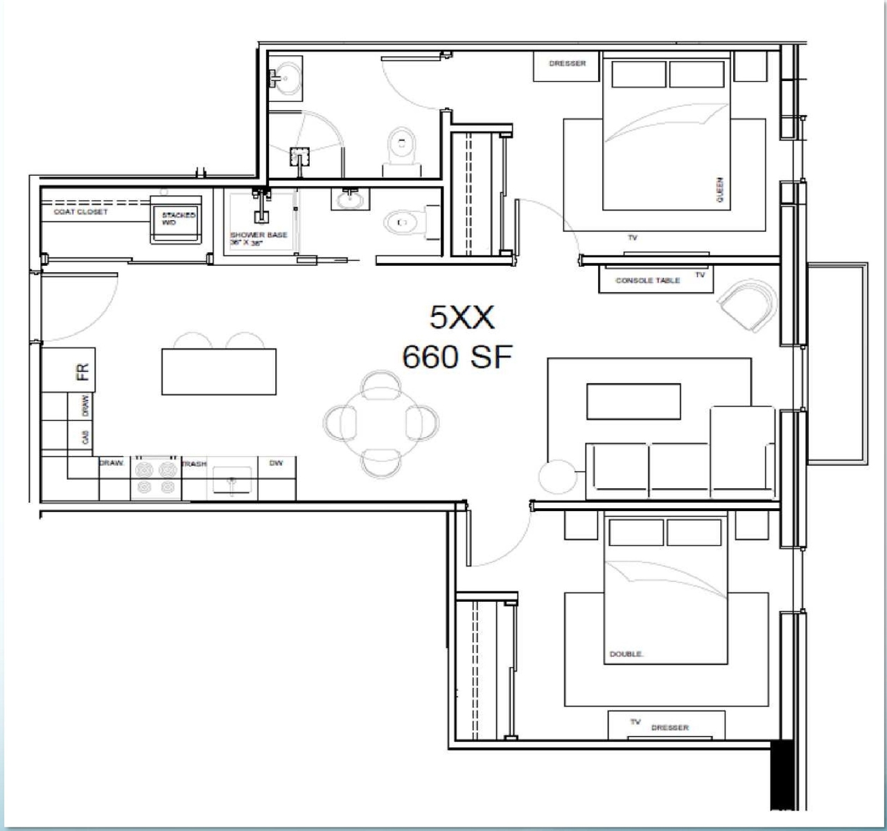
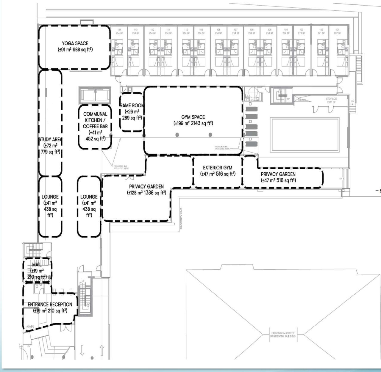
Site Plans, Elevations and Floor Plans#

Additional Information#

Date Initiated2021-07-29
WardWard 12 - Stéphanie Plante
All Addresses112 Nelson St.
134 Nelson St.

Documents#

TypeDocument
Application Summary2021-08-19 - Application Summary - D07-12-21-0115
Architectural Plans2024-07-15 - Architectural Plans - D07-12-21-0115
Architectural Plans2023-07-18 - Site Plan - D07-12-21-0115
Architectural Plans2023-07-18 - Architectural Plans - D07-12-21-0115
Architectural Plans2023-03-27 - Site Plan - D07-12-21-0115
Architectural Plans2023-03-27 - Elevations - D07-12-21-0115
Architectural Plans2021-07-29 - Site Plan - D07-12-21-0115
Architectural Plans2021-07-29 - Building Section - D07-12-21-0115
Architectural Plans2024-10-17 - Approved Elevations - D07-12-21-0115
Civil Engineering Report2024-07-15 - Civil Plans - D07-12-21-0115
Civil Engineering Report2023-07-28 - Civil Plans - D07-12-21-0115
Civil Engineering Report2023-03-27 - Civil Drawings - D07-12-21-0115
Civil Engineering Report2021-08-27 - Civil Drawings - D07-12-21-0115
Civil Engineering Report2021-07-29 - Civil Plans - D07-12-21-0115
Civil Engineering Report2024-10-17 - Approved Civil Plans - D07-12-21-0115
Design Brief2021-07-29 - Design Brief - D07-12-21-0115
Environmental2024-07-15 - Phase II ESA - D07-12-21-0115
Environmental2023-07-18 - Phase I ESA Update - D07-12-21-0115
Environmental2023-07-18 - Phase I ESA - D07-12-21-0115
Environmental2023-03-27 - Phase II Environmental Site Assessment - D07-12-21-0115
Environmental2023-03-27 - Phase I Environmental Site Assessment - D07-12-21-0115
Environmental2021-07-29 - Phase 2 Environmental Site Assessment Update - D07-12-21-0115
Environmental2021-07-29 - Phase 1 Environmental Site Assessment Update - D07-12-21-0115
Floor Plan2023-03-27 - Floor Plans - D07-12-21-0115
Geotechnical Report2023-03-27 - Geotechnical Report - D07-12-21-0115
Geotechnical Report2021-07-29 - Geotechnical Memo - D07-12-21-0115
Landscape Plan2024-07-15 - Landscape Plan - D07-12-21-0115
Landscape Plan2023-12-15 - Landscape Plan - D07-12-21-0115
Landscape Plan2023-07-18 - Landscape Plan - D07-12-21-0115
Landscape Plan2023-03-27 - Landscape Plan - D07-12-21-0115
Landscape Plan2021-08-27 - Landscape Plan - D07-12-21-0115
Noise Study2023-03-31 - Stationary Noise Report - D07-12-21-0115
Noise Study2023-03-27 - Noise Addendum Letter - D07-12-21-0115
Noise Study2021-07-29 - Roadway Traffic Noise Assessment - D07-12-21-0115
Planning2024-07-15 - Zoning Confirmation Report - D07-12-21-0115
Planning2023-03-27 - Planning Rationale - D07-12-21-0115
Planning2021-07-29 - Planning Rationale - D07-12-21-0115
Rendering2023-03-27 - Renderings - D07-12-21-0115
Shadow Study2021-07-29 - Shadow Study - D07-12-21-0115
Site Servicing2024-07-15 - Site Servicing Report - D07-12-21-0115
Site Servicing2023-07-28 - Site Servicing Report - D07-12-21-0115
Site Servicing2023-07-21 - Site Servicing Report - D07-12-21-0115
Site Servicing2023-03-27 - Site Servicing Report - D07-12-21-0115
Site Servicing2021-08-27 - Site Servicing Report - D07-12-21-0115
Site Servicing2021-07-29 - Site Servicing Report - D07-12-21-0115
Site Servicing2024-10-17 - Site Servicing Report - D07-12-21-0115
Site Servicing2024-10-17 - Approved Servicing Plan - D07-12-21-0115
Stormwater Management2024-07-15 - Stormwater Management Report - D07-12-21-0115
Stormwater Management2023-07-28 - Stormwater Management Report - D07-12-21-0115
Stormwater Management2023-03-27 - Stormwater Management Report - D07-12-21-0115
Stormwater Management2021-08-27 - Stormwater Management Report - D07-12-21-0115
Stormwater Management2021-07-29 - Stormwater Management Report - D07-12-21-0115
Surveying2023-03-27 - Topographic Plan of Survey - D07-12-21-0115 (2)
Surveying2023-03-27 - Topographic Plan of Survey - D07-12-21-0115
Surveying2021-07-29 - Topographic Plan of Survey - D07-12-21-0115
Transportation Analysis2024-07-15 - Transportation Impact Assessment - D07-12-21-0115
Transportation Analysis2023-07-18 - Transportation Impact Assessment - D07-12-21-0115
Transportation Analysis2023-03-27 - Transportation Impact Assessment - D02-02-23-0011
Transportation Analysis2023-03-13 - Transportation Impact Assessment - D02-02-23-0011
Transportation Analysis2021-07-29 - Transportation Impact Assessment - D07-12-21-0115
Transportation Analysis2024-10-17 - Transportation Impact Assessment - D07-12-21-0115
Tree Information and Conservation2024-10-17 - Approved Tree Conservation Report & Landscape Plan - D07-12-21-0115
Wind Study2023-03-27 - Pedestrian Level Wind Study Addendum - D07-12-21-0115
Wind Study2021-07-29 - Wind Study - D07-12-21-0115
2023-12-15 - CPTED Audit - D07-12-21-0115
2023-07-18 - Rooftop Package - D07-12-21-0115
2023-07-18 - Basement Unit Information Package - D07-12-21-0115
2023-03-27 - Base Unit Information Package - D07-12-21-0115
2021-07-29 - Sustainability Report - D07-12-21-0115
2024-10-17 - Signed Delegated Authority Report - D07-12-21-0115