770-774 Bronson Ave./557 Cambridge St.#
Last updated: 2025-09-27 · ID: D07-12-21-0108
Summary#
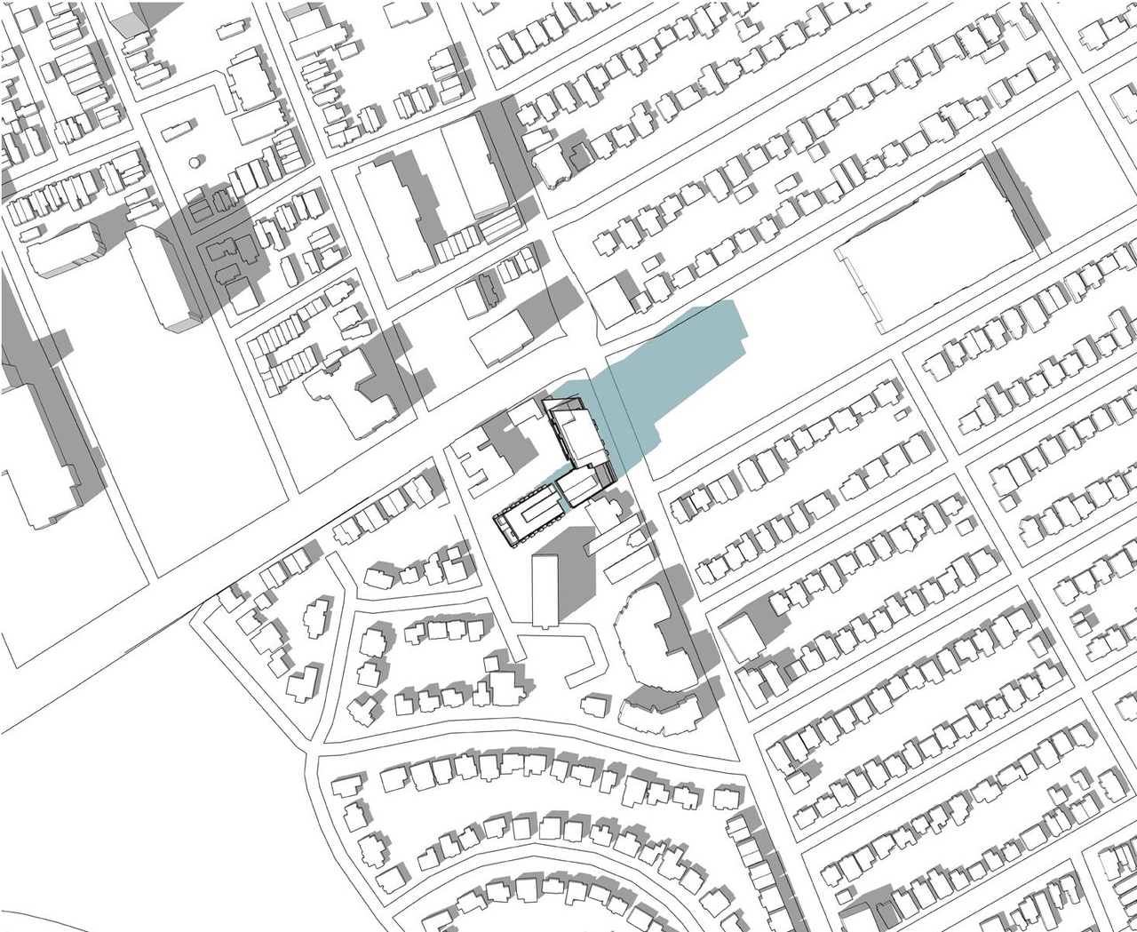
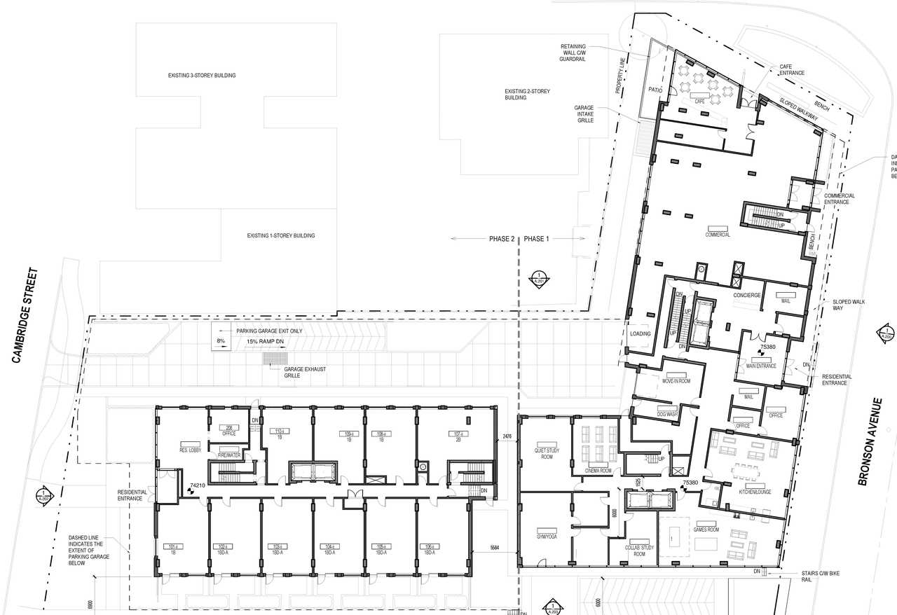
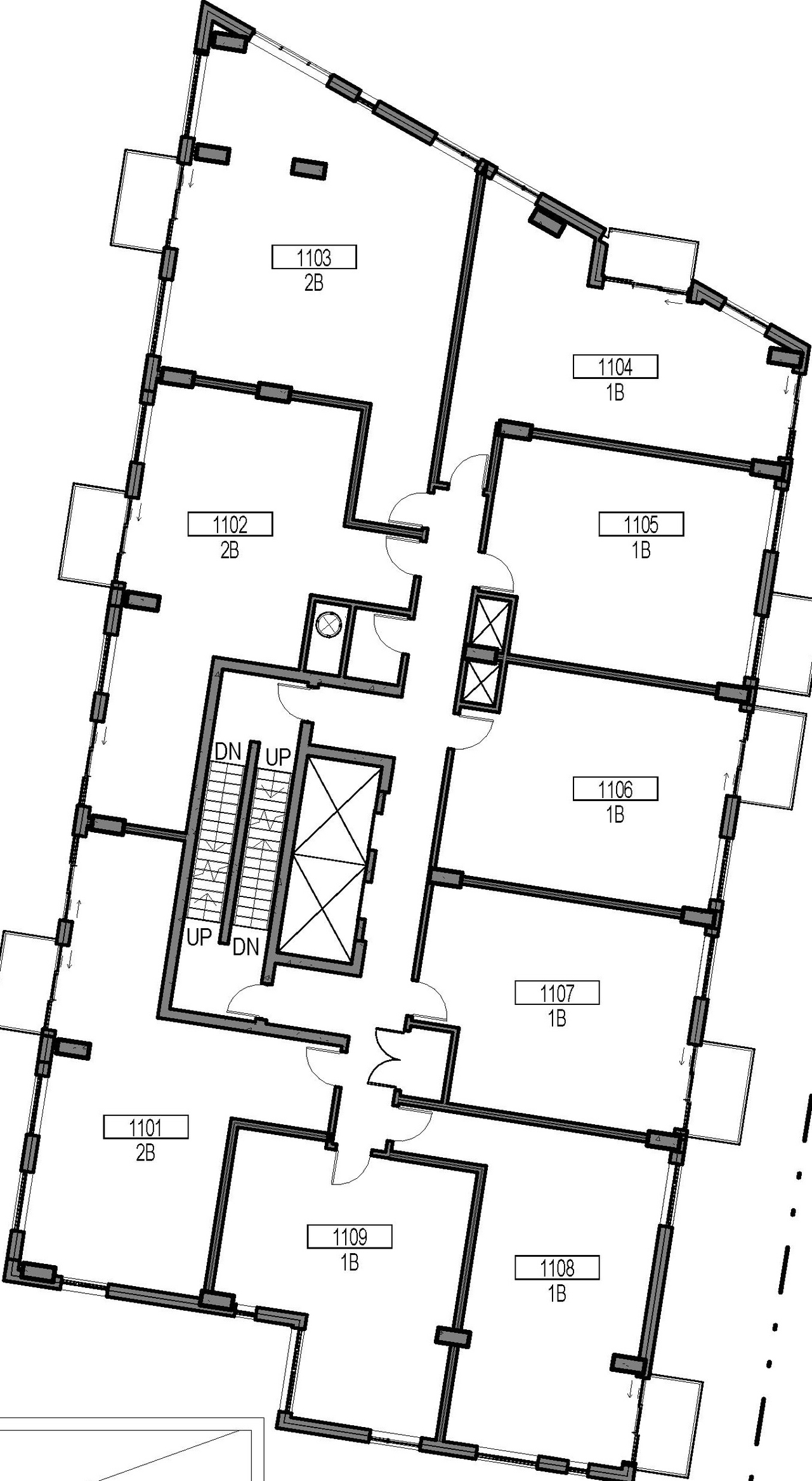
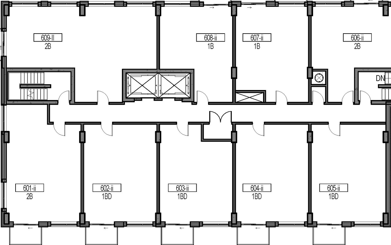
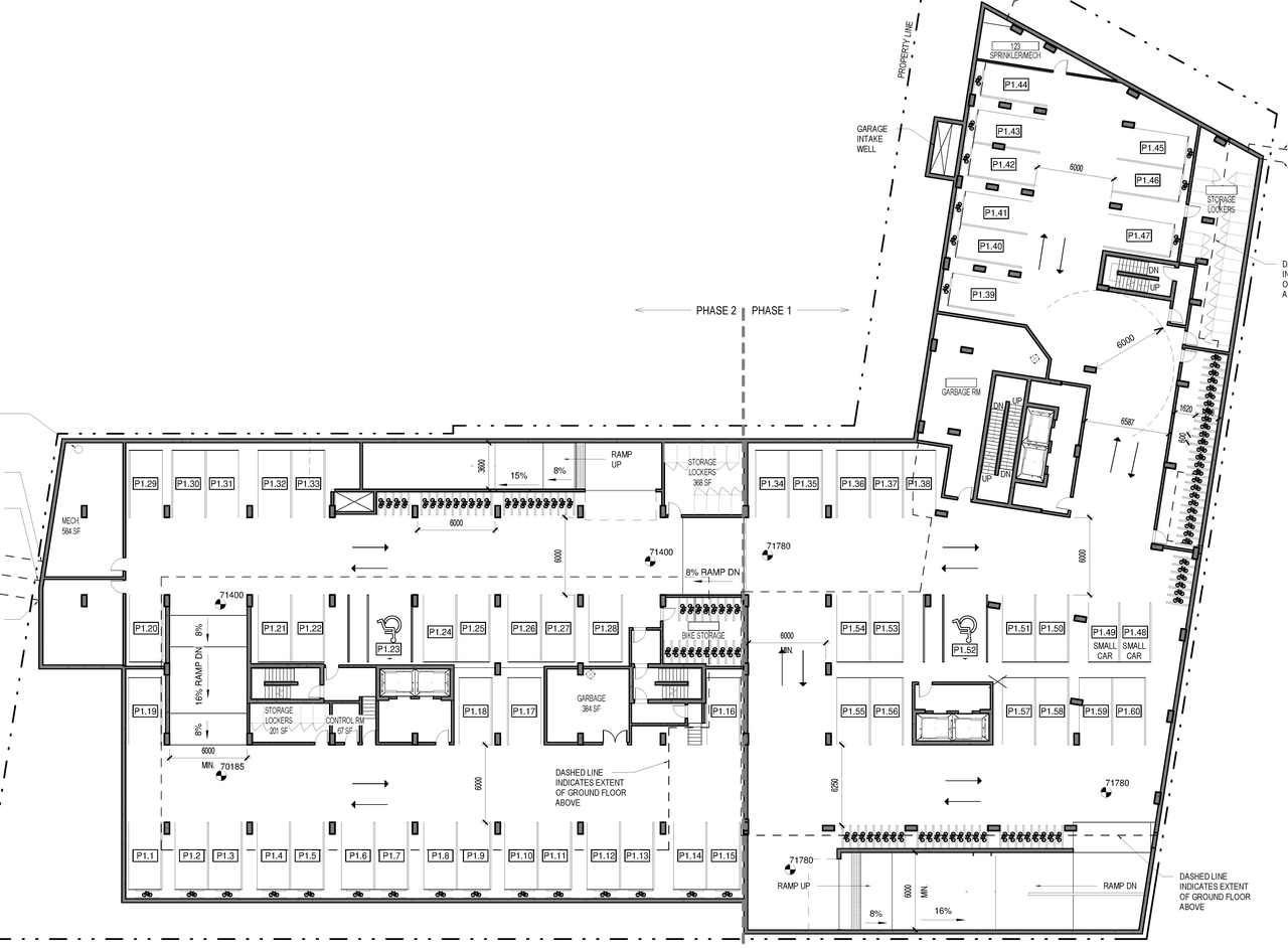
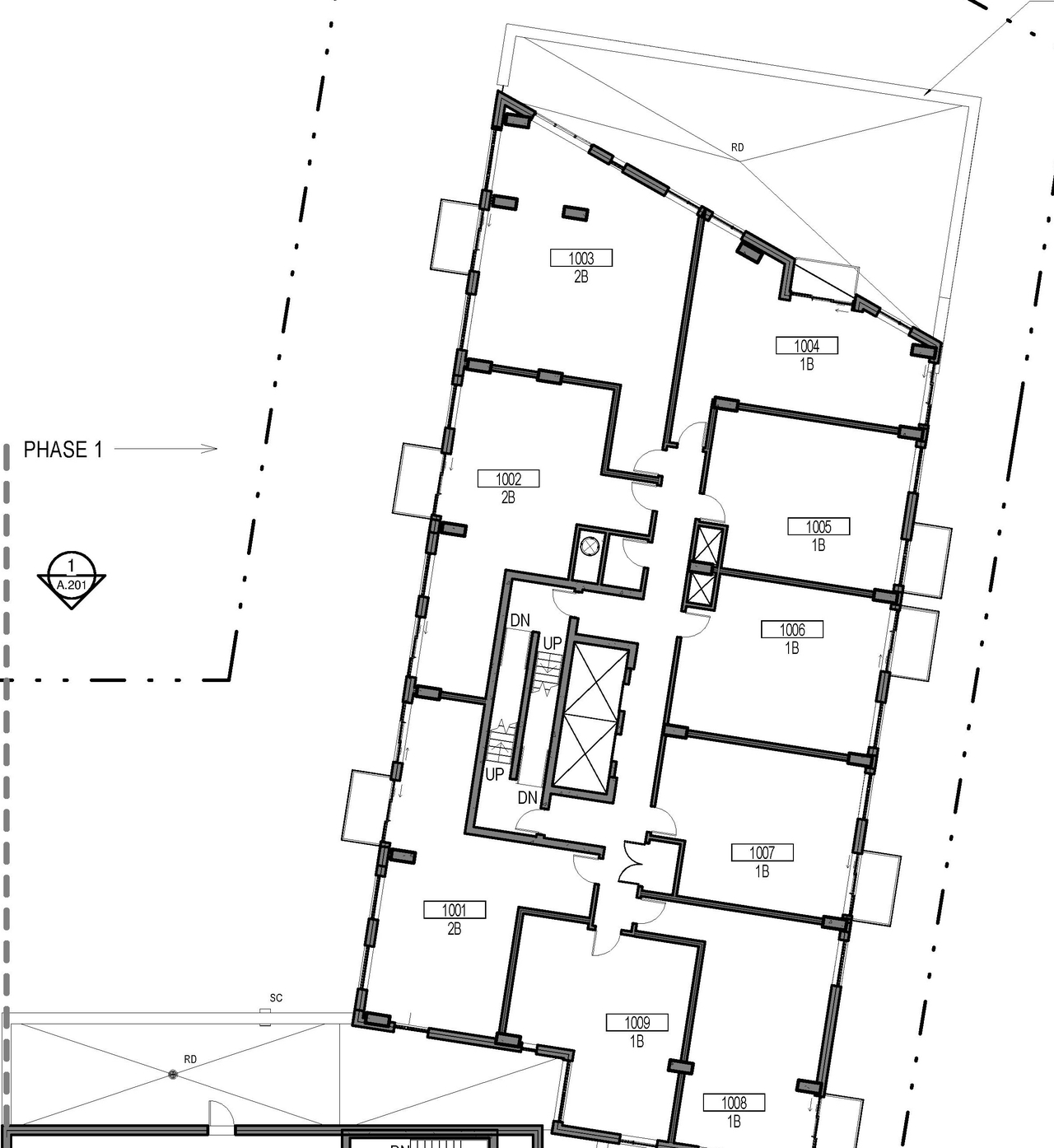
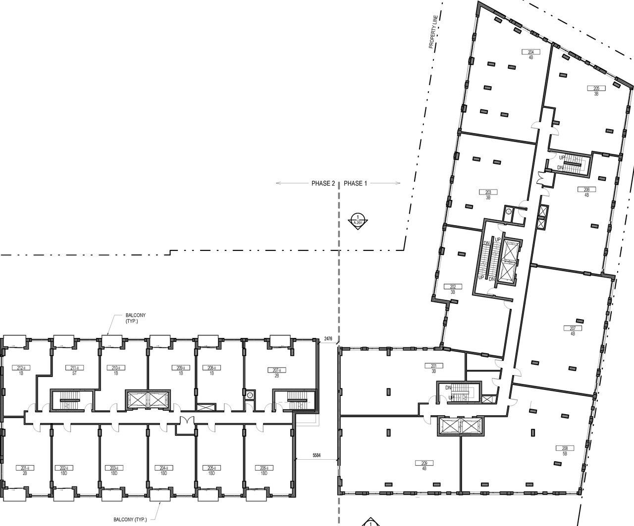
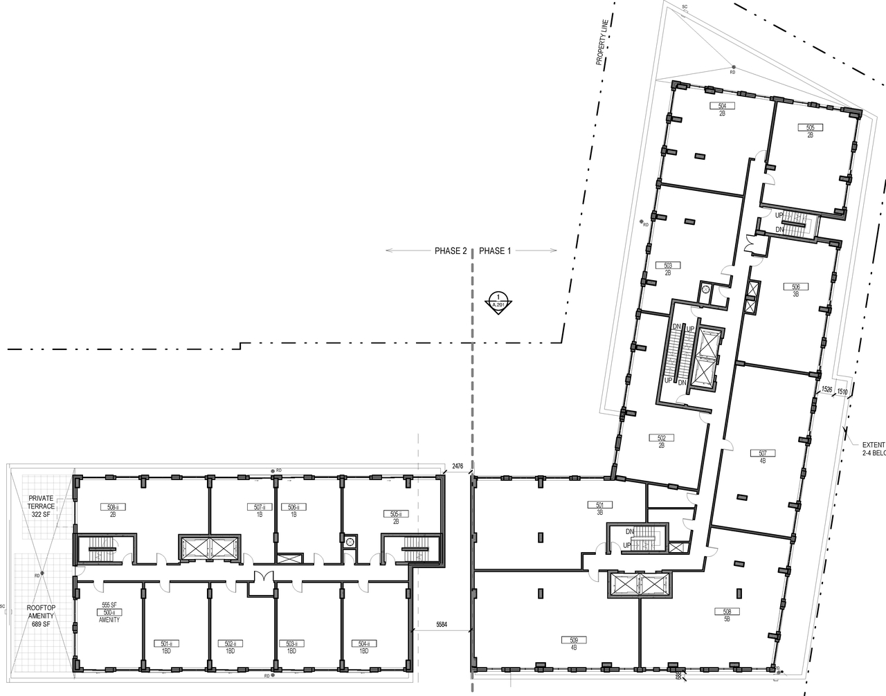
The proposed development consists of a 26-storey mixed-use building along Bronson Avenue and extending west to Cambridge Street South, stepping down to four (4) storeys adjacent to the low-rise neighbourhood. A total of 328 units are proposed within the building which is to be constructed in two phases.
Status
Post Approval (Receipt of Agreement from Owner Pending)
Building Scale (Max.)
Based on elevation drawings. Values may be approximate. See sources for exact figures.
High-rise · 26 storeys
· 86.4 m
Renders#
Location#
Select a marker to view the address.
Site Plans, Elevations and Floor Plans#
Additional Information#
| Date Initiated | 2021-07-19 |
| Ward | Ward 17 - Shawn Menard |
| All Addresses | 770 Bronson Ave. 774 Bronson Ave. 557 Cambridge St. |

















































