Ottawa Development Projects

620 Bobolink Rdg.#

Last updated: 2022-06-08 · ID: D07-12-21-0107

Summary#

Proposed development of seven stacked townhouse blocks each containing 12 units for a total of 84 units.

Status
Active (Applicant Concurs)

Building Scale (Max.) Based on elevation drawings. Values may be approximate. See sources for exact figures.
Mid-rise · 5 storeys

Renders#

Location#

Select a marker to view the address.

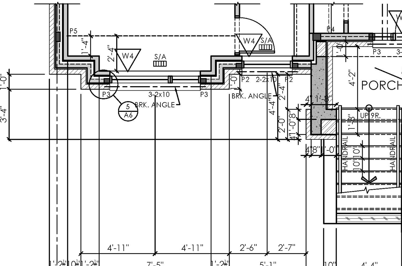
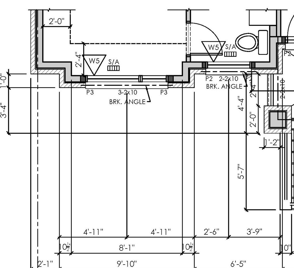
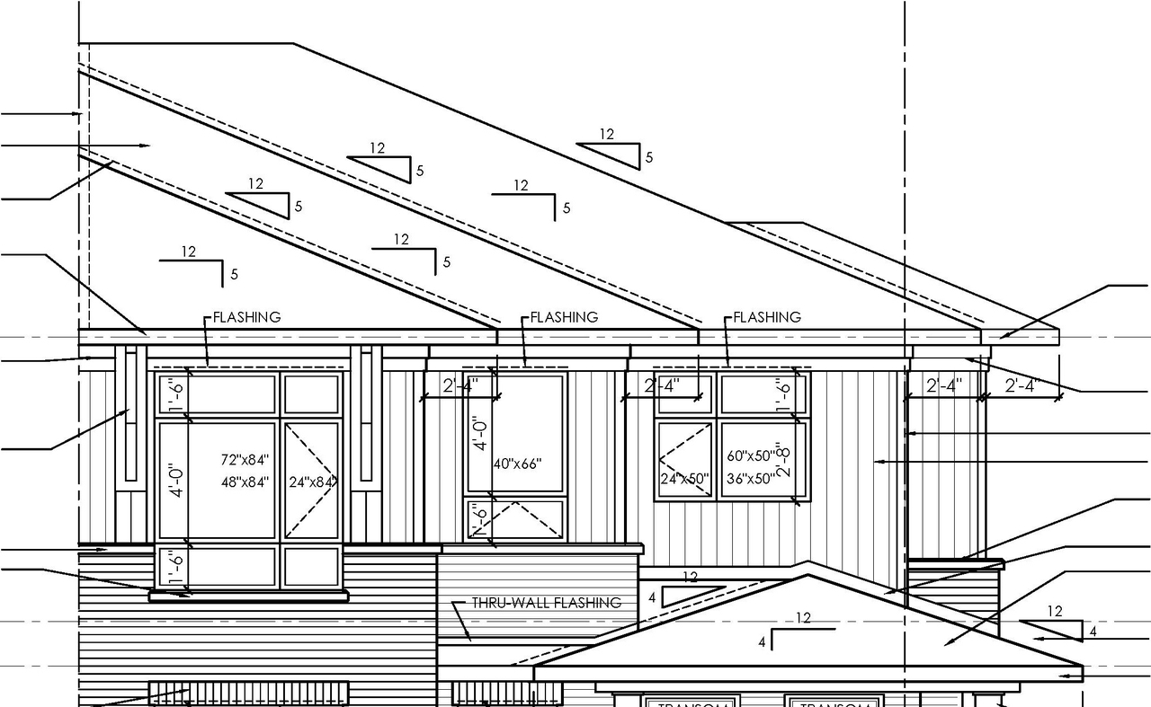
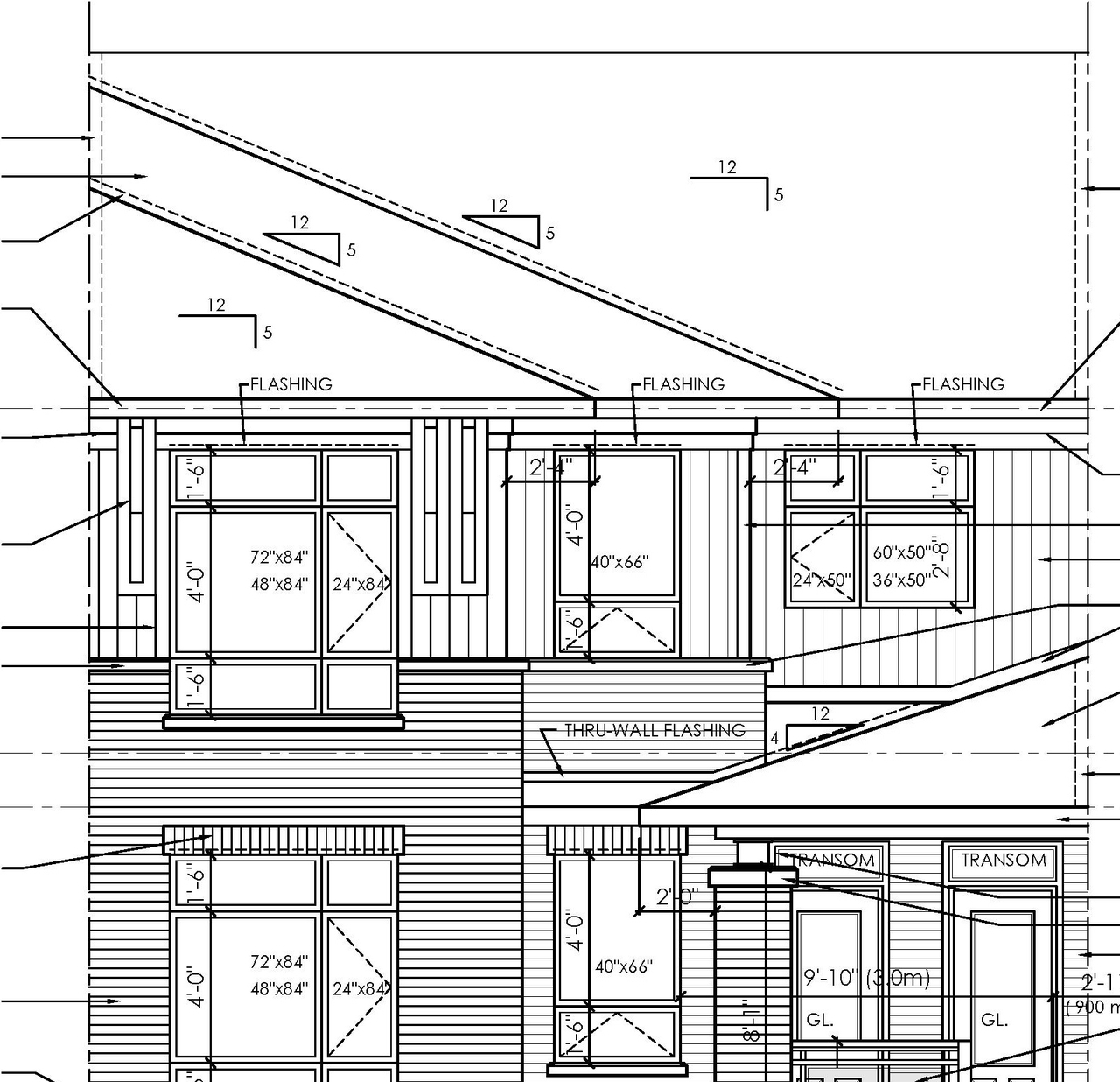
Site Plans, Elevations and Floor Plans#

  • Image from page 4 of the file '2021-07-14 - Elevations and Floor Plans - D07-12-21-0107'
  • Image from page 4 of the file '2021-07-14 - Elevations and Floor Plans - D07-12-21-0107'
  • Image from page 4 of the file '2021-07-14 - Elevations and Floor Plans - D07-12-21-0107'
  • Image from page 4 of the file '2021-07-14 - Elevations and Floor Plans - D07-12-21-0107'
  • Image from page 4 of the file '2021-07-14 - Elevations and Floor Plans - D07-12-21-0107'
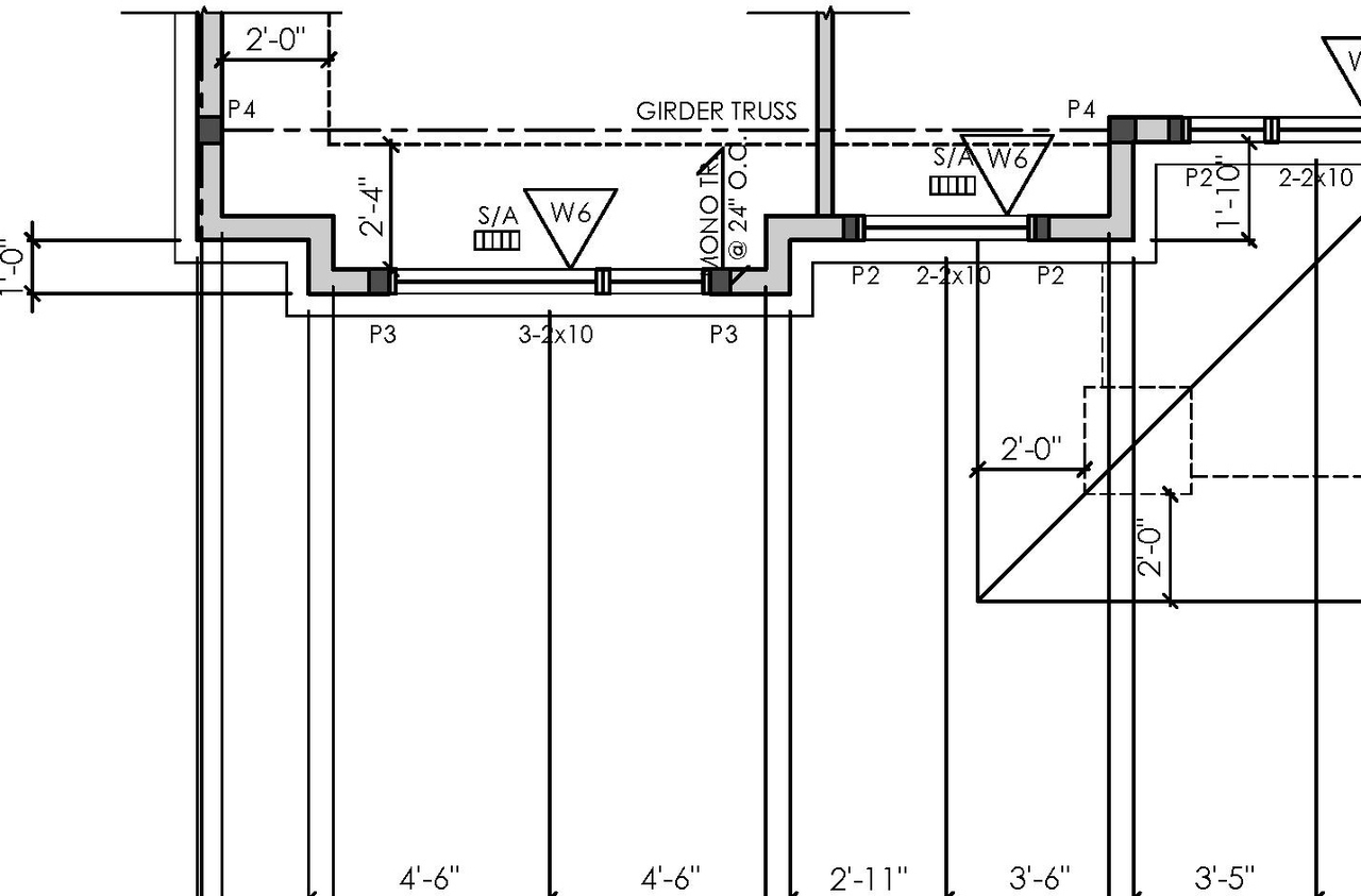
  • Image from page 6 of the file '2021-07-14 - Elevations and Floor Plans - D07-12-21-0107'
  • Image from page 6 of the file '2021-07-14 - Elevations and Floor Plans - D07-12-21-0107'
  • Image from page 3 of the file '2021-07-14 - Elevations and Floor Plans - D07-12-21-0107'
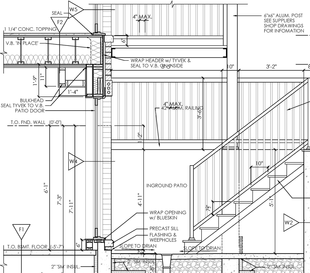
  • Image from page 7 of the file '2021-07-14 - Elevations and Floor Plans - D07-12-21-0107'
  • Image from page 7 of the file '2021-07-14 - Elevations and Floor Plans - D07-12-21-0107'
  • Image from page 6 of the file '2021-07-14 - Elevations and Floor Plans - D07-12-21-0107'
  • Image from page 2 of the file '2021-07-14 - Elevations and Floor Plans - D07-12-21-0107'
  • Image from page 7 of the file '2021-07-14 - Elevations and Floor Plans - D07-12-21-0107'
  • Image from page 2 of the file '2021-07-14 - Elevations and Floor Plans - D07-12-21-0107'
  • Image from page 7 of the file '2021-07-14 - Elevations and Floor Plans - D07-12-21-0107'
  • Image from page 3 of the file '2021-07-14 - Elevations and Floor Plans - D07-12-21-0107'
  • Image from page 7 of the file '2021-07-14 - Elevations and Floor Plans - D07-12-21-0107'
  • Image from page 7 of the file '2021-07-14 - Elevations and Floor Plans - D07-12-21-0107'
  • Image from page 6 of the file '2021-07-14 - Elevations and Floor Plans - D07-12-21-0107'
  • Image from page 3 of the file '2021-07-14 - Elevations and Floor Plans - D07-12-21-0107'
  • Image from page 7 of the file '2021-07-14 - Elevations and Floor Plans - D07-12-21-0107'
  • Image from page 7 of the file '2021-07-14 - Elevations and Floor Plans - D07-12-21-0107'
  • Image from page 7 of the file '2021-07-14 - Elevations and Floor Plans - D07-12-21-0107'
  • Image from page 6 of the file '2021-07-14 - Elevations and Floor Plans - D07-12-21-0107'
  • Image from page 7 of the file '2021-07-14 - Elevations and Floor Plans - D07-12-21-0107'
  • Construction site plan for project from page 6 of the file '2021-07-14 - Elevations and Floor Plans - D07-12-21-0107'
  • Construction site plan for project from page 3 of the file '2021-07-14 - Elevations and Floor Plans - D07-12-21-0107'
  • Construction site plan for project from page 3 of the file '2021-07-14 - Elevations and Floor Plans - D07-12-21-0107'
  • Construction site plan for project from page 6 of the file '2021-07-14 - Elevations and Floor Plans - D07-12-21-0107'
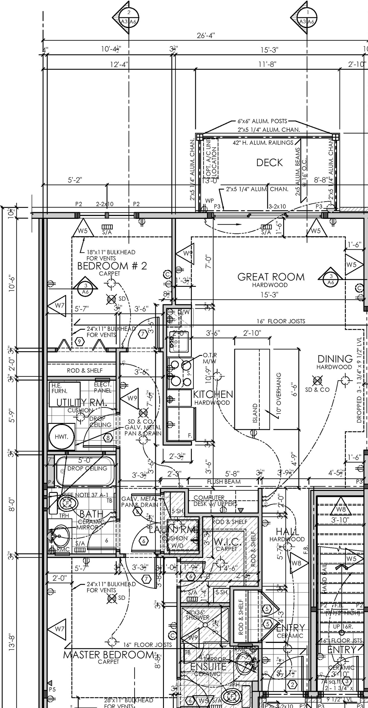
  • Floor plan for project from page 3 of the file '2021-07-14 - Elevations and Floor Plans - D07-12-21-0107'
  • Floor plan for project from page 1 of the file '2021-07-14 - Elevations and Floor Plans - D07-12-21-0107'
  • Image from page 4 of the file '2021-07-14 - Elevations and Floor Plans - D07-12-21-0107'
  • Image from page 4 of the file '2021-07-14 - Elevations and Floor Plans - D07-12-21-0107'
  • Image from page 4 of the file '2021-07-14 - Elevations and Floor Plans - D07-12-21-0107'
  • Image from page 4 of the file '2021-07-14 - Elevations and Floor Plans - D07-12-21-0107'
  • Image from page 4 of the file '2021-07-14 - Elevations and Floor Plans - D07-12-21-0107'
  • Image from page 6 of the file '2021-07-14 - Elevations and Floor Plans - D07-12-21-0107'
  • Image from page 6 of the file '2021-07-14 - Elevations and Floor Plans - D07-12-21-0107'
  • Image from page 3 of the file '2021-07-14 - Elevations and Floor Plans - D07-12-21-0107'
  • Image from page 7 of the file '2021-07-14 - Elevations and Floor Plans - D07-12-21-0107'
  • Image from page 7 of the file '2021-07-14 - Elevations and Floor Plans - D07-12-21-0107'
  • Image from page 6 of the file '2021-07-14 - Elevations and Floor Plans - D07-12-21-0107'
  • Image from page 2 of the file '2021-07-14 - Elevations and Floor Plans - D07-12-21-0107'
  • Image from page 7 of the file '2021-07-14 - Elevations and Floor Plans - D07-12-21-0107'
  • Image from page 2 of the file '2021-07-14 - Elevations and Floor Plans - D07-12-21-0107'
  • Image from page 7 of the file '2021-07-14 - Elevations and Floor Plans - D07-12-21-0107'
  • Image from page 3 of the file '2021-07-14 - Elevations and Floor Plans - D07-12-21-0107'
  • Image from page 7 of the file '2021-07-14 - Elevations and Floor Plans - D07-12-21-0107'
  • Image from page 7 of the file '2021-07-14 - Elevations and Floor Plans - D07-12-21-0107'
  • Image from page 6 of the file '2021-07-14 - Elevations and Floor Plans - D07-12-21-0107'
  • Image from page 3 of the file '2021-07-14 - Elevations and Floor Plans - D07-12-21-0107'
  • Image from page 7 of the file '2021-07-14 - Elevations and Floor Plans - D07-12-21-0107'
  • Image from page 7 of the file '2021-07-14 - Elevations and Floor Plans - D07-12-21-0107'
  • Image from page 7 of the file '2021-07-14 - Elevations and Floor Plans - D07-12-21-0107'
  • Image from page 6 of the file '2021-07-14 - Elevations and Floor Plans - D07-12-21-0107'
  • Image from page 7 of the file '2021-07-14 - Elevations and Floor Plans - D07-12-21-0107'
  • Construction site plan for project from page 6 of the file '2021-07-14 - Elevations and Floor Plans - D07-12-21-0107'
  • Construction site plan for project from page 3 of the file '2021-07-14 - Elevations and Floor Plans - D07-12-21-0107'
  • Construction site plan for project from page 3 of the file '2021-07-14 - Elevations and Floor Plans - D07-12-21-0107'
  • Construction site plan for project from page 6 of the file '2021-07-14 - Elevations and Floor Plans - D07-12-21-0107'
  • Floor plan for project from page 3 of the file '2021-07-14 - Elevations and Floor Plans - D07-12-21-0107'
  • Floor plan for project from page 1 of the file '2021-07-14 - Elevations and Floor Plans - D07-12-21-0107'

Additional Information#

Date Initiated2021-07-14
WardWard 6 - Glen Gower

Documents#

TypeDocument
Application Summary2021-07-27 - Application Summary - D07-12-21-0107
Architectural Plans2022-06-29 - Approved South Servicing Plan - D07-12-21-0107
Architectural Plans2022-06-29 - Approved South Grading Plan - D07-12-21-0107
Architectural Plans2022-06-29 - Approved Site Plan - D07-12-21-0107
Architectural Plans2022-06-29 - Approved Sediment & Erosion Control Plan - D07-12-21-0107
Architectural Plans2022-06-29 - Approved Removal Plan - D07-12-21-0107
Architectural Plans2022-06-29 - Approved North Servicing Plan - D07-12-21-0107
Architectural Plans2022-06-29 - Approved North Grading Plan - D07-12-21-0107
Architectural Plans2022-06-29 - Approved General Arrangement Plan - D07-12-21-0107
Architectural Plans2022-06-29 - Approved Fences & Gateway Features Plan - D07-12-21-0107
Architectural Plans2022-06-29 - Approved Elevations 5 - D07-12-21-0107
Architectural Plans2022-06-29 - Approved Elevations 4 - D07-12-21-0107
Architectural Plans2022-06-29 - Approved Elevations 3 - D07-12-21-0107
Architectural Plans2022-06-29 - Approved Elevations 2 - D07-12-21-0107
Architectural Plans2022-06-29 - Approved Elevations 1 - D07-12-21-0107
Architectural Plans2022-06-29 - Approved Details & Sections Plan 2 - D07-12-21-0107
Architectural Plans2021-10-18 - Site Plan - D07-12-21-0107
Architectural Plans2021-10-18 - Elevations - D07-12-21-0107
Architectural Plans2021-07-14 - Site Plan - D07-12-21-0107
Architectural Plans2021-07-14 - Plan 4M-1619 - D07-12-21-0107
Civil Engineering Report2022-03-16 - Civil Drawings - D07-12-21-0107
Civil Engineering Report2022-02-01 - Civil Drawings - D07-12-21-0107
Civil Engineering Report2021-07-14 - Civil Drawings - D07-12-21-0107
Environmental2022-06-29 - Phase I ESA - D07-12-21-0107
Environmental2021-07-14 - Phase 1 Environmental Site Assessment - D07-12-21-0107
Floor Plan2021-07-14 - Elevations and Floor Plans - D07-12-21-0107
Geotechnical Report2022-06-29 - Geotechnical Investigation - D07-12-21-0107
Geotechnical Report2021-07-14 - Geotechnical Investigation - D07-12-21-0107
Landscape Plan2022-06-29 - Approved Landscape Plan L11 - D07-12-21-0107
Landscape Plan2022-06-29 - Approved Landscape Details L13 - D07-12-21-0107
Landscape Plan2022-06-29 - Approved Landscape Details L12 - D07-12-21-0107
Landscape Plan2021-10-18 - Landscape Plan 2 - D07-12-21-0107
Landscape Plan2021-10-18 - Landscape Plan - D07-12-21-0107
Landscape Plan2021-10-18 - Landscape Details - D07-12-21-0107
Landscape Plan2021-07-14 - Landscape Plan - D07-12-21-0107
Landscape Plan2021-07-14 - Landscape Details - D07-12-21-0107
Noise Study2022-06-29 - Traffic Noise Assessment - D07-12-21-0107
Noise Study2022-03-16 - Noise Assessment - D07-12-21-0107
Noise Study2021-10-18 - Roadway Traffic Noise Assessment - D07-12-21-0107
Noise Study2021-07-14 - Traffic Noise Assessment - D07-12-21-0107
Notification2024-07-15 - Commence Work Notification - D07-12-21-0107
Planning2021-07-14 - Planning Rationale and Design Brief - D07-12-21-0107
Rendering2021-07-14 - Rendering - D07-12-21-0107
Site Servicing2021-10-18 - Servicing Report - D07-12-21-0107
Stormwater Management2022-06-29 - Stormwater Management Report - D07-12-21-0107
Stormwater Management2021-10-18 - Stormwater Management Report - D07-12-21-0107
Stormwater Management2021-07-14 - Stormwater Management Report - D07-12-21-0107
Surveying2021-07-14 - Topographic Sketch - D07-12-21-0107
Transportation Analysis2022-06-29 - Transportation Memo - D07-12-21-0107
2022-06-29 - Signed Delegated Authority Report - D07-12-21-0107
2022-06-29 - Functional Servicing Report - D07-12-21-0107
2022-06-29 - Approved General Notes & Legend - D07-12-21-0107
2022-06-29 - Approved Details & Sections 1 - D07-12-21-0107
2022-02-01 - Fencing and Gateway - D07-12-21-0107
2021-10-18 - General Notes and Legends - D07-12-21-0107
2021-07-14 - Functional Servicing Report - D07-12-21-0107