Ottawa Development Projects

971 Montreal#

Last updated: 2025-06-26 · ID: D07-12-21-0094

Summary#

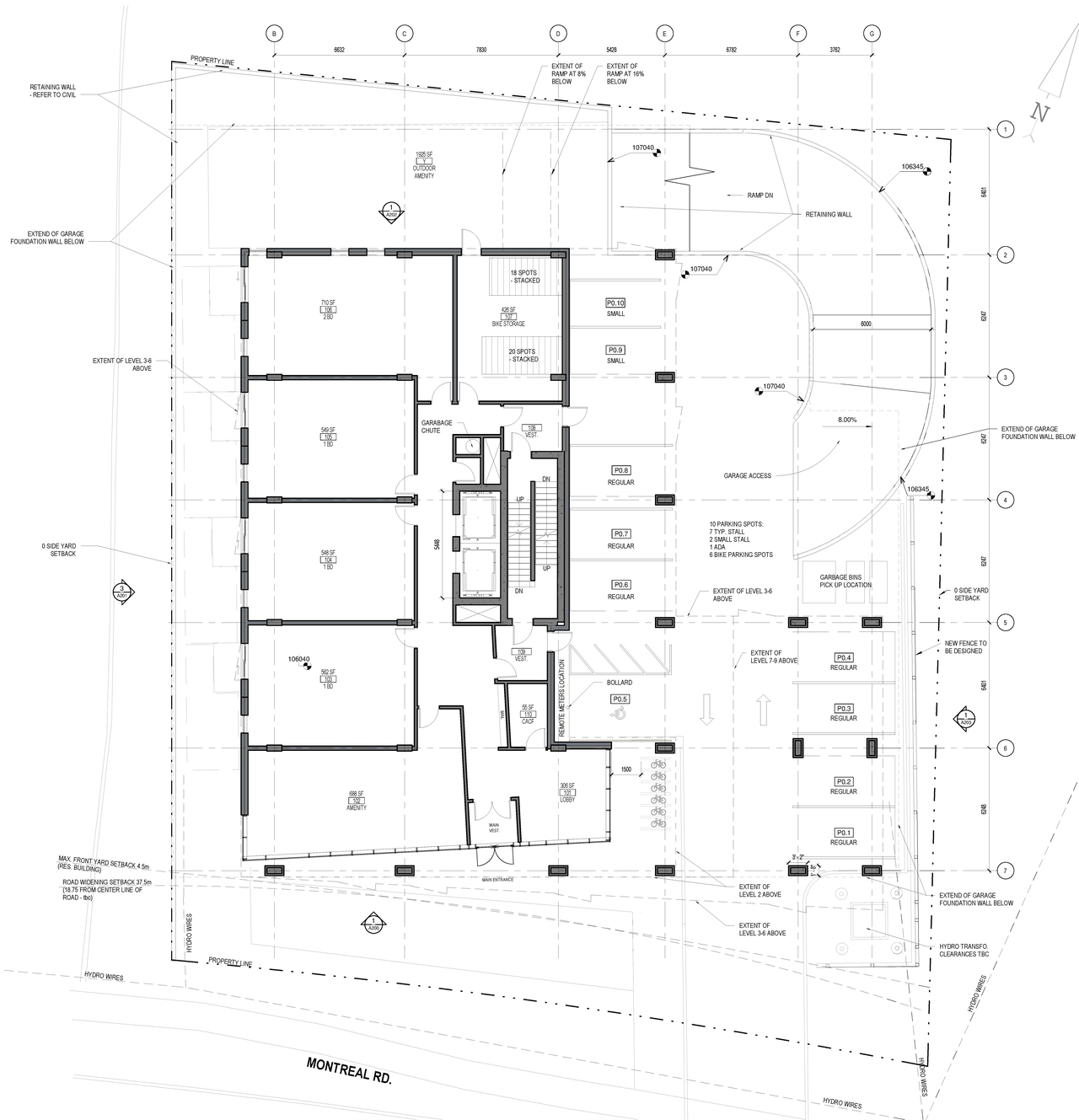
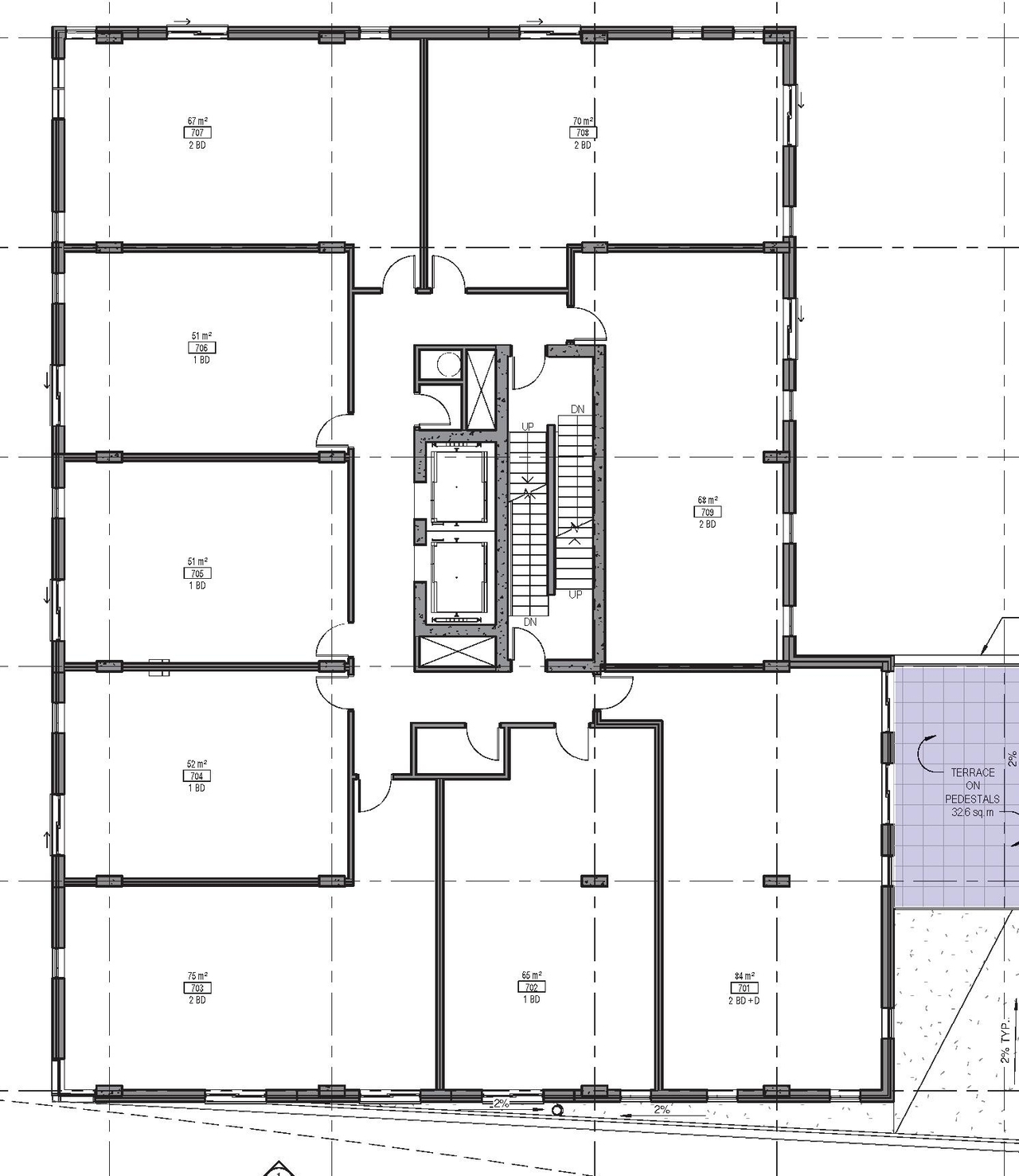
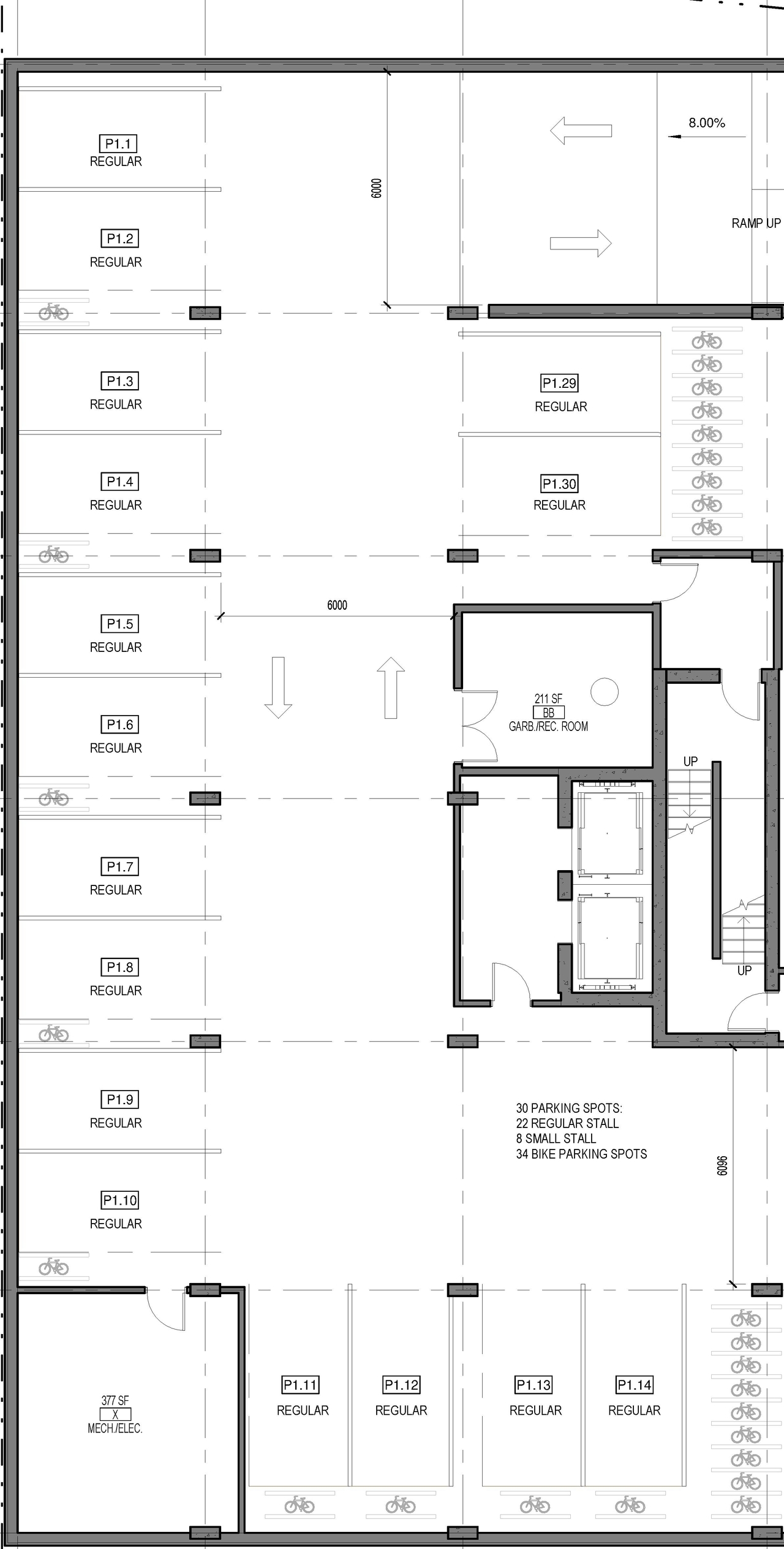
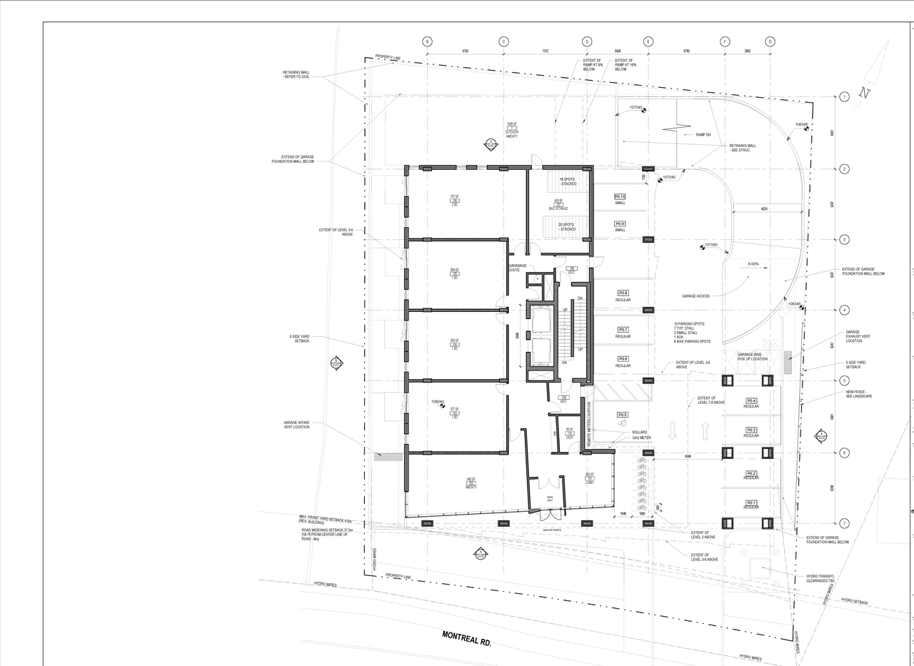
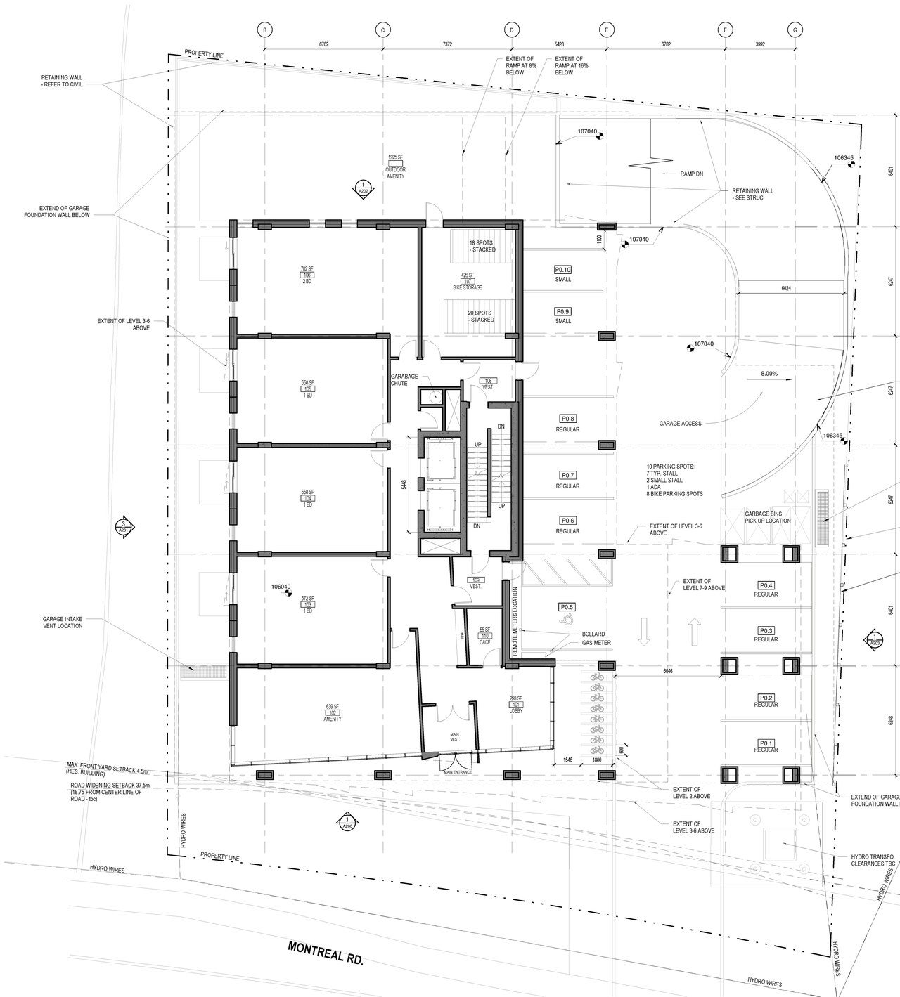
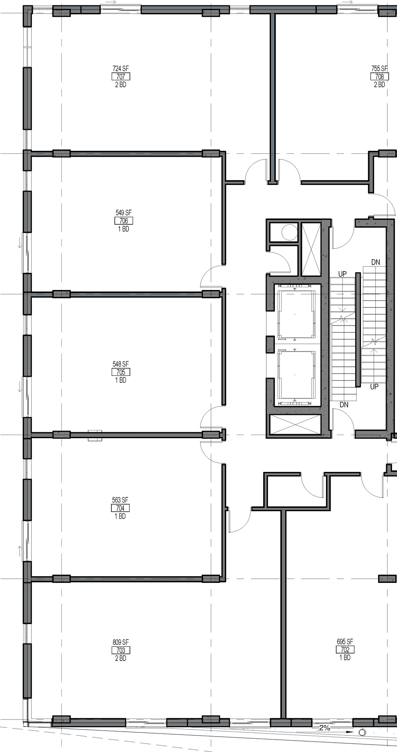
A Site Plan Control application to construct a nine-storey residential apartment building, containing 78 units, adjacent surface parking and a one-storey underground parking garage.

Status
Post Approval (Request for Agreement Received)

Building Scale (Max.) Based on elevation drawings. Values may be approximate. See sources for exact figures.
Mid-rise · 9 storeys · 32.59 m

Renders#

Location#

Select a marker to view the address.

Site Plans, Elevations and Floor Plans#

  • Image from page 17 of the file '2021-06-29 - Urban Design Package - D07-12-21-0094'
  • Image from page 18 of the file '2021-06-29 - Urban Design Package - D07-12-21-0094'
  • Image from page 19 of the file '2021-06-29 - Urban Design Package - D07-12-21-0094'
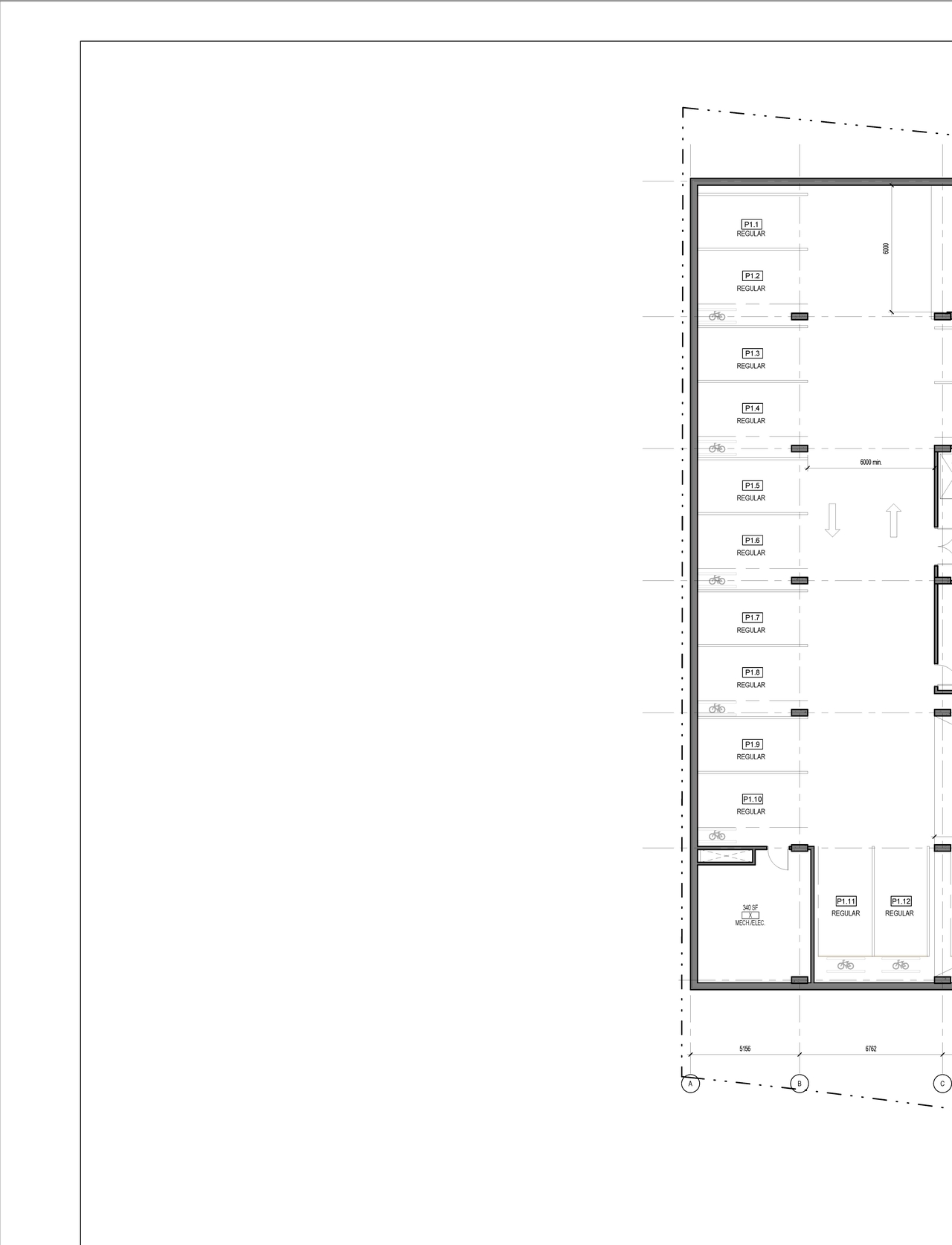
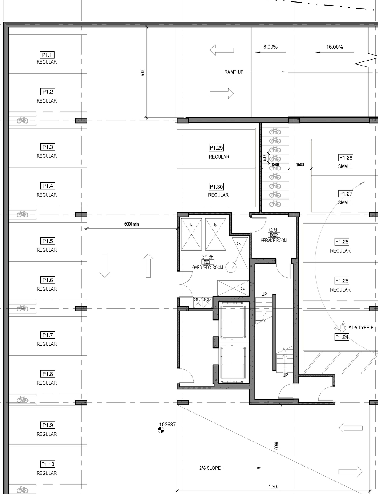
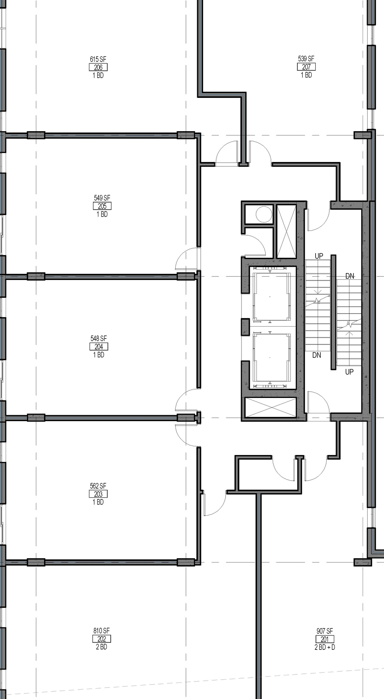
  • Image from page 6 of the file '2022-10-07 - Floor Plans - D07-12-21-0094'
  • Construction site plan for project from page 21 of the file '2021-06-29 - Urban Design Package - D07-12-21-0094'
  • Construction site plan for project from page 24 of the file '2021-06-29 - Urban Design Package - D07-12-21-0094'
  • Construction site plan for project from page 25 of the file '2021-06-29 - Urban Design Package - D07-12-21-0094'
  • Construction site plan for project from page 25 of the file '2021-06-29 - Urban Design Package - D07-12-21-0094'
  • Construction site plan for project from page 1 of the file '2021-06-29 - Floor Plans - D07-12-21-0094'
  • Construction site plan for project from page 21 of the file '2021-06-29 - Urban Design Package - D07-12-21-0094'
  • Construction site plan for project from page 2 of the file '2022-10-07 - Floor Plans - D07-12-21-0094'
  • Construction site plan for project from page 1 of the file '2022-10-07 - Floor Plans - D07-12-21-0094'
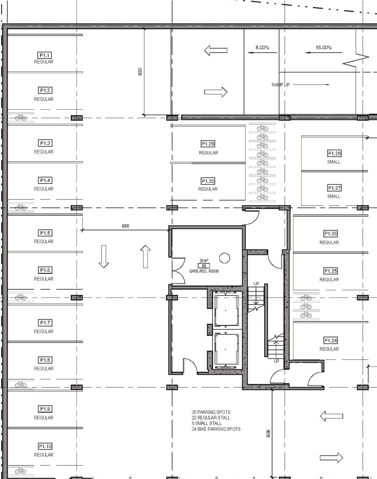
  • Construction site plan for project from page 6 of the file '2021-06-29 - Floor Plans - D07-12-21-0094'
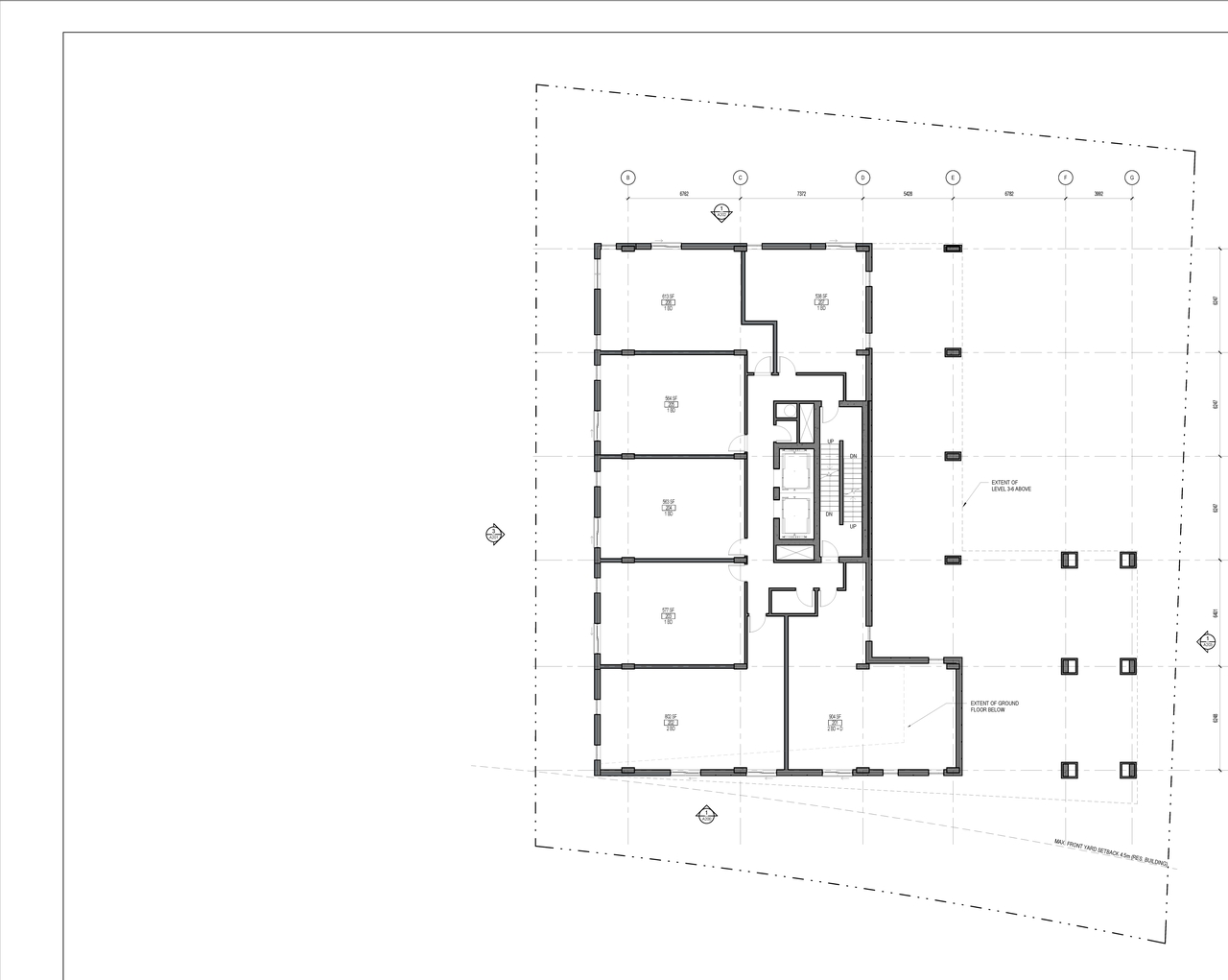
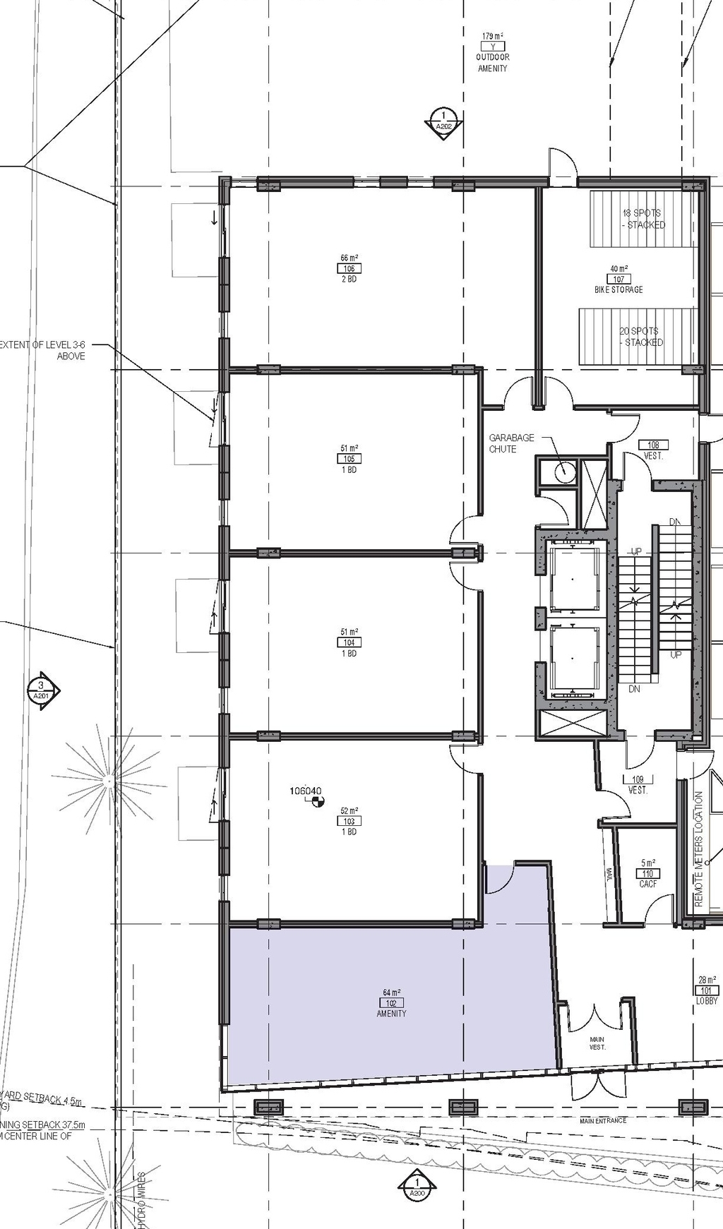
  • Floor plan for project from page 2 of the file '2022-05-11 - Floor Plans - D07-12-21-0094'
  • Floor plan for project from page 13 of the file '2021-06-29 - Urban Design Package - D07-12-21-0094'
  • Floor plan for project from page 1 of the file '2022-05-11 - Floor Plans - D07-12-21-0094'
  • Floor plan for project from page 3 of the file '2022-05-11 - Floor Plans - D07-12-21-0094'
  • Floor plan for project from page 6 of the file '2022-05-11 - Floor Plans - D07-12-21-0094'
  • Floor plan for project from page 2 of the file '2021-06-29 - Floor Plans - D07-12-21-0094'
  • Floor plan for project from page 5 of the file '2022-10-07 - Floor Plans - D07-12-21-0094'
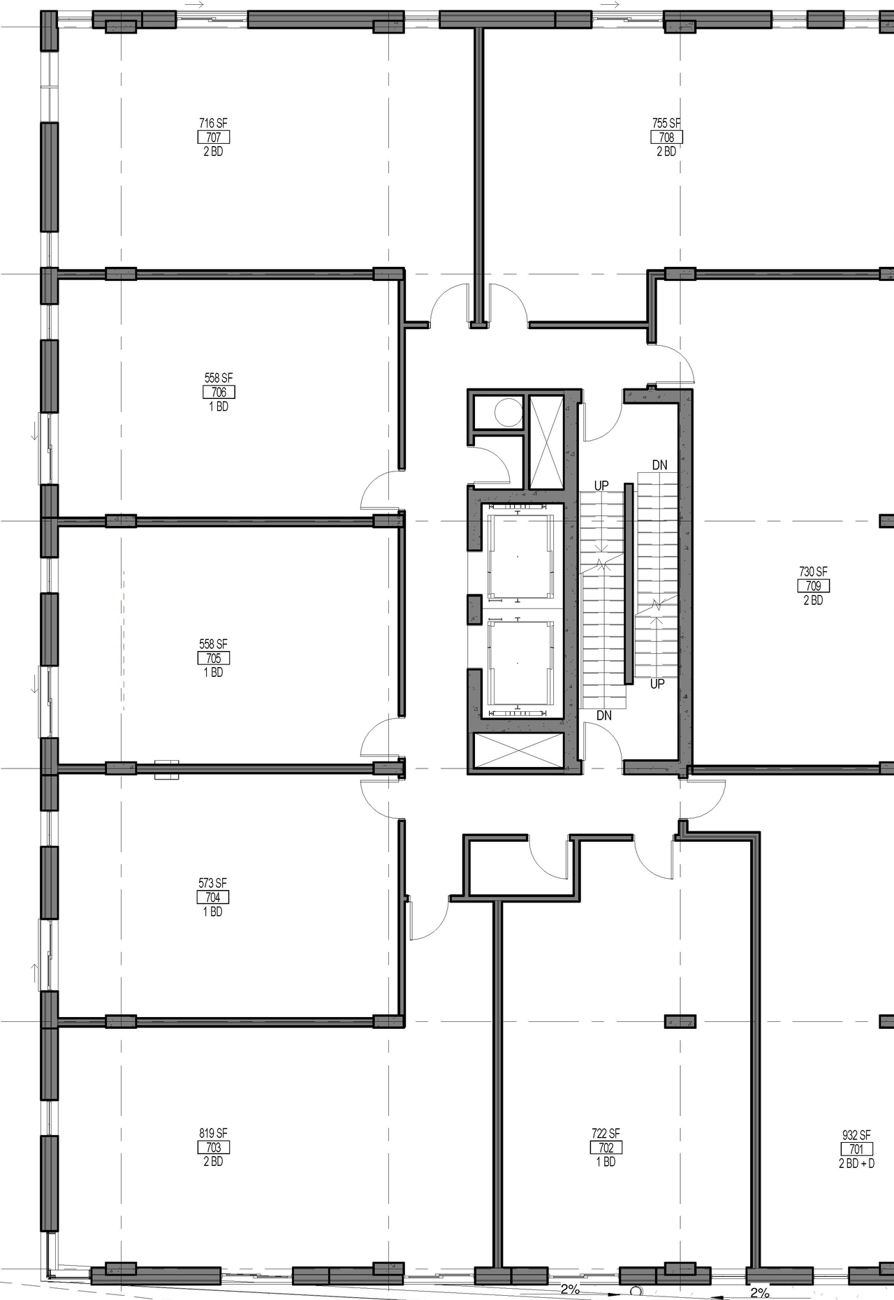
  • Floor plan for project from page 6 of the file '2022-10-07 - Floor Plans - D07-12-21-0094'
  • Floor plan for project from page 5 of the file '2021-06-29 - Floor Plans - D07-12-21-0094'
  • Floor plan for project from page 13 of the file '2021-06-29 - Urban Design Package - D07-12-21-0094'
  • Floor plan for project from page 4 of the file '2022-10-07 - Floor Plans - D07-12-21-0094'
  • Floor plan for project from page 3 of the file '2021-06-29 - Floor Plans - D07-12-21-0094'
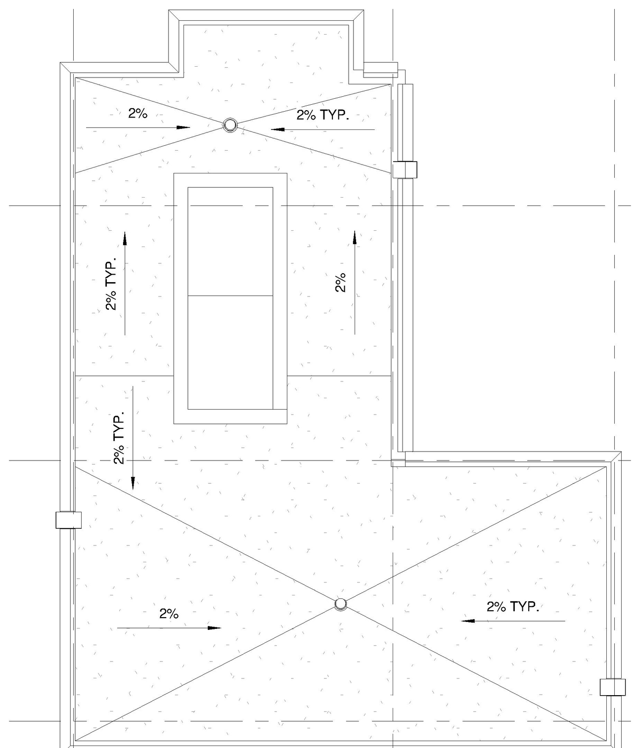
  • Floor plan for project from page 15 of the file '2021-06-29 - Urban Design Package - D07-12-21-0094'
  • Floor plan for project from page 3 of the file '2022-10-07 - Floor Plans - D07-12-21-0094'
  • Image from page 17 of the file '2021-06-29 - Urban Design Package - D07-12-21-0094'
  • Image from page 18 of the file '2021-06-29 - Urban Design Package - D07-12-21-0094'
  • Image from page 19 of the file '2021-06-29 - Urban Design Package - D07-12-21-0094'
  • Image from page 6 of the file '2022-10-07 - Floor Plans - D07-12-21-0094'
  • Construction site plan for project from page 21 of the file '2021-06-29 - Urban Design Package - D07-12-21-0094'
  • Construction site plan for project from page 24 of the file '2021-06-29 - Urban Design Package - D07-12-21-0094'
  • Construction site plan for project from page 25 of the file '2021-06-29 - Urban Design Package - D07-12-21-0094'
  • Construction site plan for project from page 25 of the file '2021-06-29 - Urban Design Package - D07-12-21-0094'
  • Construction site plan for project from page 1 of the file '2021-06-29 - Floor Plans - D07-12-21-0094'
  • Construction site plan for project from page 21 of the file '2021-06-29 - Urban Design Package - D07-12-21-0094'
  • Construction site plan for project from page 2 of the file '2022-10-07 - Floor Plans - D07-12-21-0094'
  • Construction site plan for project from page 1 of the file '2022-10-07 - Floor Plans - D07-12-21-0094'
  • Construction site plan for project from page 6 of the file '2021-06-29 - Floor Plans - D07-12-21-0094'
  • Floor plan for project from page 2 of the file '2022-05-11 - Floor Plans - D07-12-21-0094'
  • Floor plan for project from page 13 of the file '2021-06-29 - Urban Design Package - D07-12-21-0094'
  • Floor plan for project from page 1 of the file '2022-05-11 - Floor Plans - D07-12-21-0094'
  • Floor plan for project from page 3 of the file '2022-05-11 - Floor Plans - D07-12-21-0094'
  • Floor plan for project from page 6 of the file '2022-05-11 - Floor Plans - D07-12-21-0094'
  • Floor plan for project from page 2 of the file '2021-06-29 - Floor Plans - D07-12-21-0094'
  • Floor plan for project from page 5 of the file '2022-10-07 - Floor Plans - D07-12-21-0094'
  • Floor plan for project from page 6 of the file '2022-10-07 - Floor Plans - D07-12-21-0094'
  • Floor plan for project from page 5 of the file '2021-06-29 - Floor Plans - D07-12-21-0094'
  • Floor plan for project from page 13 of the file '2021-06-29 - Urban Design Package - D07-12-21-0094'
  • Floor plan for project from page 4 of the file '2022-10-07 - Floor Plans - D07-12-21-0094'
  • Floor plan for project from page 3 of the file '2021-06-29 - Floor Plans - D07-12-21-0094'
  • Floor plan for project from page 15 of the file '2021-06-29 - Urban Design Package - D07-12-21-0094'
  • Floor plan for project from page 3 of the file '2022-10-07 - Floor Plans - D07-12-21-0094'

Additional Information#

Date Initiated2021-06-29
WardWard 13 - Rawlson King

Documents#

TypeDocument
Application Summary2021-08-12 - Application Summary - D07-12-21-0094
Architectural Plans2024-01-05 - Approved Site Plan - D07-12-21-0094
Architectural Plans2024-01-05 - Approved Elevations - D07-12-21-0094
Architectural Plans2023-04-11 - Site Plan - D07-12-21-0094
Architectural Plans2022-10-07 - Site Plan - D07-12-21-0094
Architectural Plans2022-10-07 - Elevations - D07-12-21-0094
Architectural Plans2022-05-11 - Site Plan - D07-12-21-0094
Architectural Plans2022-05-11 - Elevations Plans - D07-12-21-0094
Architectural Plans2021-06-29 - Site Plan - D07-12-21-0094
Architectural Plans2021-06-29 - Elevations - D07-12-21-0094
Design Brief2021-06-29 - Urban Design Package - D07-12-21-0094
Design Brief2021-06-29 - Design Brief - D07-12-21-0094
Environmental2022-10-07 - Phase Two Environmental Site Assessment - D07-12-21-0094
Environmental2022-10-07 - Phase One Environmental Site Assessment - D07-12-21-0094
Environmental2021-07-28 - Phase 1 ESA - D07-12-21-0094
Environmental2021-06-29 - Phase 2 Environmental Site Assessment - D07-12-21-0094
Erosion And Sediment Control Plan2024-01-05 - Approved Erosion Control Plan & Detail Sheet - D07-12-21-0094
Erosion And Sediment Control Plan2023-04-11 - Erosion Control Plan & Detail Sheet - D07-12-21-0094
Erosion And Sediment Control Plan2022-10-07 - EROSION CONTROL PLAN - D07-12-21-0094
Erosion And Sediment Control Plan2022-05-11 - Erosion Control Plan & Detail Sheet - D07-12-21-0094
Erosion And Sediment Control Plan2021-06-29 - Erosion Control and Details Sheet - D07-12-21-0094
Existing Conditions2024-01-05 - Approved Existing Conditions & Removals Plan - D07-12-21-0094
Existing Conditions2023-04-11 - Existing Conditions & Removals Plan - D07-12-21-0094
Existing Conditions2022-10-07 - Existing Conditions & Removal Plan - D07-12-21-0094
Existing Conditions2022-05-11 - Existing Conditions & Removals Plan - D07-12-21-0094
Existing Conditions2021-06-29 - Existing Conditions and Removals Plan - D07-12-21-0094
Floor Plan2022-10-07 - Floor Plans - D07-12-21-0094
Floor Plan2022-05-11 - Floor Plans - D07-12-21-0094
Floor Plan2021-06-29 - Floor Plans - D07-12-21-0094
Geotechnical Report2024-01-05 - Approved Grading Plan - D07-12-21-0094
Geotechnical Report2023-04-11 - Grading Plan - D07-12-21-0094
Geotechnical Report2022-10-07 - Grading Plan - D07-12-21-0094
Geotechnical Report2022-05-11 - Grading Plan - D07-12-21-0094
Geotechnical Report2022-05-11 - Geotechnical Report - D07-12-21-0094
Geotechnical Report2022-05-11 - Geotechnical Memorandum - D07-12-21-0094
Geotechnical Report2021-06-29 - Grading Plan - D07-12-21-0094
Geotechnical Report2021-06-29 - Geotechnical Investigation - D07-12-21-0094
Landscape Plan2024-01-05 - Approved Landscape Plan - D07-12-21-0094
Landscape Plan2024-01-05 - Approved Landscape Details and Notes L300 & L301 - D07-12-21-0094
Landscape Plan2023-04-11 - Landscape Plan - D07-12-21-0094
Landscape Plan2023-04-11 - Landscape Details & Notes - D07-12-21-0094 (2)
Landscape Plan2023-04-11 - Landscape Details & Notes - D07-12-21-0094
Landscape Plan2022-10-07 - Landscape Plan - D07-12-21-0094 (2)
Landscape Plan2022-10-07 - Landscape Plan - D07-12-21-0094
Landscape Plan2022-10-07 - Landscape Details & Notes - D07-12-21-0094 (2)
Landscape Plan2022-10-07 - Landscape Details & Notes - D07-12-21-0094
Landscape Plan2022-05-11 - Landscape Plan - D07-12-21-0094
Landscape Plan2022-05-11 - Landscape Details & Notes (2) - D07-12-21-0094
Landscape Plan2022-05-11 - Landscape Details & Notes - D07-12-21-0094
Landscape Plan2021-06-29 - Landscape Plan and Details - D07-12-21-0094
Noise Study2021-06-29 - Noise Impact Study - D07-12-21-0094
Rendering2022-05-11 - View from Montreal Rd. - D07-12-21-0094
Site Servicing2024-01-05 - Approved Site Servicing Plan - D07-12-21-0094
Site Servicing2023-04-11 - Site Servicing Plan - D07-12-21-0094
Site Servicing2023-04-11 - Site Servicing Plan - D07-12-21-0094
Site Servicing2023-04-11 - Servicing & Stormwater Management Report - D07-12-21-0094
Site Servicing2022-10-07 - SITE SERVICING PLAN - D07-12-21-0094
Site Servicing2022-10-07 - Servicing & Stormwater Managment Report - D07-12-21-0094
Site Servicing2022-05-11 - Site Servicing Plan - D07-12-21-0094
Site Servicing2021-06-29 - Site Servicing Plan - D07-12-21-0094
Site Servicing2021-06-29 - Servicing and Stormwater Management Report - D07-12-21-0094
Stormwater Management2024-01-05 - Approved Storm Drainage Plan - D07-12-21-0094
Stormwater Management2023-04-11 - Storm Drainage Plan - D07-12-21-0094
Stormwater Management2022-10-07 - STORM DRAINAGE PLAN - D07-12-21-0094
Stormwater Management2022-05-11 - Stormwater Cistern Letter - D07-12-21-0094
Stormwater Management2022-05-11 - Storm Drainage Plan - D07-12-21-0094
Stormwater Management2021-06-29 - Storm Drainage Plan - D07-12-21-0094
Surveying2021-06-29 - Topographic Survey - D07-12-21-0094
Transportation Analysis2022-05-11 - Transportation Impact Assessment - D07-12-21-0094
Transportation Analysis2021-06-29 - Transportation Impact Assessment Screening Form - D07-12-21-0094
Tree Information and Conservation2024-01-05 - Approved Proposed Development & Tree Preservation Plan - D07-12-21-0094
Tree Information and Conservation2023-04-11 - Proposed Development & Tree Preservation Plan - D07-12-21-0094
Tree Information and Conservation2022-05-11 - Proposed Development & Tree Preservation Plan - D07-12-21-0094
Tree Information and Conservation2021-06-29 - Tree Preservation Plan - D07-12-21-0094
Wind Study2021-06-29 - Wind Study - D07-12-21-0094
2024-01-05 - Signed Delegated Authority Report - D07-12-21-0094
2022-05-11 - Technical Memorandum - Pavement Design on Parking Structure - D07-12-21-0094
2022-05-11 - Bike trac - Product Sheet - D07-12-21-0094