Ottawa Development Projects

1376 Carling Ave.#

Last updated: 2025-02-13 · ID: D07-12-21-0092

Summary#

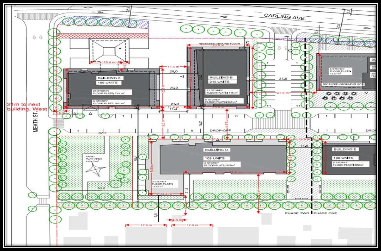
A Site Plan Control application to construct 2 high-rise mixed-use towers (20 and 22 storeys), and an 8 storey residential building has been submitted for approval.

Status
Post Approval (None)

Building Scale (Max.) Based on elevation drawings. Values may be approximate. See sources for exact figures.
High-rise · 20 storeys · 70.8 m

Renders#

Location#

Select a marker to view the address.

Site Plans, Elevations and Floor Plans#

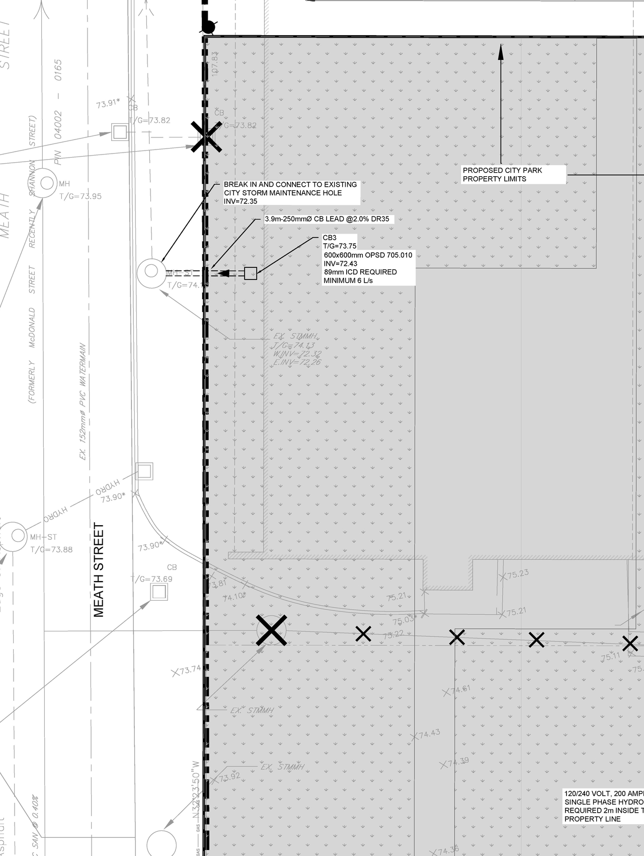
  • Image from page 77 of the file '2021-12-20 - REVISION 3 Site Servicing Design Brief - D07-12-21-0092'
  • Image from page 80 of the file '2021-12-20 - REVISION 3 Site Servicing Design Brief - D07-12-21-0092'
  • Image from page 77 of the file '2021-12-20 - REVISION 3 Site Servicing Design Brief - D07-12-21-0092'
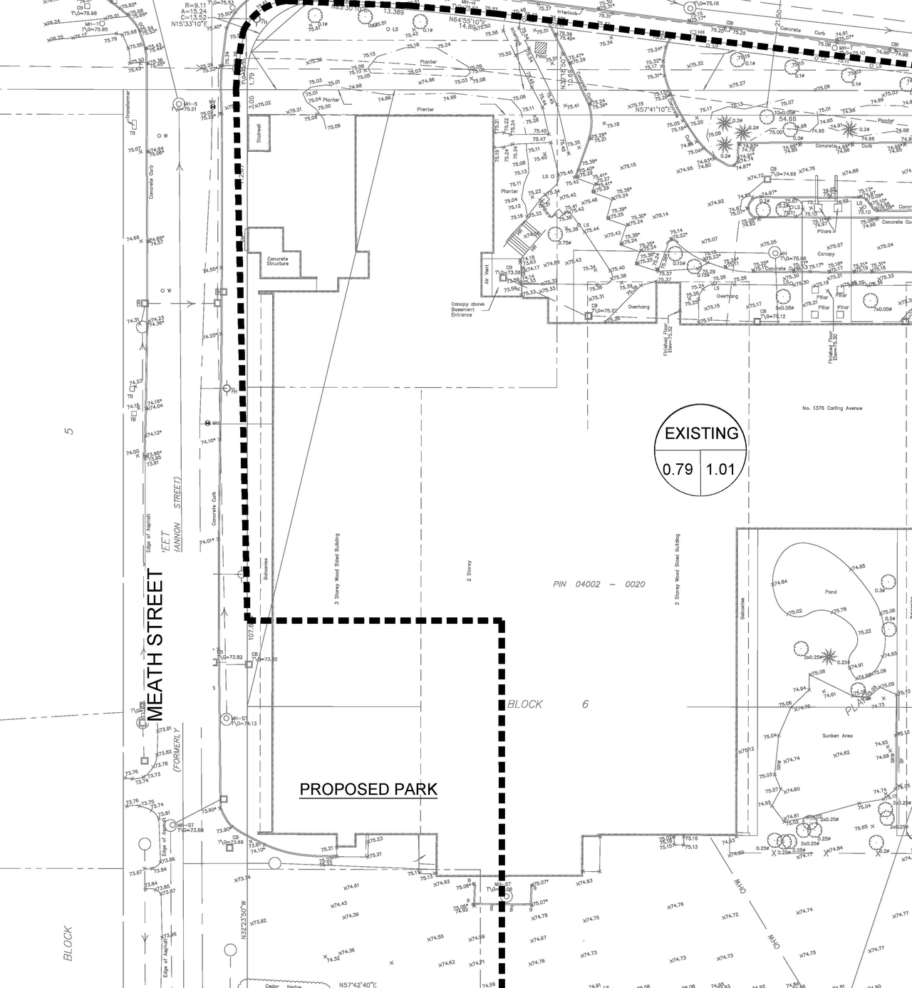
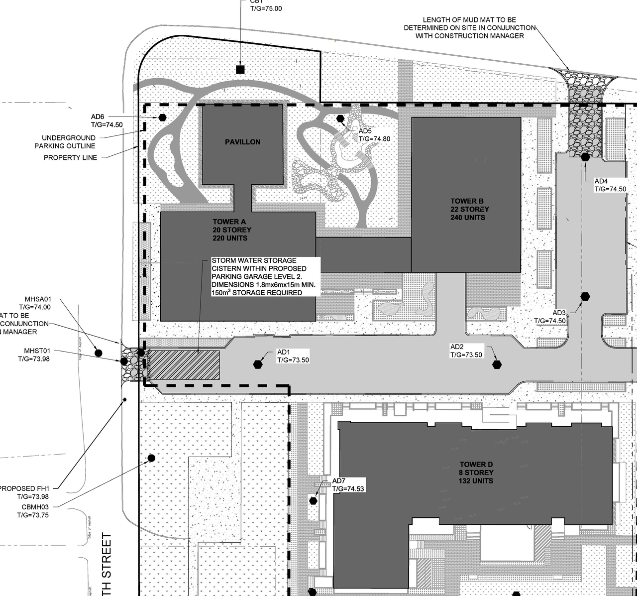
  • Construction site plan for project from page 20 of the file '2021-12-20 - REVISION 3 Site Servicing Design Brief - D07-12-21-0092'
  • Construction site plan for project from page 22 of the file '2021-12-20 - REVISION 3 Site Servicing Design Brief - D07-12-21-0092'
  • Construction site plan for project from page 29 of the file '2021-12-20 - REVISION 3 Site Servicing Design Brief - D07-12-21-0092'
  • Construction site plan for project from page 21 of the file '2021-12-20 - REVISION 3 Site Servicing Design Brief - D07-12-21-0092'
  • Construction site plan for project from page 9 of the file '2021-10-22 - MEMO Site Servicing Design Brief - D07-12-21-0092'
  • Construction site plan for project from page 10 of the file '2021-10-22 - MEMO Site Servicing Design Brief - D07-12-21-0092'
  • Construction site plan for project from page 24 of the file '2021-12-20 - REVISION 3 Site Servicing Design Brief - D07-12-21-0092'
  • Construction site plan for project from page 58 of the file '2021-12-20 - REVISION 3 Site Servicing Design Brief - D07-12-21-0092'
  • Construction site plan for project from page 12 of the file '2021-10-22 - MEMO Site Servicing Design Brief - D07-12-21-0092'
  • Construction site plan for project from page 23 of the file '2021-12-20 - REVISION 3 Site Servicing Design Brief - D07-12-21-0092'
  • Construction site plan for project from page 11 of the file '2021-10-22 - MEMO Site Servicing Design Brief - D07-12-21-0092'
  • Construction site plan for project from page 62 of the file '2021-12-20 - REVISION 3 Site Servicing Design Brief - D07-12-21-0092'
  • Construction site plan for project from page 59 of the file '2021-12-20 - REVISION 3 Site Servicing Design Brief - D07-12-21-0092'
  • Construction site plan for project from page 73 of the file '2021-12-20 - REVISION 3 Site Servicing Design Brief - D07-12-21-0092'
  • Image from page 77 of the file '2021-12-20 - REVISION 3 Site Servicing Design Brief - D07-12-21-0092'
  • Image from page 80 of the file '2021-12-20 - REVISION 3 Site Servicing Design Brief - D07-12-21-0092'
  • Image from page 77 of the file '2021-12-20 - REVISION 3 Site Servicing Design Brief - D07-12-21-0092'
  • Construction site plan for project from page 20 of the file '2021-12-20 - REVISION 3 Site Servicing Design Brief - D07-12-21-0092'
  • Construction site plan for project from page 22 of the file '2021-12-20 - REVISION 3 Site Servicing Design Brief - D07-12-21-0092'
  • Construction site plan for project from page 29 of the file '2021-12-20 - REVISION 3 Site Servicing Design Brief - D07-12-21-0092'
  • Construction site plan for project from page 21 of the file '2021-12-20 - REVISION 3 Site Servicing Design Brief - D07-12-21-0092'
  • Construction site plan for project from page 9 of the file '2021-10-22 - MEMO Site Servicing Design Brief - D07-12-21-0092'
  • Construction site plan for project from page 10 of the file '2021-10-22 - MEMO Site Servicing Design Brief - D07-12-21-0092'
  • Construction site plan for project from page 24 of the file '2021-12-20 - REVISION 3 Site Servicing Design Brief - D07-12-21-0092'
  • Construction site plan for project from page 58 of the file '2021-12-20 - REVISION 3 Site Servicing Design Brief - D07-12-21-0092'
  • Construction site plan for project from page 12 of the file '2021-10-22 - MEMO Site Servicing Design Brief - D07-12-21-0092'
  • Construction site plan for project from page 23 of the file '2021-12-20 - REVISION 3 Site Servicing Design Brief - D07-12-21-0092'
  • Construction site plan for project from page 11 of the file '2021-10-22 - MEMO Site Servicing Design Brief - D07-12-21-0092'
  • Construction site plan for project from page 62 of the file '2021-12-20 - REVISION 3 Site Servicing Design Brief - D07-12-21-0092'
  • Construction site plan for project from page 59 of the file '2021-12-20 - REVISION 3 Site Servicing Design Brief - D07-12-21-0092'
  • Construction site plan for project from page 73 of the file '2021-12-20 - REVISION 3 Site Servicing Design Brief - D07-12-21-0092'

Additional Information#

Date Initiated2021-06-23
WardWard 16 - Riley Brockington

Documents#

TypeDocument
Application Summary2021-07-12 - Application Summary - D07-12-21-0092
Architectural Plans2022-08-10 - Approved Site Plan - D07-12-21-0092
Architectural Plans2022-08-10 - Approved Signage and Pavement Marking Plan - D07-12-21-0092
Architectural Plans2022-08-10 - Approved Park Site Servicing Plan - D07-12-21-0092
Architectural Plans2022-08-10 - Approved Park Grading Plan - D07-12-21-0092
Architectural Plans2022-08-10 - Approved Japanese Pavilion Plans and Elevations - D07-12-21-0092
Architectural Plans2022-08-10 - Approved Functional Plan - D07-12-21-0092
Architectural Plans2022-08-10 - Approved Elevations - D07-12-21-0092
Architectural Plans2022-08-10 - Approved Basement 1 and 2 Plans A, B & D - D07-12-21-0092
Architectural Plans2021-12-20 - REVISION 3 Site Plan Package - D07-12-21-0092
Architectural Plans2021-12-20 - REVISION 3 Landscape Plans - D07-12-21-0092
Architectural Plans2021-12-20 - REVISION 3 Civil Plan for Park - D07-12-21-0092
Architectural Plans2021-12-20 - REVISION 3 Civil Plan - D07-12-21-0092
Architectural Plans2021-12-20 - MEMO 3 Grading Plan Review - D07-12-21-0092
Architectural Plans2021-10-22 - REVISED Site Plan Package - D07-12-21-0092
Architectural Plans2021-10-22 - MEMO Site Servicing Plans - D07-12-21-0092
Architectural Plans2021-06-23 - Site Plan Package - D07-12-21-0092
Architectural Plans2021-06-23 - Plan 4R - D07-12-21-0092
Architectural Plans2021-06-23 - Concept Plan - D07-12-21-0092
Civil Engineering Report2021-06-23 - Civil Plans 2 - D07-12-21-0092
Civil Engineering Report2021-06-23 - Civil Plans - D07-12-21-0092
Design Brief2021-12-20 - REVISION 3 Site Servicing Design Brief - D07-12-21-0092
Design Brief2021-10-22 - MEMO Site Servicing Design Brief - D07-12-21-0092
Environmental2022-08-10 - Approved Phase 1 ESA Update - D07-12-21-0092
Environmental2021-06-23 - Phase II Environmental Site Assessment - D07-12-21-0092
Environmental2021-06-23 - Phase 1 Environmental Site Assessment - D07-12-21-0092
Erosion And Sediment Control Plan2022-08-10 - Approved Erosion and Sediment Control Plan - D07-12-21-0092
Geotechnical Report2022-08-10 - Approved Grading Plan - D07-12-21-0092
Geotechnical Report2021-06-23 - Grading Plan - D07-12-21-0092
Geotechnical Report2021-06-23 - Geotechncial Investigation 2 - D07-12-21-0092
Geotechnical Report2021-06-23 - Geotechncial Investigation - D07-12-21-0092
Landscape Plan2022-08-10 - Approved Landscape Plans and Details - D07-12-21-0092
Landscape Plan2021-10-22 - REVISED Landscape Plans - D07-12-21-0092
Landscape Plan2021-06-23 - Landscape Report - D07-12-21-0092
Noise Study2021-06-21 - Noise Feasibility Study - D07-12-21-0092
Notification2024-05-03 - Commence Work Notification - Registration of Agreement - D07-12-21-0092
Site Servicing2022-08-10 - Approved Site Servicing Plan - D07-12-21-0092
Site Servicing2022-08-10 - Approved Site Servicing and SWM Design Brief - D07-12-21-0092
Site Servicing2021-10-22 - REVISED Site Servicing Plans - D07-12-21-0092
Site Servicing2021-10-22 - REVISED Site Servicing Design Brief - D07-12-21-0092
Site Servicing2021-06-23 - Site Servicing Brief - D07-12-21-0092
Site Servicing2021-06-23 - Site Servicing and Stormwater Management Design Brief - D07-12-21-0092
Site Servicing2025-02-12 - Site Servicing Plan - D07-12-21-0092
Stormwater Management2022-08-10 - Approved Proposed Storm Drainage Plan - D07-12-21-0092
Stormwater Management2022-08-10 - Approved Proposed Park Storm Drainage Plan - D07-12-21-0092
Surveying2021-06-23 - Topographical - D07-12-21-0092
Transportation Analysis2021-06-23 - Transportation Impact Assessment Addendum - D07-12-21-0092
Tree Information and Conservation2022-08-10 - Approved Tree Preservation Plan and Details - D07-12-21-0092
Tree Information and Conservation2022-08-10 - Approved Tree Permit - D07-12-21-0092
Tree Information and Conservation2021-12-20 - MEMO 3 Tree Planting Restrictions - D07-12-21-0092
Wind Study2021-06-23 - Wind Study - D07-12-21-0092
2022-08-10 - Delegated Authority Report SIGNED - D07-12-21-0092
2022-08-10 - Approved Vehicle Turning Template - D07-12-21-0092
2022-08-10 - Approved Sampling and Analysis Plan Phase 2 ESA - D07-12-21-0092
2022-08-10 - Approved Park Site Servicing Memo - D07-12-21-0092
2022-08-10 - Approved Meath Street Closure Conditions - D07-12-21-0092
2022-08-10 - Approved Archibald Street and Meath Street Closures - D07-12-21-0092
2021-12-20 - MEMO 3 Site Servicing Brief for Park - D07-12-21-0092
2021-12-20 - MEMO 3 Geotechnical Recommendations for Park - D07-12-21-0092
2021-10-22 - REVISED Phase II ESA - D07-12-21-0092
2021-10-22 - REVISED Phase I ESA - D07-12-21-0092
2021-06-23 - Memo Geotechnical Review - D07-12-21-0092
2021-06-23 - Building Height Certificate - D07-12-21-0092