1435-1455 Morisset Ave.#
Last updated: 2025-03-07 · ID: D07-12-21-0091
Summary#
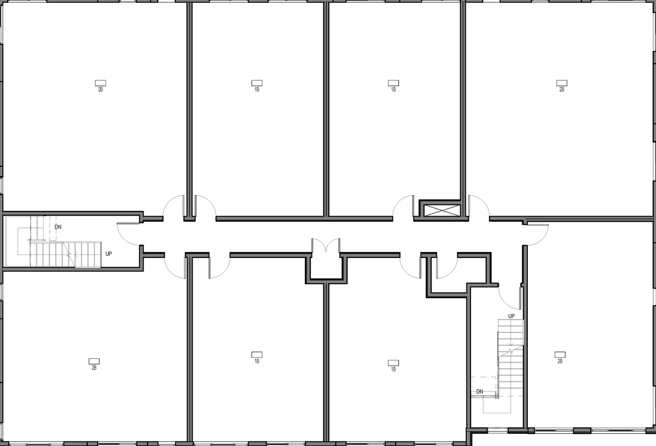
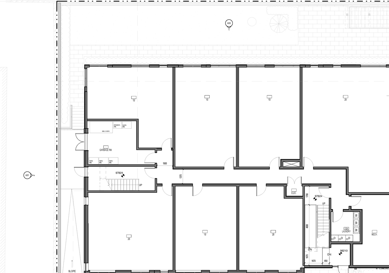
4-storey residential building with 31 units and 2373.3M2 GFA.
Status
Post Approval (Receipt of Agreement from Owner Pending)
Building Scale (Max.)
Based on elevation drawings. Values may be approximate. See sources for exact figures.
Mid-rise · 4 storeys
· 11.94 m
Location#
Select a marker to view the address.
Site Plans, Elevations and Floor Plans#
Additional Information#
| Date Initiated | 2021-06-23 |
| Ward | Ward 16 - Riley Brockington |
| All Addresses | 1435 Morisset Ave. 1455 Morisset Ave. |


