Ottawa Development Projects

729 Ridgewood Ave.#

Last updated: 2025-12-02 · ID: D07-12-21-0089

Summary#

5 buildings proposed as residential with commercial components at the ground floor. Heights ranging from 4-15 storeys with three levels of underground parking and 567 spaces in addition to 198 bicycle parking spaces.

Status
Post Approval (Receipt of Agreement from Owner Pending)

Building Scale (Max.) Based on elevation drawings. Values may be approximate. See sources for exact figures.
Low-rise · 1 storey

Renders#

Location#

Select a marker to view the address.

Site Plans, Elevations and Floor Plans#

Additional Information#

Date Initiated2021-06-22
WardWard 16 - Riley Brockington

Documents#

TypeDocument
Application Summary2021-08-19 - Application Summary - D07-12-21-0089
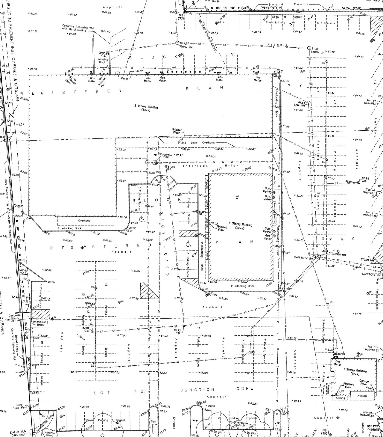
Architectural Plans2024-02-08- Exisiting Conditions Plan - D07-12-21-0089
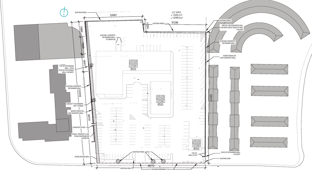
Architectural Plans2024-02-08 - Site Plan - D07-12-21-0089
Architectural Plans2024-02-08 - Sanitary Drainage Plan - D07-12-21-0089
Architectural Plans2024-02-08 - Notes and Legends Plan - D07-12-21-0089
Architectural Plans2024-02-08 - Elevations - D07-12-21-0089 (5)
Architectural Plans2024-02-08 - Elevations - D07-12-21-0089 (4)
Architectural Plans2024-02-08 - Elevations - D07-12-21-0089 (3)
Architectural Plans2024-02-08 - Elevations - D07-12-21-0089 (2)
Architectural Plans2024-02-08 - Elevations - D07-12-21-0089
Architectural Plans2023-07-12 - Notes and Legends Plan - D07-12-21-0089
Architectural Plans2023-07-12 - Amenity Area Site Plan - D07-12-21-0089
Architectural Plans2022-08-05 - Sanitary Drainage Plan - D07-12-21-0089
Architectural Plans2022-08-05 - Notes and Legends Plan - D07-12-21-0089
Architectural Plans2022-08-05 - MEMO Grading Plan Review - D07-12-21-0089
Architectural Plans2022-08-05 - Architectural Package - D07-12-21-0089
Architectural Plans2021-06-22 - Sanatary Drainage Plan - D07-12-21-0089
Architectural Plans2021-06-22 - Plan Brochure - D07-12-21-0089
Architectural Plans2021-06-22 - Notes and Legend Plan -D07-12-21-0089
Architectural Plans2025-03-14 - Site service Plan - D07-12-21-0089
Architectural Plans2025-03-14 - Site Plan - D07-12-21-0089
Architectural Plans2025-03-14 - Sanitary Drainage Plan - D07-12-21-0089
Architectural Plans2025-03-14 - R22-A401 - Elevations(Bld1+2) - D07-12-21-0089
Architectural Plans2025-03-14 - Elevations(Bld1+2) - D07-12-21-0089
Architectural Plans2025-03-14 - Bloc2 Elevations 401 - D07-12-21-0089
Architectural Plans2025-03-14 - Bloc2 Elevations - D07-12-21-0089
Architectural Plans2025-03-14 - Bloc1 Elevations - D07-12-21-0089
Design Brief2022-08-05 - Design Brief - D07-12-21-0089
Environmental2021-06-22 - Phase Two Environmental Site Assessment - D07-12-21-0089
Environmental2021-06-22 - Phase One Environmental Site Assessment - D07-12-21-0089
Erosion And Sediment Control Plan2024-02-08 - Erosion Control Plan and Detail Sheet - D07-12-21-0089
Erosion And Sediment Control Plan2023-07-12 - Erosion Control Plan and Data Sheet - D07-12-21-0089
Erosion And Sediment Control Plan2022-08-05 - Erosion Control Plan - D07-12-21-0089
Erosion And Sediment Control Plan2021-06-22 - Erosion Control Plan and Detail Sheet - D07-12-21-0089
Erosion And Sediment Control Plan2025-03-14 - Erosion control and detail plans - D07-12-21-0089
Existing Conditions2023-07-12 - Existing Conditions Plan - D07-12-21-0089
Existing Conditions2022-08-05 - Existing Conditions Plan - D07-12-21-0089
Existing Conditions2021-06-22 - Existing Conditions Plan - D07-12-21-0089
Existing Conditions2025-03-14 - Existing Conditions - D07-12-21-0089
Geotechnical Report2024-02-08 - Grading Plan - D07-12-21-0089
Geotechnical Report2023-07-12 - Grading Plan - D07-12-21-0089
Geotechnical Report2022-08-05 - Grading Plan - D07-12-21-0089
Geotechnical Report2021-06-22 - Grading Plan - D07-12-21-0089
Geotechnical Report2021-06-22 - Geotechnical Investigation - D07-12-21-0089
Geotechnical Report2025-03-14 - Grading Plan - D07-12-21-0089
Landscape Plan2024-02-08 - Landscape Drawings - D07-12-21-0089
Landscape Plan2023-07-12 - Landscape Plan - D07-12-21-0089 (2)
Landscape Plan2023-07-12 - Landscape Plan - D07-12-21-0089
Landscape Plan2022-08-05 - Landscape Plan - D07-12-21-0089
Landscape Plan2021-06-22 - Landscape Plan - D07-12-21-0089
Landscape Plan2025-03-14 - Landscape Plan(stamped) - D07-12-21-0089
Noise Study2021-06-22 - Roadway Traffic Noise Assessment - D07-12-21-0089
Planning2023-07-12 - Planning Rationale -D07-12-21-0089
Planning2022-08-05 - Planning Rationale Addendum - D07-12-21-0089
Planning2021-06-22 - Planning Rationale and Design Brief - D07-12-21-0089
Site Servicing2024-02-08 - Site Servicing Plan - D07-12-21-0089
Site Servicing2023-07-12 - Site Servicing Plan - D07-12-21-0089
Site Servicing2022-08-05 - Site Servicing Plan - D07-12-21-0089
Site Servicing2022-08-05 - Site Servicing and SWM Report - D07-12-21-0089
Site Servicing2021-06-22 - Site Servicing Plan - D07-12-21-0089
Site Servicing2021-06-22 - Site Servicing and Stormwater Brief - D07-12-21-0089
Stormwater Management2024-02-08 - Storm Drainage Plan - D07-12-21-0089
Stormwater Management2023-07-12 - Storm Drainage Plan - D07-12-21-0089
Stormwater Management2022-08-05 - Storm Drainage Plan - D07-12-21-0089
Stormwater Management2021-06-22 - Storm Drainage Plan - D07-12-21-0089
Stormwater Management2025-03-14 - Storm Drainage - D07-12-21-0089
Surveying2021-06-22 - Surveying and Land Information Services - D07-12-21-0089
Surveying2025-03-14 - Topgraphic survey - D07-12-21-0089
Surveying2025-03-14 - Topographic survey updated - D07-12-21-0089
Transportation Analysis2024-02-08 - Transportation Impact Assessment - D07-12-21-0089
Transportation Analysis2021-09-17 - Transportation Impact Assessment - D07-12-21-0089
Tree Information and Conservation2021-06-22 - Tree Conservation Report - D07-12-21-0089
2023-07-12 - Project Report - D07-12-21-0089
2023-07-12 - Amenity Area Statistics -D07-12-21-0089
2022-08-05 - MEMO Pavement Structure - D07-12-21-0089
2021-06-22 - Brochure - D07-12-21-0089
2025-03-14 - Notes and Legends - D07-12-21-0089
2025-03-14 - Delegated Authority Report (final) - D07-12-21-0089