Ottawa Development Projects

797 Richmond Rd.#

Last updated: 2023-11-08 · ID: D07-12-21-0088

Summary#

9 storey mixed-use building with ground floor commercial spaces and 8 storeys of apartment units. Two levels of underground parking to serve as visiot parking for proposed 60 residential units.

Status
Post Approval (Receipt of Agreement from Owner Pending)

Building Scale (Max.) Based on elevation drawings. Values may be approximate. See sources for exact figures.
High-rise · 10 storeys · 31.5 m

Renders#

  • Rendering of building from page 24 of the file '2021-06-21 - Design Brief - D07-12-21-0088'
  • Rendering of building from page 24 of the file '2021-06-21 - Design Brief - D07-12-21-0088'
  • Rendering of building from page 24 of the file '2021-06-21 - Design Brief - D07-12-21-0088'
  • Rendering of building from page 27 of the file '2021-06-21 - Design Brief - D07-12-21-0088'
  • Rendering of building from page 1 of the file '2021-06-21 - Design Brief - D07-12-21-0088'
  • Rendering of building from page 16 of the file '2021-06-21 - Design Brief - D07-12-21-0088'
  • Rendering of building from page 14 of the file '2021-06-21 - Design Brief - D07-12-21-0088'
  • Rendering of building from page 24 of the file '2021-06-21 - Design Brief - D07-12-21-0088'
  • Rendering of building from page 11 of the file '2021-06-21 - Design Brief - D07-12-21-0088'
  • Rendering of building from page 21 of the file '2021-06-21 - Design Brief - D07-12-21-0088'
  • Rendering of building from page 1 of the file '2022-06-03 - Perspectives - D07-12-21-0088'
  • Rendering of building from page 19 of the file '2021-06-21 - Design Brief - D07-12-21-0088'
  • Rendering of building from page 10 of the file '2021-06-21 - Design Brief - D07-12-21-0088'
  • Rendering of building from page 9 of the file '2021-06-21 - Design Brief - D07-12-21-0088'
  • Rendering of building from page 17 of the file '2021-06-21 - Design Brief - D07-12-21-0088'
  • Rendering of building from page 15 of the file '2021-06-21 - Design Brief - D07-12-21-0088'
  • Rendering of building from page 12 of the file '2021-06-21 - Design Brief - D07-12-21-0088'
  • Rendering of building from page 18 of the file '2021-06-21 - Design Brief - D07-12-21-0088'
  • Rendering of building from page 24 of the file '2021-06-21 - Design Brief - D07-12-21-0088'
  • Rendering of building from page 20 of the file '2021-06-21 - Design Brief - D07-12-21-0088'
  • Rendering of building from page 22 of the file '2021-06-21 - Design Brief - D07-12-21-0088'
  • Rendering of building from page 7 of the file '2021-06-21 - Design Brief - D07-12-21-0088'
  • Rendering of building from page 8 of the file '2021-06-21 - Design Brief - D07-12-21-0088'
  • Rendering of building from page 24 of the file '2021-06-21 - Design Brief - D07-12-21-0088'
  • Rendering of building from page 24 of the file '2021-06-21 - Design Brief - D07-12-21-0088'
  • Rendering of building from page 24 of the file '2021-06-21 - Design Brief - D07-12-21-0088'
  • Rendering of building from page 27 of the file '2021-06-21 - Design Brief - D07-12-21-0088'
  • Rendering of building from page 1 of the file '2021-06-21 - Design Brief - D07-12-21-0088'
  • Rendering of building from page 16 of the file '2021-06-21 - Design Brief - D07-12-21-0088'
  • Rendering of building from page 14 of the file '2021-06-21 - Design Brief - D07-12-21-0088'
  • Rendering of building from page 24 of the file '2021-06-21 - Design Brief - D07-12-21-0088'
  • Rendering of building from page 11 of the file '2021-06-21 - Design Brief - D07-12-21-0088'
  • Rendering of building from page 21 of the file '2021-06-21 - Design Brief - D07-12-21-0088'
  • Rendering of building from page 1 of the file '2022-06-03 - Perspectives - D07-12-21-0088'
  • Rendering of building from page 19 of the file '2021-06-21 - Design Brief - D07-12-21-0088'
  • Rendering of building from page 10 of the file '2021-06-21 - Design Brief - D07-12-21-0088'
  • Rendering of building from page 9 of the file '2021-06-21 - Design Brief - D07-12-21-0088'
  • Rendering of building from page 17 of the file '2021-06-21 - Design Brief - D07-12-21-0088'
  • Rendering of building from page 15 of the file '2021-06-21 - Design Brief - D07-12-21-0088'
  • Rendering of building from page 12 of the file '2021-06-21 - Design Brief - D07-12-21-0088'
  • Rendering of building from page 18 of the file '2021-06-21 - Design Brief - D07-12-21-0088'
  • Rendering of building from page 24 of the file '2021-06-21 - Design Brief - D07-12-21-0088'
  • Rendering of building from page 20 of the file '2021-06-21 - Design Brief - D07-12-21-0088'
  • Rendering of building from page 22 of the file '2021-06-21 - Design Brief - D07-12-21-0088'
  • Rendering of building from page 7 of the file '2021-06-21 - Design Brief - D07-12-21-0088'
  • Rendering of building from page 8 of the file '2021-06-21 - Design Brief - D07-12-21-0088'

Location#

Select a marker to view the address.

Site Plans, Elevations and Floor Plans#

  • Image from page 30 of the file '2021-06-21 - Design Brief - D07-12-21-0088'
  • Image from page 28 of the file '2021-06-21 - Design Brief - D07-12-21-0088'
  • Image from page 31 of the file '2021-06-21 - Design Brief - D07-12-21-0088'
  • Image from page 29 of the file '2021-06-21 - Design Brief - D07-12-21-0088'
  • Image from page 1 of the file '2022-06-03 - Perspectives - D07-12-21-0088'
  • Image from page 1 of the file '2022-06-03 - Perspectives - D07-12-21-0088'
  • Image from page 24 of the file '2021-06-21 - Design Brief - D07-12-21-0088'
  • Construction site plan for project from page 47 of the file '2021-06-21 - Design Brief - D07-12-21-0088'
  • Construction site plan for project from page 26 of the file '2021-06-21 - Design Brief - D07-12-21-0088'
  • Construction site plan for project from page 23 of the file '2021-06-21 - Design Brief - D07-12-21-0088'
  • Construction site plan for project from page 46 of the file '2021-06-21 - Design Brief - D07-12-21-0088'
  • Construction site plan for project from page 52 of the file '2021-06-21 - Design Brief - D07-12-21-0088'
  • Construction site plan for project from page 52 of the file '2021-06-21 - Design Brief - D07-12-21-0088'
  • Floor plan for project from page 1 of the file '2022-06-03 - P2 Floor Plan - D07-12-21-0088'
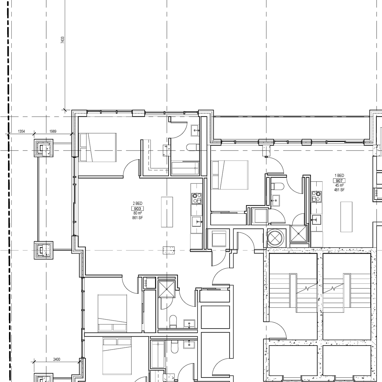
  • Floor plan for project from page 1 of the file '2022-06-03 - 9th Floor Plan - D07-12-21-0088'
  • Floor plan for project from page 39 of the file '2021-06-21 - Design Brief - D07-12-21-0088'
  • Floor plan for project from page 36 of the file '2021-06-21 - Design Brief - D07-12-21-0088'
  • Floor plan for project from page 1 of the file '2022-06-03 - 8th Floor Plan - D07-12-21-0088'
  • Floor plan for project from page 35 of the file '2021-06-21 - Design Brief - D07-12-21-0088'
  • Floor plan for project from page 33 of the file '2021-06-21 - Design Brief - D07-12-21-0088'
  • Floor plan for project from page 37 of the file '2021-06-21 - Design Brief - D07-12-21-0088'
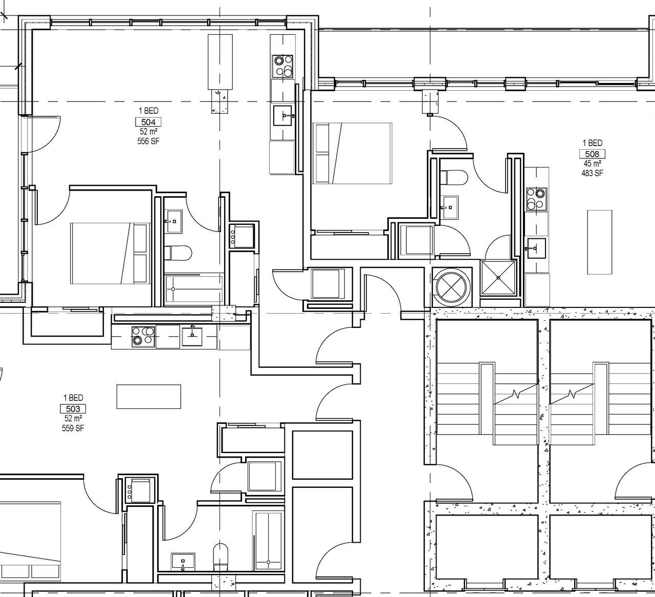
  • Floor plan for project from page 1 of the file '2022-06-03 - 5th Floor Plan - D07-12-21-0088'
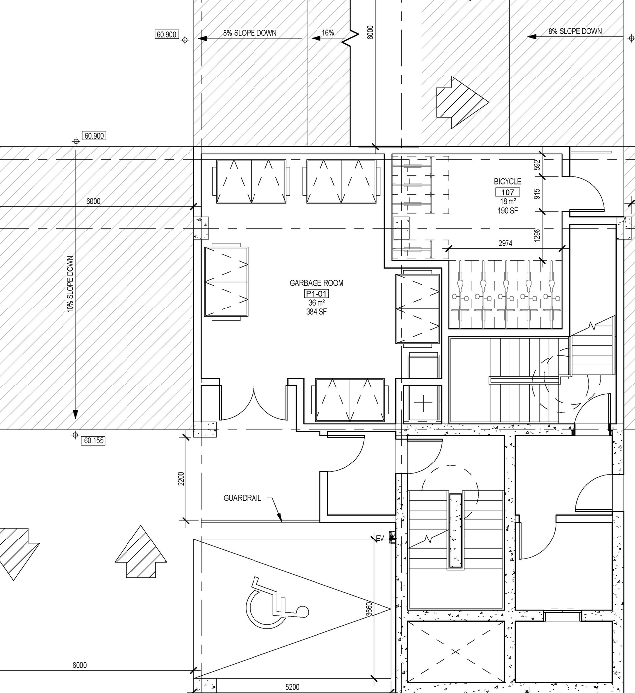
  • Floor plan for project from page 1 of the file '2022-06-03 - P1 Floor Plan - D07-12-21-0088'
  • Floor plan for project from page 34 of the file '2021-06-21 - Design Brief - D07-12-21-0088'
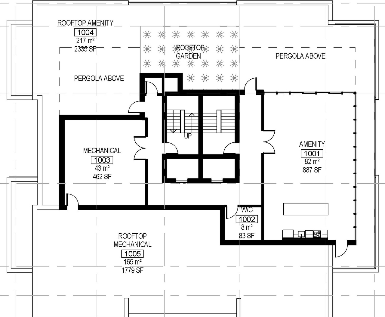
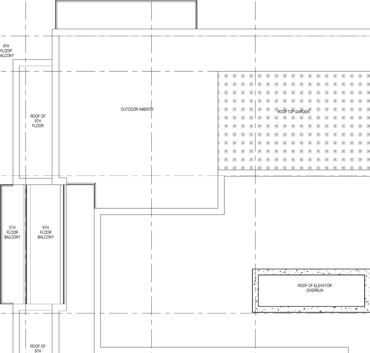
  • Floor plan for project from page 1 of the file '2022-06-03 - Roof Floor Plan - D07-12-21-0088'
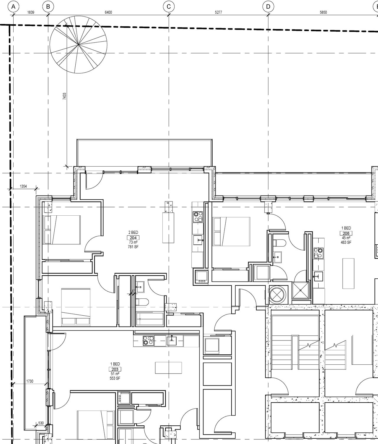
  • Floor plan for project from page 1 of the file '2022-06-03 - 2nd Floor Plan - D07-12-21-0088'
  • Floor plan for project from page 40 of the file '2021-06-21 - Design Brief - D07-12-21-0088'
  • Floor plan for project from page 43 of the file '2021-06-21 - Design Brief - D07-12-21-0088'
  • Image from page 30 of the file '2021-06-21 - Design Brief - D07-12-21-0088'
  • Image from page 28 of the file '2021-06-21 - Design Brief - D07-12-21-0088'
  • Image from page 31 of the file '2021-06-21 - Design Brief - D07-12-21-0088'
  • Image from page 29 of the file '2021-06-21 - Design Brief - D07-12-21-0088'
  • Image from page 1 of the file '2022-06-03 - Perspectives - D07-12-21-0088'
  • Image from page 1 of the file '2022-06-03 - Perspectives - D07-12-21-0088'
  • Image from page 24 of the file '2021-06-21 - Design Brief - D07-12-21-0088'
  • Construction site plan for project from page 47 of the file '2021-06-21 - Design Brief - D07-12-21-0088'
  • Construction site plan for project from page 26 of the file '2021-06-21 - Design Brief - D07-12-21-0088'
  • Construction site plan for project from page 23 of the file '2021-06-21 - Design Brief - D07-12-21-0088'
  • Construction site plan for project from page 46 of the file '2021-06-21 - Design Brief - D07-12-21-0088'
  • Construction site plan for project from page 52 of the file '2021-06-21 - Design Brief - D07-12-21-0088'
  • Construction site plan for project from page 52 of the file '2021-06-21 - Design Brief - D07-12-21-0088'
  • Floor plan for project from page 1 of the file '2022-06-03 - P2 Floor Plan - D07-12-21-0088'
  • Floor plan for project from page 1 of the file '2022-06-03 - 9th Floor Plan - D07-12-21-0088'
  • Floor plan for project from page 39 of the file '2021-06-21 - Design Brief - D07-12-21-0088'
  • Floor plan for project from page 36 of the file '2021-06-21 - Design Brief - D07-12-21-0088'
  • Floor plan for project from page 1 of the file '2022-06-03 - 8th Floor Plan - D07-12-21-0088'
  • Floor plan for project from page 35 of the file '2021-06-21 - Design Brief - D07-12-21-0088'
  • Floor plan for project from page 33 of the file '2021-06-21 - Design Brief - D07-12-21-0088'
  • Floor plan for project from page 37 of the file '2021-06-21 - Design Brief - D07-12-21-0088'
  • Floor plan for project from page 1 of the file '2022-06-03 - 5th Floor Plan - D07-12-21-0088'
  • Floor plan for project from page 1 of the file '2022-06-03 - P1 Floor Plan - D07-12-21-0088'
  • Floor plan for project from page 34 of the file '2021-06-21 - Design Brief - D07-12-21-0088'
  • Floor plan for project from page 1 of the file '2022-06-03 - Roof Floor Plan - D07-12-21-0088'
  • Floor plan for project from page 1 of the file '2022-06-03 - 2nd Floor Plan - D07-12-21-0088'
  • Floor plan for project from page 40 of the file '2021-06-21 - Design Brief - D07-12-21-0088'
  • Floor plan for project from page 43 of the file '2021-06-21 - Design Brief - D07-12-21-0088'

Additional Information#

Date Initiated2021-06-21
WardWard 7 - Theresa Kavanagh

Documents#

TypeDocument
Application Summary2021-08-25 - Application Summary - D07-12-21-0088
Architectural Plans2023-04-13 - Approved Site Plan - D07-12-21-0088
Architectural Plans2023-04-13 - Approved Pre and Post Development Drainage Plan - D07-12-21-0088
Architectural Plans2023-04-13 - Approved North and South Elevations - D07-12-21-0088
Architectural Plans2023-04-13 - Approved East and West Elevations Plan - D07-12-21-0088
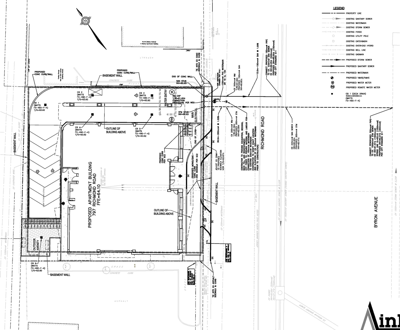
Architectural Plans2022-06-03 - Site Plan at Ground Floor - D07-12-21-0088
Architectural Plans2022-06-03 - Site Plan - D07-12-21-0088
Architectural Plans2022-06-03 - Site & Floor & Elevations Plans - D07-12-21-0088
Architectural Plans2022-06-03 - Pre & Post Development Drainage Plan - D07-12-21-0088
Architectural Plans2022-06-03 - North & South Elevations Plan - D07-12-21-0088
Architectural Plans2022-06-03 - East & West Elevations Plan - D07-12-21-0088
Architectural Plans2022-02-08- Site & Floor & Elevations Plans - D07-12-21-0088
Architectural Plans2022-02-08 - Engineering Plans - D07-12-21-0088
Architectural Plans2021-06-21 - Site Plan - D07-12-21-0088
Architectural Plans2021-06-21 - Plan Showing Layout of Parking Garage - D07-12-21-0088
Architectural Plans2021-06-21 - Engineering Plans - D07-12-21-0088
Architectural Plans2021-06-21 - Architectural Building Elevations - D07-12-21-0088
Design Brief2021-06-21 - Design Brief - D07-12-21-0088
Drainage Plan2022-09-07 - Drainage Area Plan - D07-12-21-0088
Environmental2021-06-21 - Phase II Environmental Assessment - D07-12-21-0088
Environmental2021-06-21 - Phase 1 Environmental Site Assessment - D07-12-21-0088
Erosion And Sediment Control Plan2023-04-13 - Approved Erosion and Sediment Control Plan - D07-12-21-0088
Erosion And Sediment Control Plan2022-06-03 - Erosion & Sediment Control Plan - D07-12-21-0088
Existing Conditions2023-04-13 - Approved Existing Conditions and Removals Plan - D07-12-21-0088
Floor Plan2022-06-03 - Roof Floor Plan - D07-12-21-0088
Floor Plan2022-06-03 - P2 Floor Plan - D07-12-21-0088
Floor Plan2022-06-03 - P1 Floor Plan - D07-12-21-0088
Floor Plan2022-06-03 - Mechanical & Amenity Floor Plan - D07-12-21-0088
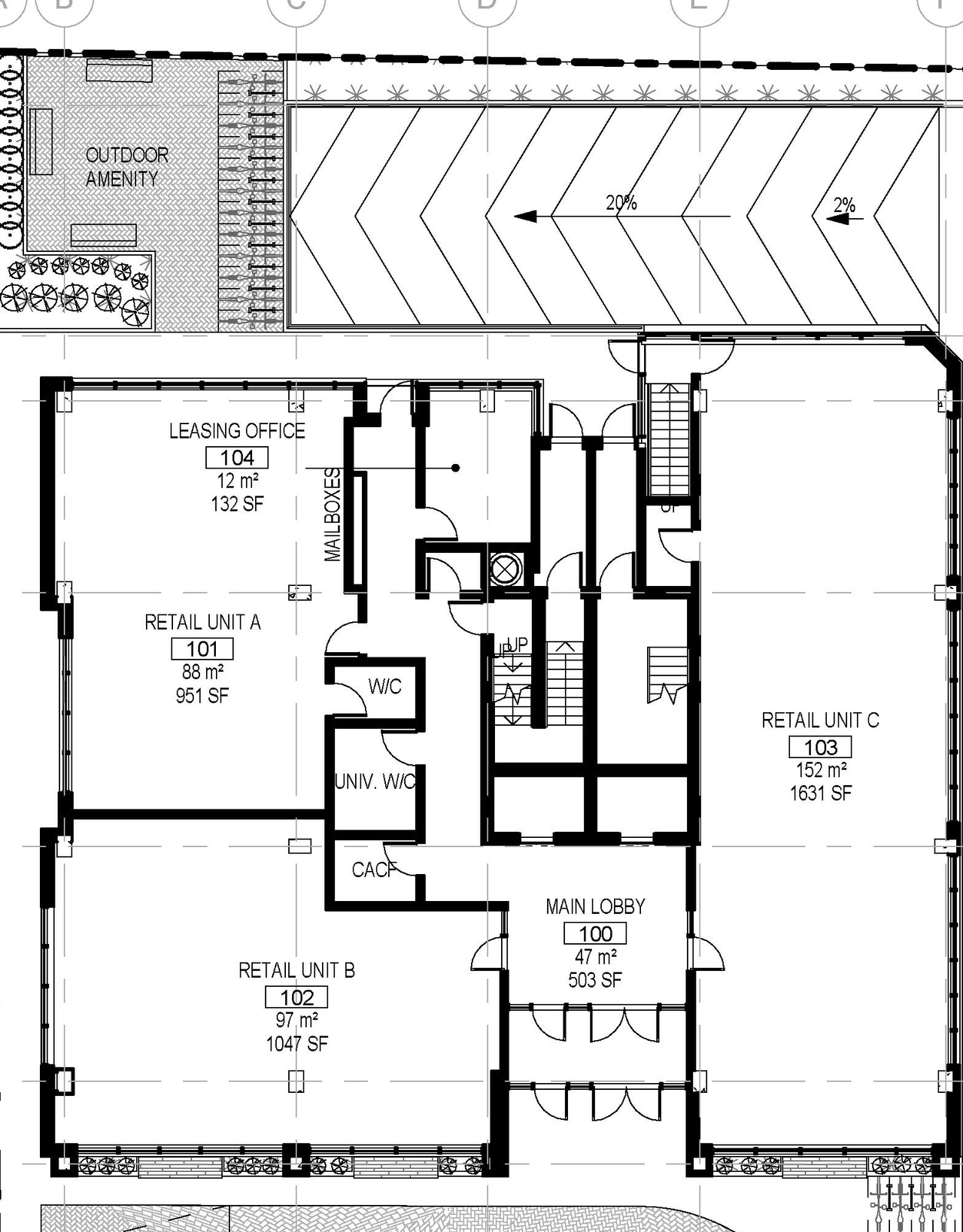
Floor Plan2022-06-03 - Ground Floor Plan - D07-12-21-0088
Floor Plan2022-06-03 - 9th Floor Plan - D07-12-21-0088
Floor Plan2022-06-03 - 8th Floor Plan - D07-12-21-0088
Floor Plan2022-06-03 - 7th Floor Plan - D07-12-21-0088
Floor Plan2022-06-03 - 6th Floor Plan - D07-12-21-0088
Floor Plan2022-06-03 - 5th Floor Plan - D07-12-21-0088
Floor Plan2022-06-03 - 4th Floor Plan - D07-12-21-0088
Floor Plan2022-06-03 - 3rd Floor Plan - D07-12-21-0088
Floor Plan2022-06-03 - 2nd Floor Plan - D07-12-21-0088
Geotechnical Report2023-04-13 - Approved Grading and Drainage Plan - D07-12-21-0088
Geotechnical Report2022-06-03 - Grading & Drainage Plan - D07-12-21-0088
Geotechnical Report2022-02-08 - Geotechnical Investigation - D07-12-21-0088
Geotechnical Report2021-06-21 - Geotechnical - D07-12-21-0088
Landscape Plan2022-06-03 - Landscape Plan - D07-12-21-0088
Landscape Plan2022-02-08 - Landscape Plan - D07-12-21-0088
Landscape Plan2021-06-21 - Landscape Plan - D07-12-21-0088
Noise Study2021-06-21 - Noise Study - D07-12-21-0088
Planning2021-06-21 - Planning Rationale - D07-12-21-0088
Rendering2022-06-03 - Perspectives - D07-12-21-0088
Site Servicing2023-04-13 - Approved Site Servicing Plan - D07-12-21-0088
Site Servicing2022-06-03 - Site Servicing Plan - D07-12-21-0088
Site Servicing2022-02-08 - Site Servicing & Stormwater Management Report - D07-12-21-0088
Site Servicing2021-08-23 - Site Servicing and Stormwater Management Report - D07-12-21-0088
Site Servicing2021-06-30 - Site Servicing and Stormwater Management Report - D07-12-21-0088
Surveying2021-06-21 - Survey Plan - D07-12-21-0088
Transportation Analysis2022-06-03 - Traffic Impact Assessment - D07-12-21-0088
Transportation Analysis2021-06-21 - Transportation Impact Study Certification - D07-12-21-0088
Transportation Analysis2021-06-21 - Transportation Impact Study - D07-12-21-0088
Tree Information and Conservation2023-04-13 - Approved Tree Conservation Report and Landscape Plan - D07-12-21-0088
2023-04-13 - Approved Delegated Authority Report - D07-12-21-0088
2022-09-07 - Vibration Monitoring and Criteria for Adjacent Watermain - D07-12-21-0088
2022-02-08 - Road New LRT Road Layout - D07-12-21-0088
2021-06-21 - Wind Analysis - D07-12-21-0088
2021-06-21 - Vibration Monitoring and Criteria for Watermain - D07-12-21-0088
2021-06-21 - Record of Site Condition - D07-12-21-0088
2021-06-21 - Photometry Calculations - D07-12-21-0088
2021-06-21 - LRT Proximity Study - D07-12-21-0088