400 Inlet#
Last updated: 2023-07-21 · ID: D07-12-21-0085
Summary#
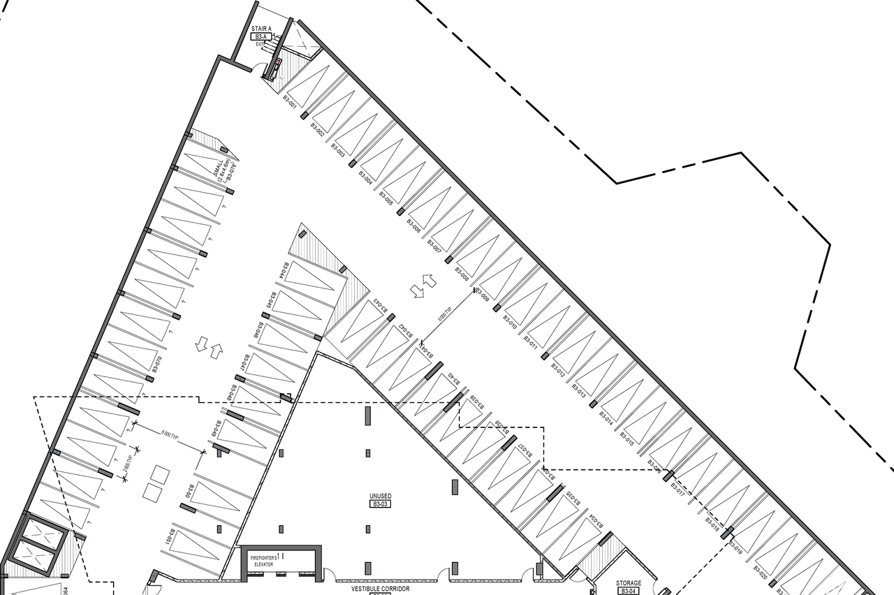
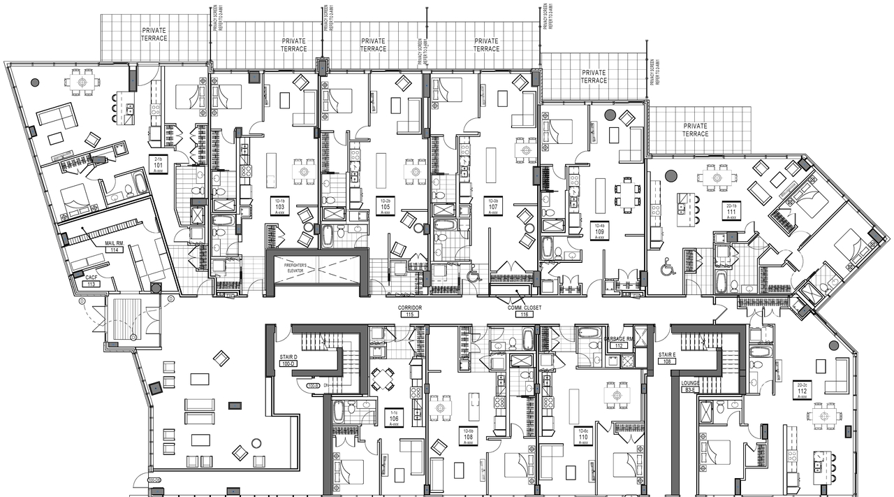
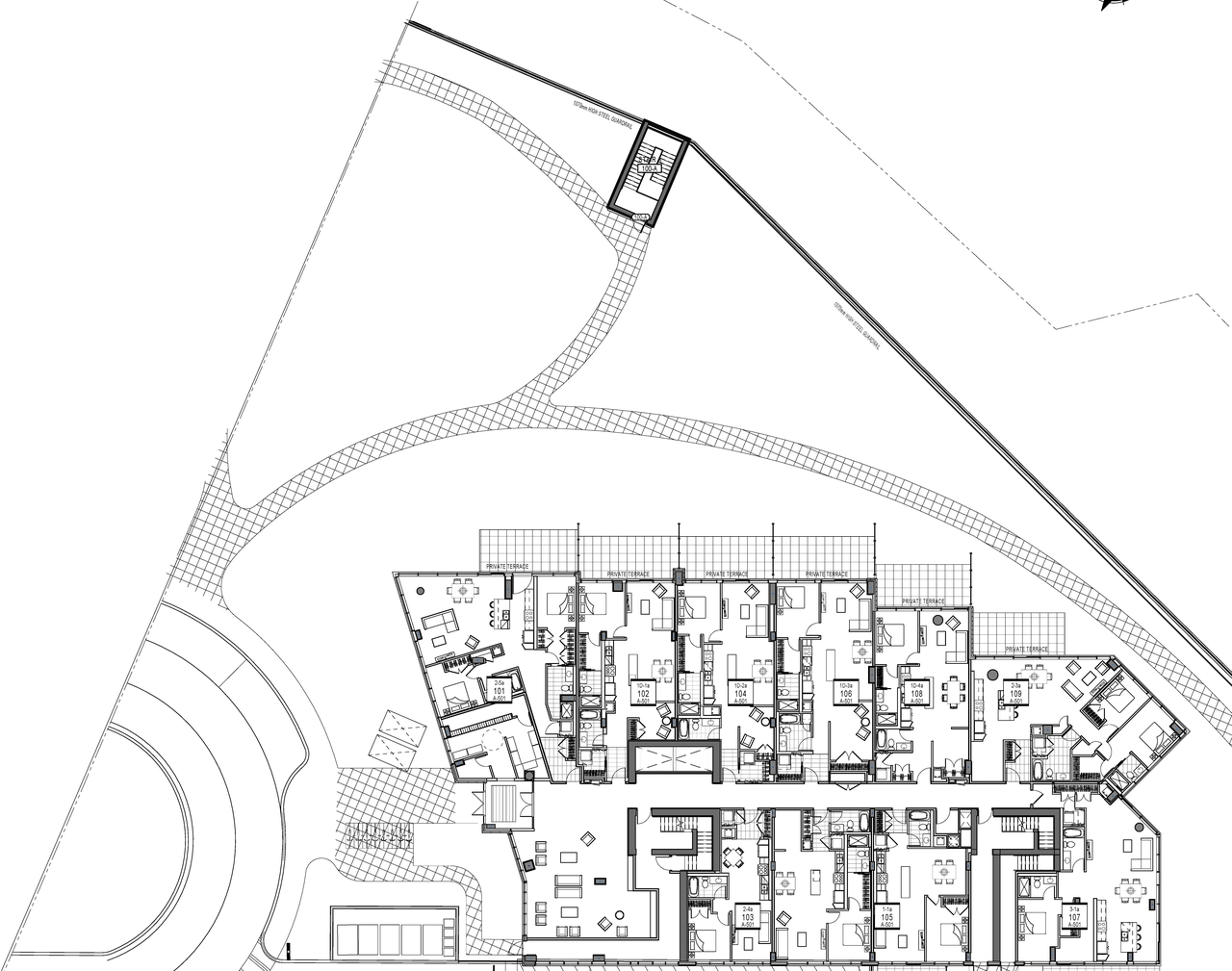
The proposal is to revise the existing approved site plan to recognize an increase in the number of units from 197 to 242 as well as a 3rd underground parking level for Tower 4 of this planned unit development. The proposal will not create additional residential gross floor area or height, but rather will decrease unit sizes as basis for the proposed increase in the number of units.
Status
Post Approval (Signed Letter of Undertaking Received)
Building Scale (Max.)
Based on elevation drawings. Values may be approximate. See sources for exact figures.
High-rise · 22 storeys
· 70.06 m
Renders#
Site Plans, Elevations and Floor Plans#
Additional Information#
| Date Initiated | 2021-06-17 |
| Ward | Ward 1 - Matthew Luloff |
Documents#
Related Projects#
| Project | Last Updated | Date Initiated |
|---|---|---|
400 Inlet
D07-12-24-0115 | 2025-02-21 | 2024-10-01 |








