Ottawa Development Projects

1592 Tenth Line Rd.#

Last updated: 2025-09-04 · ID: D07-12-21-0084

Summary#

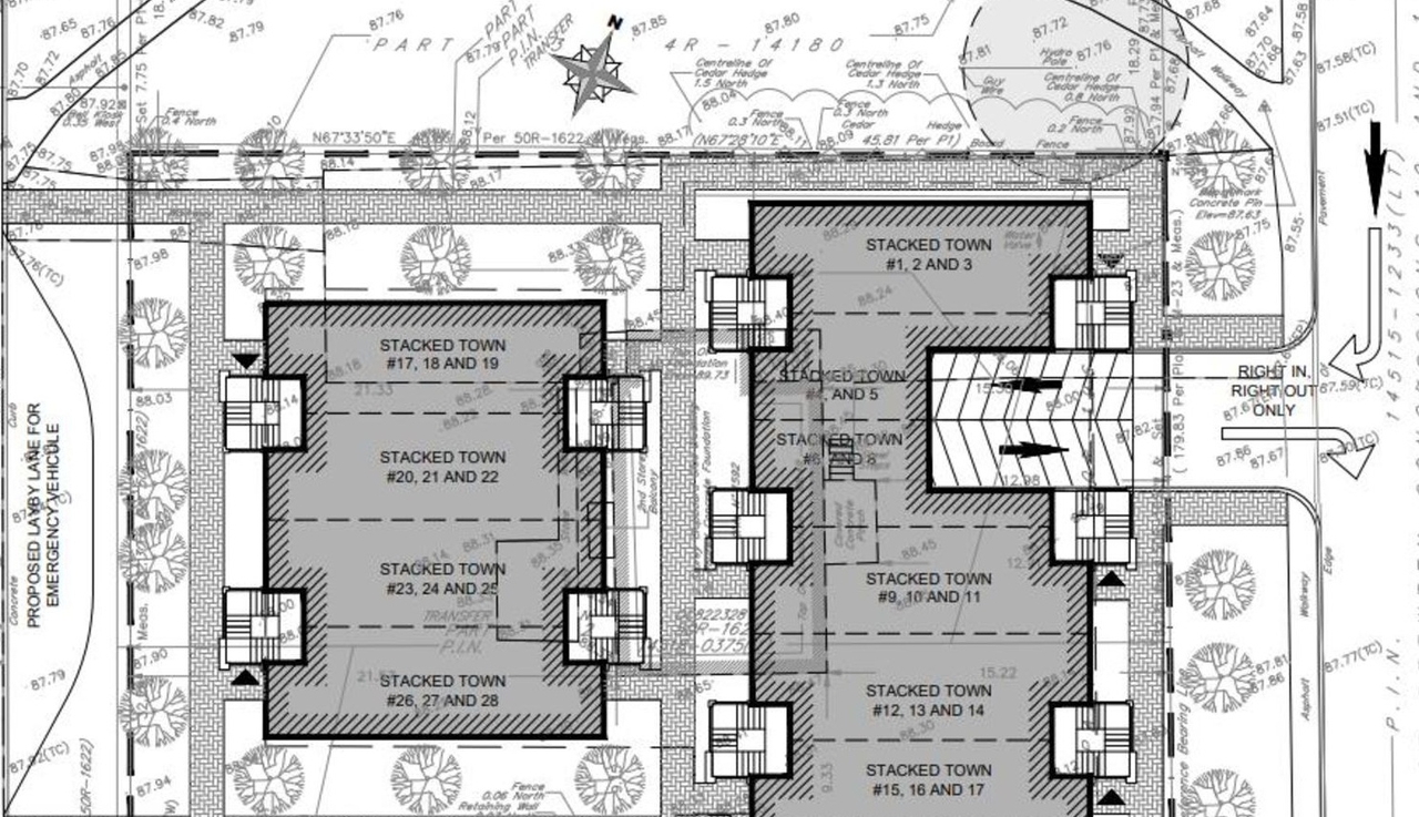
The City of Ottawa has received a Zoning By-law Amendment and Site Plan Control application to rezone the site from “Residential Third Density” (R3Z[1186]) to “Residential Fourth Density” (R4Z), with an exception to the minimum parking requirements, to allow the development of two, three-storey rental stacked dwellings.

Status
Post Approval (Request for Agreement Received)

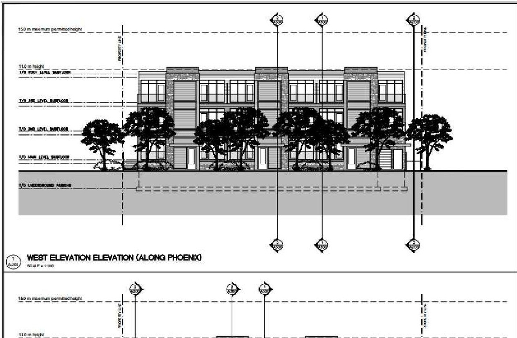
Building Scale (Max.) Based on elevation drawings. Values may be approximate. See sources for exact figures.
Low-rise · 2 storeys Data Quality Note Text was extracted using optical character recognition. This may introduce artifacts or misreads. · 5.1 m Data Quality Note Height was partially estimated using visual scale. This may be approximate. Data Quality Note Text was extracted using optical character recognition. This may introduce artifacts or misreads.

Renders#

Location#

Select a marker to view the address.

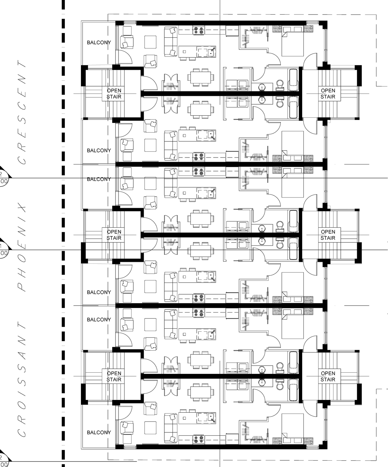
Site Plans, Elevations and Floor Plans#

  • Image from page 20 of the file '2021-06-16 - Design Brief - D07-12-21-0084'
  • Image from page 29 of the file '2021-06-16 - Design Brief - D07-12-21-0084'
  • Image from page 20 of the file '2021-06-16 - Design Brief - D07-12-21-0084'
  • Image from page 28 of the file '2021-06-16 - Design Brief - D07-12-21-0084'
  • Image from page 28 of the file '2021-06-16 - Design Brief - D07-12-21-0084'
  • Image from page 24 of the file '2021-06-16 - Design Brief - D07-12-21-0084'
  • Image from page 1 of the file '2021-06-16 - Building Sections South View - D07-12-21-0084'
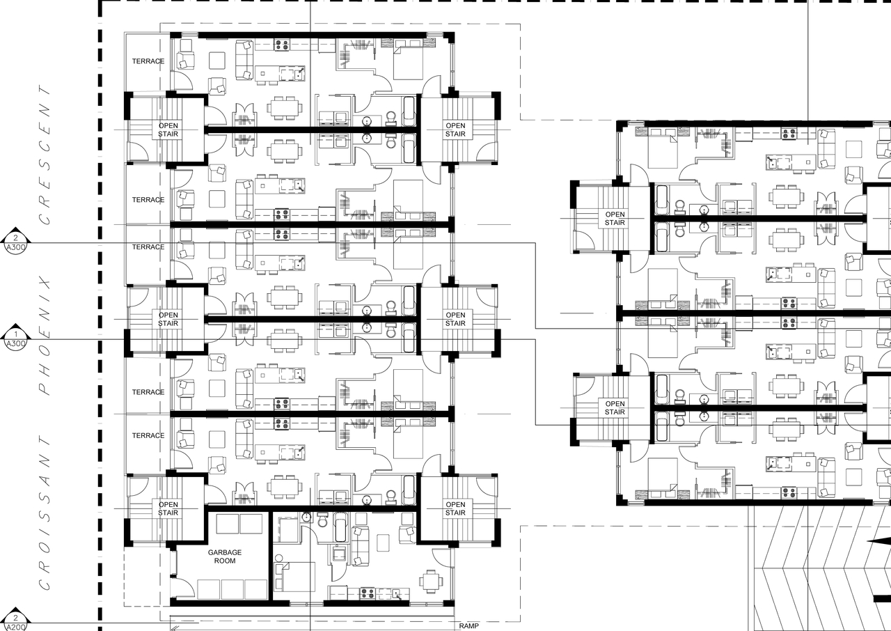
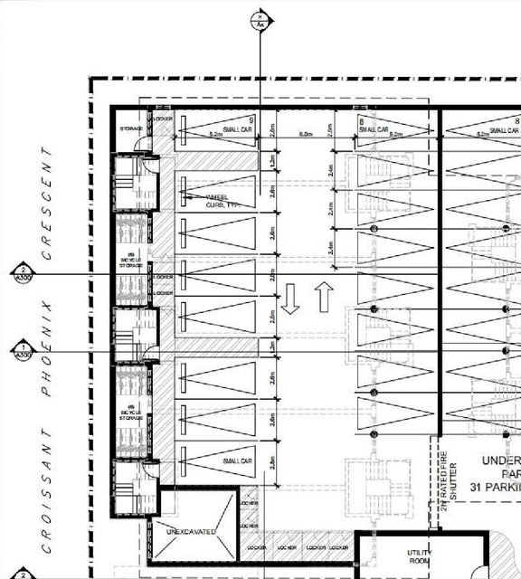
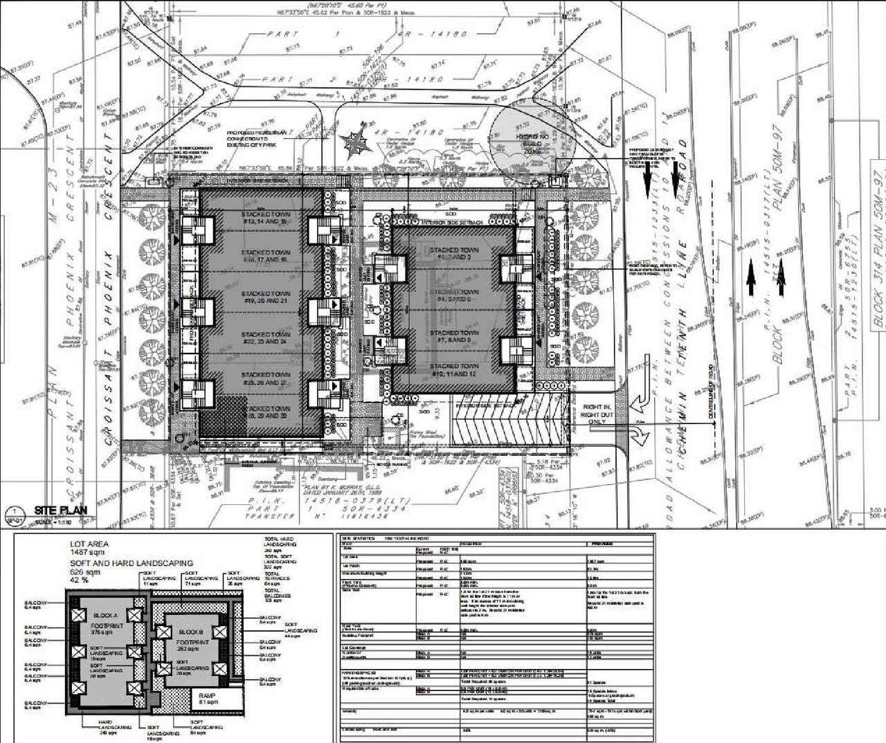
  • Construction site plan for project from page 23 of the file '2021-06-16 - Design Brief - D07-12-21-0084'
  • Construction site plan for project from page 9 of the file '2021-06-16 - Design Brief - D07-12-21-0084'
  • Construction site plan for project from page 24 of the file '2021-06-16 - Design Brief - D07-12-21-0084'
  • Construction site plan for project from page 16 of the file '2021-06-16 - Design Brief - D07-12-21-0084'
  • Construction site plan for project from page 17 of the file '2021-06-16 - Design Brief - D07-12-21-0084'
  • Construction site plan for project from page 10 of the file '2021-06-16 - Design Brief - D07-12-21-0084'
  • Construction site plan for project from page 1 of the file '2021-06-16 - Ground Floor Plans - D07-12-21-0084'
  • Construction site plan for project from page 1 of the file '2021-06-16 - Typical Floor Plan - D07-12-21-0084'
  • Construction site plan for project from page 24 of the file '2021-06-16 - Design Brief - D07-12-21-0084'
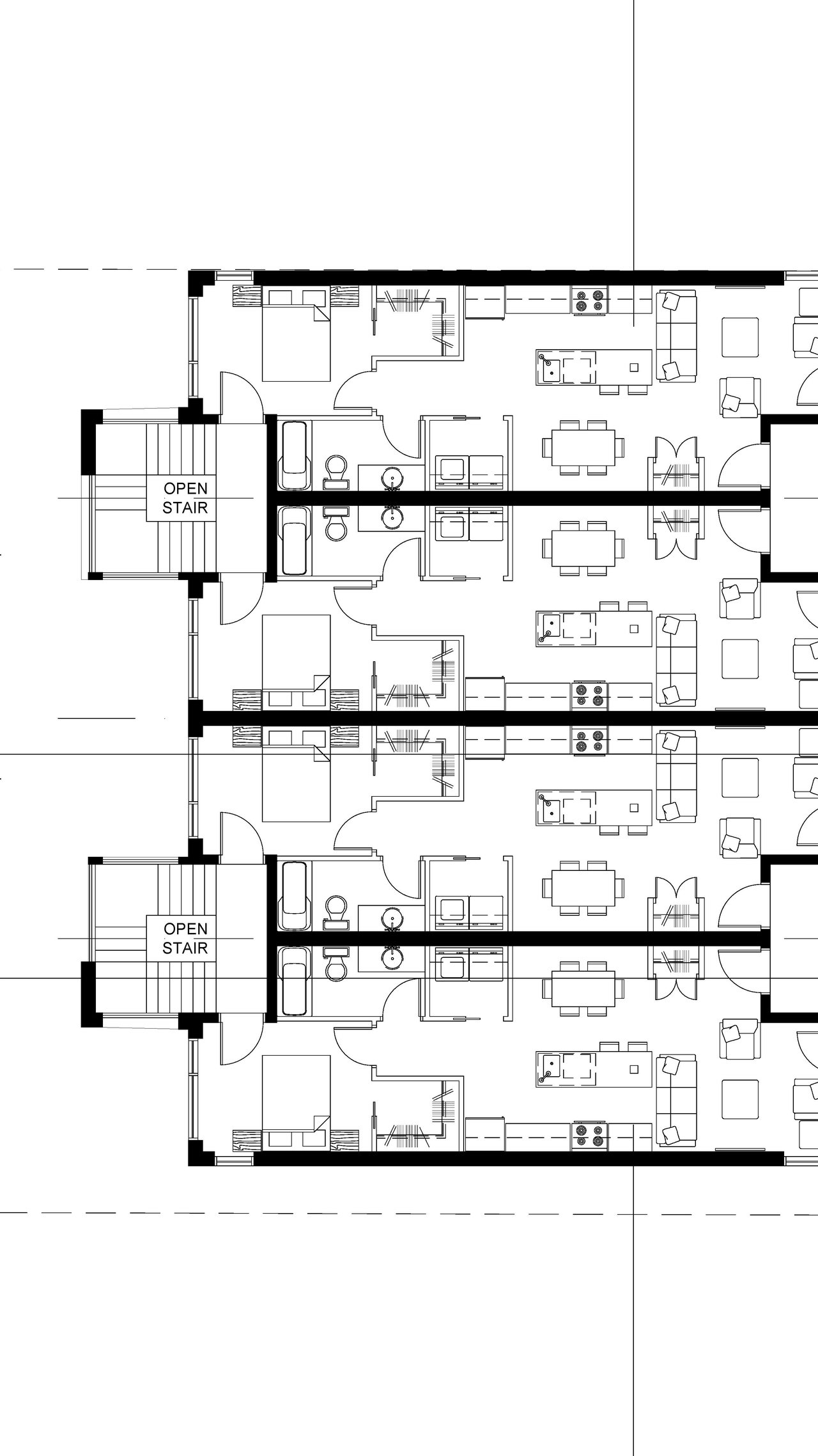
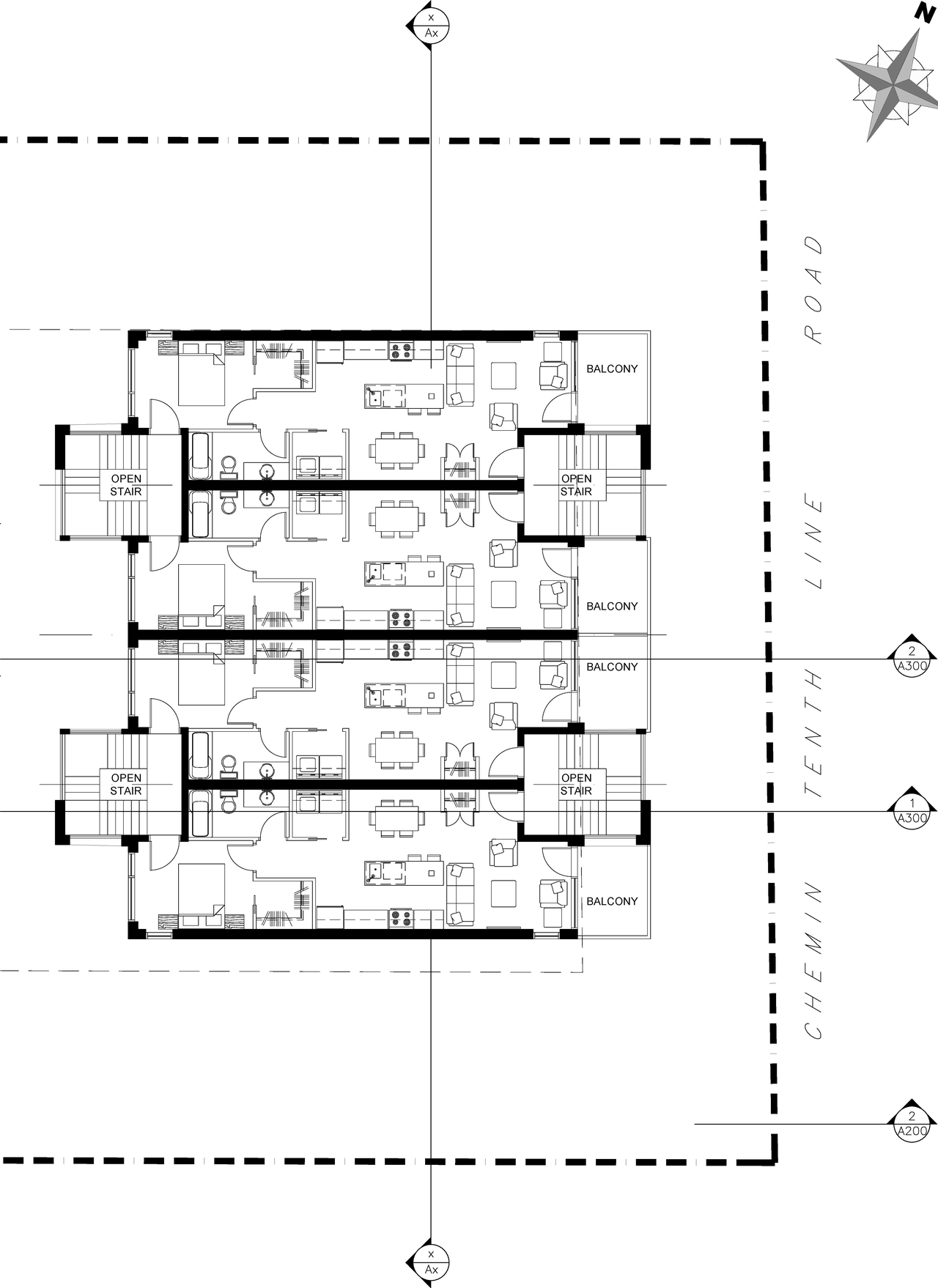
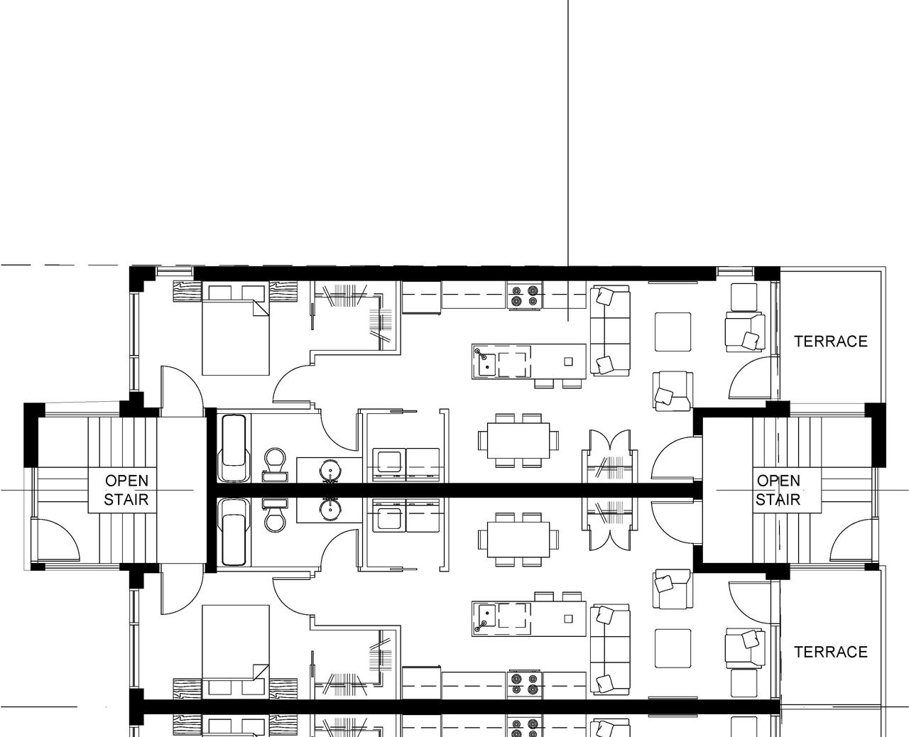
  • Floor plan for project from page 25 of the file '2021-06-16 - Design Brief - D07-12-21-0084'
  • Floor plan for project from page 18 of the file '2021-06-16 - Design Brief - D07-12-21-0084'
  • Floor plan for project from page 27 of the file '2021-06-16 - Design Brief - D07-12-21-0084'
  • Floor plan for project from page 18 of the file '2021-06-16 - Design Brief - D07-12-21-0084'
  • Floor plan for project from page 27 of the file '2021-06-16 - Design Brief - D07-12-21-0084'
  • Floor plan for project from page 1 of the file '2021-06-16 - Typical Floor Plan - D07-12-21-0084'
  • Floor plan for project from page 19 of the file '2021-06-16 - Design Brief - D07-12-21-0084'
  • Floor plan for project from page 26 of the file '2021-06-16 - Design Brief - D07-12-21-0084'
  • Image from page 20 of the file '2021-06-16 - Design Brief - D07-12-21-0084'
  • Image from page 29 of the file '2021-06-16 - Design Brief - D07-12-21-0084'
  • Image from page 20 of the file '2021-06-16 - Design Brief - D07-12-21-0084'
  • Image from page 28 of the file '2021-06-16 - Design Brief - D07-12-21-0084'
  • Image from page 28 of the file '2021-06-16 - Design Brief - D07-12-21-0084'
  • Image from page 24 of the file '2021-06-16 - Design Brief - D07-12-21-0084'
  • Image from page 1 of the file '2021-06-16 - Building Sections South View - D07-12-21-0084'
  • Construction site plan for project from page 23 of the file '2021-06-16 - Design Brief - D07-12-21-0084'
  • Construction site plan for project from page 9 of the file '2021-06-16 - Design Brief - D07-12-21-0084'
  • Construction site plan for project from page 24 of the file '2021-06-16 - Design Brief - D07-12-21-0084'
  • Construction site plan for project from page 16 of the file '2021-06-16 - Design Brief - D07-12-21-0084'
  • Construction site plan for project from page 17 of the file '2021-06-16 - Design Brief - D07-12-21-0084'
  • Construction site plan for project from page 10 of the file '2021-06-16 - Design Brief - D07-12-21-0084'
  • Construction site plan for project from page 1 of the file '2021-06-16 - Ground Floor Plans - D07-12-21-0084'
  • Construction site plan for project from page 1 of the file '2021-06-16 - Typical Floor Plan - D07-12-21-0084'
  • Construction site plan for project from page 24 of the file '2021-06-16 - Design Brief - D07-12-21-0084'
  • Floor plan for project from page 25 of the file '2021-06-16 - Design Brief - D07-12-21-0084'
  • Floor plan for project from page 18 of the file '2021-06-16 - Design Brief - D07-12-21-0084'
  • Floor plan for project from page 27 of the file '2021-06-16 - Design Brief - D07-12-21-0084'
  • Floor plan for project from page 18 of the file '2021-06-16 - Design Brief - D07-12-21-0084'
  • Floor plan for project from page 27 of the file '2021-06-16 - Design Brief - D07-12-21-0084'
  • Floor plan for project from page 1 of the file '2021-06-16 - Typical Floor Plan - D07-12-21-0084'
  • Floor plan for project from page 19 of the file '2021-06-16 - Design Brief - D07-12-21-0084'
  • Floor plan for project from page 26 of the file '2021-06-16 - Design Brief - D07-12-21-0084'

Additional Information#

Date Initiated2021-06-16
WardWard 1 - Matthew Luloff

Documents#

TypeDocument
Application Summary2021-07-28 - Application Summary - D07-12-21-0084
Architectural Plans2024-05-09 - Site Plan-D07-12-21-0084
Architectural Plans2024-05-09 - North and South Elevations-D07-12-21-0084
Architectural Plans2024-05-09 - Lower Level Plan-A100 - D07-12-21-0084
Architectural Plans2024-05-09 - East and West Elevations-D07-12-21-0084
Architectural Plans2024-05-09 - Building Sections - D07-12-21-0084 (2)
Architectural Plans2024-05-09 - Building Sections - D07-12-21-0084
Architectural Plans2024-03-22 - Site Plan - D07-12-21-0084
Architectural Plans2024-03-22 - Site Grading Plan - D07-12-21-0084
Architectural Plans2024-03-22 - Sediment Erosion Control Plan - D07-12-21-0084
Architectural Plans2024-03-22 - Pre Development Drainage Plan - D07-12-21-0084
Architectural Plans2024-03-22 - Post Development Drainage Plan - D07-12-21-0084
Architectural Plans2024-03-22 - Underground Parking Plan - D07-12-21-0084
Architectural Plans2023-12-19 - Underground Parking Plan - D07-12-21-0084
Architectural Plans2023-12-19 - Site Plan - D07-12-21-0084
Architectural Plans2023-12-19 - Site Grading Plan - D07-12-21-0084
Architectural Plans2023-12-19 - Sediment and Erosion Control Plan - D07-12-21-0084
Architectural Plans2023-12-19 - Pre Development Drainage Plan - D07-12-21-0084
Architectural Plans2023-12-19 - Post Development Drainage Plan - D07-12-21-0084
Architectural Plans2023-12-19 - North and South Elevations - D07-12-21-0084
Architectural Plans2023-12-19 - East and West Elevations - D07-12-21-0084
Architectural Plans2023-11-14 - Building Sections Through Open Stairs and Looking North - D07-12-21-0084
Architectural Plans2023-11-14 - Building Sections Looking East and West - D07-12-21-0084
Architectural Plans2023-10-17 - Underground Parking Plan - D07-12-21-0084
Architectural Plans2023-10-17 - Site Plan - D07-12-21-0084
Architectural Plans2023-10-17 - Site Grading Plan - D07-12-21-0084
Architectural Plans2023-10-17 - Sediment and Erosion Control Plan - D07-12-21-0084
Architectural Plans2023-10-17 - Pre Development Drainage Plan -D07-12-21-0084
Architectural Plans2023-10-17 - Post Development Drainage Plan - D07-12-21-0084
Architectural Plans2023-10-17 - North and South Elevations - D07-12-21-0084
Architectural Plans2023-10-17 - East and West Elevations - D07-12-21-0084
Architectural Plans2022-12-24 - Site Plan - D07-12-21-0084
Architectural Plans2022-12-24 - Site Grading Plan - D07-12-21-0084
Architectural Plans2022-12-24 - Sediment and Erosion Control Plan - D07-12-21-0084
Architectural Plans2022-12-24 - Pre Development Drainage Plan - D07-12-21-0084
Architectural Plans2022-12-24 - Post Development Drainage Plan - D07-12-21-0084
Architectural Plans2022-12-24 - Architectural Drawings and Underground Parking Plan - D07-12-21-0084
Architectural Plans2022-07-29 - Underground Parking, Unit Layouts and Elevations - D07-12-21-0084
Architectural Plans2022-07-29 - Site Plan - D07-12-21-0084
Architectural Plans2022-07-29 - Site Grading Plan - D07-12-21-0084
Architectural Plans2022-07-29 - Sediment & Erosion Control Plan - D07-12-21-0084
Architectural Plans2022-07-29 - Photometric Plan - D07-12-21-0084
Architectural Plans2021-06-16 - West and East Elevations - D07-12-21-0084
Architectural Plans2021-06-16 - Underground Parking Plan - D07-12-21-0084
Architectural Plans2021-06-16 - Site Plan - D07-12-21-0084
Architectural Plans2021-06-16 - Site Grading Plan - D07-12-21-0084
Architectural Plans2021-06-16 - North and South Elevations - D07-12-21-0084
Architectural Plans2021-06-16 - Building Sections East and West - D07-12-21-0084
Architectural Plans2024-10-30 - Approved Site Plan - D07-12-21-0084
Architectural Plans2024-08-16 - MEMO - Grading & Servicing Plan Review- D07-12-21-0084
Architectural Plans2024-08-16 - Approved Site Grading Plan - D07-12-21-0084
Architectural Plans2024-08-16 - Approved Sediment Erosion Control Plan - D07-12-21-0084
Architectural Plans2024-08-16 - Approved Pre Development Drainage Plan - D07-12-21-0084
Architectural Plans2024-08-16 - Approved Post Development Drainage Plan - D07-12-21-0084
Architectural Plans2024-08-16 - Approved North and South Elevations-D07-12-21-0084
Architectural Plans2024-08-16 - Approved Lower Level Plan-A100 - D07-12-21-0084
Architectural Plans2024-08-16 - Approved East and West Elevations - D07-12-21-0084
Design Brief2021-06-16 - Design Brief - D07-12-21-0084
Electrical Plan2021-06-16 - Photometric Lighting Site Plan - D07-12-21-0084
Environmental2022-12-24 - Phase I Environmental Site Assessment - D07-12-21-0084
Environmental2022-07-29 - Phase I ESA - D07-12-21-0084
Environmental2021-08-10 - Phase 1 ESA P1+Appendices_8July21 - D07-12-21-0084
Environmental2021-06-16 - Phase 1 Environmental Site Assessment - D07-12-21-0084
Erosion And Sediment Control Plan2021-06-16 - Erosion Sediment Control Report - D07-12-21-0084
Floor Plan2021-06-16 - Typical Floor Plan - D07-12-21-0084
Floor Plan2021-06-16 - Ground Floor Plans - D07-12-21-0084
Geotechnical Report2023-12-19 - Geotechnical Investigation - D07-12-21-0084
Geotechnical Report2023-10-17 - Geotechnical Investigation Report - D07-12-21-0084
Geotechnical Report2022-12-24 - Geotechnical Investigation - D07-12-21-0084
Geotechnical Report2021-06-16 - Geotechncial Report - D07-12-21-0084
Geotechnical Report2024-08-16 - Geotechnical Responses to City Comments - D07-12-21-0084
Landscape Plan2022-12-24 - Landscape Plan - D07-12-21-0084
Landscape Plan2022-07-29 - Landscape Plan - D07-12-21-0084
Landscape Plan2021-06-16 - Landscape Plan - D07-12-21-0084
Noise Study2022-07-29 - Noise Study - D07-12-21-0084
Noise Study2021-06-16 - Noise Study - D07-12-21-0084
Planning2021-06-16 - Planning Rationale - D07-12-21-0084
Rendering2021-06-16 - Perspective Views - D07-12-21-0084
Rendering2021-06-16 - Perspective Drawings from Park and Angled Views - D07-12-21-0084
Rendering2021-06-16 - Building Sections South View - D07-12-21-0084
Site Servicing2024-03-22 - Site Servicing Plan - D07-12-21-0084
Site Servicing2023-12-19 - Site Servicing Plan - D07-12-21-0084
Site Servicing2023-12-19 - Site Servicing and Stormwater Management Report - D07-12-21-0084
Site Servicing2023-10-17 - Site Servicing Plan - D07-12-21-0084
Site Servicing2023-10-17 - Site Servicing and Stormwater Management Report - D07-12-21-0084
Site Servicing2022-12-24 - Site Servicing Plan - D07-12-21-0084
Site Servicing2022-12-24 - Site Servicing and Stormwater Management Report - D07-12-21-0084
Site Servicing2022-07-29 - Site Servicing Plan - D07-12-21-0084
Site Servicing2021-06-16 - Site Servicing Plan - D07-12-21-0084
Site Servicing2024-08-16 - Approved Site Servicing Plan - D07-12-21-0084
Stormwater Management2022-07-29 - SWM Report - D07-12-21-0084
Stormwater Management2021-06-16 - Stormwater Managment and Site Servicing Report - D07-12-21-0084
Surveying2021-06-16 - Topographic Survey Plan - D07-12-21-0084
Tree Information and Conservation2024-03-22 - Tree Conservation Report - D07-12-21-0084
Tree Information and Conservation2023-12-19- Tree Conservation Report - D07-12-21-0084
Tree Information and Conservation2023-10-17 - Tree Conservation Report and Landscape Plan - D07-12-21-0084
Tree Information and Conservation2024-08-16 - Approved Tree Conservation Report and Landscape Plan - D07-12-21-0084
Tree Information and Conservation2025-09-03 - Tree Conservation Report and Landscape Plan - D07-12-21-0084
2024-03-22 - Stormceptor Detail - D07-12-21-0084
2023-12-19 - Standard Stormceptor Details - D07-12-21-0084
2023-10-17 - Details Sheet - D07-12-21-0084
2022-12-24 - Stormceptor Details - D07-12-21-0084
2022-07-29 - Pre-Development Drainage - D07-12-21-0084
2022-07-29 - Post Development Storage Area - D07-12-21-0084
2022-07-29 - Details 1 & 2 - D07-12-21-0084
2021-06-16 - Pre Development Drainage - D07-12-21-0084
2021-06-16 - Post Development Storage Area - D07-12-21-0084
2021-06-16 - Engineering Details Sheet 2 - D07-12-21-0084
2021-06-16 - Engineering Details Sheet 1 - D07-12-21-0084
2024-08-16 - Delegated Authority Report - D07-12-21-0084
2024-10-30 - Signed Updated Delegated Authority Report - D07-12-21-0084
2024-08-16 - Approved Stormceptor Detail - D07-12-21-0084