Ottawa Development Projects

2380-2396 Cleroux#

Last updated: 2024-08-21 · ID: D07-12-21-0081

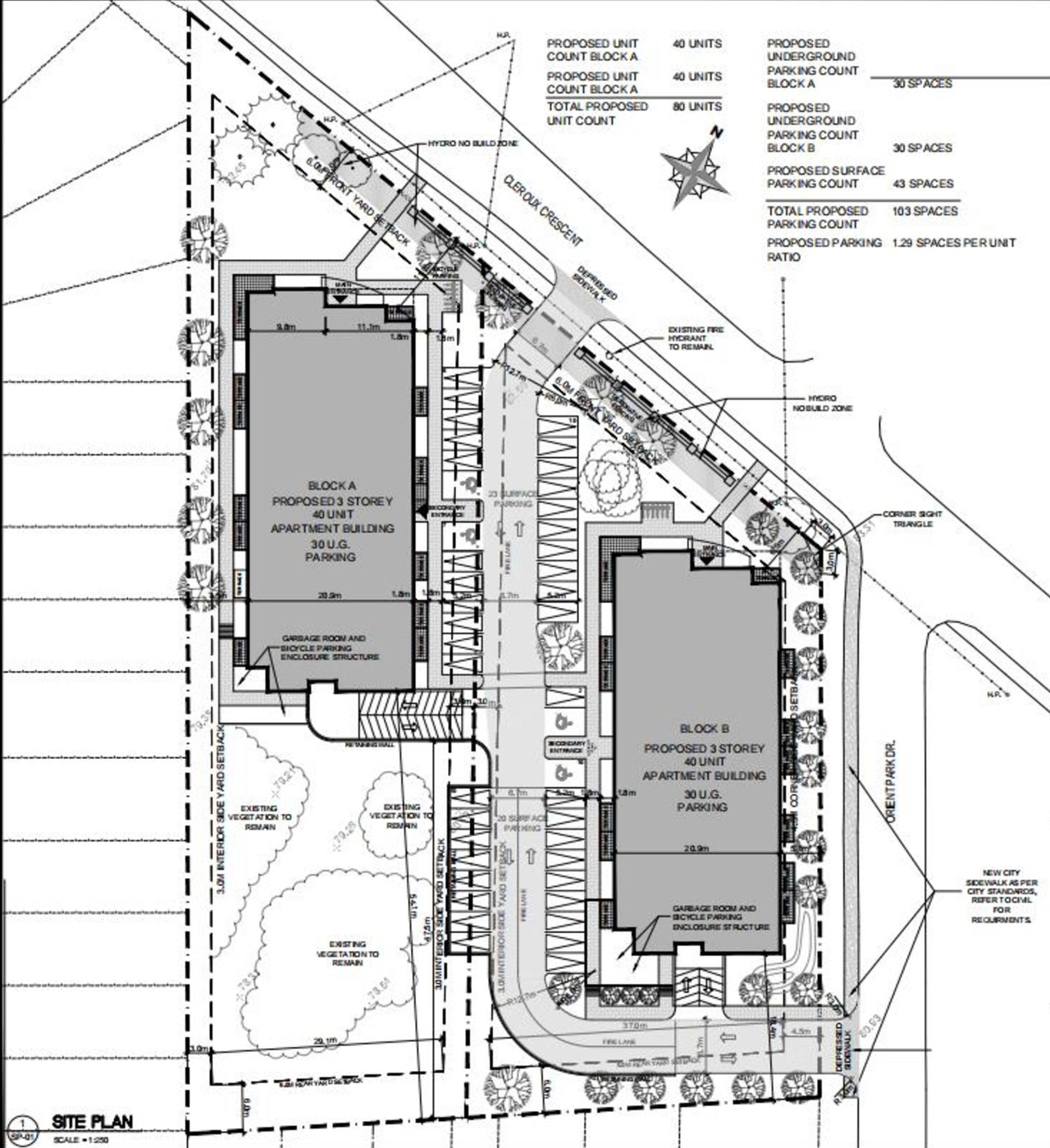
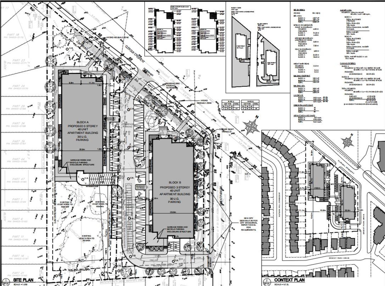
Summary#

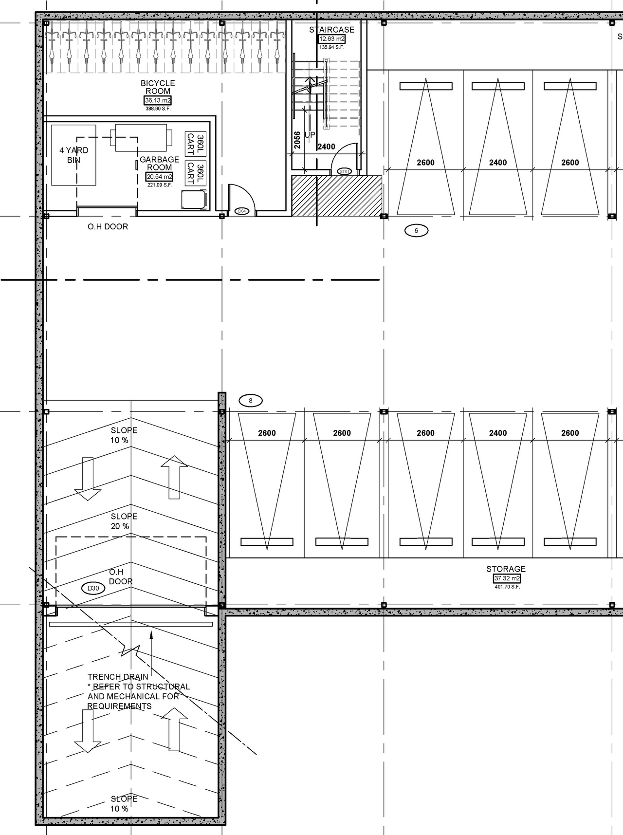
The intent is to develop the lands to allow for 2 rental apartment buildings that will be 3 storeys in height and each building will have 40 rental units. There will be 80 units in total and 101 parking spaces that will be provided through surface and underground parking areas. The buildings are aligned to be parallel with Orient Park Drive but aligned to be close to Cleroux Dr. The north west corner of the site is to be left in its current state and the vegetation retained there.

Status
Inactive (Agreement Registered - Final Legal Clearance Given)

Building Scale (Max.) Based on elevation drawings. Values may be approximate. See sources for exact figures.
Low-rise · 3 storeys · 10.35 m

Renders#

Location#

Select a marker to view the address.

Site Plans, Elevations and Floor Plans#

Additional Information#

Date Initiated2021-06-07
WardWard 2 - Laura Dudas
All Addresses2380 Cleroux
2396 Cleroux

Documents#

TypeDocument
Application Summary2021-09-23 - Application Summary - D07-12-21-0081
Architectural Plans2024-03 -06 - Approved Site Siltation and Erosion Control Plan - D07-12-21-0081
Architectural Plans2024-03 -06 - Approved Site Plan - D07-12-21-0081
Architectural Plans2024-03 -06 - Approved Site Grading Plan - D07-12-21-0081
Architectural Plans2024-03 -06 - Approved Site Drainage Plan - D07-12-21-0081
Architectural Plans2024-03 -06 - Approved Elevations - D07-12-21-0081
Architectural Plans2024-01-24 - West and South Elevations (2) - D07-12-21-0081
Architectural Plans2024-01-24 - West and South Elevations - D07-12-21-0081
Architectural Plans2024-01-24 - Underground Parking Plan - D07-12-21-0081
Architectural Plans2024-01-24 - Site Siltation and Erosion Control Plan - D07-12-21-0081
Architectural Plans2024-01-24 - Site Grading Plan - D07-12-21-0081
Architectural Plans2024-01-24 - Site Drainage Plan - D07-12-21-0081
Architectural Plans2024-01-24 - Plan 4R-35848 - D07-12-21-0081
Architectural Plans2024-01-24 - East and North Elevations (2) - D07-12-21-0081
Architectural Plans2024-01-24 - East and North Elevations - D07-12-21-0081
Architectural Plans2024-01-24 - Underground Parking Plan - D07-12-21-0081
Architectural Plans2024-01-24 - Site Plan - D07-12-21-0081
Architectural Plans2023-12-18 - West and South Elevations - D07-12-21-0081
Architectural Plans2023-12-18 - Underground Parking Plan - D07-12-21-0081
Architectural Plans2023-12-18 - Site Siltation and Erosion Control Plan - D07-12-21-0081
Architectural Plans2023-12-18 - Site Plan - D07-12-21-0081
Architectural Plans2023-12-18 - Site Grading Plan - D07-12-21-0081
Architectural Plans2023-12-18 - Plan 4R-35848 - D07-12-21-0081
Architectural Plans2023-12-18 - East and North Elevations - D07-12-21-0081
Architectural Plans2023-12-18 - West and South Elevations - D07-12-21-0081
Architectural Plans2023-12-18 - Underground Parking Plan - D07-12-21-0081
Architectural Plans2023-12-18 - East and North Elevations - D07-12-21-0081
Architectural Plans2023-11-27 - Underground Parking Plan - D07-12-21-0081 (2)
Architectural Plans2023-11-27 - Underground Parking Plan - D07-12-21-0081
Architectural Plans2023-11-23 - West and South Elevations - D07-12-21-0081
Architectural Plans2023-11-23 - Site Plan - D07-12-21-0081
Architectural Plans2023-11-23 - Site Grading Plan - D07-12-21-0081
Architectural Plans2023-11-23 - West and South Elevations - D07-12-21-0081
Architectural Plans2023-11-23 - East and North Elevations - D07-12-21-0081
Architectural Plans2023-06-12 - Site Siltation and Erosion Control Plan - D07-12-21-0081
Architectural Plans2023-06-12 - Site Plan - D07-12-21-0081
Architectural Plans2023-06-12 - Site Grading Plan - D07-12-21-0081
Architectural Plans2023-06-12 - Proposed Condition Site Drainage Plan - D07-12-21-0081
Architectural Plans2023-06-12 - Block B Elevations - D07-12-21-0081
Architectural Plans2023-06-12 - Block A Elevations - D07-12-21-0081
Architectural Plans2023-02-03 - Site Siltation Erosion Control Plan - D07-12-21-0081
Architectural Plans2023-02-03 - Site Plan - D07-12-21-0081
Architectural Plans2023-02-03 - Site Grading Plan - D07-12-21-0081
Architectural Plans2023-02-03 - Proposed Condition Site Drainage Plan - D07-12-21-0081
Architectural Plans2022-09-20 - Elevation, Cross Sections and Layout - D07-12-21-0081
Architectural Plans2022-09-20 - Block B Lower Level Plan - D07-12-21-0081
Architectural Plans2022-09-20 - Block A Lower Level Plan - D07-12-21-0081
Architectural Plans2022-07-26 - Site Plan - D07-12-21-0081
Architectural Plans2022-07-26 - Site Grading Plan - D07-12-21-0081
Architectural Plans2022-07-26 - Sediment & Erosion Control Plan - D07-12-21-0081
Architectural Plans2022-04-13 - West Elevation - D07-12-21-0081
Architectural Plans2022-04-13 - Site Plan - D07-12-21-0081
Architectural Plans2022-04-13 - Site Grading Plan - D07-12-21-0081
Architectural Plans2022-04-13 - Photometric Plan - D07-12-21-0081
Architectural Plans2022-04-13 - Elevations (3) - D07-12-21-0081
Architectural Plans2022-04-13 - Elevations (2) - D07-12-21-0081
Architectural Plans2022-04-13 - Elevations - D07-12-21-0081
Architectural Plans2021-06-07 - Site Plan - D07-12-21-0081
Architectural Plans2021-06-07 - Rear and Interior Side Yard Elevations - D07-12-21-0081
Architectural Plans2021-06-07 - Interior Elevation Drawings - D07-12-21-0081
Architectural Plans2021-06-07 - Elevations Architectural - D07-12–21-0081
Architectural Plans2024-08-20 - Plan 4R-35848 - D07-12-21-0081
Civil Engineering Report2022-07-26 - Civil Details 2 - D07-12-21-0081
Civil Engineering Report2022-07-26 - Civil Details 1 - D07-12-21-0081
Civil Engineering Report2021-06-07 - Civil Plans - D07-12-21-0081
Design Brief2021-06-07 - Design Brief - D07-12-21-0081
Electrical Plan2024-01-24 -Site Lighting Photometric Plan - D07-12-21-0081
Electrical Plan2023-12-18 - Site Lighting Photometric Plan - D07-12-21-0081
Electrical Plan2022-07-26 - Site Lighting Photometric Plan - D07-12-21-0081
Electrical Plan2021-06-07 - Site Lighting Photometric Plan - D07-12-21-0081
Environmental2021-06-07 - Phase 1 Environmental Site Assessment - D07-12-21-0081
Erosion And Sediment Control Plan2022-04-13 - Erosion and Sediment Control Plan - D07-12-21-0081
Existing Conditions2024-01-24 - Existing Condition Site Drainage Plan - D07-12-21-0081
Existing Conditions2023-12-18 - Existing Condition Site Drainage Plan - D07-12-21-0081
Existing Conditions2023-06-12 - Existing Condition & Site Drainage Plan - D07-12-21-0081
Existing Conditions2023-02-03 - Existing Condition Site Drainage Plan - D07-12-21-0081
Floor Plan2024-03 -06 - Approved Basement Floor Plans - D07-12-21-0081
Floor Plan2022-04-13 - Block B Floor Plans Parking Plan - D07-12-21-0081
Floor Plan2022-04-13 - Block A Floor Plans Parking Plan - D07-12-21-0081
Floor Plan2021-06-07 - Floor Plans and Underground Parking Plan - D07-12-21-0081
Geotechnical Report2024-01-24 - Geotechnical Investigation - D07-12-21-0081
Geotechnical Report2023-12-18 - Geotechnical Investigation - D07-12-21-0081
Geotechnical Report2023-02-03 - Landscaping Plan - D07-12-21-0081
Geotechnical Report2021-09-20 - Geotechnical - D07-12-21-0081
Geotechnical Report2021-06-07 - Soft and Hard Landscaping - D07-12-21-0081
Landscape Plan2024-03 -06 - Approved Landscape Plan - D07-12-21-0081
Landscape Plan2024-01-24 - landscape Plan - D07-12-21-0081
Landscape Plan2023-06-12 - Landscape Plan - D07-12-21-0081
Landscape Plan2022-07-26 - Landscape Plan - D07-12-21-0081
Landscape Plan2022-04-13 - Landscape Plan - D07-12-21-0081
Noise Study2024-01-24 - Noise Impact Study - D07-12-21-0081
Noise Study2023-12-18 - Noise Impact Study - D07-12-21-0081
Noise Study2022-04-13 - Noise Study - D07-12-21-0081
Noise Study2021-06-07 - Noise Study - D07-12-21-0081
Planning2021-06-07 - Planning Rationale - D07-12-21-0081
Rendering2021-06-07 - Perspective Drawings - D07-12-21-0081
Site Servicing2024-03 -06 - Approved Site Servicing Plan - D07-12-21-0081
Site Servicing2024-01-24 - Site Servicing Plan - D07-12-21-0081
Site Servicing2024-01-24 - Site Servicing and Stormwater Management Report - D07-12-21-0081
Site Servicing2023-12-18 - Site Servicing Plan - D07-12-21-0081
Site Servicing2023-12-18 - Site Servicing and Stormwater Managment Report - D07-12-21-0081
Site Servicing2023-11-23 - Site Servicing and Stormwater Management Report - D07-12-21-0081
Site Servicing2023-06-12 - Site Servicing Plan - D07-12-21-0081
Site Servicing2023-06-12 - Site Servicing and SWM Report - D07-12-21-0081
Site Servicing2023-02-03 - Site Servicing Plan - D07-12-21-0081
Site Servicing2023-02-03 - Site Servicing and Stormwater Management Report - D07-12-21-0081
Site Servicing2022-07-26 - Site Servicing Plan - D07-12-21-0081
Site Servicing2022-07-26 - Site Servicing & SWM Report - D07-12-21-0081
Site Servicing2022-04-13 - Site Servicing Plan - D07-12-21-0081
Site Servicing2022-04-13 - Site Servicing & Stormwater Management Report - D07-12-21-0081
Site Servicing2021-06-07 - Site Servicing and Stormwater Management Report - D07-12-21-0081
Stormwater Management2024-01-24 - Storm Drainage Plan - D07-12-21-0081
Stormwater Management2023-12-18 - Storm Drainage Plan - D07-12-21-0081
Stormwater Management2023-06-12 - Storm Drainage Plan - D07-12-21-0081
Stormwater Management2023-02-03 - Storm Drainage Plan- D07-12-21-0081
Stormwater Management2022-09-20 - Storm Sewer Inspection Report - D07-12-21-0081
Surveying2023-11-23 - Survey Plan showing daylighting triangle - D07-12-21-0081
Surveying2021-06-07 - Topographic Survey - D07-12-21-0081
Transportation Analysis2021-06-07 - Transportation Impact Assessement - D07-12-21-0081
Tree Information and Conservation2024-03 -06 - Approved TCR Plan - D07-12-21-0081
Tree Information and Conservation2024-01-24 - Tree Conservation Report -D07-12-21-0081
Tree Information and Conservation2023-12-18 - Tree Conservation Report and Landscape Plan - D07-12-21-0081
Tree Information and Conservation2023-12-18 - TREE CONSERVATION REPORT - D07-12-21-0081
Tree Information and Conservation2023-06-12 - Tree Conservation Report - D07-12-21-0081
Tree Information and Conservation2023-02-03 - Tree Conservation Report - D07-12-21-0081
Tree Information and Conservation2021-06-07 - Tree Conservation Report and Landscape Plan - D07-12-21-0081
Tree Information and Conservation2021-06-07 - Tree Conservation Plan - D07-12-21-0081
2024-03 -06 - Signed Delegated Authority Report - D07-12-21-0081
2022-09-20 - Sewer CCTV Inspection Report - D07-12-21-0081
2022-07-26 - Retaining Wall Details - D07-12-21-0081
2022-07-26 - Pre Development Drainage - D07-12-21-0081
2022-07-26 - Post Development Storage Area - D07-12-21-0081
2022-07-26 - Garbage Room B detail - D07-12-21-0081
2022-07-26 - Garbage Room A detail - D07-12-21-0081
2022-04-13 - Pre Development Drainage - D07-12-21-0081
2022-04-13 - Post Development Drainage - D07-12-21-0081
2022-04-13 - Details Sheet 3 - D07-12-21-0081
2022-04-13 - Details Sheet 2 - D07-12-21-0081
2022-04-13 - Details Sheet 1 - D07-12-21-0081