Ottawa Development Projects

829 Carling Ave.#

Last updated: 2025-08-13 ยท ID: D07-12-21-0067

Summary#

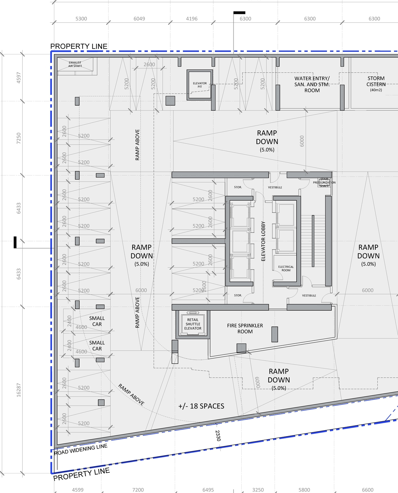
An Official Plan Amendment, Zoning By-law Amendment and Site Plan Control applications to construct a 50-storey mixed-use building with ground-floor commercial, 503 residential units, 196 vehicular parking spaces and 267 bicycle parking spaces.

Status
Active (Additional Submission Review Required)

Renders#

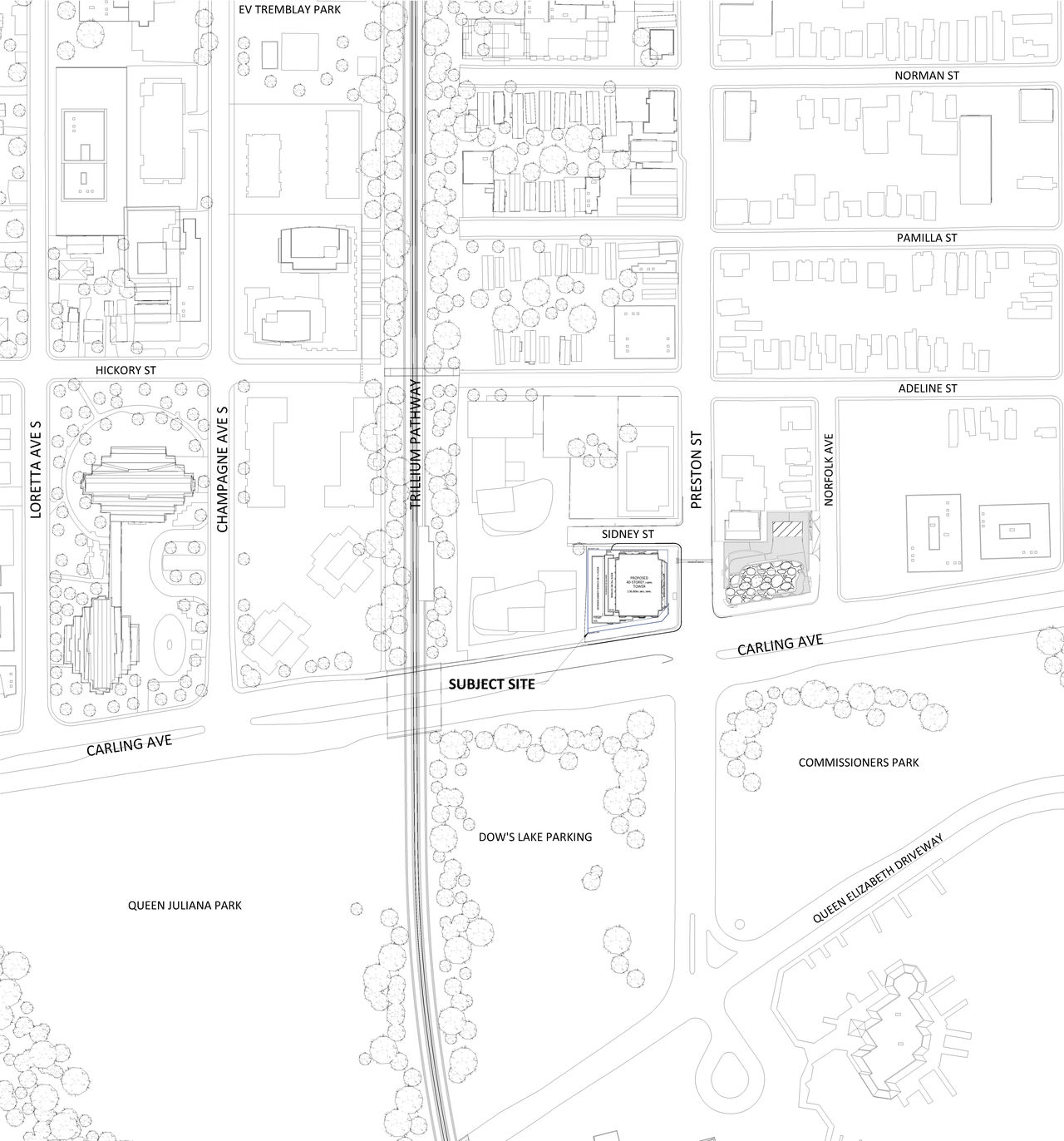
Location#

Select a marker to view the address.

Site Plans, Elevations and Floor Plans#

Additional Information#

Date Initiated2021-05-21
WardWard 14 - Ariel Troster

Documents#

TypeDocument
Adequacy Of Public Services2023-05-05 - Serviceability & Stormwater Management Report - D07-12-21-0067
Adequacy Of Public Services2021-05-21 - Serviceability and Stormwater Management Report - D07-12-21-0067
Adequacy Of Public Services2025-02-19 - Serviceability and Stormwater Management Report - D07-12-21-0067
Application Summary2021-10-07 - Application Summary - D07-12-21-0067
Architectural Plans2021-05-21 - Level 4 Roof Terrace Landscape Plan - D07-12-21-0067
Architectural Plans2021-05-21 - General Plan of Servicing - D07-12-21-0067
Architectural Plans2021-05-21 - Architectural Package - D07-12-21-0067
Architectural Plans2025-02-19 - Site Plan - D07-12-21-0067
Architectural Plans2025-02-19 - General Plan of Servicing - D07-12-21-0067
Architectural Plans2025-02-19 - Cistern Detail Plan - D07-12-21-0067
Architectural Plans2025-02-19 - Architectural Drawing Set - D07-12-21-0067
Architectural Plans2025-07-24 - Site Plan - D07-12-21-0067
Architectural Plans2025-07-24 - Level 5 Roof Terrace Landscape Plan - D07-12-21-0067
Architectural Plans2025-07-24 - General Plan of Services - D07-12-21-0067
Architectural Plans2025-07-24 - Cistern Detail Plan - D07-12-21-0067
Civil Engineering Report2023-05-05 - Civil Drawings - D07-12-21-0067
Environmental2021-05-28 - Phase II Environmental Site Assessment - D07-12-21-0067
Environmental2021-05-27 - Environmental Site Assessment - D07-12-21-0067
Environmental2021-05-21 - Phase 1 Environmental Site Assessment - D07-12-21-0067
Erosion And Sediment Control Plan2025-02-19 - Erosion & Sediment Control Plan - D07-12-21-0067
Erosion And Sediment Control Plan2025-07-24 - Erosion and Sediment Control Plan - D07-12-21-0067
Geotechnical Report2021-05-21 - Grading and Erosion Sediment Control Plan - D07-12-21-0067
Geotechnical Report2021-05-21 - Geotechnical Investigation - D07-12-21-0067
Geotechnical Report2025-02-19 - Grading Plan - D07-12-21-0067
Geotechnical Report2025-02-19 - Geotechnical Investigation - D07-12-21-0067
Geotechnical Report2025-07-24 - Grading Plan - D07-12-21-0067
Geotechnical Report2025-07-24 - Geotechnical Investigation - D07-12-21-0067
Landscape Plan2025-02-19 - Landscape Plan (Roof Terrace) - D07-12-21-0067
Landscape Plan2025-02-19 - Landscape Plan - D07-12-21-0067
Noise Study2021-05-21 - Transportation Noise Assessment - D07-12-21-0067
Planning2023-05-05 - Planning Rationale -D07-12-21-0067
Planning2021-07-23 - Planning Rationale and Design Brief - D07-12-21-0067
Planning2025-04-17 - Planning Rationale Addendum - D07-12-21-0067
Planning2025-07-24 - Planning Rationale Addendum - D07-12-21-0067
Rendering2023-05-05 - Statistics, Floor, Sections, Elevations, Views Plans - D07-12-21-0067
Shadow Study2021-05-21 - Shadow Impact Analysis - D07-12-21-0067
Site Servicing2025-07-24 - Servicing Brief - D07-12-21-0067
Stormwater Management2021-05-21 - Stormwater Management Plan - D07-12-21-0067
Transportation Analysis2023-05-05 - Transportation Impact Assessment - D07-12-21-0067
Transportation Analysis2021-05-21 - Transportation Impact Assessment - D07-12-21-0067
Tree Information and Conservation2023-05-05 - Tree Conservation Report & Landscape Plan - D07-12-21-0067
Tree Information and Conservation2021-05-21 - Tree Conservation Report and Landscape Plan - D07-12-21-0067
Tree Information and Conservation2025-07-24 - Tree Conservation Report and Landscape Plan - D07-12-21-0067s
Wind Study2021-05-21 - Pedestrian Level Wind Study - D07-12-21-0067
2021-05-21 - Trillium Line Level 1 Proximity Study - D07-12-21-0067
2025-07-24 - List of Drawings - D07-12-21-0067