234-236 O’Connor St./311 Somerset St.#
Last updated: 2023-01-20 · ID: D07-12-21-0065
Summary#
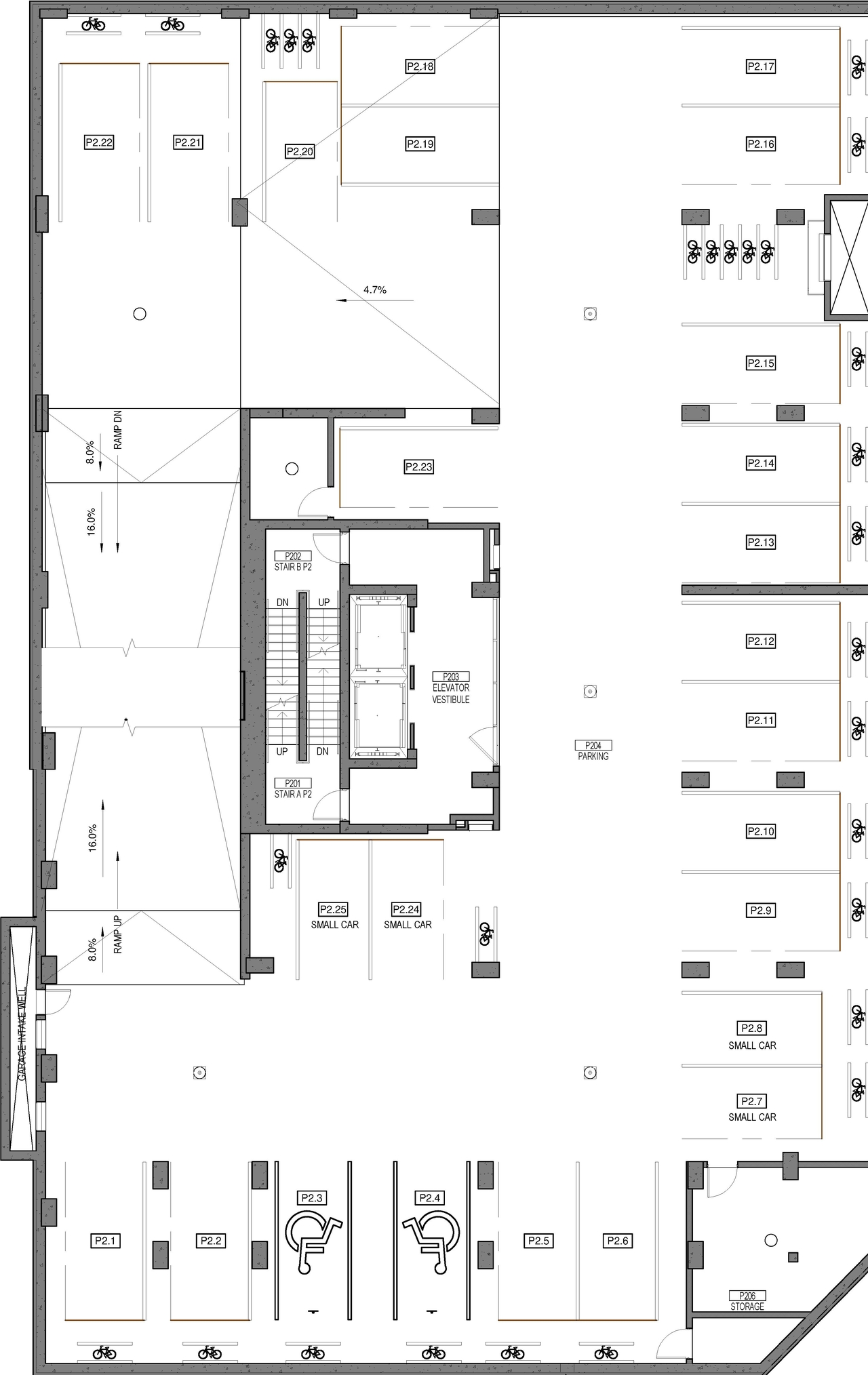
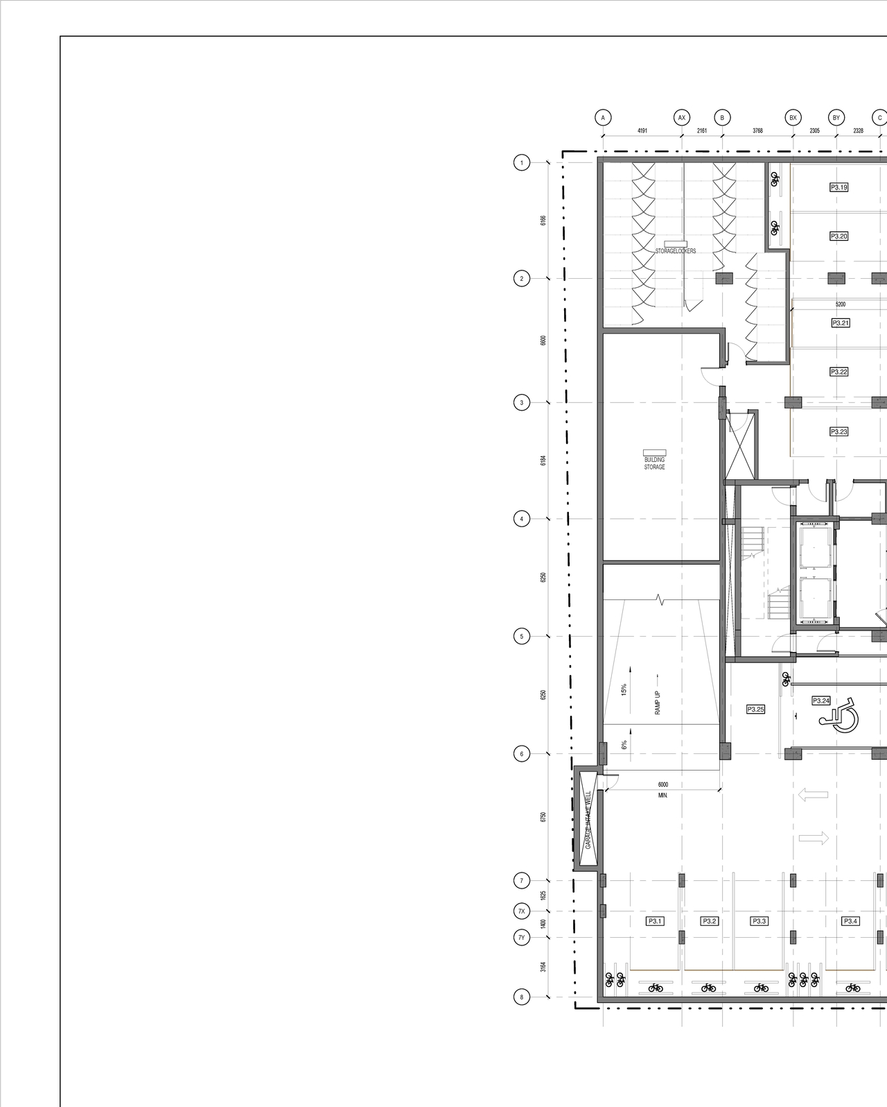
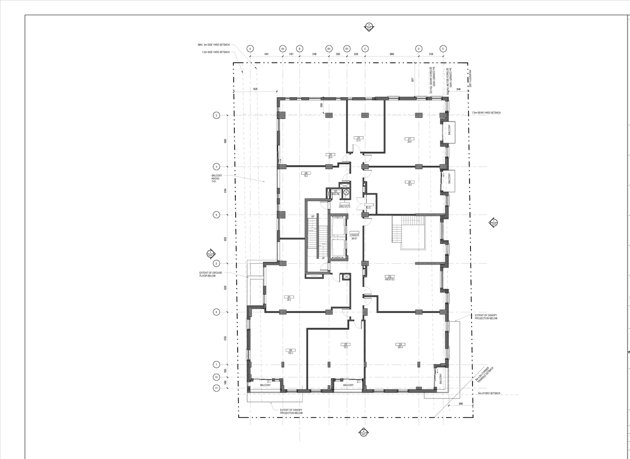
Proposed 16-storey mixed-used building with 67 parking spaces, 140 dwelling units, and 251m2 of ground floor commercial space.
Status
Active (Initial Circulation Period Completed)
Building Scale (Max.)
Based on elevation drawings. Values may be approximate. See sources for exact figures.
High-rise · 18 storeys
· 64.72 m
Location#
Select a marker to view the address.
Site Plans, Elevations and Floor Plans#
Additional Information#
| Date Initiated | 2021-05-20 |
| Ward | Ward 14 - Ariel Troster |
| All Addresses | 234 O’Connor St. 236 O’Connor St. 311 Somerset St. |








