Ottawa Development Projects

60-64 Woodridge Cres./100 Bayshore Dr.#

Last updated: 2025-04-01 · ID: D07-12-21-0057

Summary#

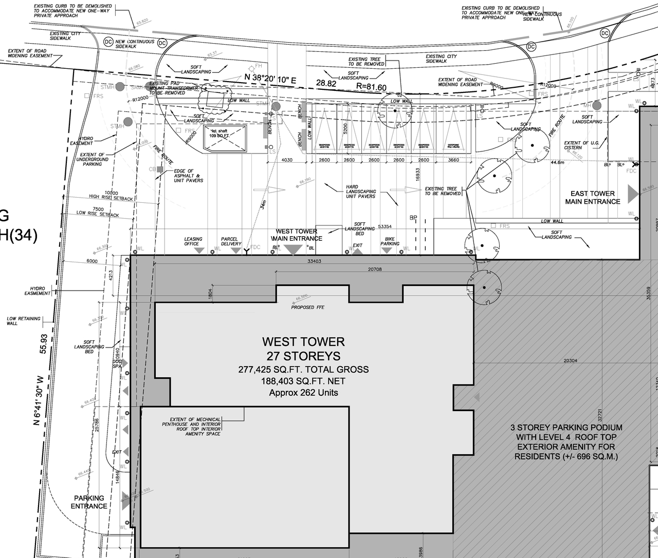
Proposed two-tower shared podium residential rental development. Tower 1 is proposed to be 30 storeys and contain approximately 292 units and Tower 2 is proposed to be 27 storeys and contain 262 units.

Status
Post Approval (Receipt of Agreement from Owner Pending)

Building Scale (Max.) Based on elevation drawings. Values may be approximate. See sources for exact figures.
High-rise · 30 storeys · 102.58 m

Renders#

  • Rendering of building from page 31 of the file '2021-06-30 - UDRP Application Presentation - D07-12-21-0057'
  • Rendering of building from page 30 of the file '2021-06-30 - UDRP Application Presentation - D07-12-21-0057'
  • Rendering of building from page 15 of the file '2021-06-30 - UDRP Application Presentation - D07-12-21-0057'
  • Rendering of building from page 4 of the file '2021-08-09 - Rendering - D07-12-21-0057'
  • Rendering of building from page 29 of the file '2021-06-30 - UDRP Application Presentation - D07-12-21-0057'
  • Rendering of building from page 26 of the file '2021-06-30 - UDRP Application Presentation - D07-12-21-0057'
  • Rendering of building from page 18 of the file '2021-06-30 - UDRP Application Presentation - D07-12-21-0057'
  • Rendering of building from page 32 of the file '2021-06-30 - UDRP Application Presentation - D07-12-21-0057'
  • Rendering of building from page 2 of the file '2021-08-09 - Rendering - D07-12-21-0057'
  • Rendering of building from page 22 of the file '2021-06-30 - UDRP Application Presentation - D07-12-21-0057'
  • Rendering of building from page 1 of the file '2021-08-09 - Rendering - D07-12-21-0057'
  • Rendering of building from page 27 of the file '2021-06-30 - UDRP Application Presentation - D07-12-21-0057'
  • Rendering of building from page 26 of the file '2021-06-30 - UDRP Application Presentation - D07-12-21-0057'
  • Rendering of building from page 25 of the file '2021-06-30 - UDRP Application Presentation - D07-12-21-0057'
  • Rendering of building from page 5 of the file '2021-08-09 - Rendering - D07-12-21-0057'
  • Rendering of building from page 20 of the file '2021-06-30 - UDRP Application Presentation - D07-12-21-0057'
  • Rendering of building from page 49 of the file '2021-06-30 - UDRP Application Presentation - D07-12-21-0057'
  • Rendering of building from page 25 of the file '2021-06-30 - UDRP Application Presentation - D07-12-21-0057'
  • Rendering of building from page 24 of the file '2021-06-30 - UDRP Application Presentation - D07-12-21-0057'
  • Rendering of building from page 31 of the file '2021-06-30 - UDRP Application Presentation - D07-12-21-0057'
  • Rendering of building from page 30 of the file '2021-06-30 - UDRP Application Presentation - D07-12-21-0057'
  • Rendering of building from page 15 of the file '2021-06-30 - UDRP Application Presentation - D07-12-21-0057'
  • Rendering of building from page 4 of the file '2021-08-09 - Rendering - D07-12-21-0057'
  • Rendering of building from page 29 of the file '2021-06-30 - UDRP Application Presentation - D07-12-21-0057'
  • Rendering of building from page 26 of the file '2021-06-30 - UDRP Application Presentation - D07-12-21-0057'
  • Rendering of building from page 18 of the file '2021-06-30 - UDRP Application Presentation - D07-12-21-0057'
  • Rendering of building from page 32 of the file '2021-06-30 - UDRP Application Presentation - D07-12-21-0057'
  • Rendering of building from page 2 of the file '2021-08-09 - Rendering - D07-12-21-0057'
  • Rendering of building from page 22 of the file '2021-06-30 - UDRP Application Presentation - D07-12-21-0057'
  • Rendering of building from page 1 of the file '2021-08-09 - Rendering - D07-12-21-0057'
  • Rendering of building from page 27 of the file '2021-06-30 - UDRP Application Presentation - D07-12-21-0057'
  • Rendering of building from page 26 of the file '2021-06-30 - UDRP Application Presentation - D07-12-21-0057'
  • Rendering of building from page 25 of the file '2021-06-30 - UDRP Application Presentation - D07-12-21-0057'
  • Rendering of building from page 5 of the file '2021-08-09 - Rendering - D07-12-21-0057'
  • Rendering of building from page 20 of the file '2021-06-30 - UDRP Application Presentation - D07-12-21-0057'
  • Rendering of building from page 49 of the file '2021-06-30 - UDRP Application Presentation - D07-12-21-0057'
  • Rendering of building from page 25 of the file '2021-06-30 - UDRP Application Presentation - D07-12-21-0057'
  • Rendering of building from page 24 of the file '2021-06-30 - UDRP Application Presentation - D07-12-21-0057'

Location#

Select a marker to view the address.

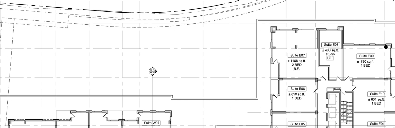
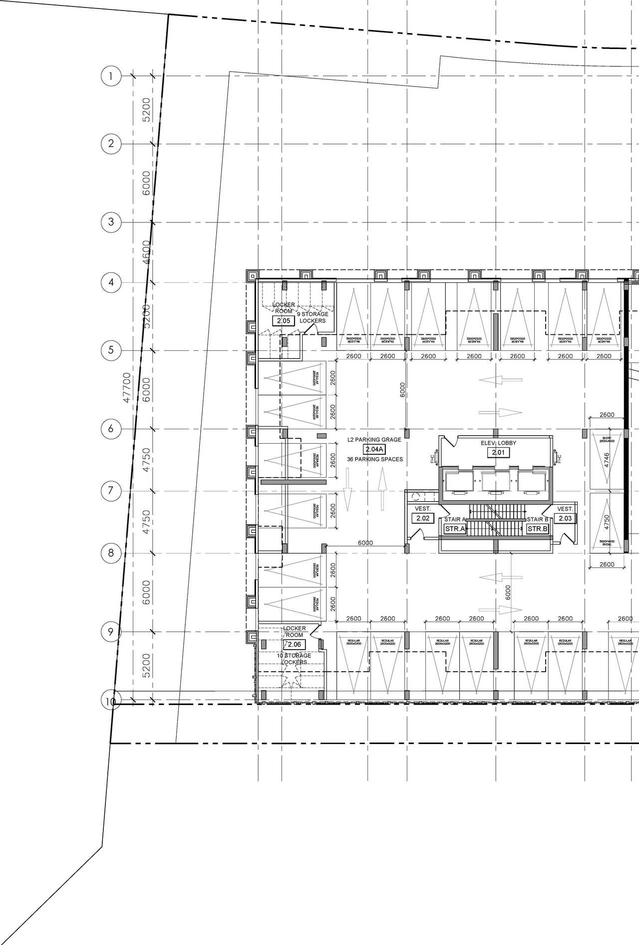
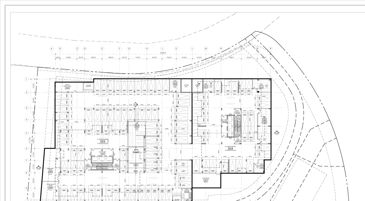
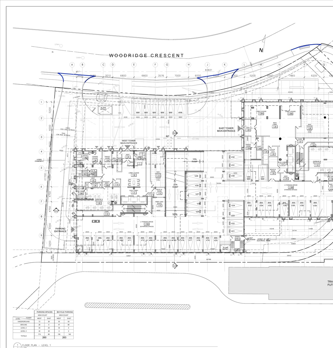
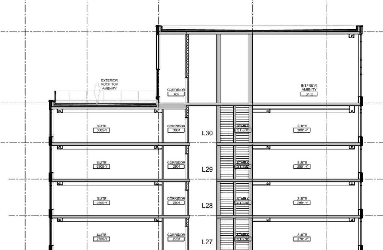
Site Plans, Elevations and Floor Plans#

  • Image from page 3 of the file '2021-08-09 - Rendering - D07-12-21-0057'
  • Image from page 41 of the file '2021-06-30 - UDRP Application Presentation - D07-12-21-0057'
  • Image from page 10 of the file '2021-08-09 - Site Plan,Floor Plans and Building Sections - D07-12-21-0057'
  • Image from page 8 of the file '2021-08-09 - Site Plan,Floor Plans and Building Sections - D07-12-21-0057'
  • Image from page 42 of the file '2021-06-30 - UDRP Application Presentation - D07-12-21-0057'
  • Image from page 42 of the file '2021-06-30 - UDRP Application Presentation - D07-12-21-0057'
  • Image from page 44 of the file '2021-06-30 - UDRP Application Presentation - D07-12-21-0057'
  • Image from page 11 of the file '2021-08-09 - Site Plan,Floor Plans and Building Sections - D07-12-21-0057'
  • Image from page 44 of the file '2021-06-30 - UDRP Application Presentation - D07-12-21-0057'
  • Image from page 43 of the file '2021-06-30 - UDRP Application Presentation - D07-12-21-0057'
  • Image from page 11 of the file '2021-06-30 - UDRP Application Presentation - D07-12-21-0057'
  • Construction site plan for project from page 47 of the file '2021-06-30 - UDRP Application Presentation - D07-12-21-0057'
  • Construction site plan for project from page 9 of the file '2021-06-30 - UDRP Application Presentation - D07-12-21-0057'
  • Construction site plan for project from page 1 of the file '2021-08-09 - Site Plan,Floor Plans and Building Sections - D07-12-21-0057'
  • Construction site plan for project from page 33 of the file '2021-06-30 - UDRP Application Presentation - D07-12-21-0057'
  • Construction site plan for project from page 10 of the file '2021-06-30 - UDRP Application Presentation - D07-12-21-0057'
  • Construction site plan for project from page 3 of the file '2021-08-09 - Site Plan,Floor Plans and Building Sections - D07-12-21-0057'
  • Construction site plan for project from page 46 of the file '2021-06-30 - UDRP Application Presentation - D07-12-21-0057'
  • Construction site plan for project from page 7 of the file '2021-06-30 - UDRP Application Presentation - D07-12-21-0057'
  • Construction site plan for project from page 16 of the file '2021-06-30 - UDRP Application Presentation - D07-12-21-0057'
  • Construction site plan for project from page 7 of the file '2021-08-09 - Site Plan,Floor Plans and Building Sections - D07-12-21-0057'
  • Construction site plan for project from page 6 of the file '2021-06-30 - UDRP Application Presentation - D07-12-21-0057'
  • Construction site plan for project from page 34 of the file '2021-06-30 - UDRP Application Presentation - D07-12-21-0057'
  • Construction site plan for project from page 4 of the file '2021-05-04 - Floor Plans - D07-12-21-0057'
  • Construction site plan for project from page 5 of the file '2021-08-09 - Site Plan,Floor Plans and Building Sections - D07-12-21-0057'
  • Floor plan for project from page 2 of the file '2021-08-09 - Site Plan,Floor Plans and Building Sections - D07-12-21-0057'
  • Floor plan for project from page 3 of the file '2021-05-04 - Floor Plans - D07-12-21-0057'
  • Floor plan for project from page 40 of the file '2021-06-30 - UDRP Application Presentation - D07-12-21-0057'
  • Floor plan for project from page 39 of the file '2021-06-30 - UDRP Application Presentation - D07-12-21-0057'
  • Floor plan for project from page 35 of the file '2021-06-30 - UDRP Application Presentation - D07-12-21-0057'
  • Floor plan for project from page 12 of the file '2021-06-30 - UDRP Application Presentation - D07-12-21-0057'
  • Image from page 3 of the file '2021-08-09 - Rendering - D07-12-21-0057'
  • Image from page 41 of the file '2021-06-30 - UDRP Application Presentation - D07-12-21-0057'
  • Image from page 10 of the file '2021-08-09 - Site Plan,Floor Plans and Building Sections - D07-12-21-0057'
  • Image from page 8 of the file '2021-08-09 - Site Plan,Floor Plans and Building Sections - D07-12-21-0057'
  • Image from page 42 of the file '2021-06-30 - UDRP Application Presentation - D07-12-21-0057'
  • Image from page 42 of the file '2021-06-30 - UDRP Application Presentation - D07-12-21-0057'
  • Image from page 44 of the file '2021-06-30 - UDRP Application Presentation - D07-12-21-0057'
  • Image from page 11 of the file '2021-08-09 - Site Plan,Floor Plans and Building Sections - D07-12-21-0057'
  • Image from page 44 of the file '2021-06-30 - UDRP Application Presentation - D07-12-21-0057'
  • Image from page 43 of the file '2021-06-30 - UDRP Application Presentation - D07-12-21-0057'
  • Image from page 11 of the file '2021-06-30 - UDRP Application Presentation - D07-12-21-0057'
  • Construction site plan for project from page 47 of the file '2021-06-30 - UDRP Application Presentation - D07-12-21-0057'
  • Construction site plan for project from page 9 of the file '2021-06-30 - UDRP Application Presentation - D07-12-21-0057'
  • Construction site plan for project from page 1 of the file '2021-08-09 - Site Plan,Floor Plans and Building Sections - D07-12-21-0057'
  • Construction site plan for project from page 33 of the file '2021-06-30 - UDRP Application Presentation - D07-12-21-0057'
  • Construction site plan for project from page 10 of the file '2021-06-30 - UDRP Application Presentation - D07-12-21-0057'
  • Construction site plan for project from page 3 of the file '2021-08-09 - Site Plan,Floor Plans and Building Sections - D07-12-21-0057'
  • Construction site plan for project from page 46 of the file '2021-06-30 - UDRP Application Presentation - D07-12-21-0057'
  • Construction site plan for project from page 7 of the file '2021-06-30 - UDRP Application Presentation - D07-12-21-0057'
  • Construction site plan for project from page 16 of the file '2021-06-30 - UDRP Application Presentation - D07-12-21-0057'
  • Construction site plan for project from page 7 of the file '2021-08-09 - Site Plan,Floor Plans and Building Sections - D07-12-21-0057'
  • Construction site plan for project from page 6 of the file '2021-06-30 - UDRP Application Presentation - D07-12-21-0057'
  • Construction site plan for project from page 34 of the file '2021-06-30 - UDRP Application Presentation - D07-12-21-0057'
  • Construction site plan for project from page 4 of the file '2021-05-04 - Floor Plans - D07-12-21-0057'
  • Construction site plan for project from page 5 of the file '2021-08-09 - Site Plan,Floor Plans and Building Sections - D07-12-21-0057'
  • Floor plan for project from page 2 of the file '2021-08-09 - Site Plan,Floor Plans and Building Sections - D07-12-21-0057'
  • Floor plan for project from page 3 of the file '2021-05-04 - Floor Plans - D07-12-21-0057'
  • Floor plan for project from page 40 of the file '2021-06-30 - UDRP Application Presentation - D07-12-21-0057'
  • Floor plan for project from page 39 of the file '2021-06-30 - UDRP Application Presentation - D07-12-21-0057'
  • Floor plan for project from page 35 of the file '2021-06-30 - UDRP Application Presentation - D07-12-21-0057'
  • Floor plan for project from page 12 of the file '2021-06-30 - UDRP Application Presentation - D07-12-21-0057'

Additional Information#

Date Initiated2021-05-04
WardWard 7 - Theresa Kavanagh
All Addresses60 Woodridge Cres.
64 Woodridge Cres.
100 Bayshore Dr.

Documents#

TypeDocument
Application Summary2021-05-10 - Application Summary - D07-12-21-0057
Architectural Plans2022-11-10 - Approved Site Plan - D07-12-21-0057
Architectural Plans2022-11-10 - Approved Elevations - D07-12-21-0057
Architectural Plans2022-01-05 - Site Plan E1 - D07-12-21-0057
Architectural Plans2022-01-05 - Parking Site Plan - D07-12-21-0057
Architectural Plans2021-09-23 - Site Plan - D07-12-21-0057
Architectural Plans2021-09-23 - Parking Plan - D07-12-21-0057
Architectural Plans2021-09-23 - Elevations - D07-12-21-0057
Architectural Plans2021-05-04 - Site Plan - D07-12-21-0057
Architectural Plans2021-05-04 - Plan 4R-32199 - D07-12-21-0057
Architectural Plans2021-05-04 - Elevations - D07-12-21-0057
Civil Engineering Report2022-11-10 - Approved Civil Plans - D07-12-21-0057
Civil Engineering Report2022-01-05 - Civil Removal Plan - D07-12-21-0057
Civil Engineering Report2021-08-09 - Civil Plans - D07-12-21-0057
Design Brief2021-06-30 - UDRP Application Presentation - D07-12-21-0057
Electrical Plan2021-05-04 - Site Lighting Letter - D07-12-21-0057
Electrical Plan2021-05-04 - Site Lighting Information - D07-12-21-0057
Environmental2021-05-04 - Phase 2 Environmental Site Assessment - D07-12-21-0057
Environmental2021-05-04 - Phase 1 Environmental Site Assessment - D07-12-21-0057
Erosion And Sediment Control Plan2021-05-04 - Erosion Control and Drainage Plan - D07-12-21-0057
Floor Plan2021-08-09 - Site Plan,Floor Plans and Building Sections - D07-12-21-0057
Floor Plan2021-05-04 - Floor Plans - D07-12-21-0057
Geotechnical Report2021-09-23 - Geotechnical Investigation - D07-12-21-0057
Geotechnical Report2021-05-04 - Grading Plan - D07-12-21-0057
Landscape Plan2022-11-10 - Approved Landscape Plan - D07-12-21-0057
Landscape Plan2022-01-05 - Landscape Plan - D07-12-21-0057
Landscape Plan2021-09-23 - Landscape Plan - D07-12-21-0057
Landscape Plan2021-08-09 - Landscape Plan - D07-12-21-0057
Landscape Plan2021-05-04 - Landscape Plan - D07-12-21-0057
Noise Study2021-05-04 - Transportation Noise and Vibration Assessment - D07-12-21-0057
Planning2021-05-04 - Planning and Design Rationale - D07-12-21-0057
Rendering2021-08-09 - Rendering - D07-12-21-0057
Shadow Study2021-05-04 - Sun Shadow Study - D07-12-21-0057
Site Servicing2022-11-10 - Approved Site Servicing Report - D07-12-21-0057
Site Servicing2022-11-10 - Approved Servicing Plan - D07-12-21-0057
Site Servicing2022-01-05 - Site Servicing Report - D07-12-21-0057
Site Servicing2021-09-23 - Site Servicing Report - D07-12-21-0057
Site Servicing2021-08-09 - Site Servicing Report - D07-12-21-0057
Site Servicing2021-05-04 - Site Servicing Report - D07-12-21-0057
Site Servicing2021-05-04 - Servicing Plan - D07-12-21-0057
Stormwater Management2022-11-10 - Approved Stormwater Management Report - D07-12-21-0057
Stormwater Management2021-09-23 - Stormwater Managment Report - D07-12-21-0057
Stormwater Management2021-05-04 - Stormwater Management Report - D07-12-21-0057
Surveying2021-08-09 - Topographical Survey - D07-12-21-0057
Surveying2021-05-04 - Surveyors Real Property Report - D07-12-21-0057
Transportation Analysis2021-05-04 - Transportation Impact Assessment Addendum 1 - D07-12-21-0057
Transportation Analysis2021-05-04 - Transportation Impact Assessment - D07-12-21-0057
Wind Study2021-05-04 - Wind Study - D07-12-21-0057
2022-11-10 - SIGNED DELEGATED AUTHORITY REPORT - D07-12-21-0057
2021-09-23 - Removals - D07-12-21-0057
2021-05-04 - LRT Proximity Study - D07-12-21-0057