Ottawa Development Projects

295-301 Ashton Ave./2046-2050 Scott St.#

Last updated: 2025-01-16 · ID: D07-12-21-0037

Summary#

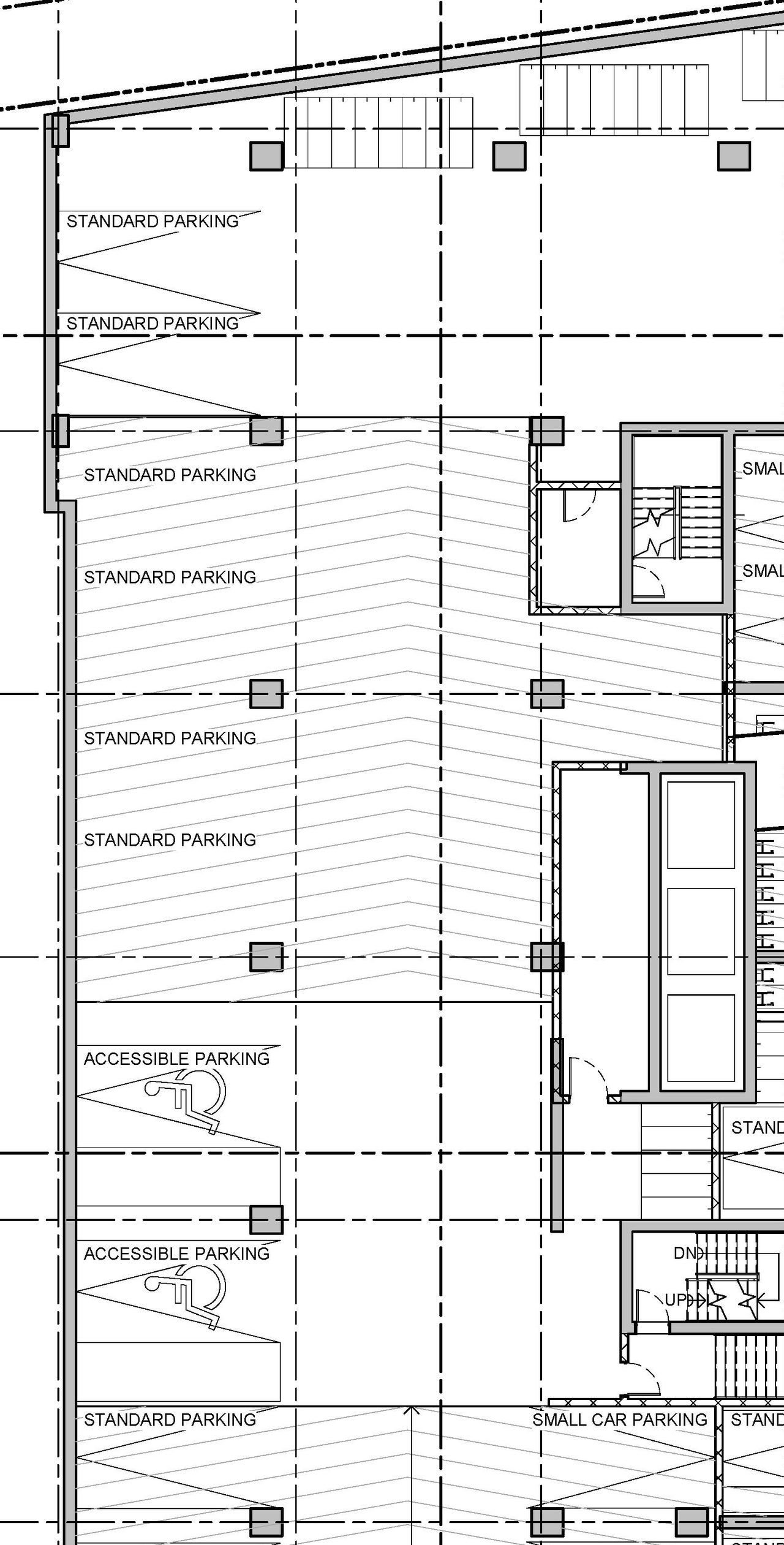
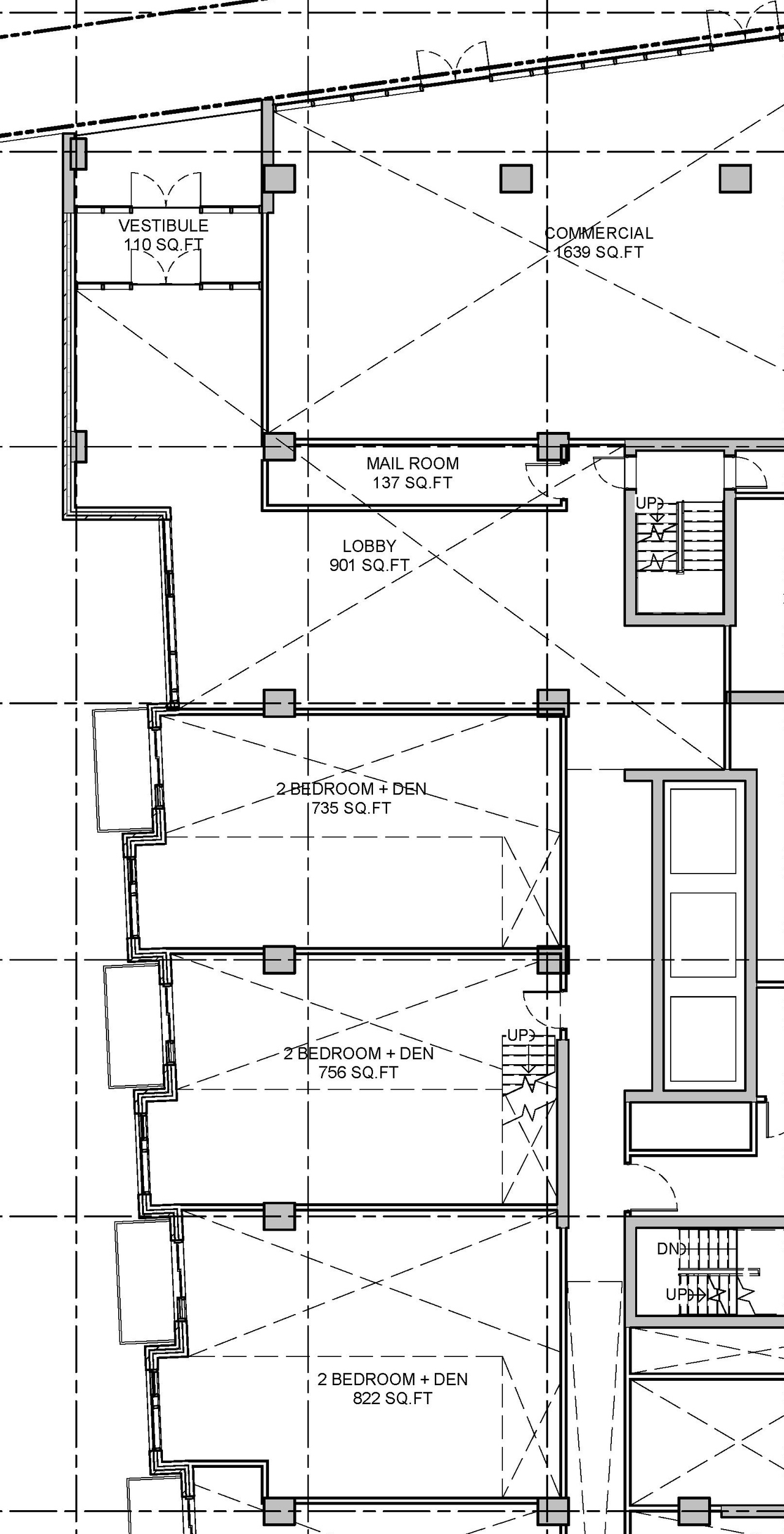
30-storey mixed use residential tower with 341 dwelling units, 210 underground parking spaces, 172 parking spaces, 2 commercial units at grade

Status
File Pending (Application File Pending)

Building Scale (Max.) Based on elevation drawings. Values may be approximate. See sources for exact figures.
High-rise · 30 storeys · 102 m

Renders#

Location#

Select a marker to view the address.

Site Plans, Elevations and Floor Plans#

Additional Information#

Date Initiated2021-03-19
WardWard 15 - Jeff Leiper
All Addresses295 Ashton Ave.
299 Ashton Ave.
301 Ashton Ave.
2046 Scott St.
2050 Scott St.

Documents#

TypeDocument
Adequacy Of Public Services2022-10-12 - Assessment of Adequacy of Public Services - D07-12-21-0037
Application Summary2021-04-28 - Application Summary - D07-12-21-0037
Architectural Plans2022-10-12 - Site Plan - D07-12-21-0037
Architectural Plans2022-10-12 - Elevations - D07-12-21-0037
Architectural Plans2022-09-02 - Plan and Profile - D07-12-21-0037
Architectural Plans2022-09-02 - Plan 6th Floor - D07-12-21-0037
Architectural Plans2022-03-07 - Site Plan with walkway - D07-12-21-0037
Architectural Plans2022-03-07 - Plan Ground - D07-12-21-0037
Architectural Plans2022-03-07 - Plan 6th Floor - D07-12-21-0037
Architectural Plans2021-04-07- Site Plan - D07-12-21-0037
Architectural Plans2021-04-07 - Surface Development Plan - D07-12-21-0037
Civil Engineering Report2022-10-12 - Civil Plans - D07-12-21-0037
Environmental2022-10-12 - Phase II Environmental Site Assessment - D07-12-21-0037
Environmental2022-10-12 - Phase I Environmental Site Assessment - D07-12-21-0037
Environmental2021-11-25 - Phase II Environmental Site Assessment - D07-12-21-0037
Environmental2021-04-07 - Phase II Environmental Site Assessment - D07-12-21-0037
Environmental2021-04-07 - Phase 1 Environmental Site Assessment - D07-12-21-0037
Erosion And Sediment Control Plan2022-09-03 - Erosion Control Plan - D07-12-21-0037
Erosion And Sediment Control Plan2021-04-07 - Erosion Control Plan - D07-12-21-0037
Existing Conditions2022-09-03 - Existing Conditions Plan - D07-12-21-0037
Floor Plan2021-11-25 - Floor Plans Elevations Site Plan Landscape Plan - D07-12-21-0037
Floor Plan2021-04-07- Floor Plans and Elevations - D07-12-21-0037
Geotechnical Report2022-10-12 - Geotechnical Investigation - D07-12-21-0037
Geotechnical Report2022-09-02 - Grading Plan - D07-12-21-0037
Geotechnical Report2021-04-07 - Grading Plan - D07-12-21-0037
Geotechnical Report2021-04-07 - Geotechnical Investigation - D07-12-21-0037
Landscape Plan2022-10-12 - Landscape Plans - D07-12-21-0037
Landscape Plan2022-09-02 - Landscape Plan - D07-12-21-0037
Landscape Plan2021-11-25 - Landscape Plan - D07-12-21-0037
Landscape Plan2021-04-07 - Landscape Plan - D07-12-21-0037
Noise Study2022-10-12 - Noise & Vibration Feasibility - D07-12-21-0037
Noise Study2021-04-07 - Noise and Vibration Feasibility - D07-12-21-0037
Planning2021-04-07 - Planning Rationale and Design Brief - D07-12-21-0037
Shadow Study2021-04-07- Sun Shadow - D07-12-21-0037
Site Servicing2022-09-03 - Site Servicing Plan - D07-12-21-0037
Site Servicing2021-11-25 - Site Servicing and Stormwater Management - D07-12-21-0037
Site Servicing2021-04-07 - Site Servicing Plan - D07-12-21-0037
Stormwater Management2021-04-07 - Stormwater Management Plan - D07-12-21-0037
Surveying2021-04-07 - Topographic Plan - D07-12-21-0037
Transportation Analysis2022-10-12 - Transportation Impact Assessment - D07-12-21-0037
Transportation Analysis2021-04-07 - Transportation Impact Assessment - D07-12-21-0037
Tree Information and Conservation2021-04-07 - Tree Conservation Report - D07-12-21-0037
Wind Study2022-10-12 - Pedestrian Level Wind Study Addendum - D07-12-21-0037
Wind Study2022-10-12 - Pedestrian Level Wind Study - D07-12-21-0037
Wind Study2022-09-02 - Wind Study - D07-12-21-0037
Wind Study2022-03-07 - Wind Study - D07-12-21-0037
Wind Study2021-11-25 - Wind Study - D07-12-21-0037
Wind Study2021-04-07 - Wind Study - D07-12-21-0037
2022-10-12 - New Water Main - D07-12-21-0037
2022-09-02 - Details - D07-12-21-0037