Ottawa Development Projects

2167 McGee Side Rd.#

Last updated: 2026-03-25 · ID: D07-12-21-0027

Summary#

To construct a 2 storey warehouse and office building

Status
Active (Preliminary Consensus)

Building Scale (Max.) Based on elevation drawings. Values may be approximate. See sources for exact figures.
Low-rise · 2 storeys Data Quality Note Text was extracted using optical character recognition. This may introduce artifacts or misreads. · 9.09 m Data Quality Note Text was extracted using optical character recognition. This may introduce artifacts or misreads.

Location#

Select a marker to view the address.

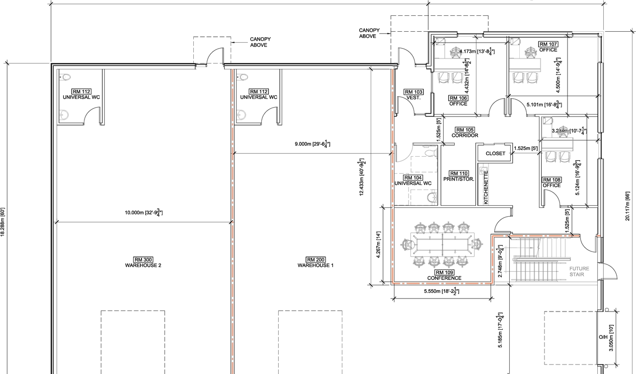
Site Plans, Elevations and Floor Plans#

Additional Information#

Date Initiated2021-02-26
WardWard 5 - Clarke Kelly

Documents#

TypeDocument
Application Summary2021-04-13 - Application Summary - D07-12-21-0027
Architectural Plans2024-01-19 - Site Plan, Detail Sheet and Architectural Elevations - D07-12-21-0027
Architectural Plans2024-01-19 - Pre-Development and Post Development Drainage Plan - D07-12-21-0027
Architectural Plans2024-01-19 - Engineering Notes and Details - D07-12-21-0027
Architectural Plans2023-10-13 - Site Plan and Garbage Enclosure Details - D07-12-21-0027
Architectural Plans2023-08-15 - Site Plan - D07-12-21-0027
Architectural Plans2023-08-15 - Pre-Development and Post Development Drainage Plan - D07-12-21-0027
Architectural Plans2023-08-15 - Notes and Details - D07-12-21-0027
Architectural Plans2023-06-30 - Pre-Development and Post Development Drainage Plan - D07-12-21-0027
Architectural Plans2023-06-30 - Notes and Details Plan - D07-12-21-0027
Architectural Plans2023-06-30 - Engineering Details Plan - D07-12-21-0027
Architectural Plans2023-06-30 - Architectural Drawings Combined - D07-12-21-0027
Architectural Plans2021-07-28 - Site Plan - D07-12-21-0027
Architectural Plans2021-07-28 - Elevations West North - D07-12-21-0027
Architectural Plans2021-07-28 - Elevations - D07-12-21-0027
Architectural Plans2021-06-14 - West and North Elevations - D07-12-21-0027
Architectural Plans2021-06-14 - Site Plan - D07-12-21-0027
Architectural Plans2021-06-14 - Pre Development Drainage Plan - D07-12-21-0027
Architectural Plans2021-06-14 - Post Development Drainage Plan - D07-12-21-0027
Architectural Plans2021-06-14 - East and South Elevations - D07-12-21-0027
Architectural Plans2021-03-30 - Detail Sheet - D07-12-21-0027
Architectural Plans2021-02-26 - Site Plan - D07-12-21-0027
Architectural Plans2021-02-26 - Engineering Details Plan - D07-12-21-0027
Architectural Plans2021-02-26 - Elevations West and North - D07-12-21-0027
Architectural Plans2021-02-26 - Elevations East and South - D07-12-21-0027
Architectural Plans2024-12-09 - Pre-Development & Post Development Drainage Plan - D07-12-21-0027
Architectural Plans2024-12-09 - Notes and Details - D07-12-21-0027
Architectural Plans2024-12-09 - Details Plan - D07-12-21-0027
Architectural Plans2024-12-09 - Architectural Drawings - D07-12-21-0027
Architectural Plans2025-07-03 - Site Plan and Architectural - D07-12-21-0027
Architectural Plans2025-07-03 - Notes and Details - D07-12-21-0027
Drainage Plan2021-03-30 - Drainage Plan and Notes - D07-12-21-0027
Electrical Plan2023-08-15 - Site Lighting Plan - D07-12-21-0027
Electrical Plan2023-06-30 - Lighting Plan - D07-12-21-0027
Electrical Plan2021-06-14 - Site Lighting Plan - D07-12-21-0027
Electrical Plan2021-02-26 - Site Lighting Plan - D07-12-21-0027
Environmental2023-06-30 - Phase I Environmental Site Assessment - D07-12-21-0027
Environmental2021-02-26 - Environmental Site Assessment - D07-12-21-0027
Erosion And Sediment Control Plan2024-01-19 - Erosion & Sediment Control Plan - D07-12-21-0027
Erosion And Sediment Control Plan2023-08-15 - Erosion & Sediment Control Plan - D07-12-21-0027
Erosion And Sediment Control Plan2023-06-30 - Erosion and Sediment Control Plan - D07-12-21-0027
Erosion And Sediment Control Plan2021-07-28 - Erosion and Sediment Control - D07-12-21-0027
Erosion And Sediment Control Plan2021-06-14 - Erosion and Sediment Control Plan - D07-12-21-0027
Erosion And Sediment Control Plan2021-03-30 - Erosion Sediment Control Plan - D07-12-21-0027
Erosion And Sediment Control Plan2021-03-16 - Erosion Sediment Control Plan - D07-12-21-0027
Erosion And Sediment Control Plan2024-12-09 - Erosion & Sediment Control Plan - D07-12-21-0027
Erosion And Sediment Control Plan2025-07-03 - Erosion and Sediment Control Plan - D07-12-21-0027
Floor Plan2021-02-26 - Ground Floor Plan - D07-12-21-0027
Geotechnical Report2024-01-19 - Grading Plan - D07-12-21-0027
Geotechnical Report2024-01-19 - Geotechnical Investigation - D07-12-21-0027
Geotechnical Report2023-10-13 - Hydrogeological Report and Terrain Analysis - D07-12-21-0027
Geotechnical Report2023-10-13 - Geotechnical Investigation Report - D07-12-21-0027
Geotechnical Report2023-08-15 - Grading Plan - D07-12-21-0027
Geotechnical Report2023-06-30 - Grading Plan - D07-12-21-0027
Geotechnical Report2023-06-30 - Geotechnical Investigation Report - D07-12-21-0027
Geotechnical Report2021-07-28 - Hydrogeological and Terrain Analysis - D07-12-21-0027
Geotechnical Report2021-06-28 - Grading Plan - D07-12-21-0027
Geotechnical Report2021-06-14 - Grading Plan - D07-12-21-0027
Geotechnical Report2021-03-30 - Grading Plan - D07-12-21-00027
Geotechnical Report2021-02-26 - Geotech Report - D07-12-21-0027
Geotechnical Report2024-12-09 - Grading Plan - D07-12-21-0027
Geotechnical Report2024-12-09 - Geotechnical Investigation - D07-12-21-0027
Geotechnical Report2025-07-03 - Grading Plan - D07-12-21-0027
Geotechnical Report2025-07-03 - Geotechnical Investigation - D07-12-21-0027
Landscape Plan2024-01-19 - Landscape Plan - D07-12-21-0027
Landscape Plan2023-06-30 - Landscape Plan - D07-12-21-0027
Landscape Plan2021-07-28 - Landscape Plan - D07-12-21-0027
Landscape Plan2025-07-03 - Landscape Plan - D07-12-21-0027
Planning2023-06-30 - Planning Rationale - D07-12-21-0027
Planning2021-02-26 - Planning Rationale Report - D07-12-21-0027
Shadow Study2024-01-19 - Side Rd FUS Fire Flow Calculations - D07-12-21-0027
Shadow Study2024-01-19 - OBC Fire Flow Calculations - D07-12-21-0027
Shadow Study2024-12-09 - Required Fire Flow FUS - D07-12-21-0027
Shadow Study2024-12-09 - Fire Flow Memorandum - D07-12-21-0027
Site Servicing2024-01-19 - Site Servicing Study & SWM Report - D07-12-21-0027
Site Servicing2024-01-19 - Site Servicing Plan - D07-12-21-0027
Site Servicing2023-08-15 - Site Servicing Plan - D07-12-21-0027
Site Servicing2023-08-15 - Servicing Brief & SWM Report - D07-12-21-0027
Site Servicing2023-06-30 - Site Servicing Plan - D07-12-21-0027
Site Servicing2021-07-28 - Site Servicing Plan - D07-12-21-0027
Site Servicing2021-07-28 - Servicing Brief Stormwater Management Report - D07-12-21-0027
Site Servicing2021-06-14 - Site Servicing Plan - D07-12-21-0027
Site Servicing2021-06-14 - Servicing Brief and Stormwater Management Report - D07-12-21-0027
Site Servicing2021-03-30 - Site Servicing Plan - D07-12-21-0027
Site Servicing2021-03-30 - Servicing Brief and Stormwater Management Report - D07-12-21-0027
Site Servicing2021-03-16 - Site Servicing Plan - D07-12-21-0027
Site Servicing2024-12-09 - Site Servicing Plan - D07-12-21-0027
Site Servicing2024-12-09 - Site Servicing & SWM Report - D07-12-21-0027
Site Servicing2025-07-03 - Site Servicing Plan - D07-12-21-0027
Site Servicing2025-07-03 - Servicing Study and Stormwater Management Report - D07-12-21-0027
Surveying2023-06-30 - Survey Plan - D07-12-21-0027
Surveying2021-02-26 - Survey Plan - D07-12-21-0027
Transportation Analysis2023-06-30 - Transportation Impact Assessment Screening Form - D07-12-21-0027
Tree Information and Conservation2023-10-13 - Tree Conservation Report and Landscape Plan - D07-12-21-0027
Tree Information and Conservation2023-08-15 - Landscape Plan and TCR - D07-12-21-0027
Tree Information and Conservation2021-03-30 - Tree Conservation Report - D07-12-21-0027
Tree Information and Conservation2024-12-09 - Tree Conservation Report & Landscape Plan - D07-12-21-0027
2024-01-19 - Septic System - D07-12-21-0027
2024-01-19 - Retaining Walls - D07-12-21-0027
2024-01-19 - Infiltration Testing Locations & Results - D07-12-21-0027
2024-01-19 - Engineering Details - D07-12-21-0027
2023-08-15 - Septic System Design - D07-12-21-0027
2023-08-15 - Details Sheet - D07-12-21-0027
2023-06-30 - Septic System Design - D07-12-21-0027
2021-07-28 - Details - D07-12-21-0027
2021-06-14 - Water Supply and Hydrogeological Assessment - D07-12-21-0027
2021-06-14 - Garbage Enclosure Details - D07-12-21-0027
2021-06-14 - Details Sheet - D07-12-21-0027
2021-03-30 - Water Supply Assessment - D07-12-21-0027
2024-12-09 - Septic System - D07-12-21-0027
2025-07-03 - Water Supply Assessment Report - D07-12-21-0027
2025-07-03 - Septic System - D07-12-21-0027
2025-07-03 - Pre Development and Post Development Drainage - D07-12-21-0027
2025-07-03 - Memo Channel Review - D07-12-21-0027
2025-07-03 - Details Sheet - D07-12-21-0027