2822 Carp Rd.#
Last updated: 2023-01-03 · ID: D07-12-21-0004
Summary#
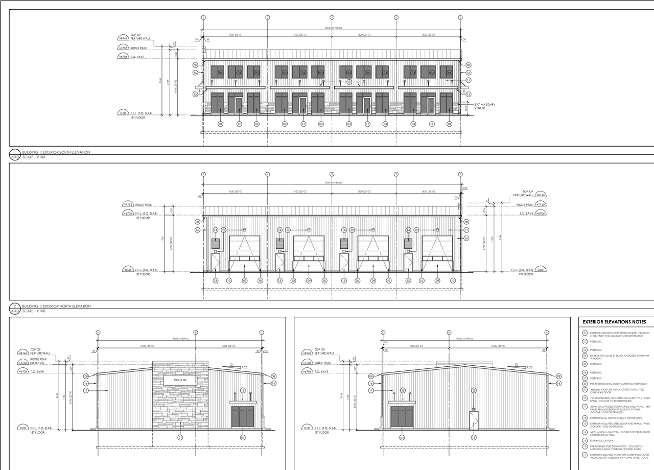
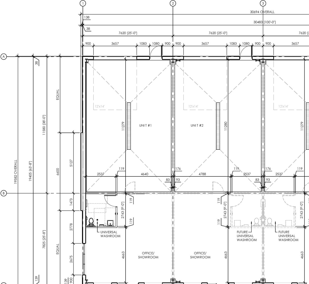
The proposed development includes contruction of 2 new 6,400 sq.ft. footprint multi-tenant commercial buildings on this property. There will be 1 primary tenant in each building with some smaller attached rental bays. The existing sales building will be removed from site, after contruction of the new facility is complete.
Status
File Pending (Application File Pending)
Building Scale (Max.)
Based on elevation drawings. Values may be approximate. See sources for exact figures.
Low-rise · 2 storeys
· 8.15 m
Location#
Select a marker to view the address.
Site Plans, Elevations and Floor Plans#
Additional Information#
| Date Initiated | 2021-01-11 |
| Ward | Ward 5 - Clarke Kelly |



