Ottawa Development Projects

229-247 Beechwood Ave.#

Last updated: 2025-08-08 · ID: D07-12-21-0001

Summary#

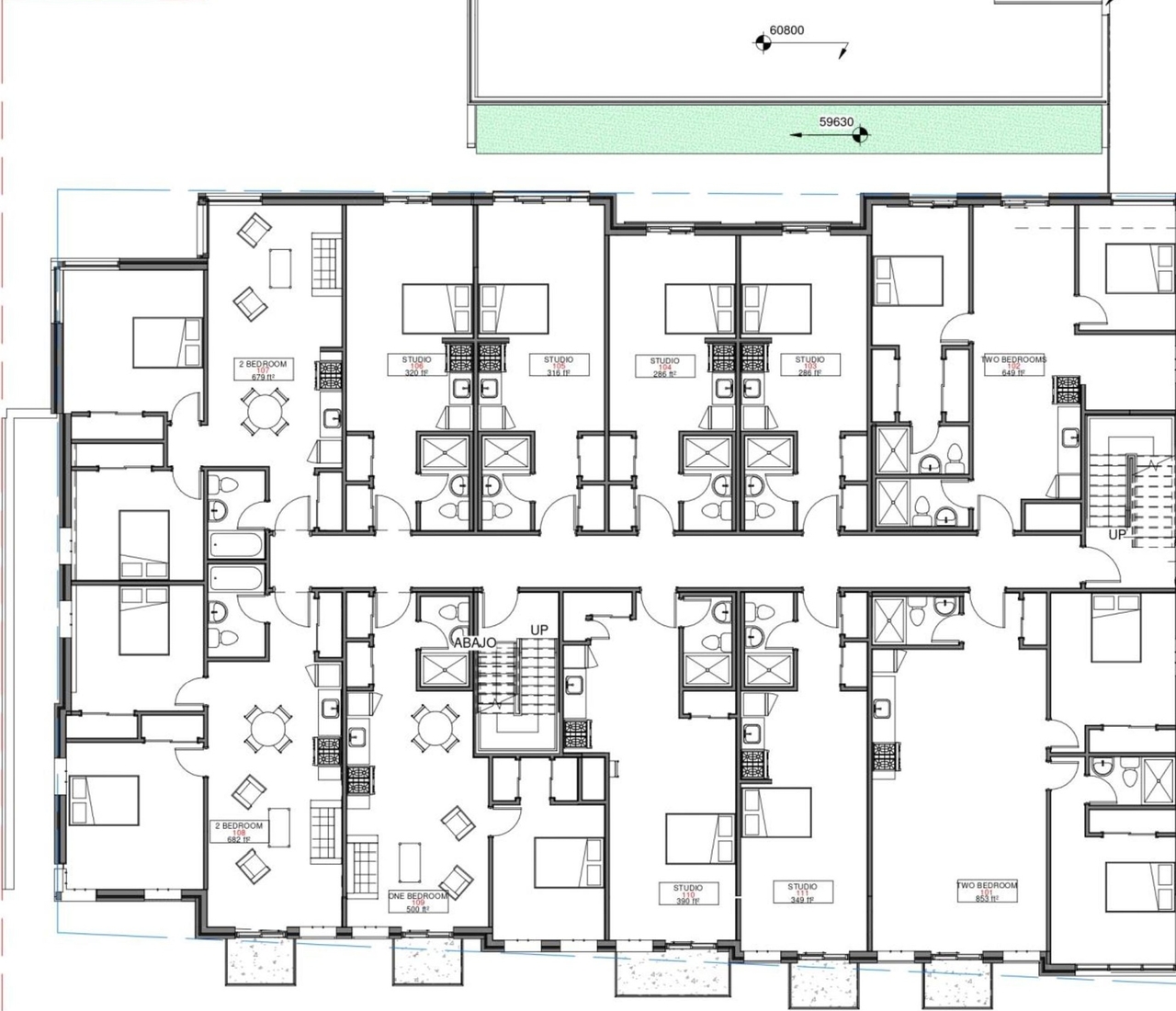
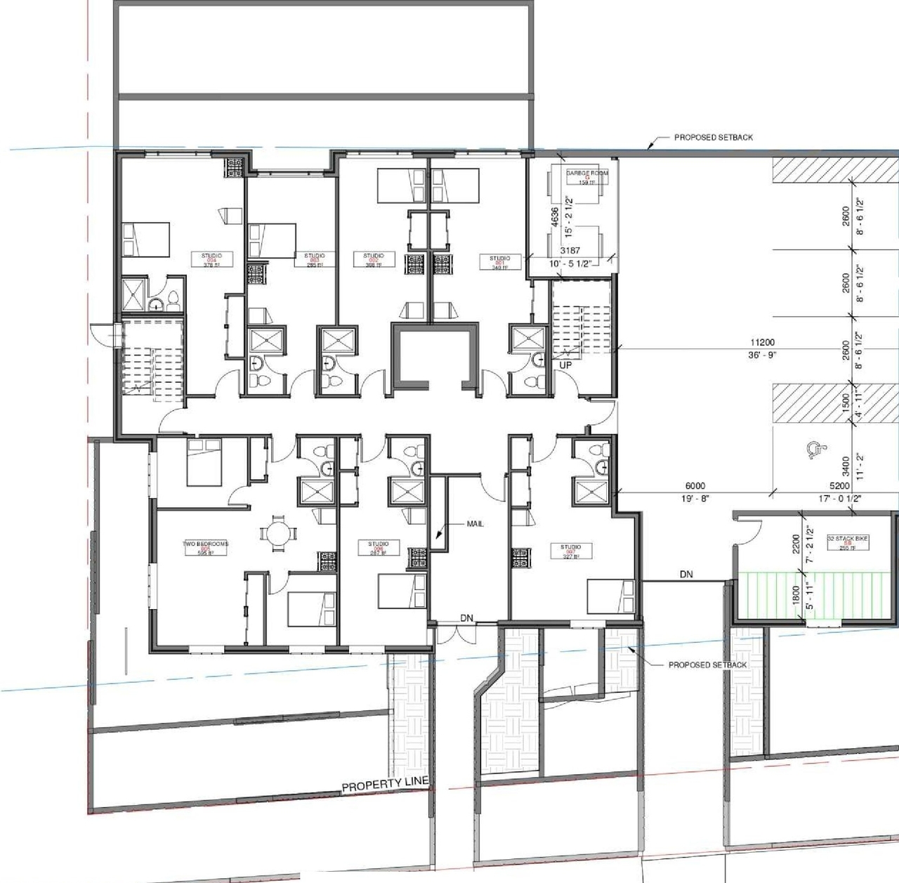
The proposal redevelop the site with two low-rise apartment buildings with shared visitor parking. The buildings will be three and four storeys in height and will contain a total of 102 dwelling units. The buildings are designed with internal bicycle parking and rooftop amenity areas. The development includes the proposed closure and acquisition of the Carsdale Avenue right-of-way, subject to conveyance of easements for existing underground infrastructure, to provide vehicular access to 10 visitor parking spaces and accommodate a publicly accessible parkette along the street.

Status
Active (Approval Package Not Accepted)

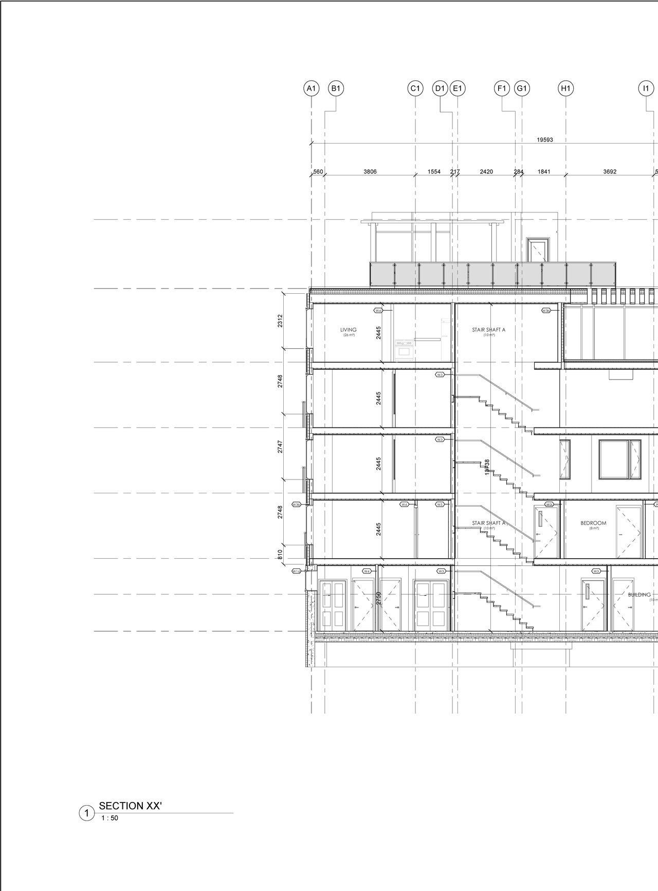
Building Scale (Max.) Based on elevation drawings. Values may be approximate. See sources for exact figures.
Mid-rise · 4 storeys · 12.2 m Data Quality Note Height was partially estimated using visual scale. This may be approximate.

Renders#

Location#

Select a marker to view the address.

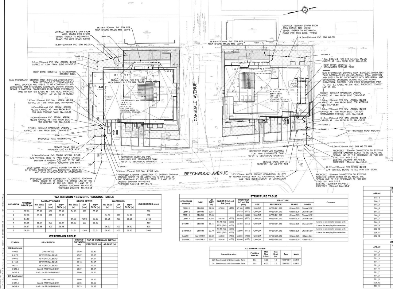
Site Plans, Elevations and Floor Plans#

  • Image from page 27 of the file '2022-05-03 - UDRP Formal Review Package - D07-12-21-0001'
  • Image from page 28 of the file '2022-05-03 - UDRP Formal Review Package - D07-12-21-0001'
  • Image from page 11 of the file '2023-08-24 - Site Plan, Floor Plans and Elevations - D07-12-21-0001'
  • Image from page 16 of the file '2023-08-24 - Site Plan, Floor Plans and Elevations - D07-12-21-0001'
  • Image from page 15 of the file '2023-08-24 - Site Plan, Floor Plans and Elevations - D07-12-21-0001'
  • Construction site plan for project from page 37 of the file '2022-05-03 - UDRP Formal Review Package - D07-12-21-0001'
  • Construction site plan for project from page 14 of the file '2022-05-03 - UDRP Formal Review Package - D07-12-21-0001'
  • Construction site plan for project from page 1 of the file '2023-08-24 - Site Plan, Floor Plans and Elevations - D07-12-21-0001'
  • Construction site plan for project from page 36 of the file '2022-05-03 - UDRP Formal Review Package - D07-12-21-0001'
  • Construction site plan for project from page 26 of the file '2022-05-03 - UDRP Formal Review Package - D07-12-21-0001'
  • Construction site plan for project from page 5 of the file '2023-08-24 - Site Plan, Floor Plans and Elevations - D07-12-21-0001'
  • Construction site plan for project from page 5 of the file '2022-05-03 - UDRP Formal Review Package - D07-12-21-0001'
  • Construction site plan for project from page 16 of the file '2022-05-03 - UDRP Formal Review Package - D07-12-21-0001'
  • Construction site plan for project from page 37 of the file '2022-05-03 - UDRP Formal Review Package - D07-12-21-0001'
  • Construction site plan for project from page 6 of the file '2023-08-24 - Site Plan, Floor Plans and Elevations - D07-12-21-0001'
  • Construction site plan for project from page 4 of the file '2023-08-24 - Site Plan, Floor Plans and Elevations - D07-12-21-0001'
  • Construction site plan for project from page 21 of the file '2022-05-03 - UDRP Formal Review Package - D07-12-21-0001'
  • Construction site plan for project from page 7 of the file '2023-08-24 - Site Plan, Floor Plans and Elevations - D07-12-21-0001'
  • Construction site plan for project from page 8 of the file '2022-05-03 - UDRP Formal Review Package - D07-12-21-0001'
  • Construction site plan for project from page 25 of the file '2022-05-03 - UDRP Formal Review Package - D07-12-21-0001'
  • Construction site plan for project from page 20 of the file '2022-05-03 - UDRP Formal Review Package - D07-12-21-0001'
  • Construction site plan for project from page 13 of the file '2023-08-24 - Site Plan, Floor Plans and Elevations - D07-12-21-0001'
  • Construction site plan for project from page 1 of the file '2023-08-24 - Site Plan, Floor Plans and Elevations - D07-12-21-0001'
  • Floor plan for project from page 36 of the file '2022-05-03 - UDRP Formal Review Package - D07-12-21-0001'
  • Floor plan for project from page 22 of the file '2022-05-03 - UDRP Formal Review Package - D07-12-21-0001'
  • Floor plan for project from page 17 of the file '2022-05-03 - UDRP Formal Review Package - D07-12-21-0001'
  • Image from page 27 of the file '2022-05-03 - UDRP Formal Review Package - D07-12-21-0001'
  • Image from page 28 of the file '2022-05-03 - UDRP Formal Review Package - D07-12-21-0001'
  • Image from page 11 of the file '2023-08-24 - Site Plan, Floor Plans and Elevations - D07-12-21-0001'
  • Image from page 16 of the file '2023-08-24 - Site Plan, Floor Plans and Elevations - D07-12-21-0001'
  • Image from page 15 of the file '2023-08-24 - Site Plan, Floor Plans and Elevations - D07-12-21-0001'
  • Construction site plan for project from page 37 of the file '2022-05-03 - UDRP Formal Review Package - D07-12-21-0001'
  • Construction site plan for project from page 14 of the file '2022-05-03 - UDRP Formal Review Package - D07-12-21-0001'
  • Construction site plan for project from page 1 of the file '2023-08-24 - Site Plan, Floor Plans and Elevations - D07-12-21-0001'
  • Construction site plan for project from page 36 of the file '2022-05-03 - UDRP Formal Review Package - D07-12-21-0001'
  • Construction site plan for project from page 26 of the file '2022-05-03 - UDRP Formal Review Package - D07-12-21-0001'
  • Construction site plan for project from page 5 of the file '2023-08-24 - Site Plan, Floor Plans and Elevations - D07-12-21-0001'
  • Construction site plan for project from page 5 of the file '2022-05-03 - UDRP Formal Review Package - D07-12-21-0001'
  • Construction site plan for project from page 16 of the file '2022-05-03 - UDRP Formal Review Package - D07-12-21-0001'
  • Construction site plan for project from page 37 of the file '2022-05-03 - UDRP Formal Review Package - D07-12-21-0001'
  • Construction site plan for project from page 6 of the file '2023-08-24 - Site Plan, Floor Plans and Elevations - D07-12-21-0001'
  • Construction site plan for project from page 4 of the file '2023-08-24 - Site Plan, Floor Plans and Elevations - D07-12-21-0001'
  • Construction site plan for project from page 21 of the file '2022-05-03 - UDRP Formal Review Package - D07-12-21-0001'
  • Construction site plan for project from page 7 of the file '2023-08-24 - Site Plan, Floor Plans and Elevations - D07-12-21-0001'
  • Construction site plan for project from page 8 of the file '2022-05-03 - UDRP Formal Review Package - D07-12-21-0001'
  • Construction site plan for project from page 25 of the file '2022-05-03 - UDRP Formal Review Package - D07-12-21-0001'
  • Construction site plan for project from page 20 of the file '2022-05-03 - UDRP Formal Review Package - D07-12-21-0001'
  • Construction site plan for project from page 13 of the file '2023-08-24 - Site Plan, Floor Plans and Elevations - D07-12-21-0001'
  • Construction site plan for project from page 1 of the file '2023-08-24 - Site Plan, Floor Plans and Elevations - D07-12-21-0001'
  • Floor plan for project from page 36 of the file '2022-05-03 - UDRP Formal Review Package - D07-12-21-0001'
  • Floor plan for project from page 22 of the file '2022-05-03 - UDRP Formal Review Package - D07-12-21-0001'
  • Floor plan for project from page 17 of the file '2022-05-03 - UDRP Formal Review Package - D07-12-21-0001'

Additional Information#

Date Initiated2021-01-04
WardWard 13 - Rawlson King
All Addresses229 Beechwood Ave.
231 Beechwood Ave.
241 Beechwood Ave.
245 Beechwood Ave.
247 Beechwood Ave.

Documents#

TypeDocument
Application Summary2021-02-03 - Application Summary - D07-12-21-0001
Architectural Plans2023-08-24 - Site Grading Plan - D07-12-21-0001
Architectural Plans2022-03-24 - Site Plan - D07-12-21-0001
Architectural Plans2022-03-24 - Architectural Drawings - D07-12-21-0001
Architectural Plans2021-11-02 - Site Plan - D07-12-21-0001
Architectural Plans2021-11-02 - Basement Plan - D07-12-21-0001
Architectural Plans2021-01-04 - Site Plan - D07-12-21-0001
Architectural Plans2021-01-04 - Site Grading Plan - D07-12-21-0001
Architectural Plans2021-01-04 - Elevations West and South - D07-12-21-0001
Architectural Plans2021-01-04 - Elevations East and North - D07-12-21-0001
Architectural Plans2025-03-17 - Site Plan and Zoing Information - D07-12-21-0001
Architectural Plans2025-06-17 - Site Plan + Zoning Information - D07-12-21-0001
Architectural Plans2025-06-17 - Elevations - D07-12-21-0001
Architectural Plans2025-08-07 - South Elevations - D07-12-21-0001
Civil Engineering Report2025-03-17 - Civil Drawings - D07-12-21-0001
Civil Engineering Report2025-06-17 - Civil Drawings - D07-12-21-0001
Design Brief2022-05-03 - UDRP Formal Review Package - D07-12-21-0001
Environmental2022-03-24 - Phase Two Environmental Site Assessment - D07-12-21-0001
Environmental2022-03-24 - Phase One Environmental Site Assessment - D07-12-21-0001
Environmental2021-01-04 - Phase One Environmental Site Assessment - D07-12-21-0001
Erosion And Sediment Control Plan2023-08-24 - Erosion & Sediment Control Plan - D07-12-21-0001
Erosion And Sediment Control Plan2022-03-24 - Erosion & Sediment Control Plan - D07-12-21-0001
Erosion And Sediment Control Plan2021-01-04 - Erosion and Sediment Control Plan - D07-12-21-0001
Existing Conditions2023-08-24 - Existing Conditions Plan - D07-12-21-0001
Existing Conditions2022-03-24 - Existing Conditions Plan - D07-12-21-0001
Floor Plan2023-08-24 - Site Plan, Floor Plans and Elevations - D07-12-21-0001
Geotechnical Report2022-03-28 - Updated Geotechnical Investigation Report - D07-12-21-0001
Geotechnical Report2022-03-24 - Grading Plan - D07-12-21-0001
Geotechnical Report2021-01-04 - Geotechnical Investigation - D07-12-21-0001
Landscape Plan2023-08-24 - Landscape Plan - D07-12-21-0001
Landscape Plan2022-03-24 - Landscape Plan - D07-12-21-0001
Landscape Plan2021-11-02 - Landscape - D07-12-21-0001
Landscape Plan2021-02-04 - Landscape Plan - D07-12-21-0001
Landscape Plan2025-03-17 - Landscape Plan - D07-12-21-0001
Landscape Plan2025-06-17 - Landscape Plan - D07-12-21-0001
Noise Study2021-01-04 - Traffic Noise - D07-12-21-0001
Planning2021-01-04 - Planning Rationale - D07-12-21-0001
Site Servicing2023-08-24 - Site Servicing Plan - D07-12-21-0001
Site Servicing2023-08-24 - Site Servicing and Stormwater Management Report - D07-12-21-0001
Site Servicing2022-03-24 - Site Servicing Plan - D07-12-21-0001
Site Servicing2022-03-24 - Servicing & Stormwater Management Report - D07-12-21-0001
Site Servicing2021-01-04 - Site Servicing Plan - D07-12-21-0001
Site Servicing2021-01-04 - Site Servicing and Stormwater Management Report - D07-12-21-0001
Site Servicing2025-03-17 - Servicing SWM Report - D07-12-21-0001
Site Servicing2025-06-17 - Servicing & Storm Water Management Report - D07-12-21-0001
Stormwater Management2023-08-24 - Storm Drainage Plan - D07-12-21-0001
Stormwater Management2022-03-24 - Storm Drainage Plan - D07-12-21-0001
Stormwater Management2021-01-04 - Storm Drainage Plan - D07-12-21-0001
Surveying2021-01-04 - Survey - D07-12-21-0001
Transportation Analysis2022-03-24 - Transportation Impact Assessment - D07-12-21-0001
Tree Information and Conservation2022-03-24 - Tree Conservation Report - D07-12-21-0001
Tree Information and Conservation2025-03-17 - Tree Conversation Report - D07-12-21-0001
Tree Information and Conservation2025-06-17 - Tree Conservation Report - D07-12-21-0001
2023-08-24 - Notes & Legend Sheet - D07-12-21-0001
2022-03-24 - Notes & Legend - D07-12-21-0001
2022-03-24 - Cultural Heritage Impact Statement - D07-12-21-0001
2021-01-04 - Notes and Legend Sheet - D07-12-21-0001
2021-01-04 - Cultrual Heritage Impact Study - D07-12-21-0001
2024-10-17 - 20241016 - D07-12-21-0001
2024-10-17 - Previous and New design - D07-12-21-0001
2025-06-17 - Previous and New design - D07-12-21-0001
2025-08-07 - Skyline Flush - D07-12-21-0001