374 McArthur Ave.#
Last updated: 2024-09-04 · ID: D07-12-20-0192
Summary#
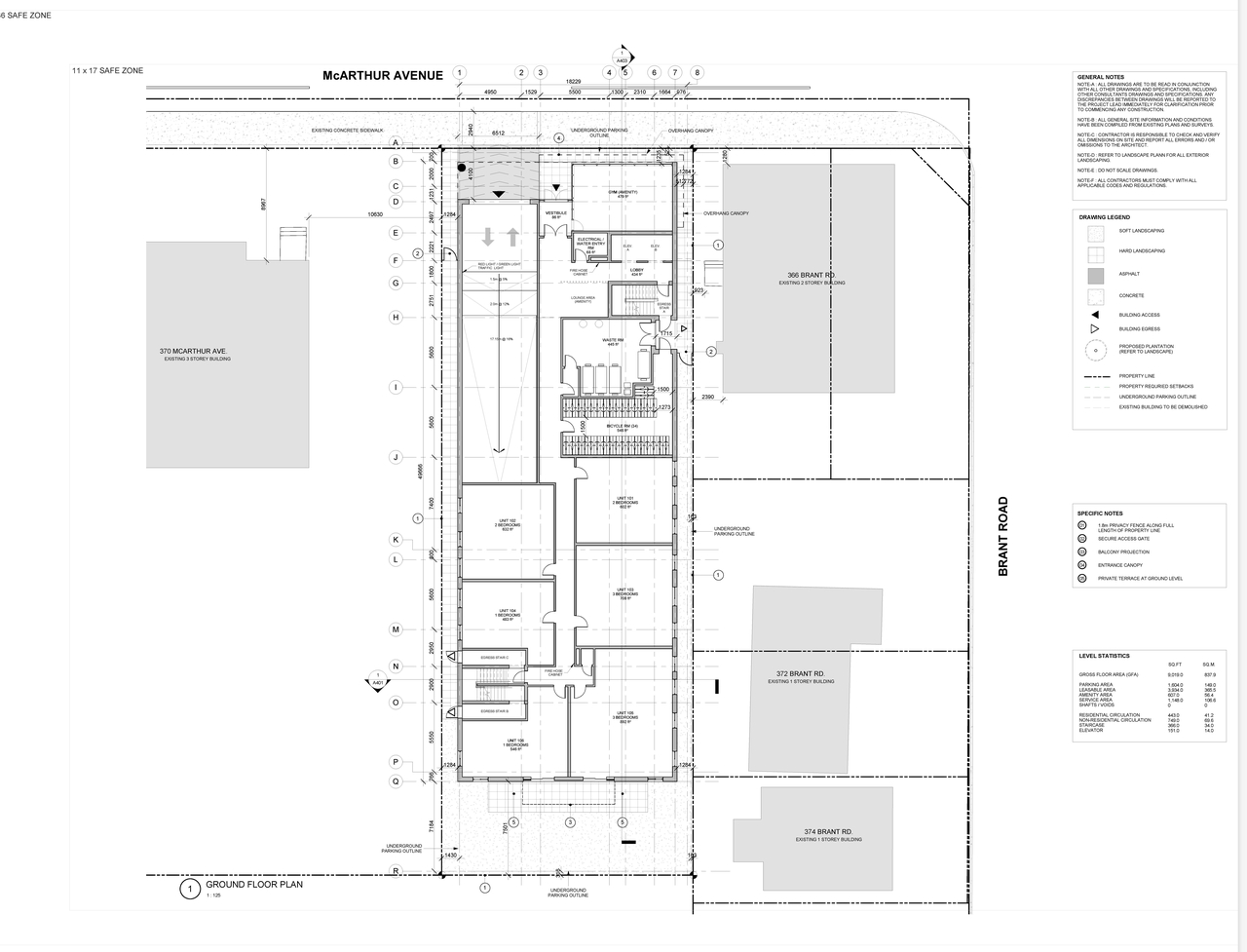
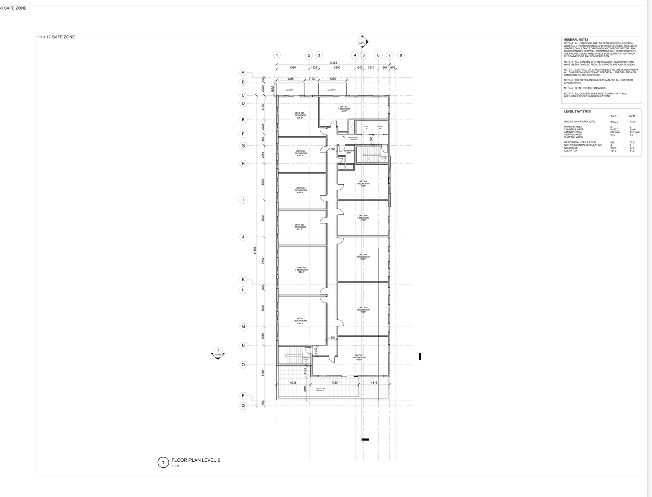
To construct a 6 storey rental apartment building with a level of underground parking and an additional partial underground level with storage areas, bicycle parking, mechanical/electrical rooms and the laundry room.
Status
Post Approval (Receipt of Agreement from Owner Pending)
Building Scale (Max.)
Based on elevation drawings. Values may be approximate. See sources for exact figures.
Mid-rise · 6 storeys
· 22.2 m
Location#
Select a marker to view the address.
Site Plans, Elevations and Floor Plans#
Additional Information#
| Date Initiated | 2020-12-24 |
| Ward | Ward 12 - Stéphanie Plante |
Documents#
Related Projects#
| Project | Last Updated | Date Initiated |
|---|---|---|
374 McArthur Ave.
D07-05-21-0009 | 2021-11-22 | 2021-09-16 |


