69-76 Barrette St./78-88 Beechwood Ave.#
Last updated: 2022-10-28 · ID: D07-12-20-0186
Summary#
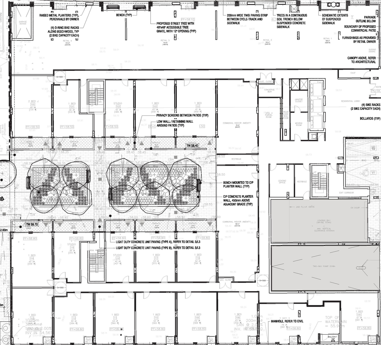
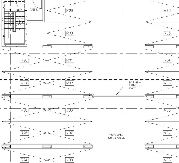
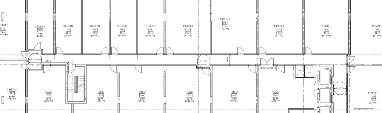
Proposed development is a 9 storey mixed use building to include 6,135 ft2 of ground floor commercial and approximately 158,639 ft2 pf GFA for appoximately 226 units. Residiental garage access would be from Barrett Street. The arage would include parking for 159 vehicles across two levels.
Status
Post Approval (Agreement Registered - Final Legal Clearance Given)
Building Scale (Max.)
Based on elevation drawings. Values may be approximate. See sources for exact figures.
Mid-rise · 9 storeys
· 34.4 m
Renders#
Location#
Select a marker to view the address.
Site Plans, Elevations and Floor Plans#
Additional Information#
| Date Initiated | 2020-12-21 |
| Ward | Ward 13 - Rawlson King |
| All Addresses | 69 Barrette St. 70 Barrette St. 71 Barrette St. 72 Barrette St. 73 Barrette St. 74 Barrette St. 76 Barrette St. 78 Beechwood Ave. 80 Beechwood Ave. 81 Beechwood Ave. 82 Beechwood Ave. 84 Beechwood Ave. 86 Beechwood Ave. 88 Beechwood Ave. |























