1518-1526 Stittsville Main St.#
Summary#
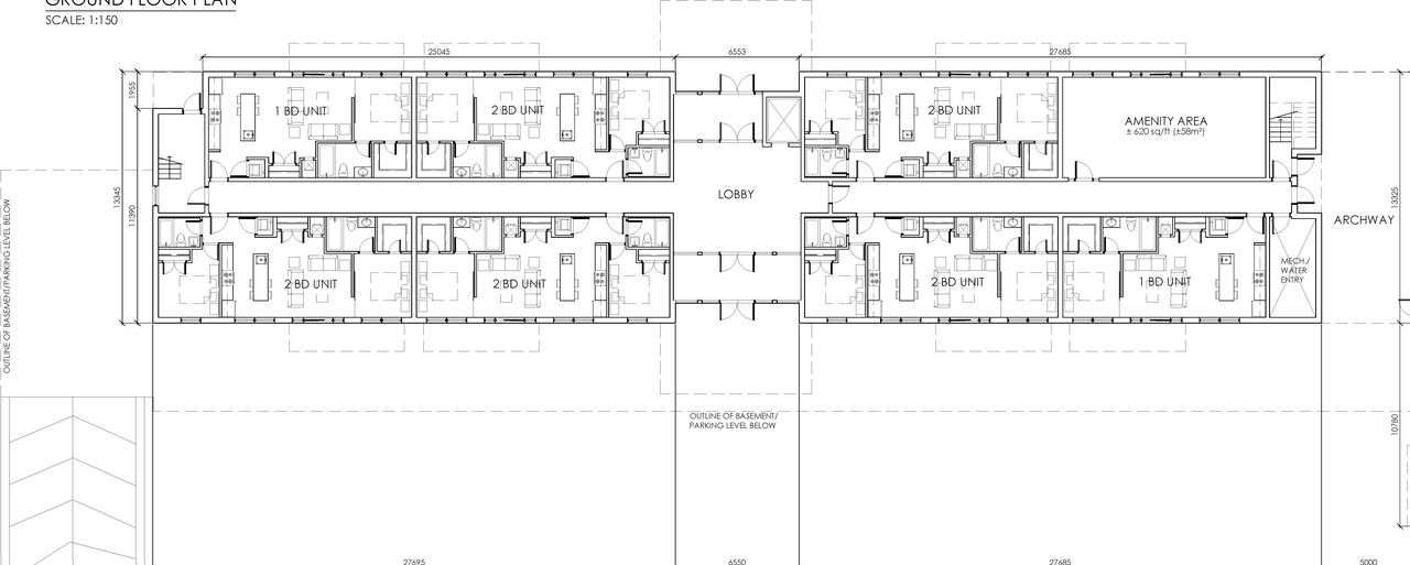
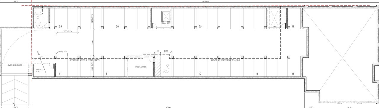
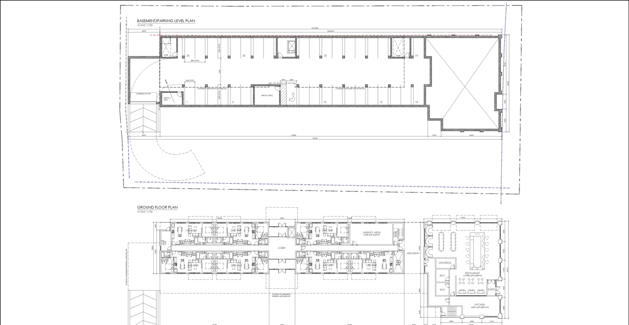
A four-storey, 33 unit residential apartment building is proposed along with two-storey commercial buildings with ground floor restaurant space (and a patio) and second floor office space. 77 vehicular parking spaces are proposed in total (35 underground and 42 at grade). Bicycle parking spaces are also proposed.
Status
Post Approval (Receipt of Agreement from Owner Pending)
Building Scale (Max.)
Based on elevation drawings. Values may be approximate. See sources for exact figures.
Mid-rise · 4 storeys
Data Quality Note
Text was extracted using optical character recognition. This may introduce artifacts or misreads.
· 10.4 m
Data Quality Note
Height was partially estimated using visual scale. This may be approximate.
Data Quality Note
Text was extracted using optical character recognition. This may introduce artifacts or misreads.
Renders#
Location#
Site Plans, Elevations and Floor Plans#
Additional Information#
| Date Initiated | 2020-11-30 |
| Ward | Ward 6 - Glen Gower |
| All Addresses | 1518 Stittsville Main St. 1524 Stittsville Main St. 1526 Stittsville Main St. |
Documents#
Related Projects#
| Project | Last Updated | Date Initiated |
|---|---|---|
1518-1526 Stittsville Main St.
D07-12-24-0093 | 2025-06-19 | 2024-08-26 |


















