Ottawa Development Projects

3817-3843 Innes Rd.#

Last updated: 2026-02-06 · ID: D07-12-20-0164

Summary#

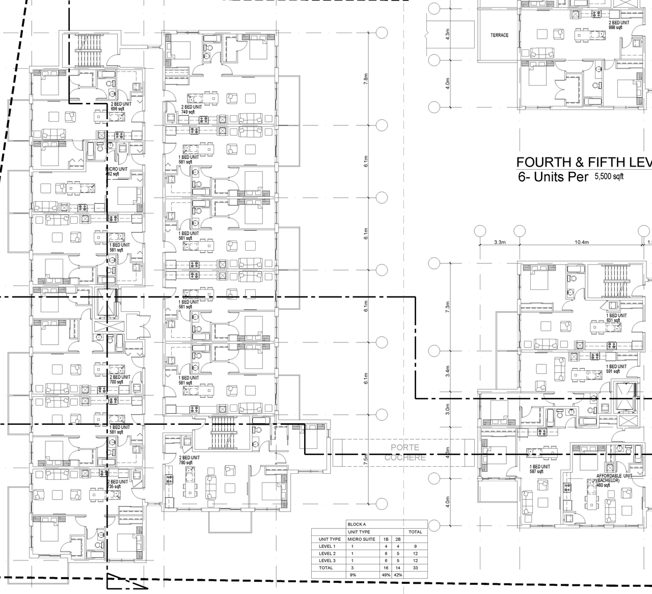
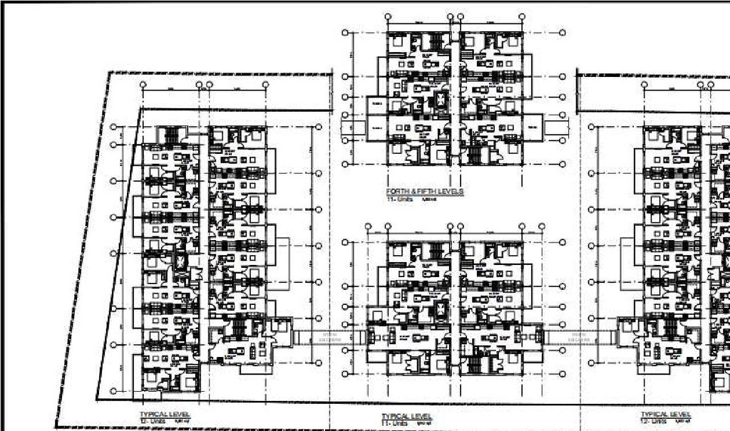
Revised: To construct 2 4-storey apartment buildings with a total of 110 residential units. The two buildings are within the R4Z zone permissions for setbacks. One access point is now proposed.

Status
Post Approval (Receipt of Agreement from Owner Pending)

Building Scale (Max.) Based on elevation drawings. Values may be approximate. See sources for exact figures.
Mid-rise · 5 storeys Data Quality Note Text was extracted using optical character recognition. This may introduce artifacts or misreads. · 12.9 m Data Quality Note Height was partially estimated using visual scale. This may be approximate. Data Quality Note Text was extracted using optical character recognition. This may introduce artifacts or misreads.

Location#

Select a marker to view the address.

Site Plans, Elevations and Floor Plans#

  • Image from page 27 of the file '2021-04-28 - Design Brief - D07-12-20-0164'
  • Image from page 12 of the file '2021-04-28 - Design Brief - D07-12-20-0164'
  • Image from page 16 of the file '2021-04-28 - Design Brief - D07-12-20-0164'
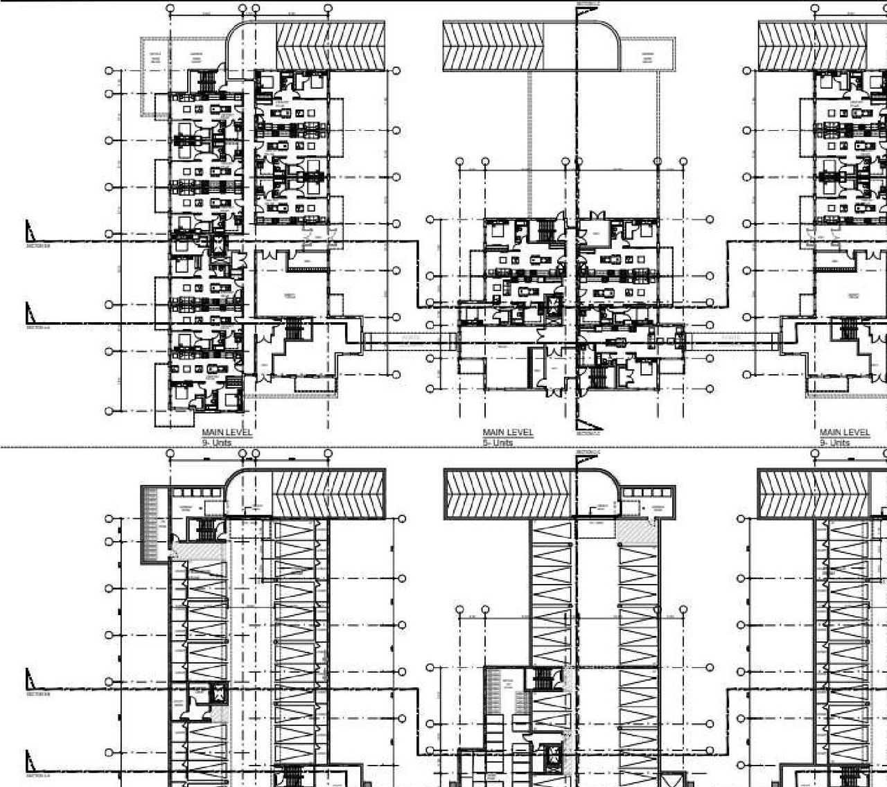
  • Image from page 10 of the file '2020-11-25 - Design Brief - D07-12-20-0164'
  • Image from page 1 of the file '2022-12-02 - Floor Plan and Roof Plan - D07-12-20-0164'
  • Image from page 27 of the file '2021-04-28 - Design Brief - D07-12-20-0164'
  • Image from page 24 of the file '2021-04-28 - Design Brief - D07-12-20-0164'
  • Image from page 24 of the file '2021-04-28 - Design Brief - D07-12-20-0164'
  • Image from page 17 of the file '2021-04-28 - Design Brief - D07-12-20-0164'
  • Construction site plan for project from page 15 of the file '2021-04-28 - Design Brief - D07-12-20-0164'
  • Construction site plan for project from page 20 of the file '2021-04-28 - Design Brief - D07-12-20-0164'
  • Construction site plan for project from page 10 of the file '2021-04-28 - Design Brief - D07-12-20-0164'
  • Construction site plan for project from page 8 of the file '2021-04-28 - Design Brief - D07-12-20-0164'
  • Construction site plan for project from page 24 of the file '2021-04-28 - Design Brief - D07-12-20-0164'
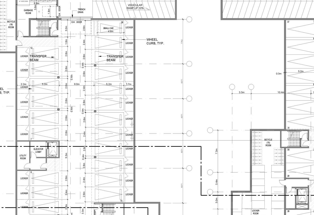
  • Construction site plan for project from page 9 of the file '2021-04-28 - Design Brief - D07-12-20-0164'
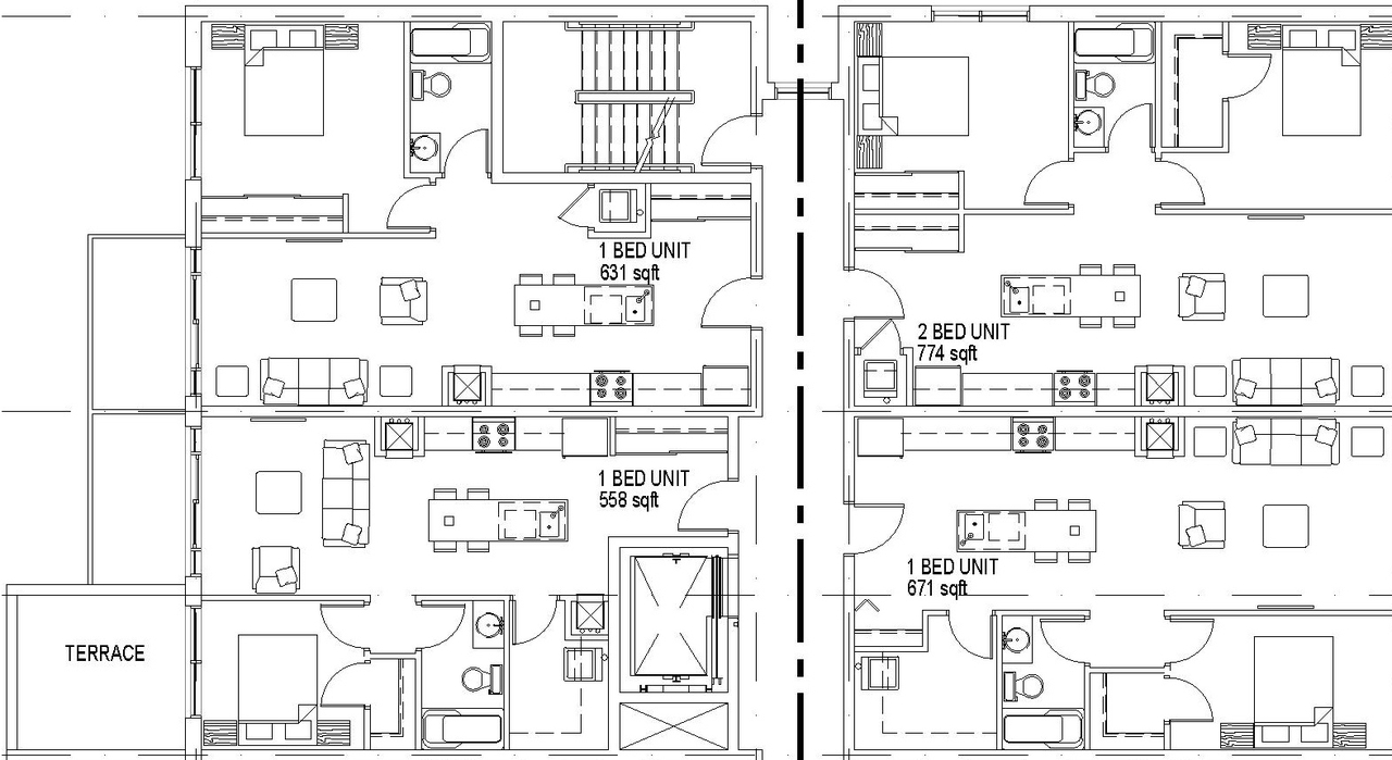
  • Construction site plan for project from page 1 of the file '2021-04-26 - Floor Plans and Front Elevation Plan - D07-12-20-0164'
  • Construction site plan for project from page 1 of the file '2021-04-26 - Floor Plans and Front Elevation Plan - D07-12-20-0164'
  • Construction site plan for project from page 25 of the file '2021-04-28 - Design Brief - D07-12-20-0164'
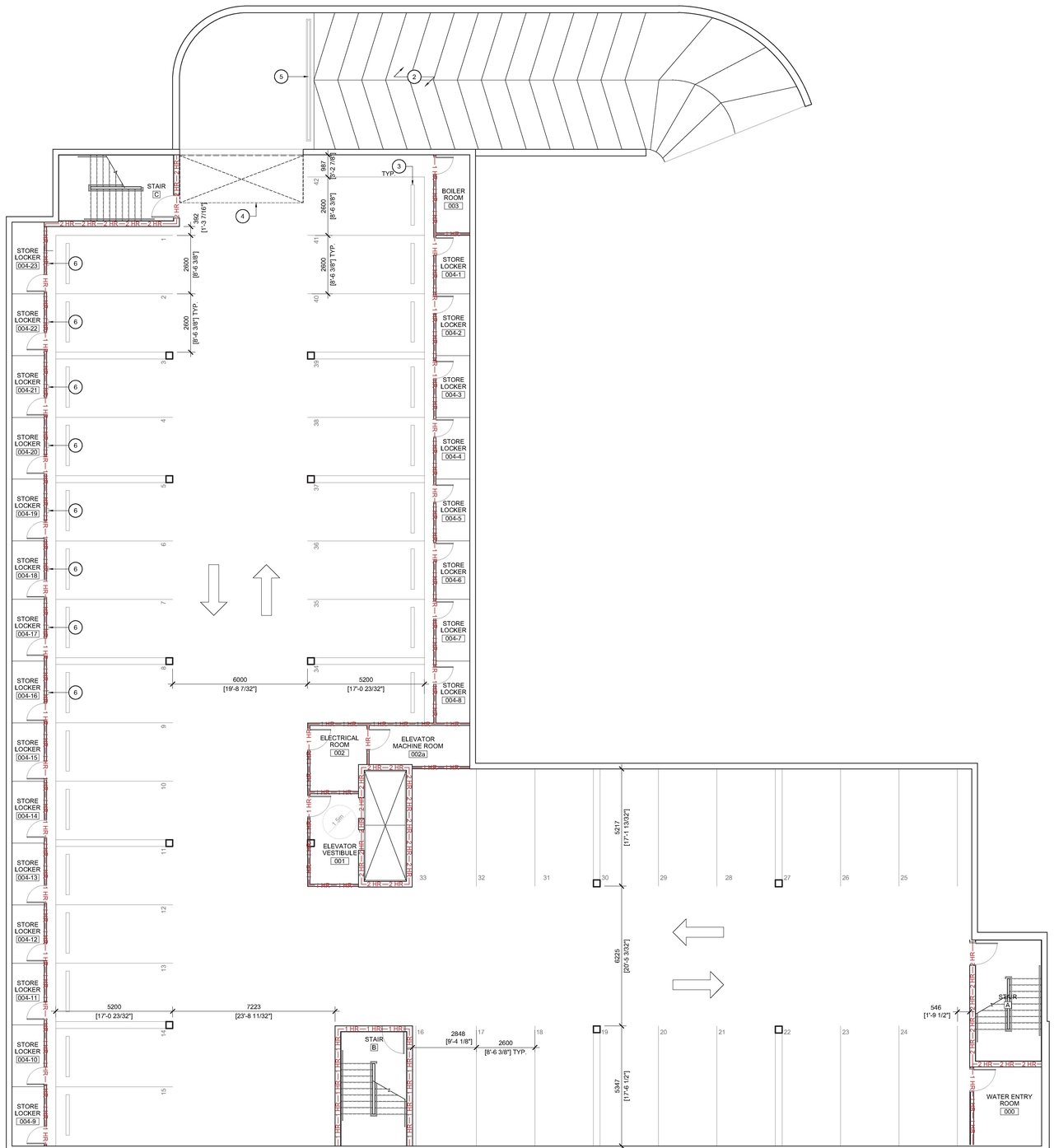
  • Construction site plan for project from page 1 of the file '2022-12-02 - Underground Parking and Ground Floor Plans - D07-12-20-0164'
  • Construction site plan for project from page 1 of the file '2022-06-14 - Underground Parking and Ground Floor Plans - D07-12-20-0164'
  • Construction site plan for project from page 1 of the file '2022-06-14 - Typical Floor Plan 2nd and 3rd Floor - D07-12-20-0164'
  • Floor plan for project from page 1 of the file '2024-12-03 - Floor Plan - Basement Block A - D07-12-20-0164'
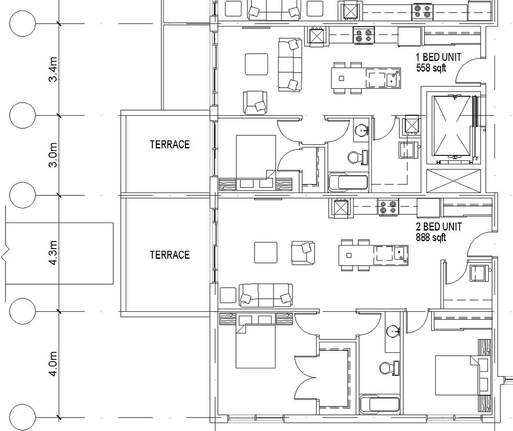
  • Floor plan for project from page 11 of the file '2021-04-28 - Design Brief - D07-12-20-0164'
  • Floor plan for project from page 1 of the file '2024-12-03 - Floor Plan - Basement Block B - D07-12-20-0164'
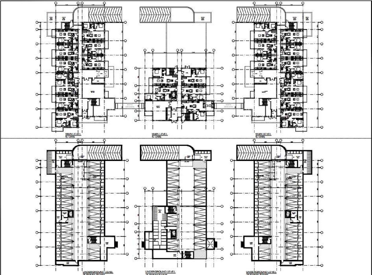
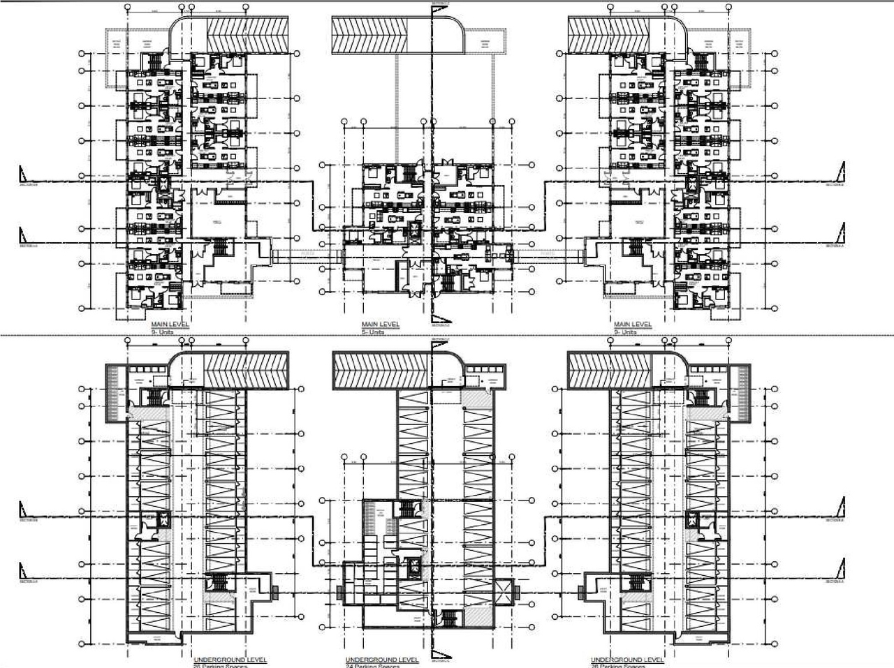
  • Floor plan for project from page 25 of the file '2021-04-28 - Design Brief - D07-12-20-0164'
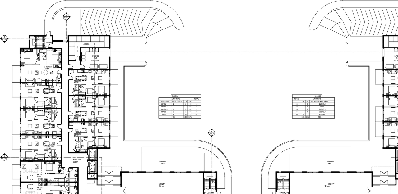
  • Floor plan for project from page 26 of the file '2021-04-28 - Design Brief - D07-12-20-0164'
  • Floor plan for project from page 26 of the file '2021-04-28 - Design Brief - D07-12-20-0164'
  • Floor plan for project from page 10 of the file '2021-04-28 - Design Brief - D07-12-20-0164'
  • Floor plan for project from page 26 of the file '2021-04-28 - Design Brief - D07-12-20-0164'
  • Image from page 27 of the file '2021-04-28 - Design Brief - D07-12-20-0164'
  • Image from page 12 of the file '2021-04-28 - Design Brief - D07-12-20-0164'
  • Image from page 16 of the file '2021-04-28 - Design Brief - D07-12-20-0164'
  • Image from page 10 of the file '2020-11-25 - Design Brief - D07-12-20-0164'
  • Image from page 1 of the file '2022-12-02 - Floor Plan and Roof Plan - D07-12-20-0164'
  • Image from page 27 of the file '2021-04-28 - Design Brief - D07-12-20-0164'
  • Image from page 24 of the file '2021-04-28 - Design Brief - D07-12-20-0164'
  • Image from page 24 of the file '2021-04-28 - Design Brief - D07-12-20-0164'
  • Image from page 17 of the file '2021-04-28 - Design Brief - D07-12-20-0164'
  • Construction site plan for project from page 15 of the file '2021-04-28 - Design Brief - D07-12-20-0164'
  • Construction site plan for project from page 20 of the file '2021-04-28 - Design Brief - D07-12-20-0164'
  • Construction site plan for project from page 10 of the file '2021-04-28 - Design Brief - D07-12-20-0164'
  • Construction site plan for project from page 8 of the file '2021-04-28 - Design Brief - D07-12-20-0164'
  • Construction site plan for project from page 24 of the file '2021-04-28 - Design Brief - D07-12-20-0164'
  • Construction site plan for project from page 9 of the file '2021-04-28 - Design Brief - D07-12-20-0164'
  • Construction site plan for project from page 1 of the file '2021-04-26 - Floor Plans and Front Elevation Plan - D07-12-20-0164'
  • Construction site plan for project from page 1 of the file '2021-04-26 - Floor Plans and Front Elevation Plan - D07-12-20-0164'
  • Construction site plan for project from page 25 of the file '2021-04-28 - Design Brief - D07-12-20-0164'
  • Construction site plan for project from page 1 of the file '2022-12-02 - Underground Parking and Ground Floor Plans - D07-12-20-0164'
  • Construction site plan for project from page 1 of the file '2022-06-14 - Underground Parking and Ground Floor Plans - D07-12-20-0164'
  • Construction site plan for project from page 1 of the file '2022-06-14 - Typical Floor Plan 2nd and 3rd Floor - D07-12-20-0164'
  • Floor plan for project from page 1 of the file '2024-12-03 - Floor Plan - Basement Block A - D07-12-20-0164'
  • Floor plan for project from page 11 of the file '2021-04-28 - Design Brief - D07-12-20-0164'
  • Floor plan for project from page 1 of the file '2024-12-03 - Floor Plan - Basement Block B - D07-12-20-0164'
  • Floor plan for project from page 25 of the file '2021-04-28 - Design Brief - D07-12-20-0164'
  • Floor plan for project from page 26 of the file '2021-04-28 - Design Brief - D07-12-20-0164'
  • Floor plan for project from page 26 of the file '2021-04-28 - Design Brief - D07-12-20-0164'
  • Floor plan for project from page 10 of the file '2021-04-28 - Design Brief - D07-12-20-0164'
  • Floor plan for project from page 26 of the file '2021-04-28 - Design Brief - D07-12-20-0164'

Additional Information#

Date Initiated2020-11-25
WardWard 2 - Laura Dudas
All Addresses3817 Innes Rd.
3835 Innes Rd.
3843 Innes Rd.

Documents#

TypeDocument
Application Summary2021-02-05 - Application Summary - D07-12-20-0164
Architectural Plans2023-07-25 - Underground Parking Plan - D07-12-20-0164
Architectural Plans2023-07-25 - Site Plan - D07-12-20-0164
Architectural Plans2023-07-25 - Site Grading Plan - D07-12-20-0164
Architectural Plans2023-07-25 - Sediment & Erosion Control Plan - D07-12-20-0164
Architectural Plans2023-07-25 - Pre Development Drainage Plan - D07-12-20-0164
Architectural Plans2023-07-25 - Post Development Drainage Plan - D07-12-20-0164
Architectural Plans2023-07-25 - Exterior Elevations - D07-12-20-0164
Architectural Plans2022-12-02 -Plan - Roadway Modification - D07-12-20-0164
Architectural Plans2022-12-02 - Site Plan - D07-12-20-0164
Architectural Plans2022-12-02 - Site Grading Plan - D07-12-20-0164
Architectural Plans2022-12-02 - Sediment and Erosion Control Plan - D07-12-20-0164
Architectural Plans2022-12-02 - Pre Development Drainage Plan - D07-12-20-0164
Architectural Plans2022-12-02 - Post Development Drainage Plan - D07-12-20-0164
Architectural Plans2022-12-02 - Plan - Truck Turning - D07-12-20-0164
Architectural Plans2022-12-02 - Median Extension Key Plan - D07-12-20-0164
Architectural Plans2022-12-02 - Key Plan - D07-12-20-0164
Architectural Plans2022-12-02 - Extension Functional Design Plan - D07-12-20-0164
Architectural Plans2022-12-02 - Elevations - D07-12-20-0164
Architectural Plans2022-12-02 - Building Sections - D07-12-20-0164
Architectural Plans2022-12-02 - Functional Plan - D07-12-20-0164
Architectural Plans2022-06-14 - Site Plan - D07-12-20-0164
Architectural Plans2022-06-14 - Site Grading Plan - D07-12-20-0164
Architectural Plans2022-06-14 - Sediment Erosion Control Plan - D07-12-20-0164
Architectural Plans2022-06-14 - Roof Plan - D07-12-20-0164
Architectural Plans2022-06-14 - Pre Development Drainage Area Plan - D07-12-20-0164
Architectural Plans2022-06-14 - Post Development Drainage Area Plan - D07-12-20-0164
Architectural Plans2022-06-14 - Elevation Plans - D07-12-20-0164
Architectural Plans2022-06-14 - Drainbasin Specification Plan - D07-12-20-0164
Architectural Plans2022-06-14 - Building Section Plan - D07-12-20-0164
Architectural Plans2021-04-26 - Site Plan - D04-12-20-0164
Architectural Plans2021-04-26 - Sediment Erosion Control Plan - D07-12-20-0164
Architectural Plans2021-04-26 - Phasing Plan - D07-12-20-0164
Architectural Plans2021-04-26 - Ground Floor and Underground Parking Plans - D07-12-20-0164
Architectural Plans2021-04-26 - Detail Sheet - D07-12-20-0164
Architectural Plans2021-04-26 - Building Sections - D07-12-20-0164
Architectural Plans2021-01-26 - Key Plan - D07-12-20-0164
Architectural Plans2020-11-25 - Site Plan - D07-12-20-0164
Architectural Plans2020-11-25 - Sediment Erosion Control Plan - D07-12-20-0164
Architectural Plans2020-11-25 - Main Level Plans and Front Elevations - D07-12-20-0164
Architectural Plans2020-11-25 - Lower and Main Floor Level Plans - D07-12-20-0164
Architectural Plans2020-11-25 - Building Sections - D07-12-20-0164
Architectural Plans2024-09-20- Topographic and Boundary Plan - D07-12-20-0164
Architectural Plans2024-09-20 - Site Grading Plan - D07-12-20-0164
Architectural Plans2024-09-20 - Sediment Erosion Control Plan - D07-12-20-0164
Architectural Plans2024-09-20 - Pre Development Drainage Plan - D07-12-20-0164
Architectural Plans2024-09-20 - Post Development Drainage Plan - D07-12-20-0164
Architectural Plans2024-09-20 - parking level plans and architectural elevation plans - D07-12-20-0164
Architectural Plans2024-12-03 - Site Plan - D07-12-20-0164
Architectural Plans2024-12-03 - Site Grading Plan - D07-12-20-0164
Architectural Plans2024-12-03 - Sediment & Erosion Control Plan - D07-12-20-0164
Architectural Plans2024-12-03 - Pre-Development Drainage Plan - D07-12-20-0164
Architectural Plans2024-12-03 - Post Development Drainage Plan - D07-12-20-0164
Architectural Plans2024-12-03 - Draft Plan 4R-29779 - D07-12-20-0164
Architectural Plans2024-12-03 - Building Elevations Block B (A5 4) - D07-12-20-0164
Architectural Plans2024-12-03 - Building Elevations Block B (A5 3) - D07-12-20-0164
Architectural Plans2024-12-03 - Building Elevations Block A & B - D07-12-20-0164
Architectural Plans2024-12-03 - Building Elevations Block A (A5 2) - D07-12-20-0164
Architectural Plans2024-12-03 - Building Elevations Block A (A5 1) - D07-12-20-0164
Architectural Plans2025-01-07 - Site Plan - D07-12-20-0164
Architectural Plans2025-01-07 - Site Grading Plan - D07-12-20-0164
Architectural Plans2025-01-07 - Sediment and Erosion Control Plan - D07-12-20-0164
Architectural Plans2025-01-07 - Pre Development Drainage Plan - D07-12-20-0164
Architectural Plans2025-01-07 - Post Development Drainage Plan - D07-12-20-0164
Architectural Plans2025-01-07 - Details Plan - D07-12-20-0164 (3)
Architectural Plans2025-01-07 - Details Plan - D07-12-20-0164 (2)
Architectural Plans2025-01-07 - Details Plan - D07-12-20-0164
Architectural Plans2025-01-17 - Site Grading Plan - D07-12-20-0164
Architectural Plans2025-01-17 - Sediment and Erosion Control Plan - D07-12-20-0164
Architectural Plans2025-01-17 - Pre- Development Drainage Plan - D07-12-20-0164
Architectural Plans2025-01-17 - Post Development Drainage Plan - D07-12-20-0164
Architectural Plans2025-01-17 - Details Plan 3 - D07-12-20-0164
Architectural Plans2025-01-17 - Details Plan 2 - D07-12-20-0164
Architectural Plans2025-01-17 - Details Plan - D07-12-20-0164
Architectural Plans2025-02-14 - Site Grading Plan - D07-12-20-0164
Architectural Plans2025-02-14 - SEDIMENT AND EROSION CONTROL PLAN - D07-12-20-0164
Architectural Plans2025-02-14 - Pre-Development Drainage Plan - D07-12-20-0164
Architectural Plans2025-02-14 - Post Development Drainage Plan - D07-12-20-0164
Architectural Plans2025-02-14 - Details Plan - D07-12-20-0164 (3)
Architectural Plans2025-02-14 - Details Plan - D07-12-20-0164 (2)
Architectural Plans2025-02-14 - Details Plan - D07-12-20-0164
Architectural Plans2025-04-11 - Approved Site Plan - D07-12-20-0164
Architectural Plans2025-04-11 - Approved Site Grading Plan - D07-12-20-0164
Architectural Plans2025-04-11 - Approved Sediment and Erosion Control Plan - D07-12-20-0164
Architectural Plans2025-04-11 - Approved Pre-Development Drainage Plan - D07-12-20-0164
Architectural Plans2025-04-11 - Approved Post-Development Drainage Plan - D07-12-20-0164
Architectural Plans2025-04-11 - Approved Elevations - D07-12-20-0164
Civil Engineering Report2022-12-02 - Civil Plans - D07-12-20-0164
Design Brief2021-04-28 - Design Brief - D07-12-20-0164
Design Brief2020-11-25 - Design Brief - D07-12-20-0164
Electrical Plan2023-07-25 - Electrical Site Plan - D07-12-20-0164
Electrical Plan2022-06-14 - Electrical Lighting Plan - D07-12-20-0164
Electrical Plan2021-01-26 - Site Plan Lighting - D07-12-20-0164
Electrical Plan2020-11-25 - Luminaire Lighting - D07-12-20-0164
Electrical Plan2020-11-25 - Lighting Specifications - D07-12-20-0164
Electrical Plan2024-09-20 - Lighting Plan - D07-12-20-0164
Electrical Plan2025-01-17 - Electrical Site Plan - D07-12-20-0164
Environmental2021-01-26 - Phase 2 Environmental Site Assessment Letter Update - D07-12-20-0164
Environmental2021-01-26 - Phase 1 Environmental Site Assessment Update Letter - D07-12-20-0164
Environmental2020-11-25 - Phase II Environmental Site Assessment - D07-12-20-0164
Environmental2020-11-25 - Phase 1 Environmental Site Assessment - D07-12-20-0164
Floor Plan2022-12-02 - Underground Parking and Ground Floor Plans - D07-12-20-0164
Floor Plan2022-12-02 - Floor Plan and Roof Plan - D07-12-20-0164
Floor Plan2022-06-14 - Underground Parking and Ground Floor Plans - D07-12-20-0164
Floor Plan2022-06-14 - Typical Floor Plan 2nd and 3rd Floor - D07-12-20-0164
Floor Plan2021-04-26 - Floor Plans and Front Elevation Plan - D07-12-20-0164
Floor Plan2024-12-03 - Floor Plan - Basement Block B - D07-12-20-0164
Floor Plan2024-12-03 - Floor Plan - Basement Block A - D07-12-20-0164
Geotechnical Report2021-04-26 - Grading Plan - D07-12-20-0164
Geotechnical Report2021-04-26 - Geotechnical Investigation Report - D07-12-20-0164
Geotechnical Report2021-04-26 - Geotechnical - D07-12-20-0164
Geotechnical Report2020-11-25 - Landscaping Material Board - D07-12-20-0164
Geotechnical Report2020-11-25 - Grading Plan - D07-12-20-0164
Geotechnical Report2020-11-25 - Geotechnical Report - D07-12-20-0164
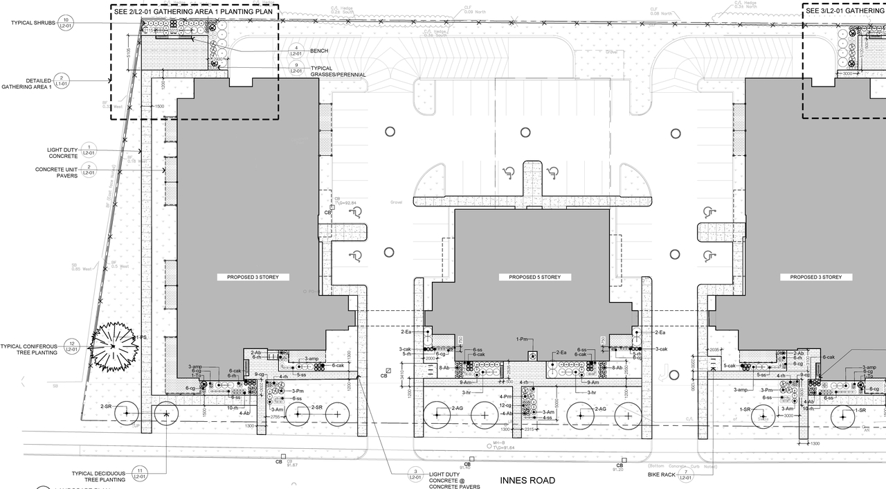
Landscape Plan2023-07-25 - Landscape Plan - D07-12-20-0164
Landscape Plan2022-12-02 - Landscape Plan - D07-12-20-0164
Landscape Plan2021-04-26 - Landscape Plan - D07-12-20-0164
Landscape Plan2021-01-26 - Landscape Plan - D07-12-20-0164
Landscape Plan2020-11-25 - Landscape Plan - D07-12-20-0164
Noise Study2022-06-14 - Noise Study - D07-12-20-0164
Noise Study2021-04-26 - Noise Study - D07-12-20-0164
Noise Study2021-01-26 - Noise Impact Study - D07-12-20-0164
Noise Study2020-11-25 - Noise Report - D07-12-20-0164
Noise Study2024-09-20 - Noise Study - D07-12-20-0164
Planning2020-11-25 - Planning Rationale - D07-12-20-0164
Rendering2021-04-26 - Elevation Plans and Front Rendering - D07-12-20-0164
Shadow Study2021-04-26 - Shadow Study - D07-12-20-0164
Shadow Study2020-11-25 - Fire Flow Calculations - D07-12-20-0164
Shadow Study2020-11-25 - Fire Flow Calculation B - D07-12-20-0164
Site Servicing2023-07-25 - Site Servicing Plan - D07-12-20-0164
Site Servicing2023-07-25 - Site Servicing and Stormwater Management Report - D07-12-20-0164
Site Servicing2022-12-02 - Site Servicing Plan - D07-12-20-0164
Site Servicing2022-12-02 - Site Servicing & Stormwater Management Report - D07-12-20-0164
Site Servicing2022-06-14 - Site Servicing Plan - D07-12-20-0164
Site Servicing2021-04-26 - Site Servicing Plan - D07-12-20-0164
Site Servicing2020-11-25 - Site Servicing Stormwater Management Report - D07-12-20-0164
Site Servicing2020-11-25 - Site Servicing Plan - D07-12-20-0164
Site Servicing2024-09-20 - Site Servicing Plan Infiltration and Roof Leader Details - D07-12-20-0164
Site Servicing2024-09-20 - Site Servicing Plan - D07-12-20-0164
Site Servicing2024-09-20 - Site Servicing and Stormwater Management Report - D07-12-20-0164
Site Servicing2024-12-03 - Site Servicing Plan (C301) - D07-12-20-0164
Site Servicing2024-12-03 - Site Servicing Plan (C300) - D07-12-20-0164
Site Servicing2024-12-03 - Site Servicing & SWM Report - D07-12-20-0164
Site Servicing2025-01-07 - Site Servicing Plan - D07-12-20-0164 (2)
Site Servicing2025-01-07 - Site Servicing Plan - D07-12-20-0164
Site Servicing2025-01-07 - Site Servicing and Stormwater Management Report - D07-12-20-0164
Site Servicing2025-01-17 - Site Servicing Plan - D07-12-20-0164 (2)
Site Servicing2025-01-17 - Site Servicing Plan - D07-12-20-0164
Site Servicing2025-01-17 - Site Servicing and Stormwater Management Report - D07-12-20-0164
Site Servicing2025-02-14 - Site Servicing Plan - D07-12-20-0164 (2)
Site Servicing2025-02-14 - Site Servicing Plan - D07-12-20-0164
Site Servicing2025-02-14 - Site Servicing and Stormwater Management Report - D07-12-20-0164
Site Servicing2025-04-11 - Approved Site Servicing Plans 1 & 2 - D07-12-20-0164
Stormwater Management2022-06-14 - Stormwater Management Report - D07-12-20-0164
Stormwater Management2021-04-26 - Stormwater Management Report - D07-12-20-0164
Stormwater Management2020-11-25 - Pre Development Storm Drainage Plan - D07-12-20-0164
Surveying2020-11-25 - Topographic and Boundary Plan - D07-12-20-0164
Transportation Analysis2022-06-14 - Transportation Impact Strategy Document - D07-12-20-0164
Transportation Analysis2021-04-26 - Transportation Impact Assessment - D07-12-20-0164
Transportation Analysis2021-01-26 - Transportation Impact Assessment - D07-12-20-0164
Tree Information and Conservation2022-06-14 - Tree Conservation Report & Landscape Plan - D07-12-20-0164
Tree Information and Conservation2022-06-14 - Environmental Impact Statement & Tree Conservation Report - D07-12-20-0164
Tree Information and Conservation2020-11-25 - Environmental Impact Statement Tree Conservation Report - D07-12-20-0164
Tree Information and Conservation2024-09-20 - Tree Conservation Plan - D07-12-20-0164
Tree Information and Conservation2024-12-03 - Tree Conservation Report & Landscape Plan - D07-12-20-0164
Tree Information and Conservation2025-04-11 - Approved Tree Conservation Report & Landscape Plan - D07-12-20-0164
2023-07-25 - Stormtech Details - D07-12-20-0164
2023-07-25 - Stormtech Chamber Details - D07-12-20-0164
2023-07-25 - Stormceptor Details - D07-12-20-0164
2023-07-25 - Photometrics Certification Letter - D07-12-20-0164
2022-12-02 - Turning Movement Descriptions - D07-12-20-0164
2022-12-02 - Truck Turning templates - D07-12-20-0164
2022-12-02 - Truck Turning Movement description - D07-12-20-0164
2022-12-02 - Stormtech Chamber System Detail - D07-12-20-0164
2022-12-02 - Stormceptor Detail - D07-12-20-0164
2022-12-02 - Roadway Modification Map - D07-12-20-0164
2022-12-02 - Storm Tech Chamber System Detail - D07-12-20-0164
2022-06-14 - Stormchamber Specifications (2) - D07-12-20-0164
2022-06-14 - Stormchamber Specifications - D07-12-20-0164
2021-04-26 - Truck Turning Movement Drawing - D07-12-20-0164
2021-04-26 - Pre Development Storage Area - D07-12-20-0164
2021-04-26 - Post Development Storage Area - D07-12-20-0164
2021-04-26 - Garbage Room Bicycle Room Details - D07-12-20-0164
2021-04-26 - Engineering Details 3 - D07-12-20-0164
2021-04-26 - Engineering Details 2 - D07-12-20-0164
2020-11-25 - Water Card Calculations - D07-12-20-0164
2020-11-25 - Stormceptor Details - D07-12-20-0164
2020-11-25 - Scoping Report - D07-12-20-0164
2020-11-25 - Lemenova Specs - D07-12-20-0164
2020-11-25 - Engineering Details Sheet 2 - D07-12-20-0164
2020-11-25 - Engineering Details Sheet 1 - D07-12-20-0164
2020-11-25 - Development Storage Areas - D07-12-20-0164
2024-09-20 - Stormtech Chamber System Details - D07-12-20-0164
2024-09-20 - Stormceptor Details - D07-12-20-0164
2024-12-03 - Details 3 - D07-12-20-0164
2024-12-03 - Details 2 - D07-12-20-0164
2024-12-03 - Details 1 - D07-12-20-0164
2025-04-11 - Signed Delegated Authority Report - D07-12-20-0164
2025-04-11 - Approved Details 1-3 - D07-12-20-0164