Ottawa Development Projects

810 Vick Ave./2830 Carling Ave.#

Last updated: 2025-04-25 · ID: D07-12-20-0163

Summary#

Two buildings: a 27-unit stacked townhouse development fronting on Carling Avenue and a triplex on Vick Avenue for a total of 30 residential units with access to an underground parking structure off of Judge St

Status
Post Approval (Agreement lapsed)

Building Scale (Max.) Based on elevation drawings. Values may be approximate. See sources for exact figures.
Mid-rise · 4 storeys · 10.01 m

Renders#

Location#

Select a marker to view the address.

Site Plans, Elevations and Floor Plans#

  • Image from page 2 of the file '2021-03-22 - Design Brief Diagrams - D07-12-20-0163'
  • Image from page 2 of the file '2021-03-22 - Design Brief Diagrams - D07-12-20-0163'
  • Construction site plan for project from page 7 of the file '2020-11-23 - Addendum 2 to Planning Rationale Design Brief - D07-12-20-0163'
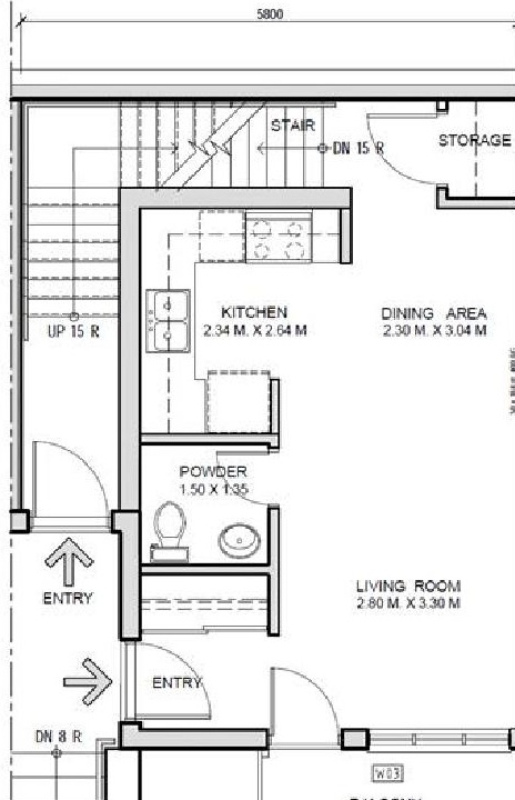
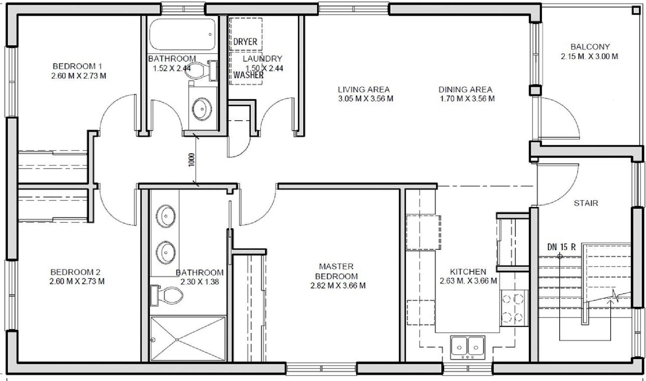
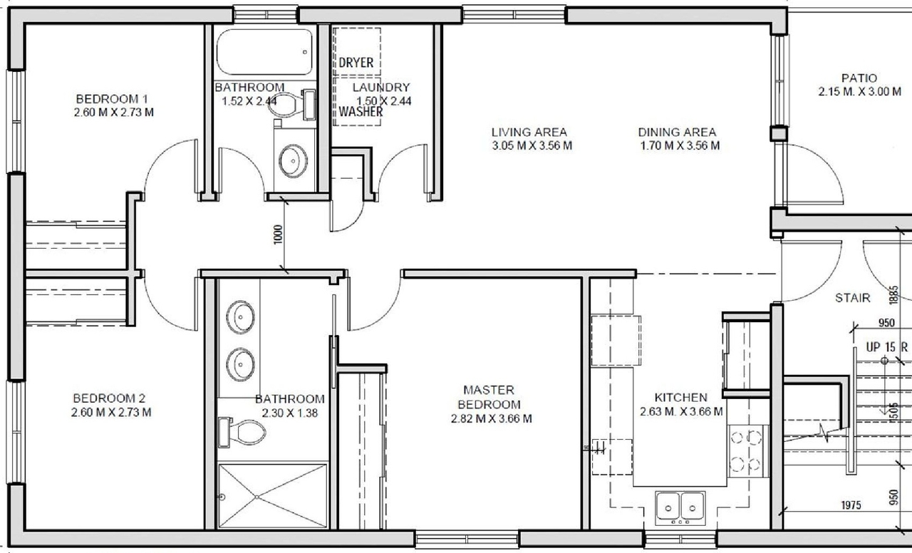
  • Floor plan for project from page 13 of the file '2020-11-23 - Addendum 2 to Planning Rationale Design Brief - D07-12-20-0163'
  • Floor plan for project from page 15 of the file '2020-11-23 - Addendum 2 to Planning Rationale Design Brief - D07-12-20-0163'
  • Floor plan for project from page 13 of the file '2020-11-23 - Addendum 2 to Planning Rationale Design Brief - D07-12-20-0163'
  • Floor plan for project from page 13 of the file '2020-11-23 - Addendum 2 to Planning Rationale Design Brief - D07-12-20-0163'
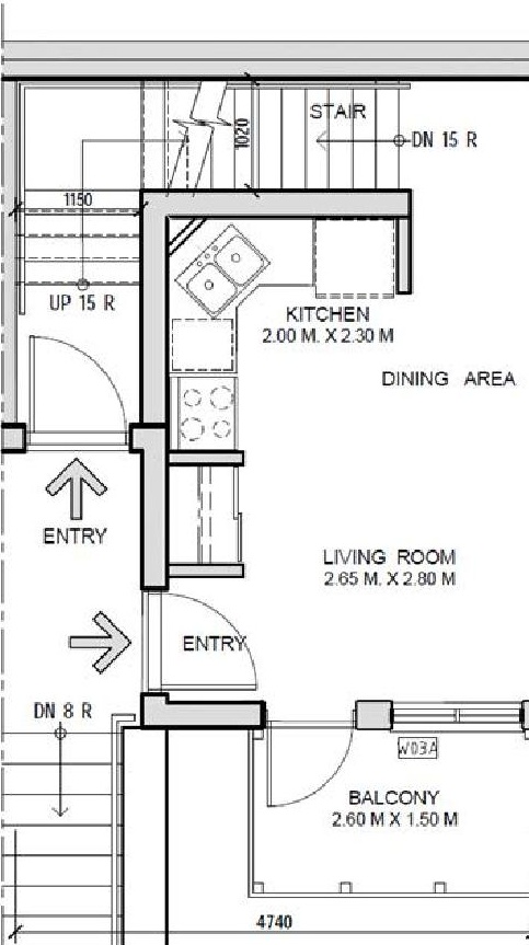
  • Floor plan for project from page 10 of the file '2020-11-23 - Addendum 2 to Planning Rationale Design Brief - D07-12-20-0163'
  • Floor plan for project from page 14 of the file '2020-11-23 - Addendum 2 to Planning Rationale Design Brief - D07-12-20-0163'
  • Floor plan for project from page 17 of the file '2020-11-23 - Addendum 2 to Planning Rationale Design Brief - D07-12-20-0163'
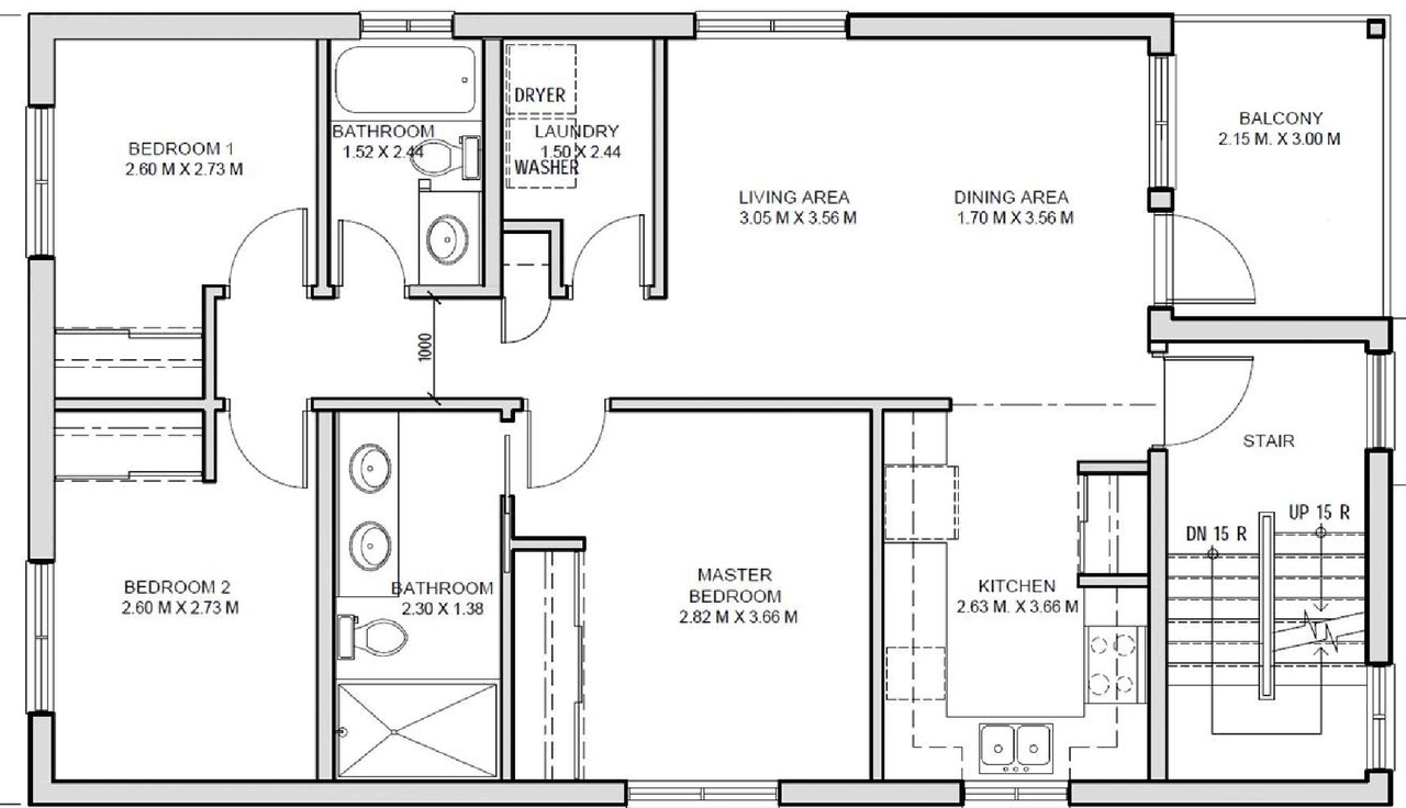
  • Floor plan for project from page 14 of the file '2020-11-23 - Addendum 2 to Planning Rationale Design Brief - D07-12-20-0163'
  • Floor plan for project from page 14 of the file '2020-11-23 - Addendum 2 to Planning Rationale Design Brief - D07-12-20-0163'
  • Floor plan for project from page 16 of the file '2020-11-23 - Addendum 2 to Planning Rationale Design Brief - D07-12-20-0163'
  • Floor plan for project from page 14 of the file '2020-11-23 - Addendum 2 to Planning Rationale Design Brief - D07-12-20-0163'
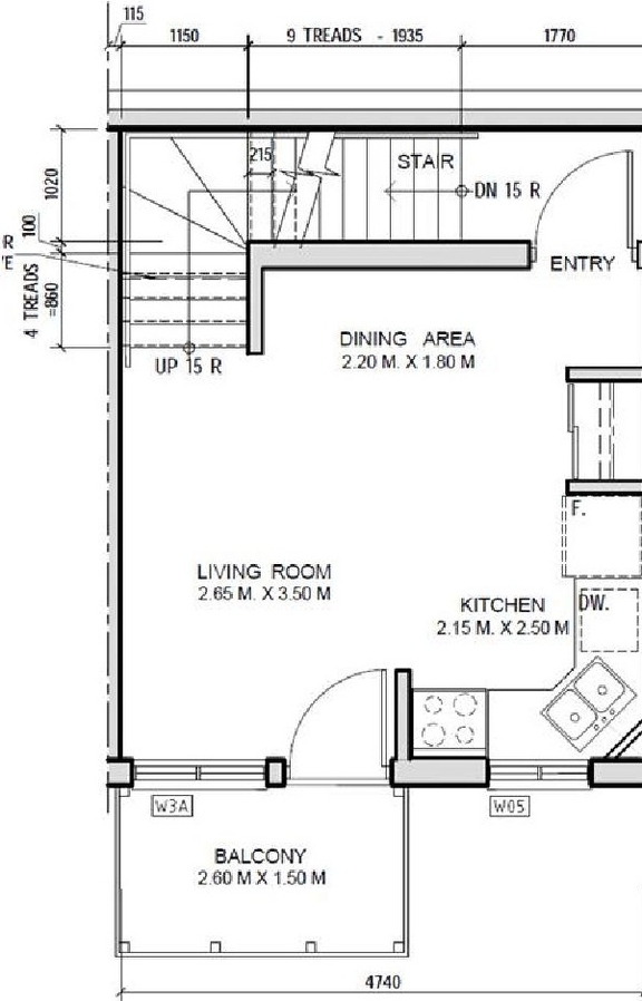
  • Floor plan for project from page 11 of the file '2020-11-23 - Addendum 2 to Planning Rationale Design Brief - D07-12-20-0163'
  • Floor plan for project from page 12 of the file '2020-11-23 - Addendum 2 to Planning Rationale Design Brief - D07-12-20-0163'
  • Floor plan for project from page 9 of the file '2020-11-23 - Addendum 2 to Planning Rationale Design Brief - D07-12-20-0163'
  • Floor plan for project from page 12 of the file '2020-11-23 - Addendum 2 to Planning Rationale Design Brief - D07-12-20-0163'
  • Floor plan for project from page 13 of the file '2020-11-23 - Addendum 2 to Planning Rationale Design Brief - D07-12-20-0163'
  • Image from page 2 of the file '2021-03-22 - Design Brief Diagrams - D07-12-20-0163'
  • Image from page 2 of the file '2021-03-22 - Design Brief Diagrams - D07-12-20-0163'
  • Construction site plan for project from page 7 of the file '2020-11-23 - Addendum 2 to Planning Rationale Design Brief - D07-12-20-0163'
  • Floor plan for project from page 13 of the file '2020-11-23 - Addendum 2 to Planning Rationale Design Brief - D07-12-20-0163'
  • Floor plan for project from page 15 of the file '2020-11-23 - Addendum 2 to Planning Rationale Design Brief - D07-12-20-0163'
  • Floor plan for project from page 13 of the file '2020-11-23 - Addendum 2 to Planning Rationale Design Brief - D07-12-20-0163'
  • Floor plan for project from page 13 of the file '2020-11-23 - Addendum 2 to Planning Rationale Design Brief - D07-12-20-0163'
  • Floor plan for project from page 10 of the file '2020-11-23 - Addendum 2 to Planning Rationale Design Brief - D07-12-20-0163'
  • Floor plan for project from page 14 of the file '2020-11-23 - Addendum 2 to Planning Rationale Design Brief - D07-12-20-0163'
  • Floor plan for project from page 17 of the file '2020-11-23 - Addendum 2 to Planning Rationale Design Brief - D07-12-20-0163'
  • Floor plan for project from page 14 of the file '2020-11-23 - Addendum 2 to Planning Rationale Design Brief - D07-12-20-0163'
  • Floor plan for project from page 14 of the file '2020-11-23 - Addendum 2 to Planning Rationale Design Brief - D07-12-20-0163'
  • Floor plan for project from page 16 of the file '2020-11-23 - Addendum 2 to Planning Rationale Design Brief - D07-12-20-0163'
  • Floor plan for project from page 14 of the file '2020-11-23 - Addendum 2 to Planning Rationale Design Brief - D07-12-20-0163'
  • Floor plan for project from page 11 of the file '2020-11-23 - Addendum 2 to Planning Rationale Design Brief - D07-12-20-0163'
  • Floor plan for project from page 12 of the file '2020-11-23 - Addendum 2 to Planning Rationale Design Brief - D07-12-20-0163'
  • Floor plan for project from page 9 of the file '2020-11-23 - Addendum 2 to Planning Rationale Design Brief - D07-12-20-0163'
  • Floor plan for project from page 12 of the file '2020-11-23 - Addendum 2 to Planning Rationale Design Brief - D07-12-20-0163'
  • Floor plan for project from page 13 of the file '2020-11-23 - Addendum 2 to Planning Rationale Design Brief - D07-12-20-0163'

Additional Information#

Date Initiated2020-11-23
WardWard 7 - Theresa Kavanagh

Documents#

TypeDocument
Application Summary2020-12-02 - Application Summary (002) - D07-12-20-0163
Architectural Plans2022-03-18 - Approved Site Plan - D07-12-20-0163
Architectural Plans2022-03-18 - Approved Site Grading,Drainage and Sediment & Erosion Control Plan - D07-12-20-0163
Architectural Plans2022-03-18 - Approved Elevations - D07-12-20-0163
Architectural Plans2021-10-15 - 20033-A200-elevations-A200-28-sept - D07-12-20-0163
Architectural Plans2021-10-15 - 20033-A003-SITE-PLAN-DEVELOPMENT-A003 - D07-12-20-0163
Architectural Plans2021-07-02 - SITE-PLAN - D07-12-20-0163
Architectural Plans2021-07-02 - Parking Garage Plan - D07-12-20-0163
Architectural Plans2021-07-02 - Elevations - D07-12-20-0163
Architectural Plans2021-03-22 - Site Plan - D07-12-20-0163
Architectural Plans2021-03-22 - Parking Garage Plan - D07-12-20-0163
Architectural Plans2021-03-22 - Engineering Plans - D07-12-20-0163
Architectural Plans2021-03-22 - Elevations - D07-12-20-0163
Architectural Plans2020-11-23 - Site Plan - D07-12-20-0163
Architectural Plans2020-11-23 - Elevations - D07-12-20-0163
Design Brief2021-03-22 - Design Brief Diagrams - D07-12-20-0163
Design Brief2020-11-23 - Addendum 2 to Planning Rationale Design Brief - D07-12-20-0163
Drainage Plan2021-03-22 - Drainage Post - D07-12-20-0163
Drainage Plan2021-03-22 - Drainage Plan Pre - D07-12-20-0163
Electrical Plan2020-11-23 - Site Lighting Submission Letter - D07-12-20-0163
Electrical Plan2020-11-23 - MVP Lighting - D07-12-20-0163
Electrical Plan2020-11-23 - Exterior Lighting and Site Plan - D07-12-20-0163
Environmental2020-11-23 - Phase 1 Environmental Site Assessment - D07-12-20-0163
Geotechnical Report2021-07-02 - Grading Plan - D07-12-20-0163
Geotechnical Report2021-07-02 - Geotechnical Memo - D07-12-20-0163
Geotechnical Report2020-11-23 - Geotechnical Report - D07-12-20-0163
Landscape Plan2022-03-18 - Approved Landscape Plan - D07-12-20-0163
Landscape Plan2021-07-02 - Landscape Plan - D07-12-20-0163
Landscape Plan2021-03-22 - Landscape Plan - D07-12-20-0163
Landscape Plan2020-11-23 - Landscape Plan - D07-12-20-0163
Noise Study2021-03-22 - Traffic Noise - D07-12-20-0163
Planning2020-11-23 - Planning Rationale - D07-12-20-0163
Site Servicing2022-03-18 - Approved Site Servicing Plan - D07-12-20-0163
Site Servicing2021-07-02 - Servicing Report - D07-12-20-0163
Site Servicing2021-03-22 - Site Servicing Plan - D07-12-20-0163
Site Servicing2021-03-22 - Servicing and Stormwater Management Report - D07-12-20-0163
Site Servicing2020-11-23 - Site Servicing Plan - D07-12-20-0163
Site Servicing2020-11-23 - Servicing and Stormwater Management Report - D07-12-20-0163
Surveying2020-11-23 - Survey - D07-12-20-0163
Tree Information and Conservation2020-11-23 - Tree Conservation Report 2 - D07-12-20-0163
Tree Information and Conservation2020-11-23 - Tree Conservation Report - D07-12-20-0163
2022-03-18 - Signed Delegated Authority Report - D07-12-20-0163
2021-10-15 - Holzman Reponse Letter_October 12_2021_2830 Carling - D07-12-20-0163
2021-10-15 - Email correspondence with Hydro Ottawa - D07-12-20-0163
2020-11-23 - Parking garage - D07-12-20-0163
2020-11-23 - Drawings and Sediment and Erision Controls - D07-12-20-0163
2020-11-23 - Addendum 1 to Planning Rationale Photographs - D07-12-20-0163