161 Hinchey Ave.#
Last updated: 2021-11-08 · ID: D07-12-20-0142
Summary#
Low rise appartment building with 15 units
Status
Post Approval (Request for Agreement Received)
Building Scale (Max.)
Based on elevation drawings. Values may be approximate. See sources for exact figures.
Mid-rise · 5 storeys
Data Quality Note
Text was extracted using optical character recognition. This may introduce artifacts or misreads.
· 13.2 m
Data Quality Note
Text was extracted using optical character recognition. This may introduce artifacts or misreads.
Renders#
Location#
Select a marker to view the address.
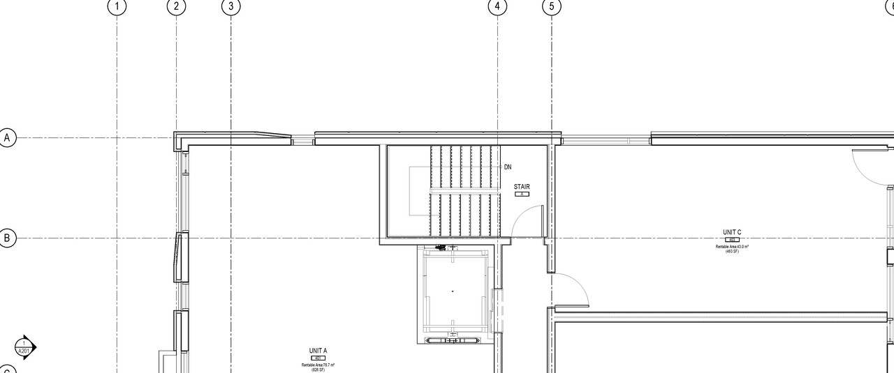
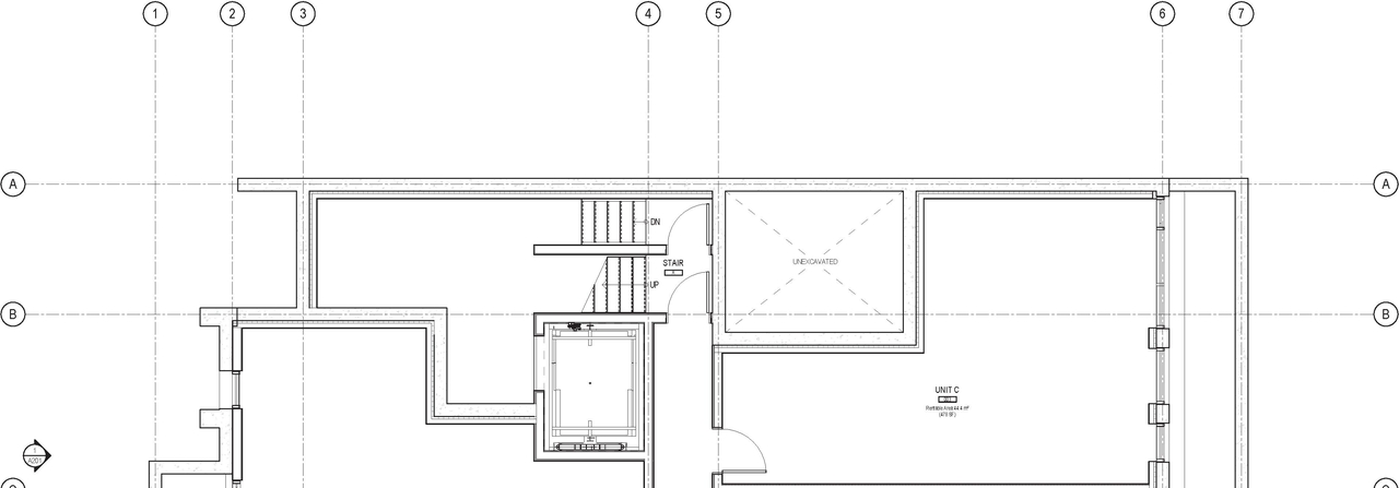
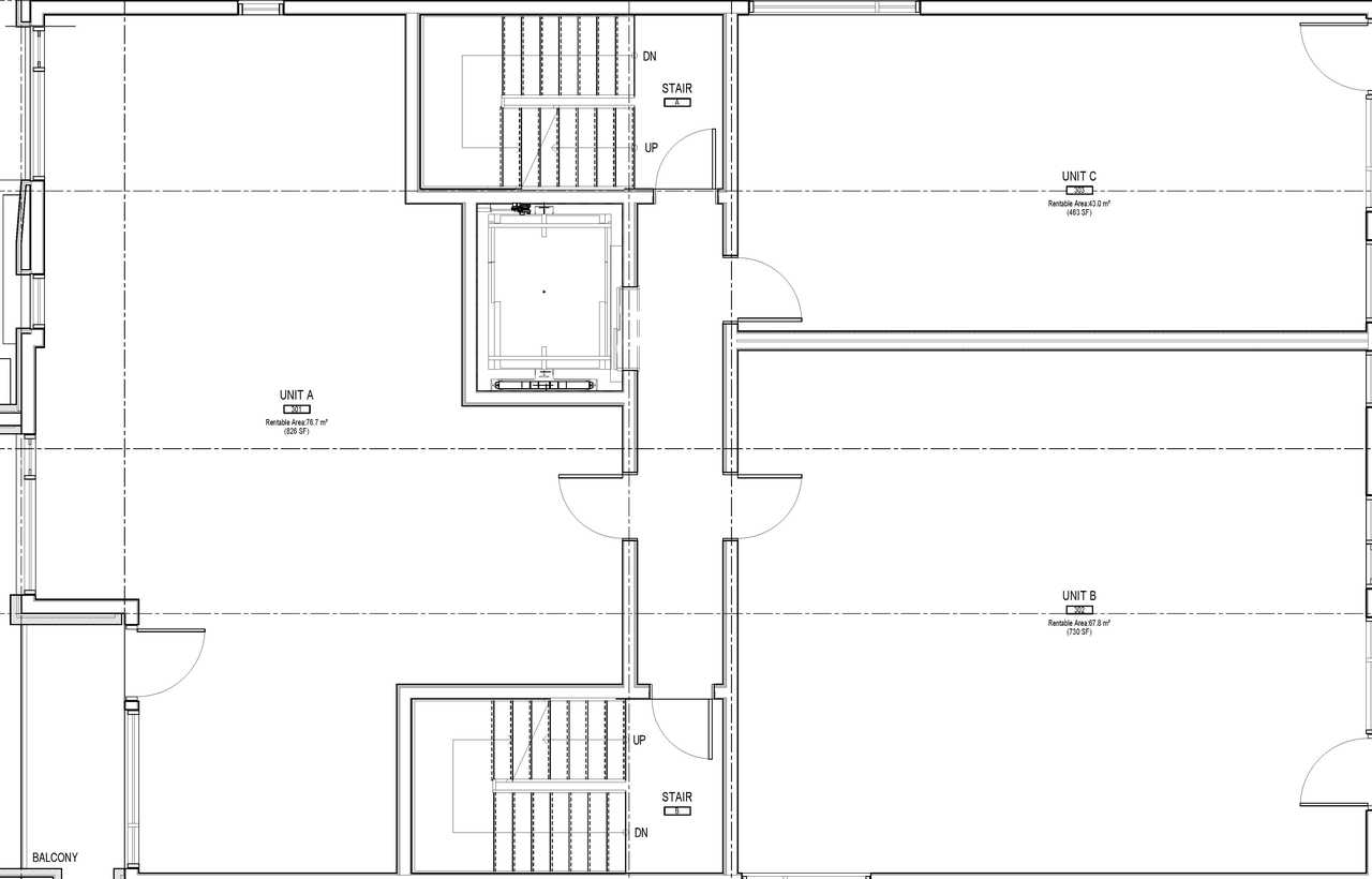
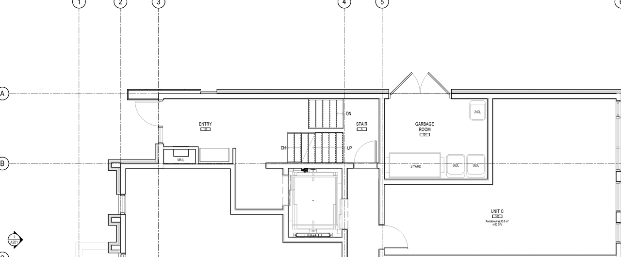
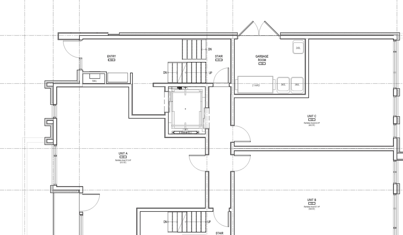
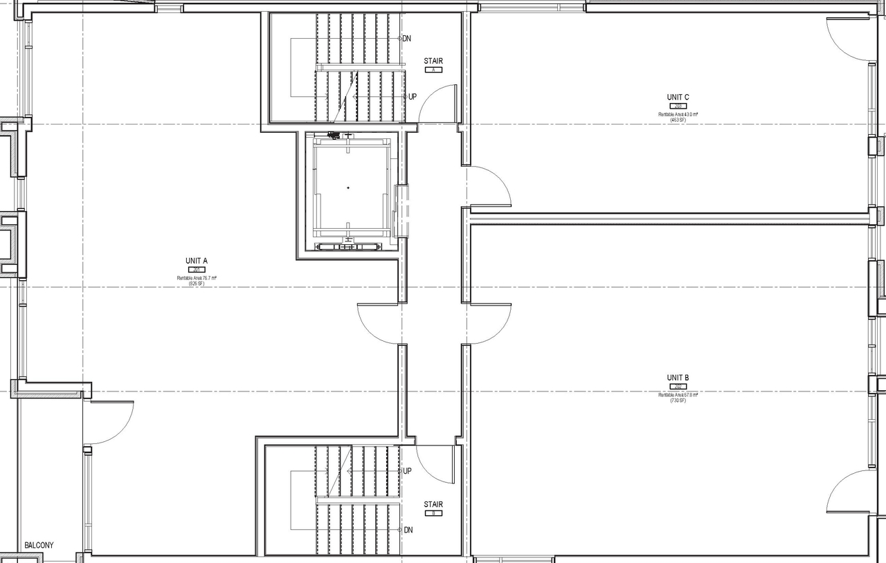
Site Plans, Elevations and Floor Plans#
Additional Information#
| Date Initiated | 2020-11-02 |
| Ward | Ward 15 - Jeff Leiper |











