Ottawa Development Projects

349 Danforth Ave.#

Last updated: 2023-08-25 · ID: D07-12-20-0140

Summary#

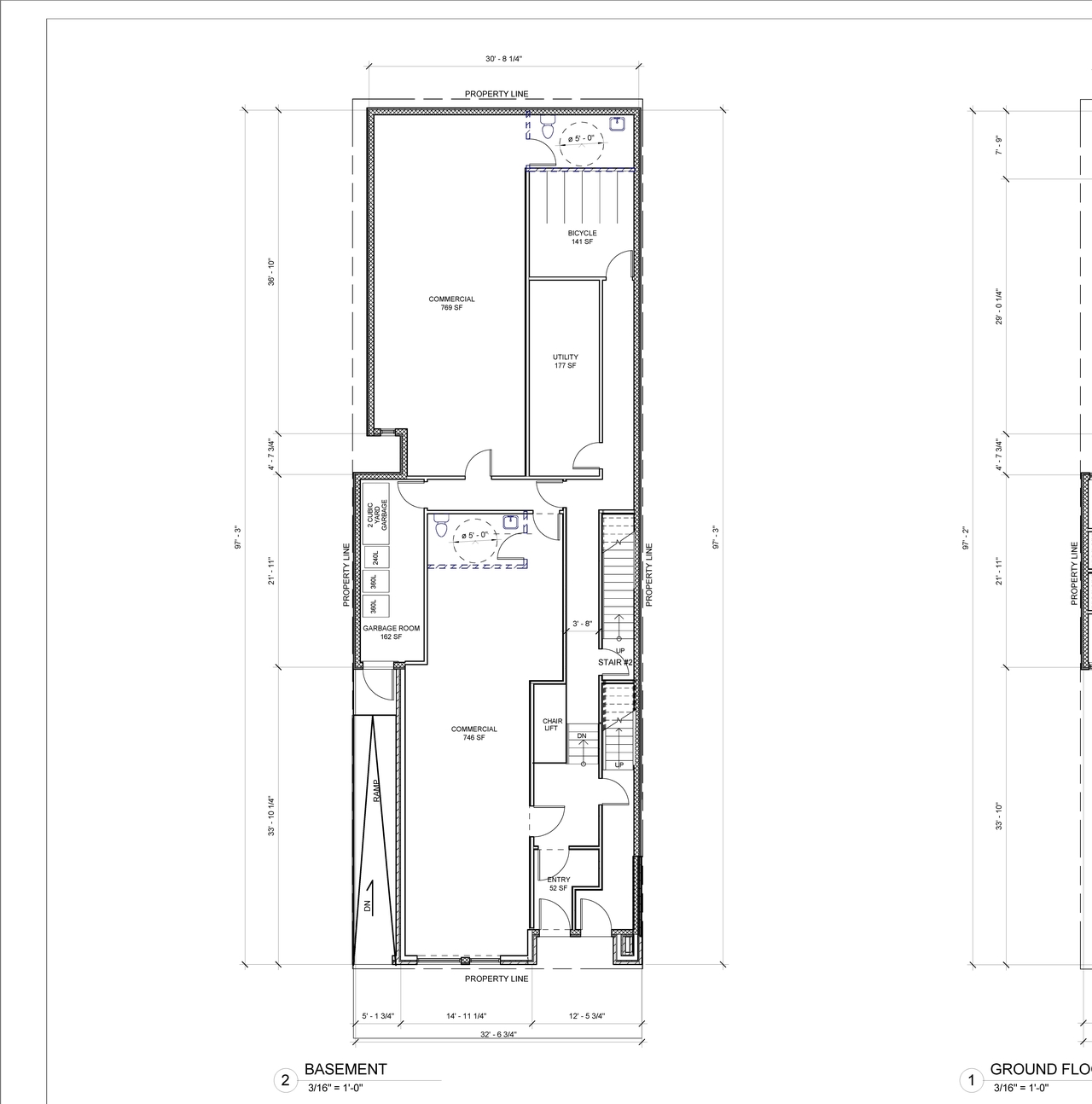
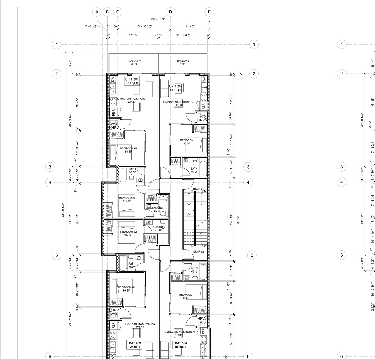
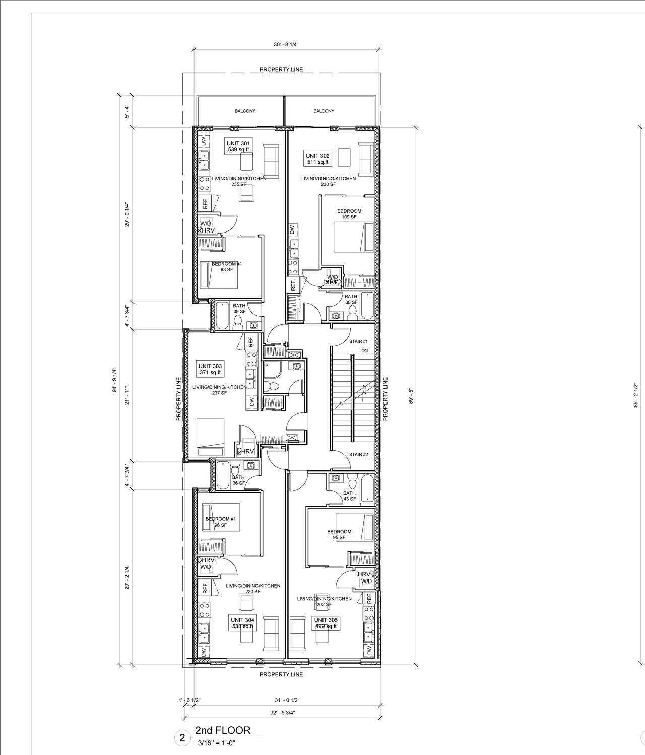
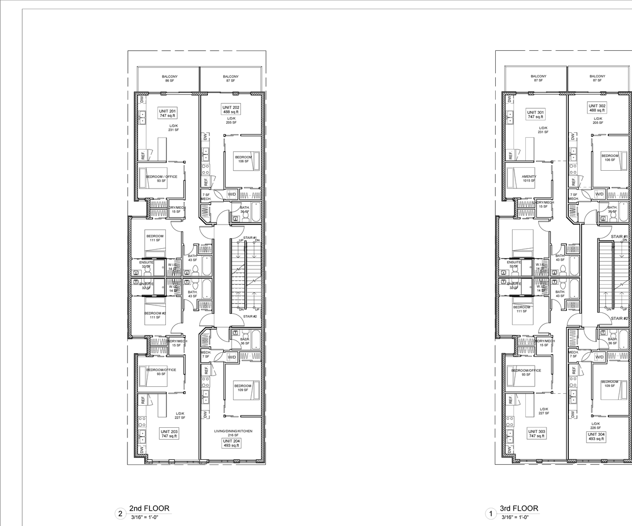
Proposed 3-storey mixed-use buildign with 13 residential units and 2 commercial, ground-floor units.

Status
Post Approval (Request for Agreement Received)

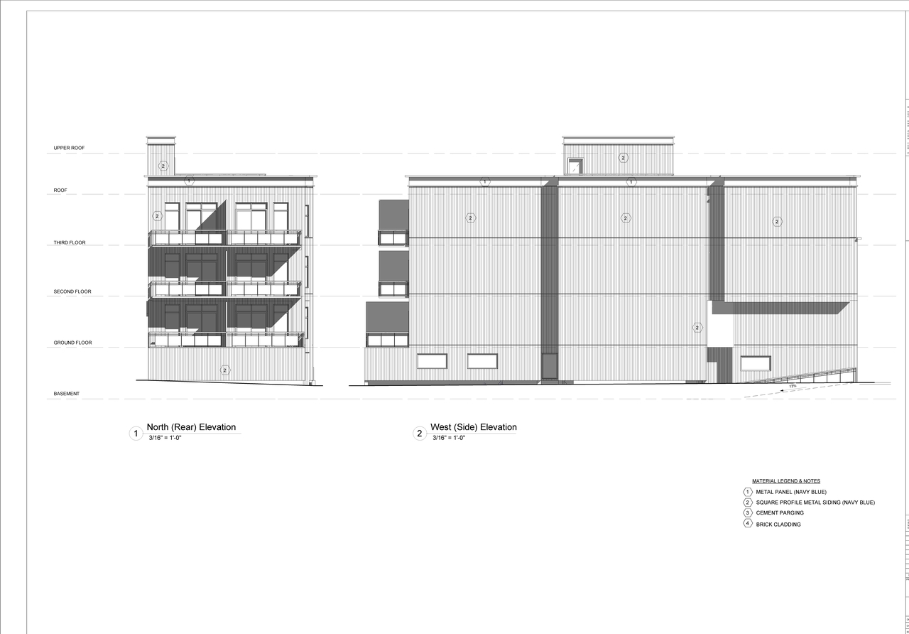
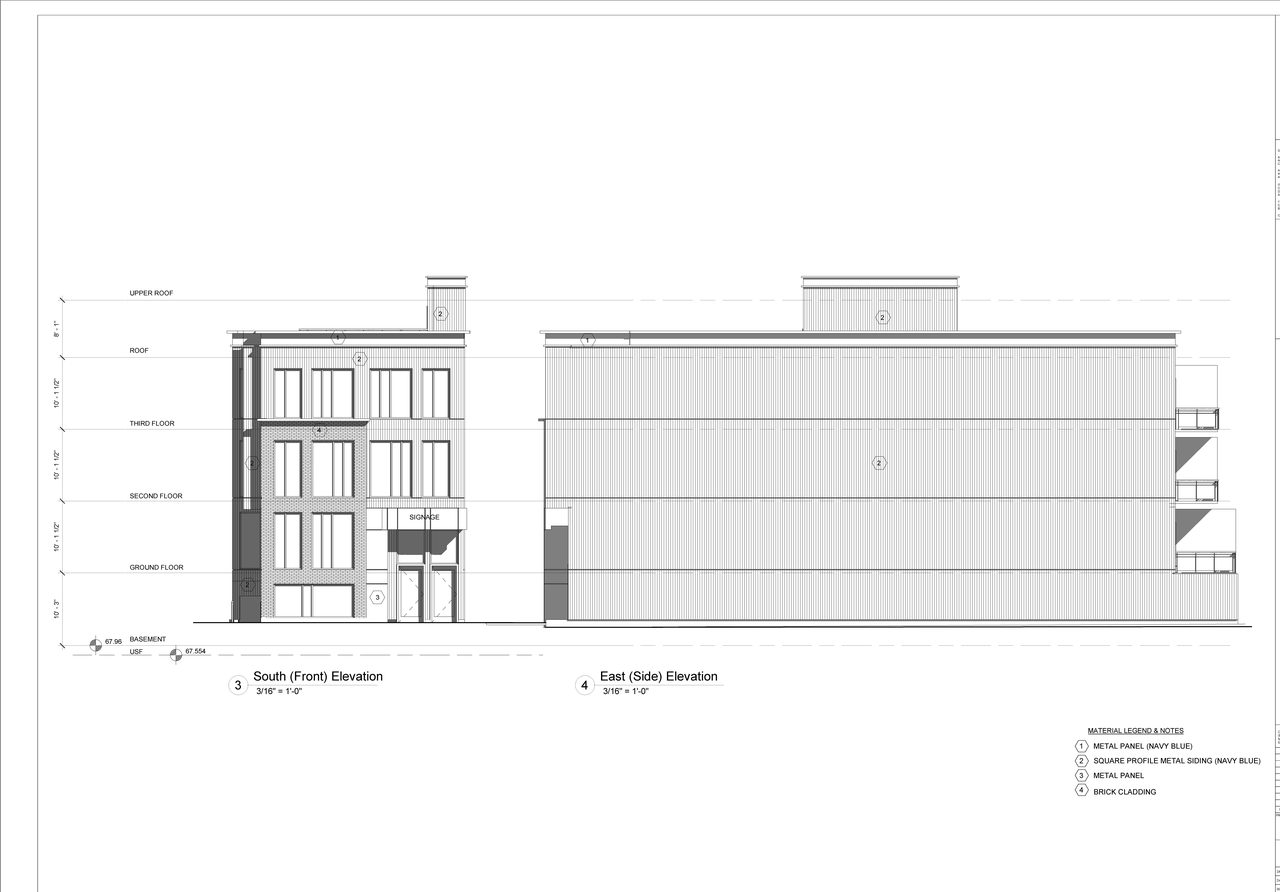
Building Scale (Max.) Based on elevation drawings. Values may be approximate. See sources for exact figures.
Low-rise · 3 storeys Data Quality Note Text was extracted using optical character recognition. This may introduce artifacts or misreads. · 12.4 m Data Quality Note Height was partially estimated using visual scale. This may be approximate. Data Quality Note Text was extracted using optical character recognition. This may introduce artifacts or misreads.

Renders#

Location#

Select a marker to view the address.

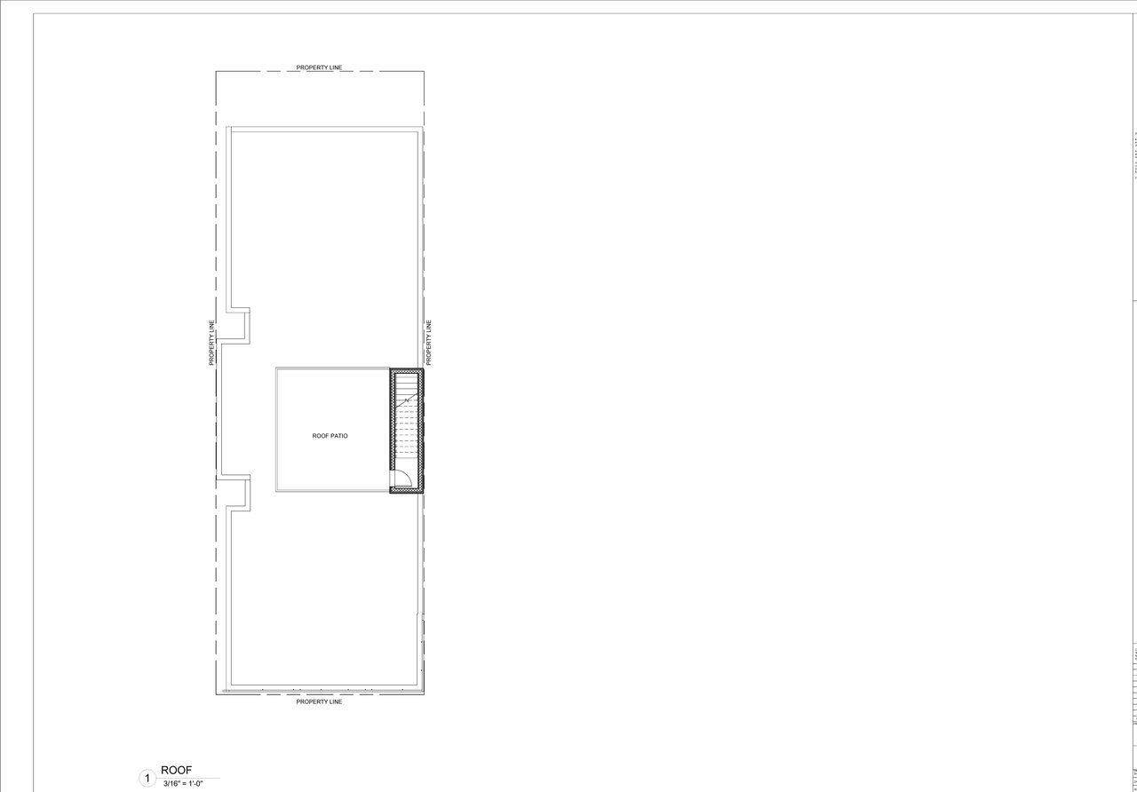
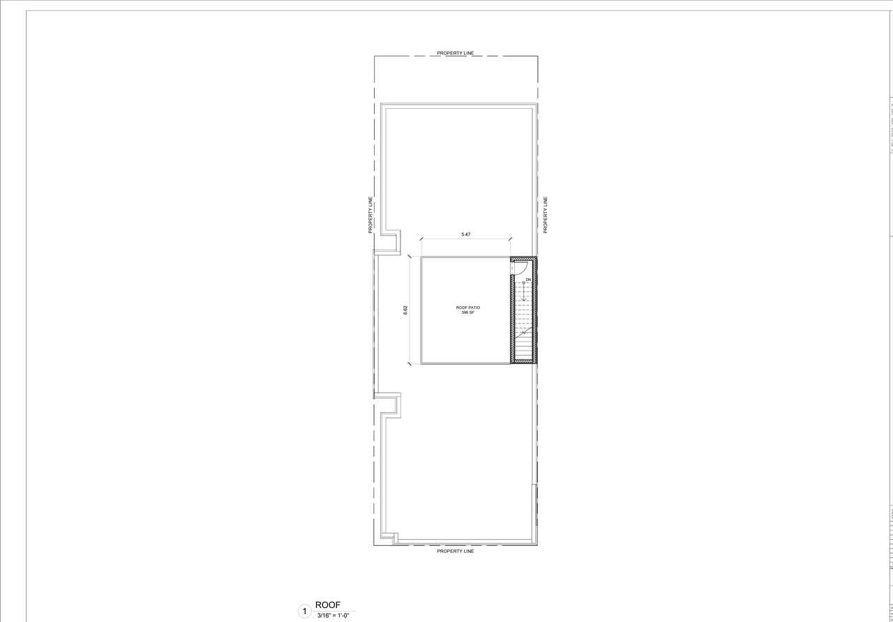
Site Plans, Elevations and Floor Plans#

Additional Information#

Date Initiated2020-10-30
WardWard 15 - Jeff Leiper

Documents#

TypeDocument
Adequacy Of Public Services2021-03-18 - Adequacy of Public Services - D07-12-20-0140
Application Summary2021-04-28 - Application Summary - D07-12-20-0140
Architectural Plans2024-02-09 - Updated Approved Servicing and Grading Plan - D07-12-20-0140
Architectural Plans2023-08-25 - Approved Site Plan - D07-12-20-0140
Architectural Plans2023-08-25 - Approved Elevations - D07-12-20-0140
Architectural Plans2022-06-08 - Site & Landscape Plan - D07-12-20-0140
Architectural Plans2022-06-08 - Floor & Elevations Plans - D07-12-20-0140
Architectural Plans2022-02-28 - Site Plan & Landscape Plan - D07-12-20-0140
Architectural Plans2022-02-28 - Floor & Elevations Plans - D07-12-20-0140
Architectural Plans2021-11-24 - Sub 3.1 Site Plan - D07-12-20-0140
Architectural Plans2021-11-24 - Sub 3.1 Servicing & Grading Plan - D07-12-20-0140
Architectural Plans2021-11-24 - Sub 3.1 Erosion & Sediment Control Plan - D07-12-20-0140
Architectural Plans2021-09-09 - Site Plan - D07-12-20-0140
Architectural Plans2021-09-09 - Site Control Plan - D07-12-20-0140
Architectural Plans2021-06-15 - Services Plan - D07-12-20-0140
Architectural Plans2021-03-18 - Site Control Plan - D07-12-20-0140
Architectural Plans2021-03-18 - Site and Landscape Plan - D07-12-20-0140
Design Brief2021-03-18 - Design Brief - D07-12-20-0140
Environmental2022-04-13 - Phase One Environmental Site Assessment
Environmental2021-06-15 - ESA Phase 1 - D07-12-20-0140
Environmental2021-03-18 - Phase 1 Environmental Site Assesment - D07-12-20-0140
Environmental2020-11-05 - Phase Two Environmental Site Assessment - D07-12-20-0140
Erosion And Sediment Control Plan2023-08-25 - Approved Erosion & Sediment Control Plan - D07-12-20-0140
Erosion And Sediment Control Plan2022-06-08 - Erosion & Sediment Control Plan - D07-12-20-0140
Erosion And Sediment Control Plan2022-02-28 - Erosion & Sediment Control Plan - D07-12-20-0140
Erosion And Sediment Control Plan2021-09-09 - Erosion and Sediment Control Plan - D07-12-20-0140
Erosion And Sediment Control Plan2021-06-15 - Erosion & Sediment Control Plan - D07-12-20-0140
Erosion And Sediment Control Plan2021-03-18 - Erosion and Sediment - D07-12-20-0140
Floor Plan2021-11-24 - Sub 3.1 Floor Plans & Elevations - D07-12-20-0140
Floor Plan2021-09-09 - Floor Plans and Elevations - D07-12-20-0140
Floor Plan2021-06-15 - Revised Floor Plans and Elevations - D07-12-20-0140
Floor Plan2021-03-18 - Floor Plans and Elevations - D07-12-20-0140
Geotechnical Report2022-06-08 - Geotechnical Report - D07-12-20-0140
Geotechnical Report2022-02-28 - Geotechnical Report - D07-12-20-0140
Geotechnical Report2021-03-31 - Geotechnical Investigation - D07-12-20-0140
Geotechnical Report2021-03-18 - Geotechncial Investigation - D07-12-20-0140
Noise Study2023-08-25 - Final Noise Atennuation Study - D07-12-20-0140
Noise Study2021-03-18 - Noise Attenuation Study - D07-12-20-0140
Planning2021-03-18 - Planning Rationale - D07-12-20-0140
Site Servicing2023-08-25 - Approved Servicing & Grading Plan - D07-12-20-0140
Site Servicing2022-06-08 - Servicing & Stormwater Management Report - D07-12-20-0140
Site Servicing2022-06-08 - Servicing & Grading Plan - D07-12-20-0140
Site Servicing2022-02-28 - Servicing & Stormwater Management Report - D07-12-20-0140
Site Servicing2022-02-28 - Servicing & Grading Plan - D07-12-20-0140
Site Servicing2021-09-09 - Servicing and Stormwater Management Report - D07-12-20-0140
Site Servicing2021-09-09 - Servicing and Grading Plan - D07-12-20-0140
Stormwater Management2023-08-25 - Final Servicing & Stormwater Report - D07-12-20-0140
Stormwater Management2021-11-24 - Sub 3.1 Servicing & Stormwater Management Report - D07-12-21-0140
Stormwater Management2021-06-15 - Stormwater Management Report - D07-12-20-0140
Surveying2023-08-25 - Registered Survey Plan - D07-12-20-0140
Surveying2021-06-15 - Survey Plan - D07-12-20-0140
Surveying2021-03-18 - Topographical - D07-12-20-0140
Transportation Analysis2021-03-18 - Transportation Impact Assessment - D07-12-20-0140
Tree Information and Conservation2023-08-25 - Final Tree Conservation Report - D07-12-20-0140
Tree Information and Conservation2023-08-25 - Approved Tree Replacement - D07-12-20-0140
Tree Information and Conservation2022-02-28 - Tree Conservation Report - D07-12-20-0140
Tree Information and Conservation2021-11-24 - Sub 3.1 Tree Replacement - D07-12-20-0140
Tree Information and Conservation2021-06-15 - Tree Replacement - D07-12-20-0140
Tree Information and Conservation2021-06-15 - Tree Conservation Report - D07-12-20-0140
Tree Information and Conservation2021-03-18 - Tree Conservation Report - D07-12-20-0140
2023-08-25 - Signed Delegated Authority Report - D07-12-20-0140
2023-08-25 - Final TIA Screening - D07-12-20-0140
2023-08-25 - Final Phase One ESA - D07-12-20-0140
2023-08-25 - Final Geotechnical Report - D07-12-20-0140
2022-06-08 - Letter of Acknowledgement - D07-12-20-0140
2021-04-09 - Final GeoReport - D07-12-20-0140