Ottawa Development Projects

127 Carillon St./200 Baribeau St.#

Last updated: 2026-03-20 · ID: D07-12-20-0118

Summary#

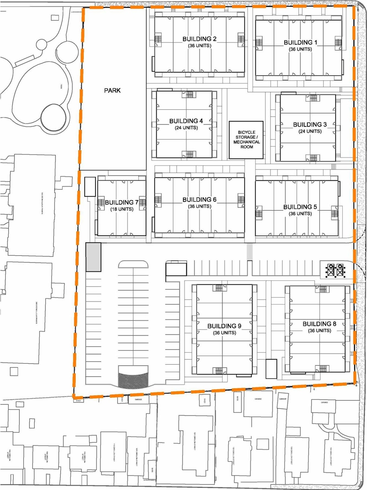
A Site Plan Control application to construct a Planned Unit Development (PUD) consisting of 94 townhouse dwellings, each including a main unit and two accessory dwelling units. The site also includes a centralized parking area, a centralized garbage facility and bicycle storage, as well as an increased expansion of St. Ambroise Park.

Status
Active (OMB Pre-Hearing Held)

Building Scale (Max.) Based on elevation drawings. Values may be approximate. See sources for exact figures.
Low-rise · 3 storeys Data Quality Note Text was extracted using optical character recognition. This may introduce artifacts or misreads. · 7.6 m Data Quality Note Height was partially estimated using visual scale. This may be approximate. Data Quality Note Text was extracted using optical character recognition. This may introduce artifacts or misreads.

Renders#

Location#

Select a marker to view the address.

Site Plans, Elevations and Floor Plans#

Additional Information#

Date Initiated2020-09-04
WardWard 12 - Stéphanie Plante

Documents#

TypeDocument
Application Summary2024-07-17 - Application Summary - D07-12-20-0118
Application Summary2021-02-24 - Revised Application Summary - D07-12-20-0118
Application Summary2020-10 -07 - Application Summary - D07-12-20-0118
Architectural Plans2024-07-16 - Site Plan - D07-12-20-0118
Architectural Plans2024-07-04 - Site Plan - D07-12-20-0118
Architectural Plans2024-07-04 - Elevations - D07-12-20-0118
Architectural Plans2022-11-21 - Site Plan - D07-12-20-0118
Architectural Plans2022-07-20 - Site Plan - D07-12-20-0118
Architectural Plans2022-07-20 - Removals and Erosion and Sediment Control Plan - D07-12-20-0118
Architectural Plans2022-07-20 - Plan and Profile - D07-12-20-0118
Architectural Plans2022-04-01 - Site Plan - D07-12-20-0118
Architectural Plans2022-04-01 - Removals & Sediment Control Plan - D07-12-20-0118
Architectural Plans2022-04-01 - Plan & Profile - D07-12-20-0118
Architectural Plans2021-10-28 - Site Plan - D07-12-20-0118
Architectural Plans2021-10-28 - Removals & Erosion and Sediment Control Plan - D07-12-20-0118
Architectural Plans2021-10-28 - Plan and Profile - Storm Outlet - D07-12-20-0118
Architectural Plans2021-08-23 - Site Plan Section - D07-12-20-0118
Architectural Plans2021-08-23 - Site Plan - D07-12-20-0118
Architectural Plans2021-08-23 - Plan and Profile - D07-12-20-0118
Architectural Plans2021-06-11 - Site Plan 2 - D07-12-20-0118
Architectural Plans2021-06-11 - Site Plan - D07-12-20-0118
Architectural Plans2021-06-11 - Plan and Profile - D07-12-20-0118
Architectural Plans2021-02-16 - Site Plan - D07-12-20-0118
Architectural Plans2020-09-04 - Site Plan - D07-12-20-0118
Architectural Plans2020-09-04 - Removals and Erosion and Sediment Control Plan - D07-12-20-0118
Architectural Plans2020-09-04 - Elevations - D07-12-20-0118
Architectural Plans2024-10-10 - SPA02(L-Plan) - D07-12-20-0118
Architectural Plans2024-10-10 - Site Plan - D07-12-20-0118
Architectural Plans2024-10-10 - Removals & Erosion and Sediment Control Plan - D07-12-20-0118
Architectural Plans2024-10-10 - Plan and Profile 1+000 to 1+090 - D07-12-20-0118
Architectural Plans2026-03-17 - Servicing Plan - D07-12-20-0118
Architectural Plans2026-03-17 - Removals Erosion & Sediment Control Plan - D07-12-20-0118
Architectural Plans2026-03-17 - Plan & Profile - D07-12-20-0118
Architectural Plans2026-03-17 - Grading Plan - D07-12-20-0118
Architectural Plans2026-03-18 - Grading Plan - D07-12-20-0118
Design Brief2026-03-17 - Servicing Design Brief - D07-12-20-0118
Environmental2020-09-04 - Phase II Environmental Site Assessment - D07-12-20-0118
Environmental2020-09-04 - Phase 1 Environmental Site Assessment - D07-12-20-0118
Erosion And Sediment Control Plan2024-07-04 - Erosion and Sediment Control Plan - D07-12-20-0118
Erosion And Sediment Control Plan2021-08-23 - Erosion and Sediment Control Plan - D07-12-20-0118
Erosion And Sediment Control Plan2021-06-11 - Erosion and Sediment Control Plan - D07-12-20-0118
Erosion And Sediment Control Plan2021-02-16 - Erosion and Sediment Control Plan - D07-12-20-0118
Geotechnical Report2024-07-04 - Grading Plan - D07-12-20-0118
Geotechnical Report2022-11-21 - Grading Plan - D07-12-20-0118
Geotechnical Report2022-07-20 - Grading Plan - D07-12-20-0118
Geotechnical Report2022-04-01 - Grading Plan - D07-12-20-0118
Geotechnical Report2021-10-28 - Grading Plan - D07-12-20-0118
Geotechnical Report2021-08-23 - Grading Plan - D07-12-20-0118
Geotechnical Report2021-06-11 - Grading Plan - D07-12-20-0118
Geotechnical Report2021-02-16 - Grading Plan - D07-12-20-0118
Geotechnical Report2020-09-04 - Grading Plan - D07-12-20-0118
Geotechnical Report2020-09-04 - Geotechnical Analysis - D07-12-20-0118
Geotechnical Report2024-10-10 - Grading Plan - D07-12-20-0118
Landscape Plan2024-07-04 - Landscape Plan and Details - D07-12-20-0118
Landscape Plan2022-11-21 - Landscape Plans - D07-12-20-0118
Landscape Plan2022-04-01 - Landscape Layout Plan - D07-12-20-0118
Landscape Plan2021-10-28 - Landscape Package - D07-12-20-0118
Landscape Plan2021-08-23 - Landscape - D07-12-20-0118
Landscape Plan2021-06-11 - Landscape Layout 2 - D07-12-20-0118
Landscape Plan2021-06-11 - Landscape Layout - D07-12-20-0118
Landscape Plan2021-02-16 - Landscape - D07-12-20-0118
Landscape Plan2020-09-04 - Landscape Layout - D07-12-20-0118
Landscape Plan2024-10-10 - Landscape Plans - D07-12-20-0118
Planning2021-08-23 - Planning Addendum - D07-12-20-0118
Planning2020-09-04 - Planning and Design Rationale - D07-12-20-0118
Planning2024-10-10 - Zoning Confirmation Report - D07-12-20-0118
Rendering2020-09-04 - Aerial View South Plans - D07-12-20-0118
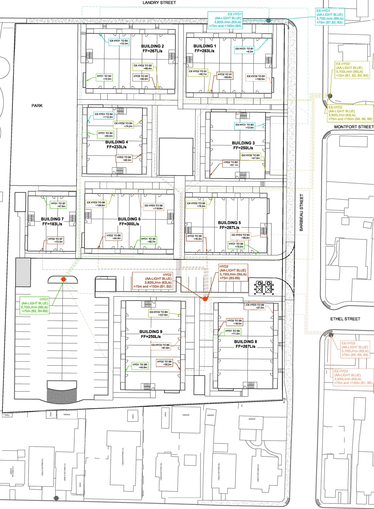
Shadow Study2021-10-28 - Fire Hydrant Plan - D07-12-20-0118
Shadow Study2021-08-23 - Sun Shadow - D07-12-20-0118
Site Servicing2024-07-04 - Servicing Plan - D07-12-20-0118
Site Servicing2024-07-04 - Servicing Design Brief - D07-12-20-0118
Site Servicing2022-11-21 - Servicing Plan - D07-12-20-0118
Site Servicing2022-07-20 - Servicing Plan - D07-12-20-0118
Site Servicing2022-07-20 - Servicing Design Brief - D07-12-20-0118
Site Servicing2022-04-01 - Servicing Plan - D07-12-20-0118
Site Servicing2021-10-28 - Servicing Plan - D07-12-20-0118
Site Servicing2021-08-23 - Servicing Plan - D07-12-20-0118
Site Servicing2021-06-11 - Site Servicing - D07-12-20-0118
Site Servicing2021-02-16 - Site Servicing - D07-12-20-0118
Site Servicing2021-02-16 - Servicing Plan - D07-12-20-0118
Site Servicing2020-09-04 - Servicing Plan - D07-12-20-0118
Site Servicing2020-09-04 - Servicing Design Brief - D07-12-20-0118
Site Servicing2024-10-10 - Servicing Plan - D07-12-20-0118
Site Servicing2024-10-10 - Servicing Design Brief - D07-12-20-0118
Stormwater Management2024-07-04 - Storm Drainage Area Plan - D07-12-20-0118
Stormwater Management2022-07-20 - Storm Drainage Area Plan - D07-12-20-0118
Stormwater Management2022-04-01 - Storm Drainage Area Plan - D07-12-20-0118
Stormwater Management2021-06-11 - Storm Drainage Plan - D07-12-20-0118
Stormwater Management2021-02-16 - Storm Drainage Area Plan - D07-12-20-0118
Stormwater Management2020-09-04 - Storm Drainage Area Plan - D07-12-20-0118
Stormwater Management2024-10-10 - Storm Drainage Area Plan - D07-12-20-0118
Stormwater Management2026-03-17 - Storm Drainage Area Plan - D07-12-20-0118
Surveying2020-09-04 - Survey and Topogrpahy - D07-12-20-0118
Transportation Analysis2024-10-10 - Transportation Review - D07-12-20-0118
Tree Information and Conservation2021-06-11 - Tree Conservation Report - D07-12-20-0118
Tree Information and Conservation2021-02-16 - Tree Conservation Report - D07-12-20-0118
Tree Information and Conservation2020-09-04 - Tree Conservation Report - D07-12-20-0118
2024-07-04 - Record of Site Condition - D07-12-20-0118
2020-09-04 - Trip Generation - D07-12-20-0118
2020-09-04 - HydroRoom Design - D07-12-20-0118