Ottawa Development Projects

280 Eric Czapnik Way#

Last updated: 2021-12-10 ยท ID: D07-12-20-0104

Summary#

To develop the lands to permit two low-rise apartment buildings that would each be 4 storeys in height and each building would contain 36 rental apartment units for a total of 72 apartment units. The building will have underground parking and surface arking with a total of 86 parking spaces being provided for the property and 60 will be underground and 26 will be surface parking

Status
Post Approval (Agreement Registered - Securities Held)

Location#

Select a marker to view the address.

Site Plans, Elevations and Floor Plans#

Additional Information#

Date Initiated2020-08-10
WardWard 1 - Matthew Luloff

Documents#

TypeDocument
Application Summary2020-09-01 - Application Summary - D07-12-20-0104
Architectural Plans2021-06-22 - Approved Site Plan and Elevations A302 - D07-12-20-0104
Architectural Plans2021-06-22 - Approved Site Plan and Elevations A301 - D07-12-20-0104
Architectural Plans2021-06-22 - Approved Site Plan and Elevations A300 - D07-12-20-0104
Architectural Plans2021-06-22 - Approved Pre-Development Watershed Plan - D07-12-20-0104
Architectural Plans2021-06-22 - Approved Post-Development Watershed Plan - D07-12-20-0104
Architectural Plans2021-06-22 - Approved Construction Details Plan C902 - D07-12-20-0104
Architectural Plans2021-06-22 - Approved Construction Details Plan C901 - D07-12-20-0104
Architectural Plans2021-06-22 - Approved Site Plan & Planning Schedules - D07-12-20-0104
Architectural Plans2021-02-23 - Stair Plans - D07-12-20-0104
Architectural Plans2021-02-23 - Site Plan and Planning Schedule - D07-12-20-0104
Architectural Plans2021-02-23 - Roof Plan - D07-12-20-0104
Architectural Plans2021-02-23 - Roof Access Plan - D07-12-20-0104
Architectural Plans2021-02-23 - Parking Plans - D07-12-20-0104
Architectural Plans2021-02-23 - Elevation Plans - D07-12-20-0104
Architectural Plans2020-08-27 - Predevelopment Watershed Plan - D07-12-20-0104
Architectural Plans2020-08-27 - Post Development Watershed Plan - D07-12-20-0104
Architectural Plans2020-08-27 - Construction Detail Plan - D07-12-20-0104
Architectural Plans2020-08-10 - Preliminary Landscape Plan - D07-12-20-0104
Architectural Plans2020-08-10 - Engineering Plans - D07-12-20-0104
Architectural Plans2020-08-10 - Architectural Package - D07-12-20-0104
Civil Engineering Report2021-02-23 - Civil Plans - D07-12-20-0104
Environmental2020-08-10 - Phase 1 Environmental Site Assessment - D07-12-20-0104
Erosion And Sediment Control Plan2021-06-22 - Approved Erosion & Sediment Control Plan - D07-12-20-0104
Erosion And Sediment Control Plan2020-08-27 - Erosion Control Plan - D07-12-20-0104
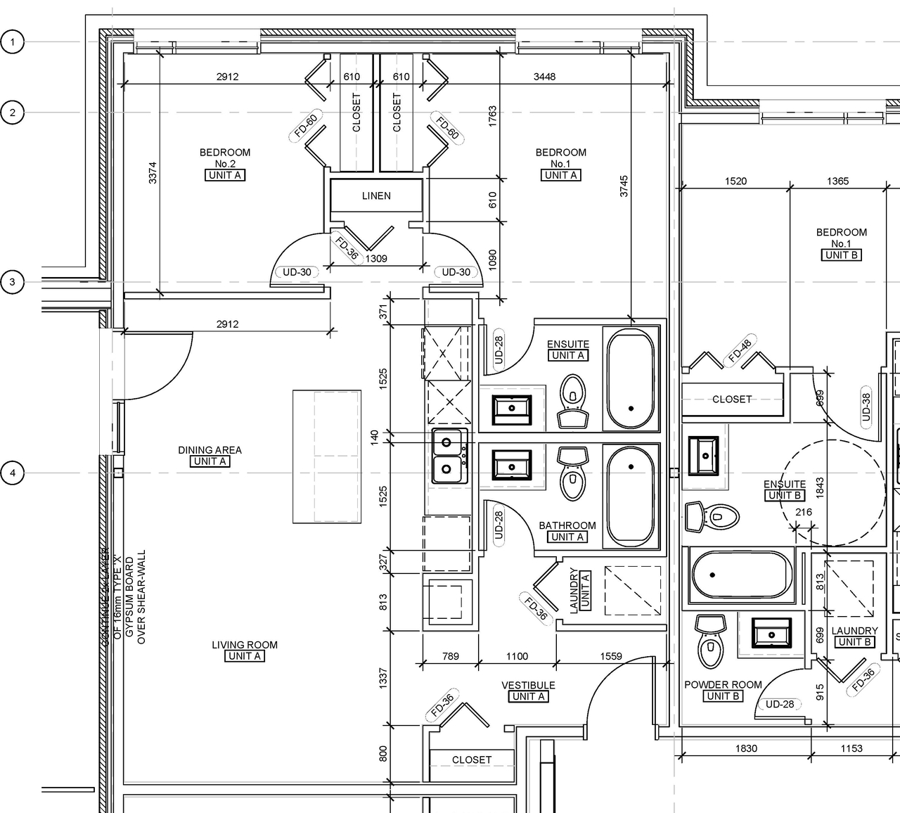
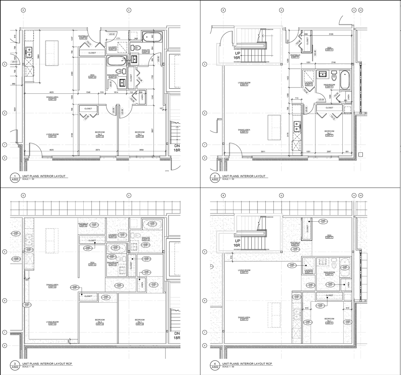
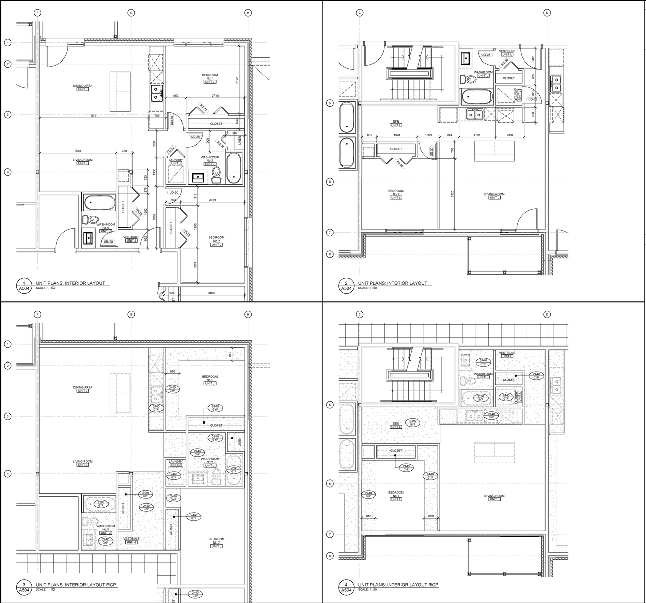
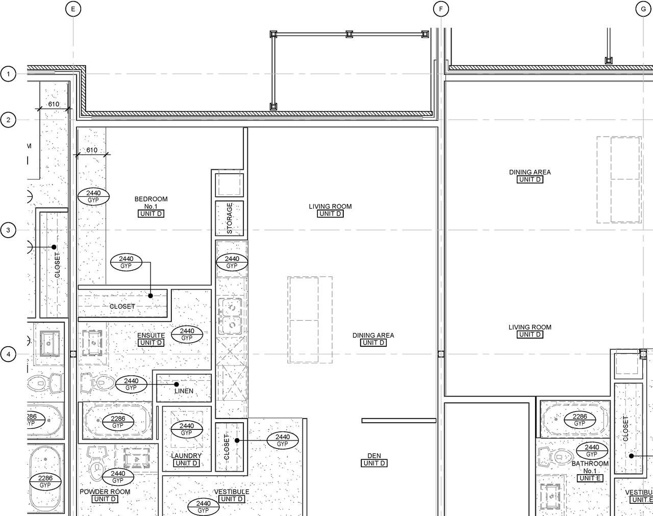
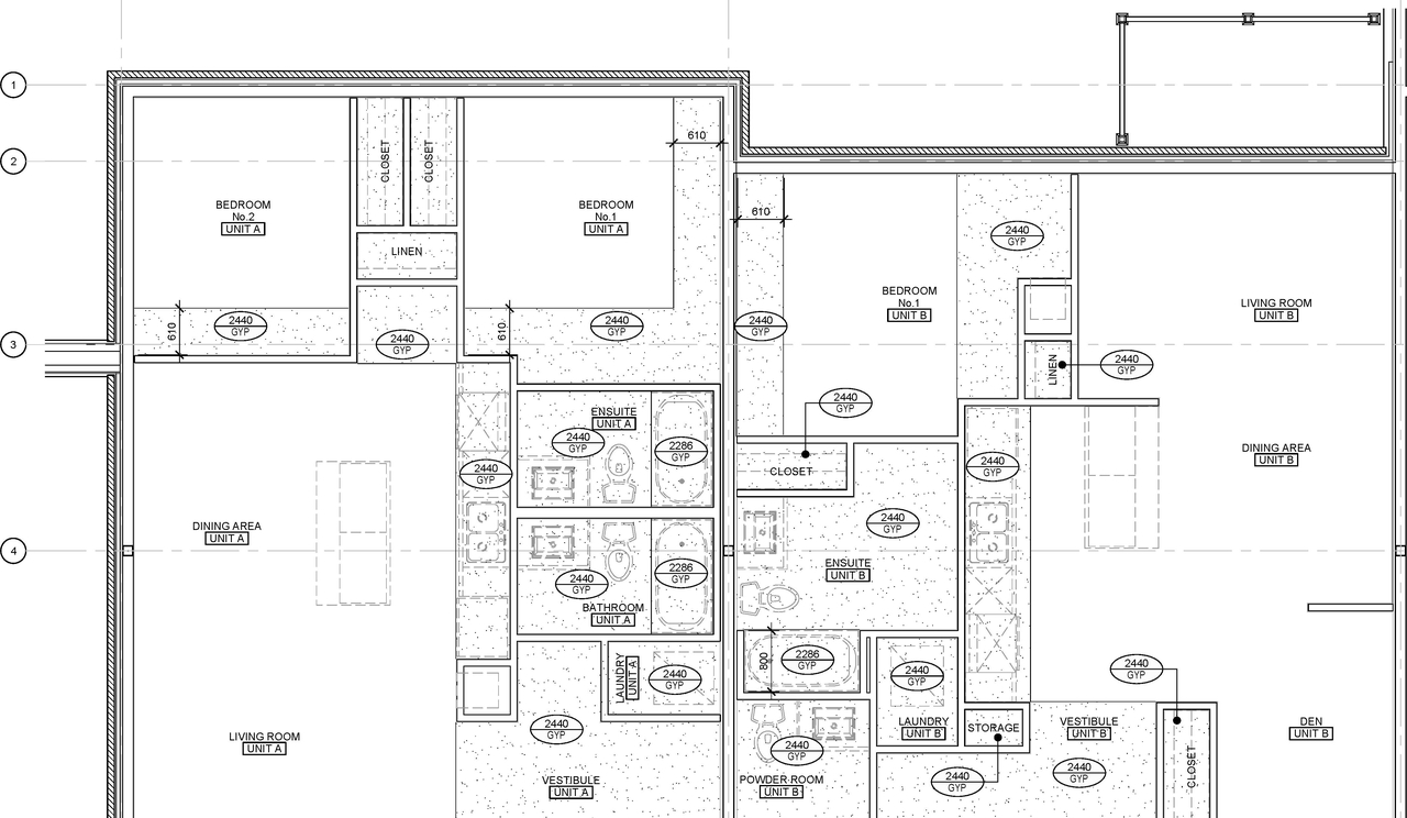
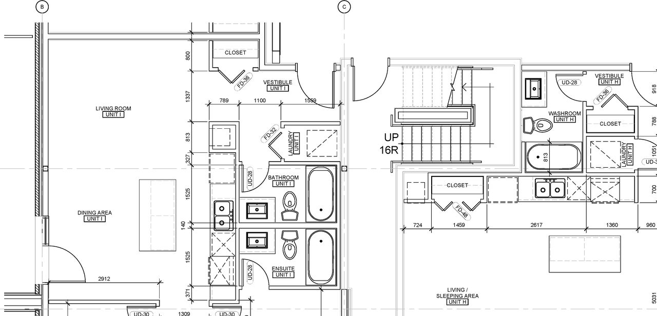
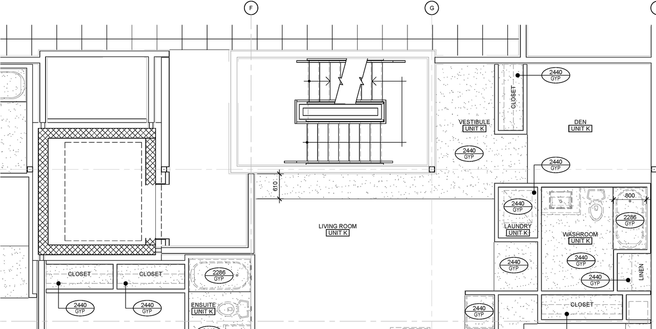
Floor Plan2021-02-23 - Unit Floor Plans - D07-12-20-0104
Geotechnical Report2021-06-22 - Approved Grading and Drainage Plan - D07-12-20-0104
Geotechnical Report2020-08-27 - Grading and Drainage Plan - D07-12-20-0104
Landscape Plan2021-06-22 - Approved Landscape plans - D07-12-20-0104
Landscape Plan2021-02-23 - Landscape Plans - D07-12-20-0104
Planning2020-08-10 - Planning Rationale - D07-12-20-0104
Site Servicing2021-06-22 - Approved Servicing Plan - D07-12-20-0104
Site Servicing2020-08-27 - Servicing Plan - D07-12-20-0104
Stormwater Management2021-06-22 - Approved Stormwater Management Plan - D07-12-20-0104
Stormwater Management2021-02-23 - Stormwater Management Report - D07-12-20-0104
Stormwater Management2020-08-27 - Stormwater Management Plan - D07-12-20-0104
Stormwater Management2020-08-10 - Stormwater Management and Servicing Report - D07-12-20-0104
Surveying2020-08-10 - Survey - D07-12-20-0104
Tree Information and Conservation2020-08-10 - Tree Protection Plans - D07-12-20-0104
2021-06-22 - Signed Delegated Authority Report - D07-12-20-0104
2021-02-23 - Window Schedules - D07-12-20-0104
2021-02-23 - Section Details - D07-12-20-0104
2021-02-23 - Matrix and Drawing List - D07-12-20-0104
2021-02-23 - Ground Floor - D07-12-20-0104
2021-02-23 - 4th Floor - D07-12-20-0104
2021-02-23 - 3rd Floor - D07-12-20-0104
2021-02-23 - 2nd Floor - D07-12-20-0104
2020-08-27 -Geotech Report - D07-12-20-0104