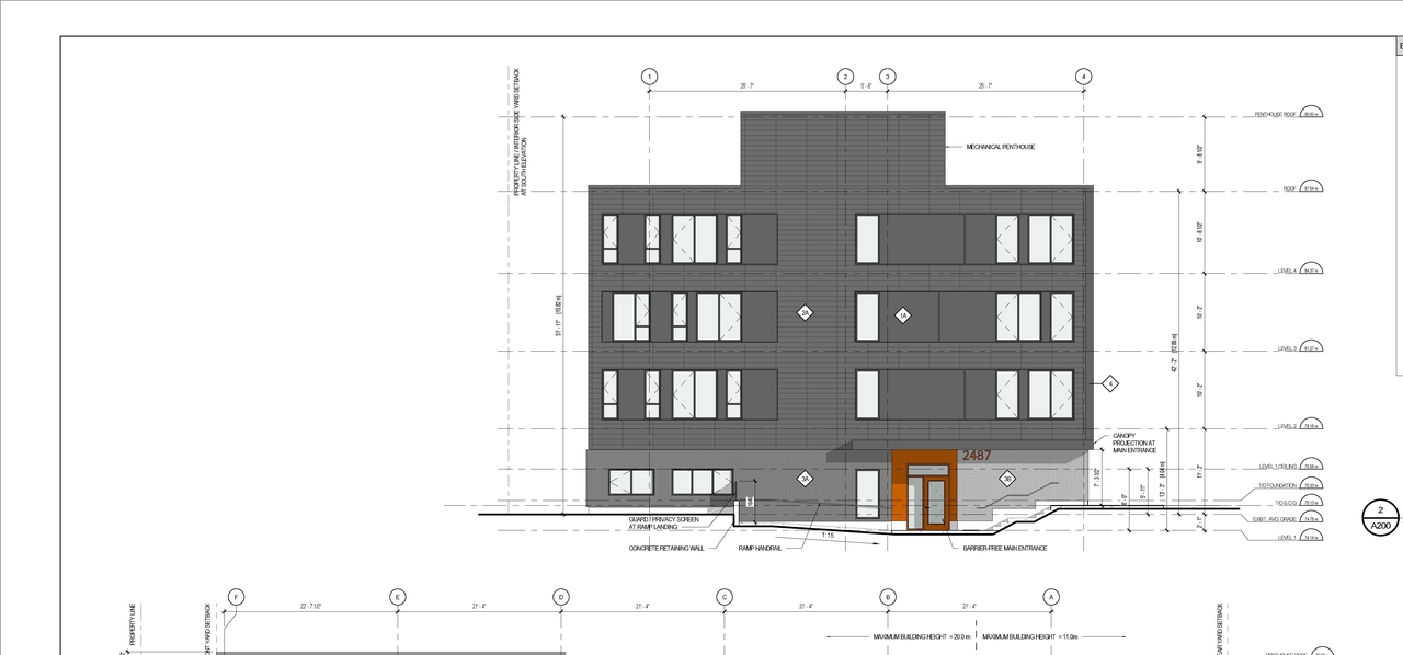
2487 Innes Rd.#
Last updated: 2021-12-16 · ID: D07-12-20-0085
Summary#
to construct a 3.5 storey, 33 unit low rise rental apartment building with 45 vehicle parking spots and 15 bicycle parking spaces
Status
Post Approval (Request for Agreement Received)
Building Scale (Max.)
Based on elevation drawings. Values may be approximate. See sources for exact figures.
Mid-rise · 4 storeys
· 15.82 m
Location#
Select a marker to view the address.
Site Plans, Elevations and Floor Plans#
Additional Information#
| Date Initiated | 2020-06-24 |
| Ward | Ward 2 - Laura Dudas |


