319-327 Richmond Rd./381 Churchill Ave. N./380 Winona Ave.#
Last updated: 2024-09-25 · ID: D07-12-20-0081
Summary#
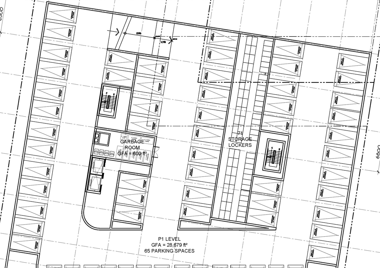
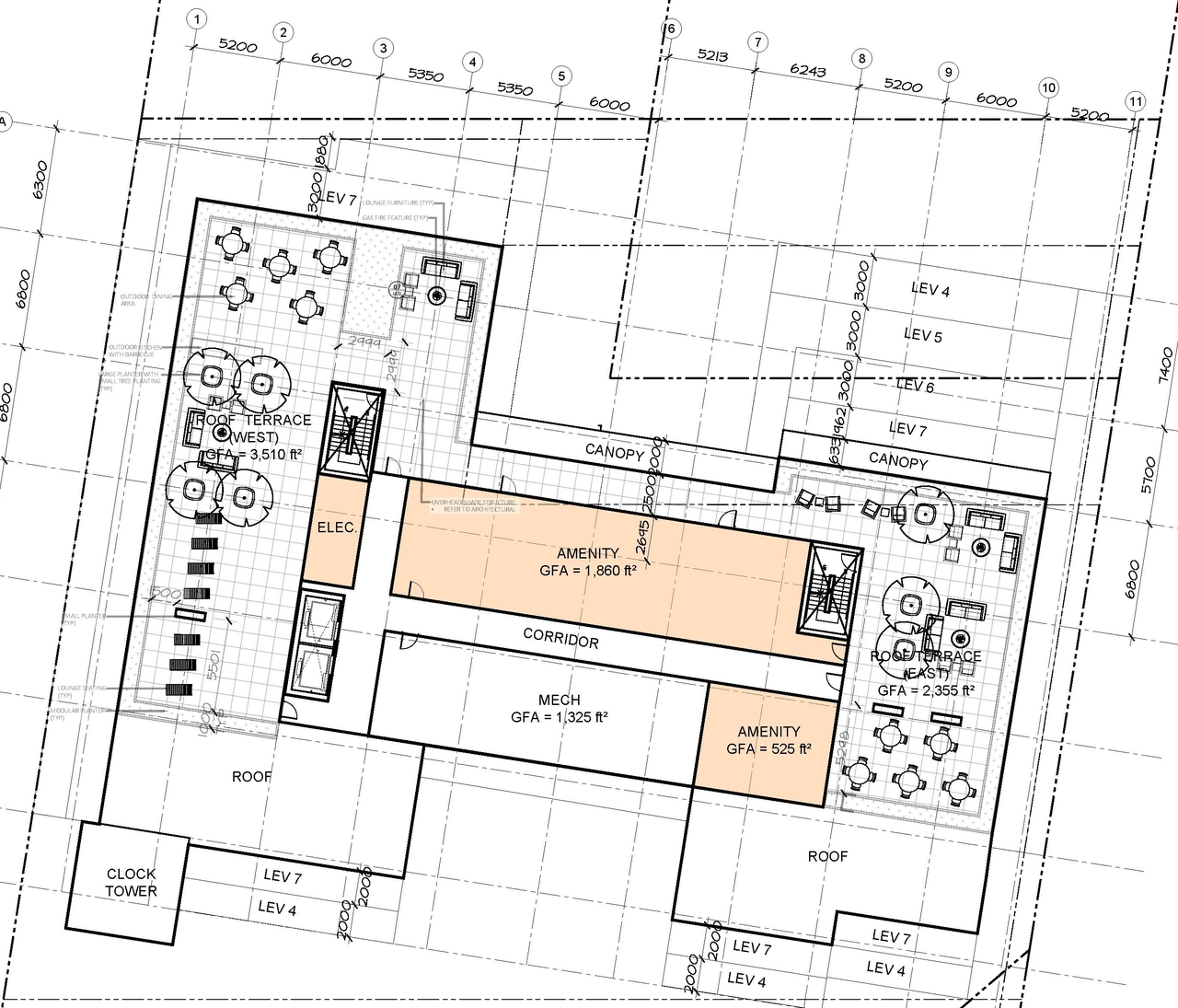
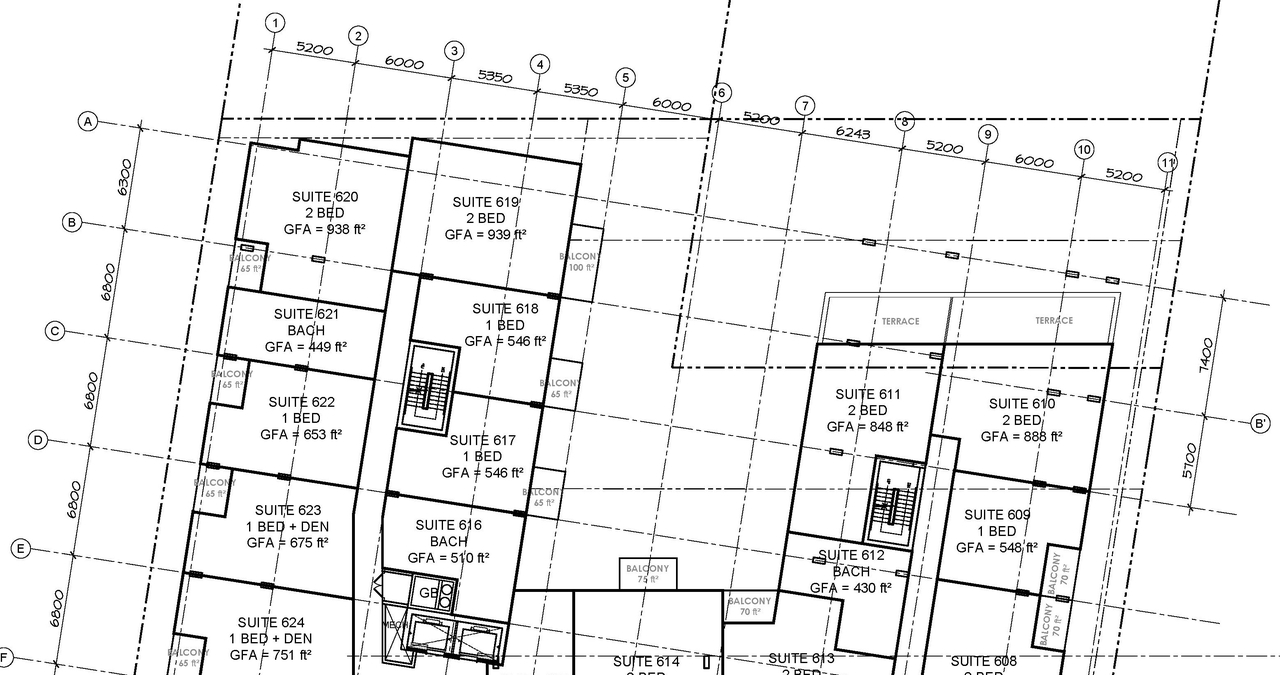
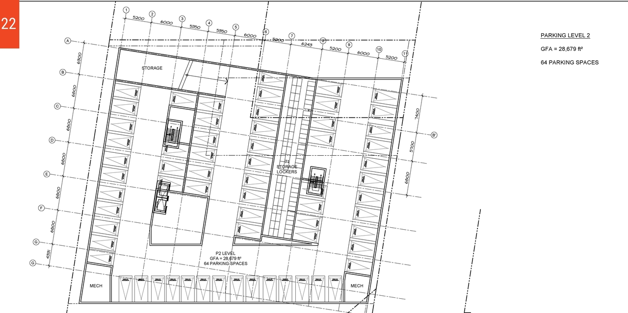
The City of Ottawa has received a Zoning By-law Amendment and Site Plan Control application to construct a 9-storey mixed-use building with ground floor commercial units and approximately 185 dwelling units on the upper storeys.
Status
Post Approval (None)
Building Scale (Max.)
Based on elevation drawings. Values may be approximate. See sources for exact figures.
Mid-rise · 9 storeys
Data Quality Note
Text was extracted using optical character recognition. This may introduce artifacts or misreads.
· 29.3 m
Data Quality Note
Height was partially estimated using visual scale. This may be approximate.
Data Quality Note
Text was extracted using optical character recognition. This may introduce artifacts or misreads.
Renders#
Location#
Select a marker to view the address.
Site Plans, Elevations and Floor Plans#
Additional Information#
| Date Initiated | 2020-06-17 |
| Ward | Ward 15 - Jeff Leiper |
| All Addresses | 319 Richmond Rd. 325 Richmond Rd. 327 Richmond Rd. 381 Churchill Ave. N. 380 Winona Ave. |
Documents#
Related Projects#
| Project | Last Updated | Date Initiated |
|---|---|---|
327 Richmond Rd.
D07-05-24-0002 | 2024-08-11 | 2024-03-04 |






















