Ottawa Development Projects

1330 Carling Ave./815 Archibald St.#

Last updated: 2022-06-09 · ID: D07-12-20-0063

Summary#

A 24-storey, mixed use building is proposed, with commercial at grade and residential uses above. A total of 175 dwelling units is proposed. Residential parking is proposed to be provided below-grade, with limited at-grade surface parking to support commercial units.

Status
Post Approval (Request for Agreement Received)

Building Scale (Max.) Based on elevation drawings. Values may be approximate. See sources for exact figures.
High-rise · 25 storeys · 80.37 m

Renders#

Location#

Select a marker to view the address.

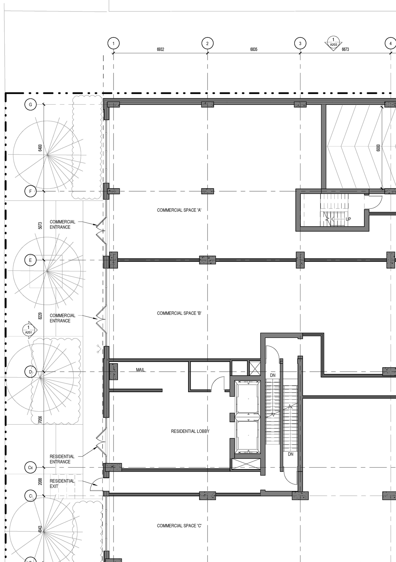
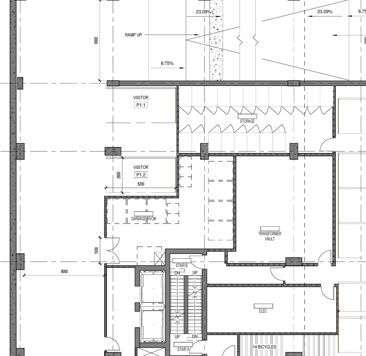
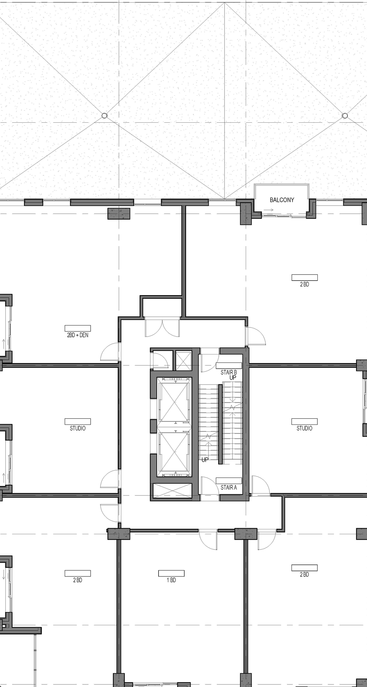
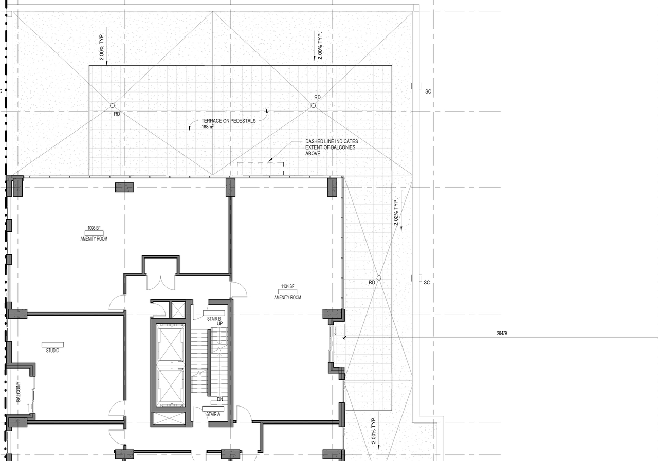
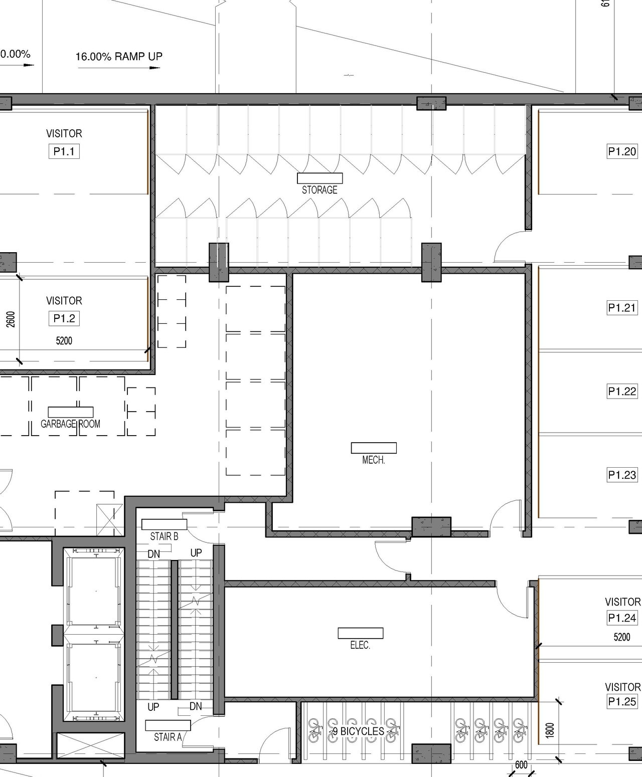
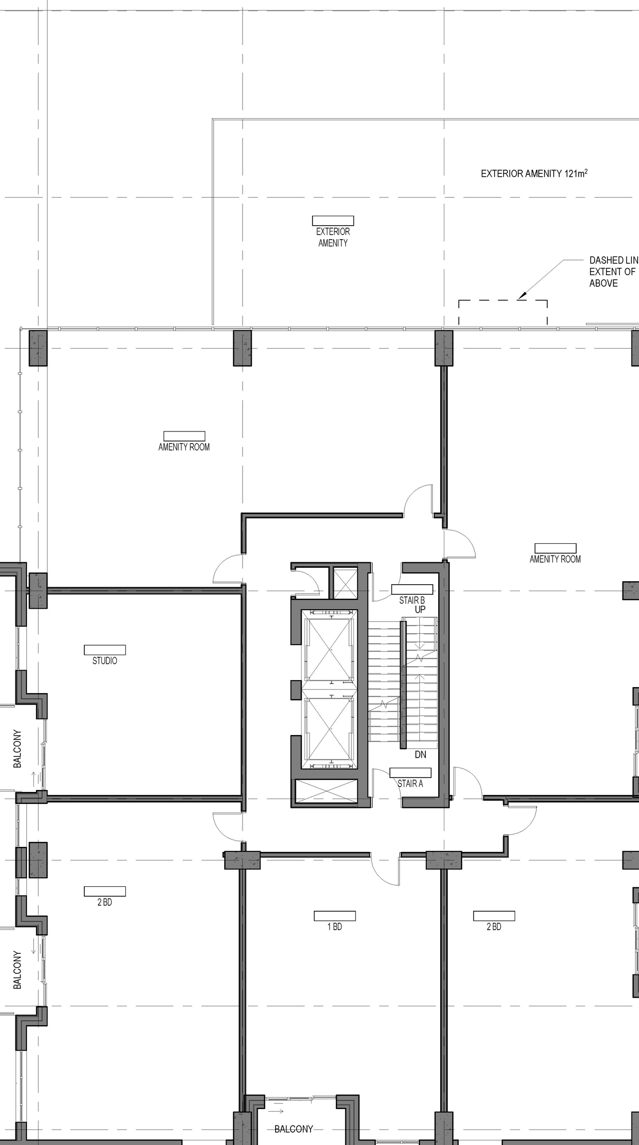
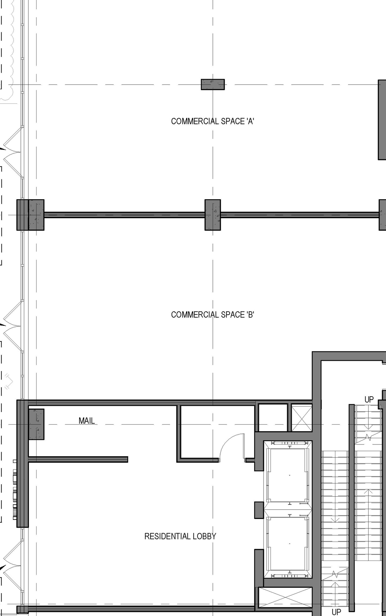
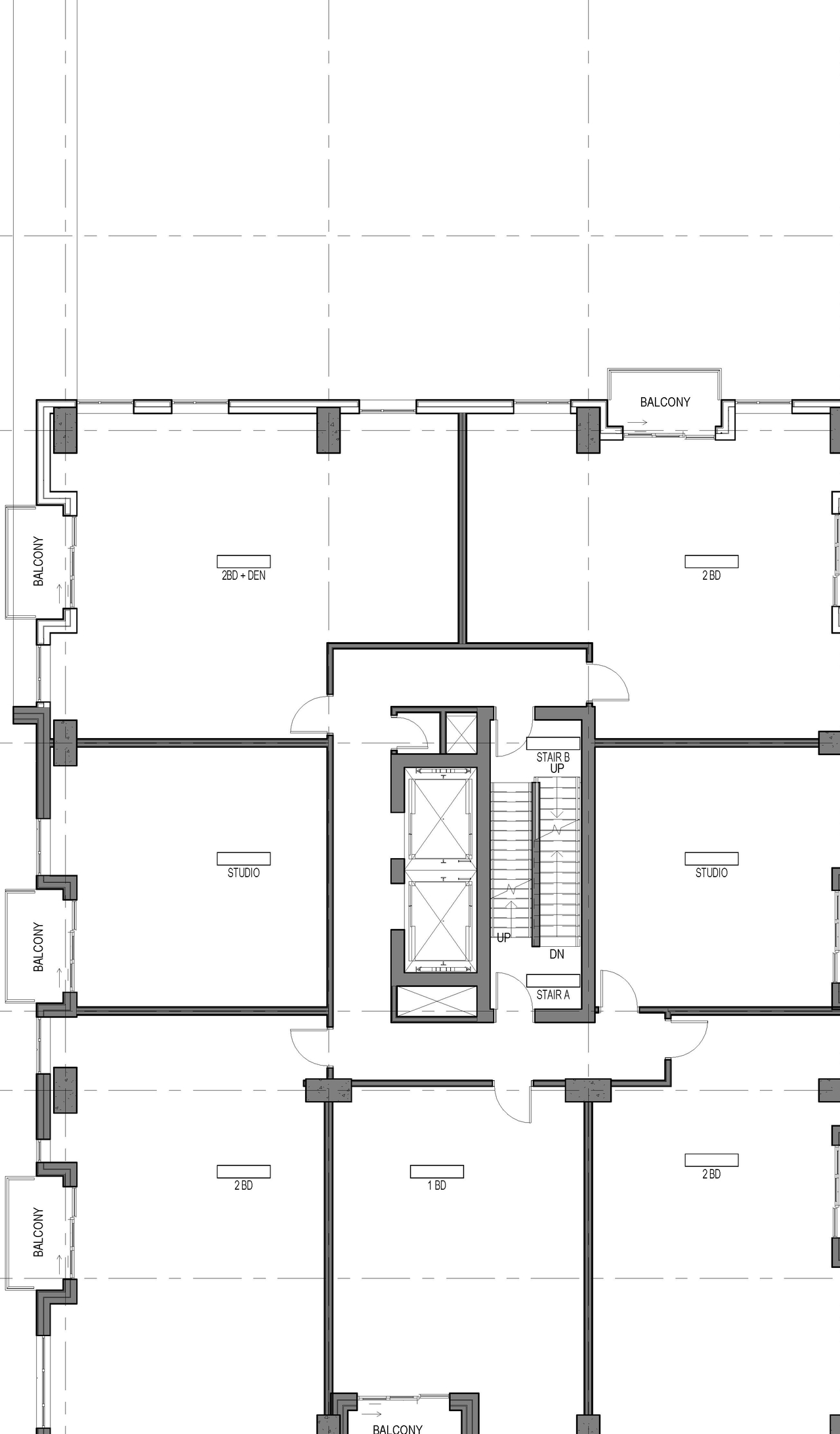
Site Plans, Elevations and Floor Plans#

  • Image from page 8 of the file '2022-01-17 - Floor Plans - Elevations - D07-12-20-0063'
  • Image from page 9 of the file '2020-05-20 - Floor Plans and Elevations - D07-12-20-0063'
  • Image from page 10 of the file '2022-01-17 - Floor Plans - Elevations - D07-12-20-0063'
  • Image from page 7 of the file '2020-05-20 - Floor Plans and Elevations - D07-12-20-0063'
  • Image from page 10 of the file '2020-05-20 - Floor Plans and Elevations - D07-12-20-0063'
  • Image from page 7 of the file '2022-01-17 - Floor Plans - Elevations - D07-12-20-0063'
  • Image from page 3 of the file '2022-01-17 - Floor Plans - D07-12-20-0063'
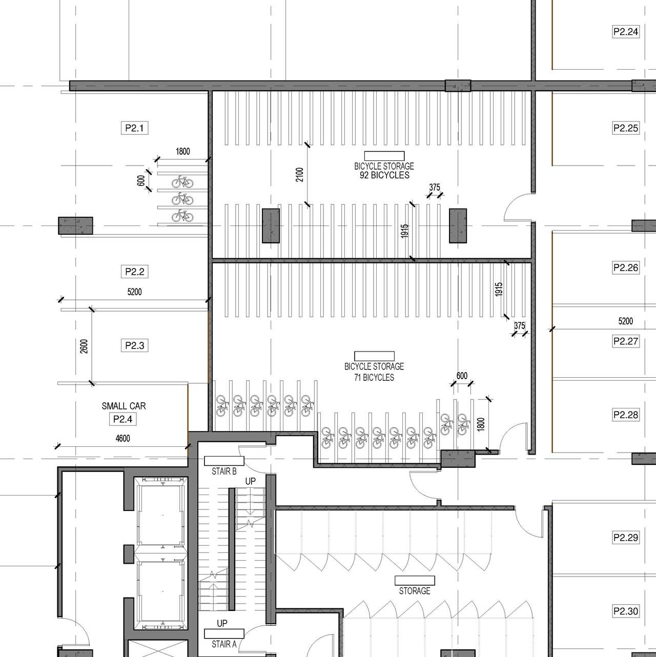
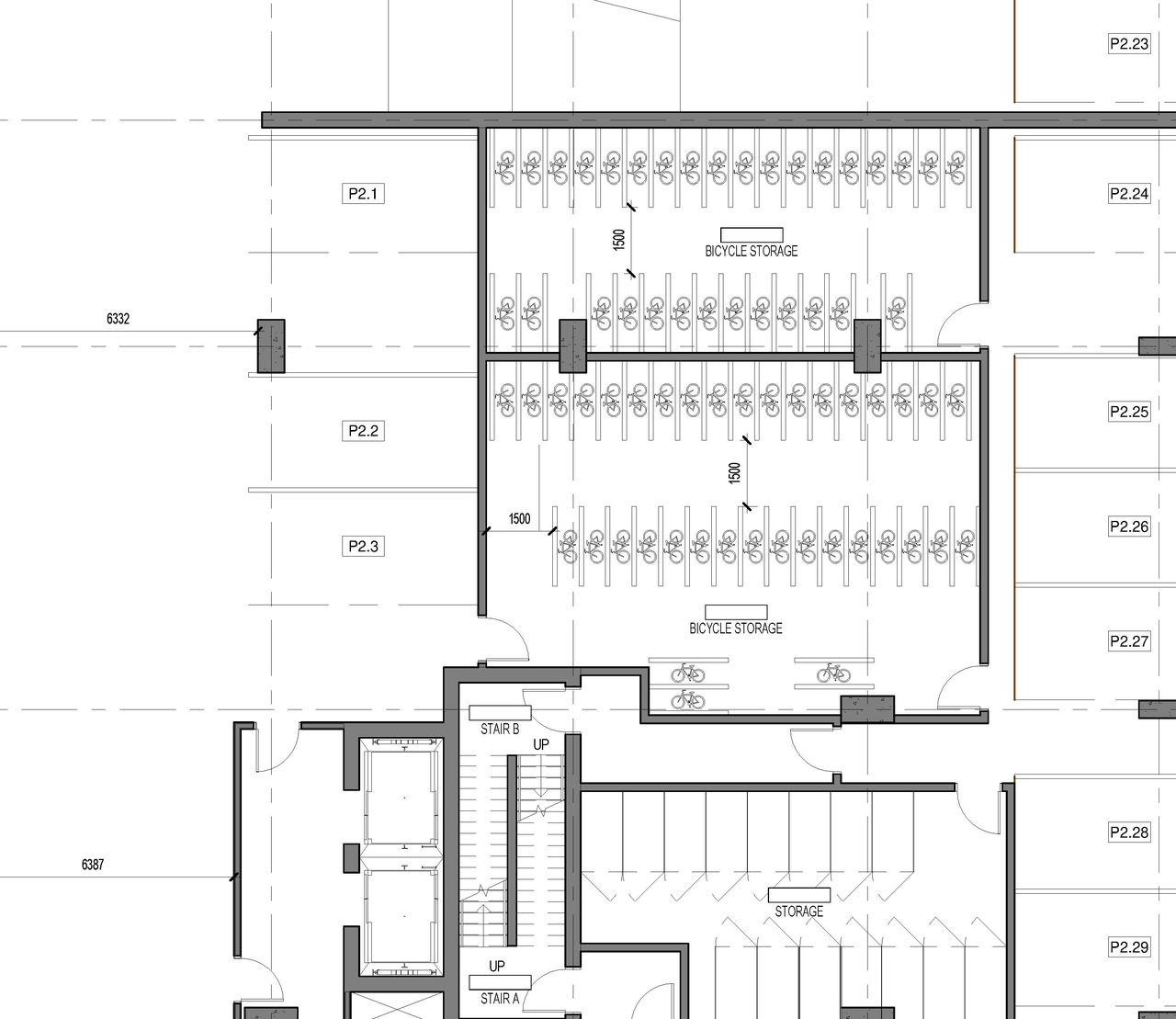
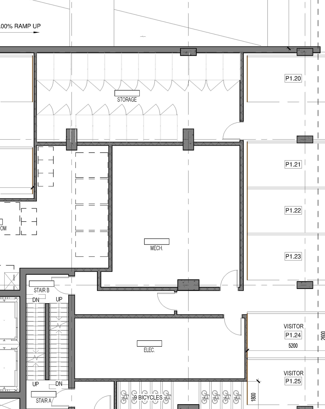
  • Construction site plan for project from page 2 of the file '2022-06-13 - Approved P1 & P2 Parking Plans and 6th Floor Plan - D07-12-20-0063'
  • Construction site plan for project from page 1 of the file '2022-06-13 - Approved P1 & P2 Parking Plans and 6th Floor Plan - D07-12-20-0063'
  • Construction site plan for project from page 2 of the file '2022-01-17 - Floor Plans - Elevations - D07-12-20-0063'
  • Construction site plan for project from page 2 of the file '2022-06-06 - Floor Plan - D07-12-20-0063'
  • Construction site plan for project from page 3 of the file '2022-06-13 - Approved P1 & P2 Parking Plans and 6th Floor Plan - D07-12-20-0063'
  • Construction site plan for project from page 1 of the file '2020-05-20 - Floor Plans and Elevations - D07-12-20-0063'
  • Construction site plan for project from page 3 of the file '2020-05-20 - Floor Plans and Elevations - D07-12-20-0063'
  • Construction site plan for project from page 6 of the file '2020-05-20 - Floor Plans and Elevations - D07-12-20-0063'
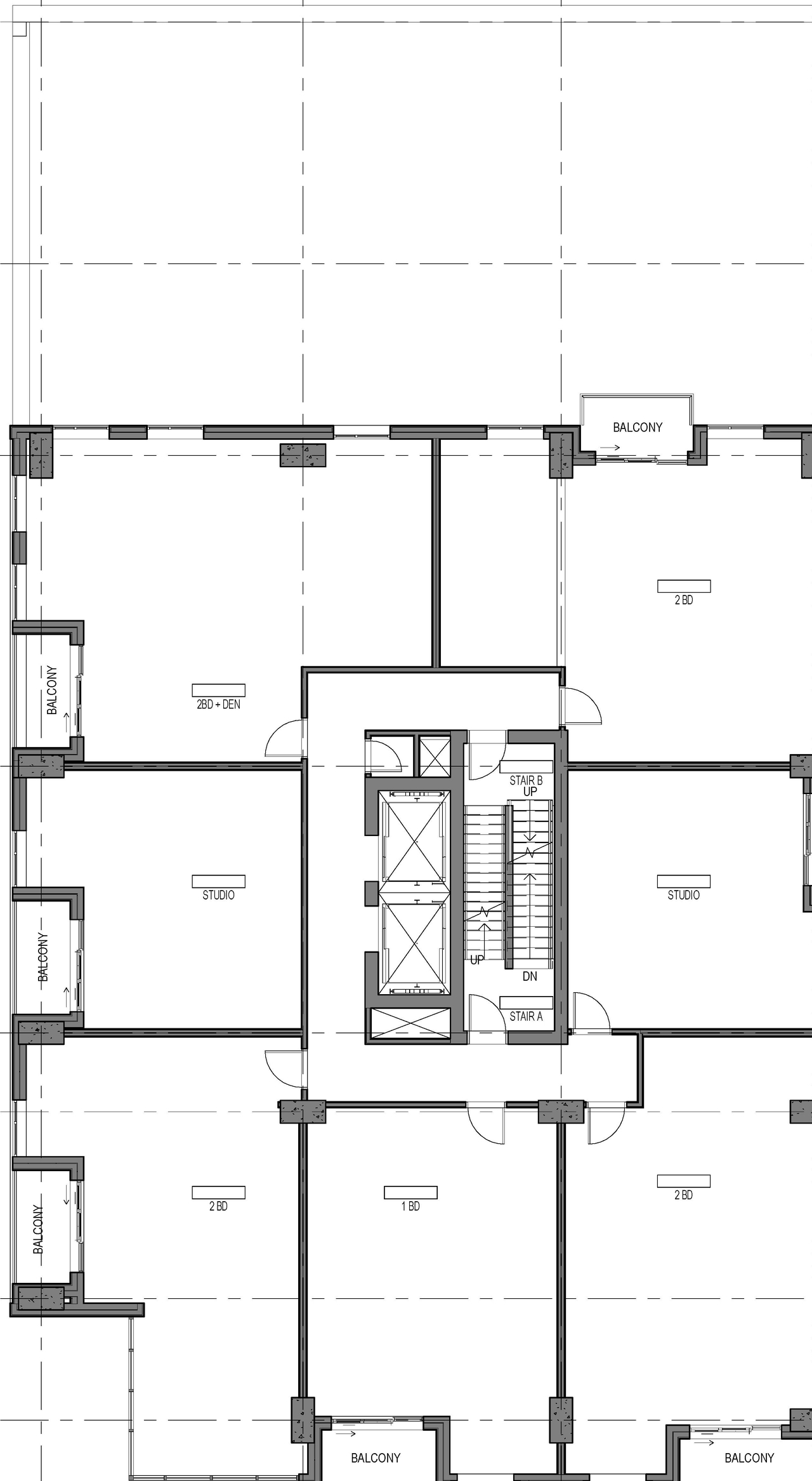
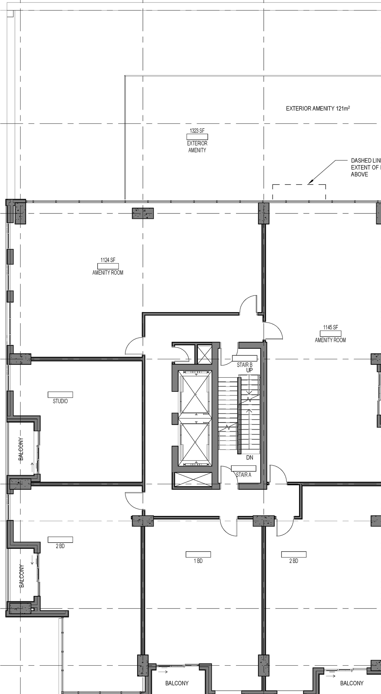
  • Floor plan for project from page 4 of the file '2020-05-20 - Floor Plans and Elevations - D07-12-20-0063'
  • Floor plan for project from page 3 of the file '2022-01-17 - Floor Plans - Elevations - D07-12-20-0063'
  • Floor plan for project from page 5 of the file '2020-05-20 - Floor Plans and Elevations - D07-12-20-0063'
  • Floor plan for project from page 6 of the file '2022-01-17 - Floor Plans - Elevations - D07-12-20-0063'
  • Floor plan for project from page 4 of the file '2022-01-17 - Floor Plans - D07-12-20-0063'
  • Floor plan for project from page 7 of the file '2022-01-17 - Floor Plans - D07-12-20-0063'
  • Floor plan for project from page 5 of the file '2022-01-17 - Floor Plans - Elevations - D07-12-20-0063'
  • Floor plan for project from page 1 of the file '2022-06-13 - Approved P1 & P2 Parking Plans and 6th Floor Plan - D07-12-20-0063'
  • Floor plan for project from page 6 of the file '2022-01-17 - Floor Plans - D07-12-20-0063'
  • Image from page 8 of the file '2022-01-17 - Floor Plans - Elevations - D07-12-20-0063'
  • Image from page 9 of the file '2020-05-20 - Floor Plans and Elevations - D07-12-20-0063'
  • Image from page 10 of the file '2022-01-17 - Floor Plans - Elevations - D07-12-20-0063'
  • Image from page 7 of the file '2020-05-20 - Floor Plans and Elevations - D07-12-20-0063'
  • Image from page 10 of the file '2020-05-20 - Floor Plans and Elevations - D07-12-20-0063'
  • Image from page 7 of the file '2022-01-17 - Floor Plans - Elevations - D07-12-20-0063'
  • Image from page 3 of the file '2022-01-17 - Floor Plans - D07-12-20-0063'
  • Construction site plan for project from page 2 of the file '2022-06-13 - Approved P1 & P2 Parking Plans and 6th Floor Plan - D07-12-20-0063'
  • Construction site plan for project from page 1 of the file '2022-06-13 - Approved P1 & P2 Parking Plans and 6th Floor Plan - D07-12-20-0063'
  • Construction site plan for project from page 2 of the file '2022-01-17 - Floor Plans - Elevations - D07-12-20-0063'
  • Construction site plan for project from page 2 of the file '2022-06-06 - Floor Plan - D07-12-20-0063'
  • Construction site plan for project from page 3 of the file '2022-06-13 - Approved P1 & P2 Parking Plans and 6th Floor Plan - D07-12-20-0063'
  • Construction site plan for project from page 1 of the file '2020-05-20 - Floor Plans and Elevations - D07-12-20-0063'
  • Construction site plan for project from page 3 of the file '2020-05-20 - Floor Plans and Elevations - D07-12-20-0063'
  • Construction site plan for project from page 6 of the file '2020-05-20 - Floor Plans and Elevations - D07-12-20-0063'
  • Floor plan for project from page 4 of the file '2020-05-20 - Floor Plans and Elevations - D07-12-20-0063'
  • Floor plan for project from page 3 of the file '2022-01-17 - Floor Plans - Elevations - D07-12-20-0063'
  • Floor plan for project from page 5 of the file '2020-05-20 - Floor Plans and Elevations - D07-12-20-0063'
  • Floor plan for project from page 6 of the file '2022-01-17 - Floor Plans - Elevations - D07-12-20-0063'
  • Floor plan for project from page 4 of the file '2022-01-17 - Floor Plans - D07-12-20-0063'
  • Floor plan for project from page 7 of the file '2022-01-17 - Floor Plans - D07-12-20-0063'
  • Floor plan for project from page 5 of the file '2022-01-17 - Floor Plans - Elevations - D07-12-20-0063'
  • Floor plan for project from page 1 of the file '2022-06-13 - Approved P1 & P2 Parking Plans and 6th Floor Plan - D07-12-20-0063'
  • Floor plan for project from page 6 of the file '2022-01-17 - Floor Plans - D07-12-20-0063'

Additional Information#

Date Initiated2020-05-19
WardWard 16 - Riley Brockington

Documents#

TypeDocument
Application Summary2020-06-18 - Application Summary - D07-12-20-0063
Architectural Plans2022-06-13 - Approved Site Plan - D07-12-20-0063
Architectural Plans2022-06-13 - Approved Sediment and Erosion Control Plan - D07-12-20-0063
Architectural Plans2022-06-13 - Approved Elevations - D07-12-20-0063
Architectural Plans2022-06-06 - Site Plan - D07-12-20-0063
Architectural Plans2022-06-06 - Sediment and Erosion Control Plan - D07-12-20-0063
Architectural Plans2022-06-06 - Elevations - D07-12-20-0063
Architectural Plans2022-01-17 - Site Plan (2) - D07-12-20-0063
Architectural Plans2022-01-17 - Site Plan - D07-12-20-0063
Architectural Plans2022-01-17 - Sediment and Erosion Control Plan - D07-12-20-0063
Architectural Plans2022-01-17 - Elevations - D07-12-20-0063
Architectural Plans2022-01-17 - Angular Plan Diagram - D07-12-20-0063
Architectural Plans2020-12-10 - 2nd submission Site Plan - D07-12-20-0063
Architectural Plans2020-12-10 - 2nd submission Carling Angular plan diagram - D07-12-20-0063
Architectural Plans2020-05-20 - Site Plan - D07-12-20-0063
Environmental2022-01-17 - Phase II Environmental Site Assessment - D07-12-20-0063
Environmental2022-01-17 - Phase I Environmental Site Assessment - D07-12-20-0063
Environmental2020-05-20 - Phase 2 Environmental Site Assessment - D07-12-20-0063
Environmental2020-05-20 - Phase 1 Environmental Site Assessment - D07-12-20-0063
Erosion And Sediment Control Plan2022-06-06 - Erosion Control Plan - D07-12-20-0063
Erosion And Sediment Control Plan2020-05-20 - Erosion Control Plan - D07-12-20-0063
Existing Conditions2022-06-06 - Existing Conditions Plan - D07-12-20-0063
Existing Conditions2020-05-20 - Existing Conditions Plan - D07-12-20-0063
Floor Plan2022-06-13 - Approved P1 & P2 Parking Plans and 6th Floor Plan - D07-12-20-0063
Floor Plan2022-06-06 - Floor Plan - D07-12-20-0063
Floor Plan2022-01-17 - Floor Plans - Elevations - D07-12-20-0063
Floor Plan2022-01-17 - Floor Plans - D07-12-20-0063
Floor Plan2020-12-10 - 2nd submission Carling Floor Plans Elevations - D07-12-20-0063
Floor Plan2020-05-20 - Floor Plans and Elevations - D07-12-20-0063
Geotechnical Report2022-06-13 - Approved Grading and Drainage Plan - D07-12-20-0063
Geotechnical Report2022-06-06 - Grading and Drainage Plan - D07-12-20-0063
Geotechnical Report2022-01-17 - Grading & Drainage Plan - D07-12-20-0063
Geotechnical Report2020-05-20 - Grading Plan - D07-12-20-0063
Geotechnical Report2020-05-20 - Geotechnical Investigation - D07-12-20-0063
Landscape Plan2022-06-13 - Approved Landscape Plan - D07-12-20-0063
Landscape Plan2022-06-06 - Landscape Plan - D07-12-20-0063
Landscape Plan2022-01-17 - Landscape Plan - D07-12-20-0063
Landscape Plan2020-05-20 - Landscape Plan - D07-12-20-0063
Noise Study2020-05-20 - Noise Study - D07-12-20-0063
Planning2020-05-20 - Planning Rationale - D07-12-20-0063
Rendering2022-01-17 - Renders - D07-12-20-0063
Rendering2020-12-10 - 2nd submission Carling Renders - D07-12-20-0063
Shadow Study2020-05-20 - Sun Shadow Study - D07-12-20-0063
Site Servicing2022-06-13 - Approved Site Servicing Plan - D07-12-20-0063
Site Servicing2022-06-06 - Site Servicing Plan - D07-12-20-0063
Site Servicing2022-06-06 - Servicing Report - D07-12-20-0063
Site Servicing2022-01-17 - Site Servicing Plan - D07-12-20-0063
Site Servicing2022-01-17 - Servicing Report - D07-12-20-0063
Site Servicing2020-05-20 - Site Servicing Plan - D07-12-20-0063
Site Servicing2020-05-20 - Servicing and Stormwater Management Report - D07-12-20-0063
Stormwater Management2020-05-20 - Stormwater Management Plan - D07-12-20-0063
Surveying2020-05-20 - Survey - D07-12-20-0063
Transportation Analysis2022-01-17 - Transportation Impact Assessment - D07-12-20-0063
Tree Information and Conservation2022-06-06 - Tree Conservation Report - D07-12-20-0063
Tree Information and Conservation2020-05-20 - Tree Conservation Report - D07-12-20-0063
Tree Information and Conservation2020-05-20 - Tree Conservation Plan - D07-12-20-0063
Wind Study2020-05-20 - Wind Study - D07-12-20-0063
2022-06-13 - Signed Delegated Authority Report - D07-12-20-0063
2022-01-17 - Garbage Collect - D07-12-20-0063
2022-01-17 - Carling-Section - D07-12-20-0063
2020-12-10 - 2nd submission Transportation Response - D07-12-20-0063
2020-12-10 - 2nd submission Response to Round 1 Comments - D07-12-20-0063
2020-12-10 - 2nd submission Rationale Addendum - D07-12-20-0063
2020-12-10 - 2nd submission Geotechnical City Comment Response - D07-12-20-0063
2020-12-10 - 2nd submission Garbage Collection - D07-12-20-0063
2020-12-10 - 2nd submission Carling Section - D07-12-20-0063
2020-12-10 - 2nd submission Archibald Strategy Report - D07-12-20-0063
2020-05-20-Transporation Impact Assessment-D07-12-20-0063