Ottawa Development Projects

2583-2589 Bond St./1420 Richmond Rd./365 Forest St.#

Last updated: 2024-04-25 · ID: D07-12-20-0041

Summary#

The City of Ottawa has received a concurrent Official Plan Amendment, Zoning By-law Amendment and Site Plan Control application to permit a 11-storey and a 12-storey building containing a total of 391 apartment units and a commercial unit at grade facing Richmond Road.

Status
Inactive (Notice of Decision Sent)

Building Scale (Max.) Based on elevation drawings. Values may be approximate. See sources for exact figures.
High-rise · 12 storeys · 40.5 m

Renders#

  • Rendering of building from page 37 of the file '2021-06-23 - Floor Plans and Elevations (2021-05-21)- D07-12-20-0041'
  • Rendering of building from page 8 of the file '2021-06-23 - Floor Plans and Elevations (2021-05-28) - D07-12-20-0041'
  • Rendering of building from page 60 of the file '2022-01-25 - Site & Floor Plans - D07-12-20-0041'
  • Rendering of building from page 6 of the file '2021-06-23 - Floor Plans and Elevations (2021-05-21)- D07-12-20-0041'
  • Rendering of building from page 8 of the file '2021-06-23 - Floor Plans and Elevations (2021-05-28) - D07-12-20-0041'
  • Rendering of building from page 6 of the file '2021-06-23 - Floor Plans and Elevations (2021-05-28) - D07-12-20-0041'
  • Rendering of building from page 6 of the file '2021-06-23 - Floor Plans and Elevations (2021-05-28) - D07-12-20-0041'
  • Rendering of building from page 6 of the file '2021-06-23 - Floor Plans and Elevations (2021-05-21)- D07-12-20-0041'
  • Rendering of building from page 2 of the file '2022-01-25 - Site & Floor Plans - D07-12-20-0041'
  • Rendering of building from page 47 of the file '2022-01-25 - Site & Floor Plans - D07-12-20-0041'
  • Rendering of building from page 63 of the file '2022-01-25 - Site & Floor Plans - D07-12-20-0041'
  • Rendering of building from page 39 of the file '2021-06-23 - Floor Plans and Elevations (2021-05-21)- D07-12-20-0041'
  • Rendering of building from page 7 of the file '2021-06-23 - Floor Plans and Elevations (2021-05-28) - D07-12-20-0041'
  • Rendering of building from page 61 of the file '2022-01-25 - Site & Floor Plans - D07-12-20-0041'
  • Rendering of building from page 42 of the file '2021-06-23 - Floor Plans and Elevations (2021-05-21)- D07-12-20-0041'
  • Rendering of building from page 9 of the file '2021-06-23 - Floor Plans and Elevations (2021-05-28) - D07-12-20-0041'
  • Rendering of building from page 45 of the file '2021-06-23 - Floor Plans and Elevations (2021-05-21)- D07-12-20-0041'
  • Rendering of building from page 59 of the file '2022-01-25 - Site & Floor Plans - D07-12-20-0041'
  • Rendering of building from page 7 of the file '2021-06-23 - Floor Plans and Elevations (2021-05-28) - D07-12-20-0041'
  • Rendering of building from page 66 of the file '2022-01-25 - Site & Floor Plans - D07-12-20-0041'
  • Rendering of building from page 41 of the file '2021-06-23 - Floor Plans and Elevations (2021-05-21)- D07-12-20-0041'
  • Rendering of building from page 3 of the file '2021-06-23 - Floor Plans and Elevations (2021-05-21)- D07-12-20-0041'
  • Rendering of building from page 65 of the file '2022-01-25 - Site & Floor Plans - D07-12-20-0041'
  • Rendering of building from page 58 of the file '2022-01-25 - Site & Floor Plans - D07-12-20-0041'
  • Rendering of building from page 44 of the file '2021-06-23 - Floor Plans and Elevations (2021-05-21)- D07-12-20-0041'
  • Rendering of building from page 9 of the file '2021-06-23 - Floor Plans and Elevations (2021-05-28) - D07-12-20-0041'
  • Rendering of building from page 34 of the file '2021-06-23 - Floor Plans and Elevations (2021-05-21)- D07-12-20-0041'
  • Rendering of building from page 43 of the file '2021-06-23 - Floor Plans and Elevations (2021-05-21)- D07-12-20-0041'
  • Rendering of building from page 62 of the file '2021-06-23 - Floor Plans and Elevations (2021-05-28) - D07-12-20-0041'
  • Rendering of building from page 37 of the file '2021-06-23 - Floor Plans and Elevations (2021-05-21)- D07-12-20-0041'
  • Rendering of building from page 8 of the file '2021-06-23 - Floor Plans and Elevations (2021-05-28) - D07-12-20-0041'
  • Rendering of building from page 60 of the file '2022-01-25 - Site & Floor Plans - D07-12-20-0041'
  • Rendering of building from page 6 of the file '2021-06-23 - Floor Plans and Elevations (2021-05-21)- D07-12-20-0041'
  • Rendering of building from page 8 of the file '2021-06-23 - Floor Plans and Elevations (2021-05-28) - D07-12-20-0041'
  • Rendering of building from page 6 of the file '2021-06-23 - Floor Plans and Elevations (2021-05-28) - D07-12-20-0041'
  • Rendering of building from page 6 of the file '2021-06-23 - Floor Plans and Elevations (2021-05-28) - D07-12-20-0041'
  • Rendering of building from page 6 of the file '2021-06-23 - Floor Plans and Elevations (2021-05-21)- D07-12-20-0041'
  • Rendering of building from page 2 of the file '2022-01-25 - Site & Floor Plans - D07-12-20-0041'
  • Rendering of building from page 47 of the file '2022-01-25 - Site & Floor Plans - D07-12-20-0041'
  • Rendering of building from page 63 of the file '2022-01-25 - Site & Floor Plans - D07-12-20-0041'
  • Rendering of building from page 39 of the file '2021-06-23 - Floor Plans and Elevations (2021-05-21)- D07-12-20-0041'
  • Rendering of building from page 7 of the file '2021-06-23 - Floor Plans and Elevations (2021-05-28) - D07-12-20-0041'
  • Rendering of building from page 61 of the file '2022-01-25 - Site & Floor Plans - D07-12-20-0041'
  • Rendering of building from page 42 of the file '2021-06-23 - Floor Plans and Elevations (2021-05-21)- D07-12-20-0041'
  • Rendering of building from page 9 of the file '2021-06-23 - Floor Plans and Elevations (2021-05-28) - D07-12-20-0041'
  • Rendering of building from page 45 of the file '2021-06-23 - Floor Plans and Elevations (2021-05-21)- D07-12-20-0041'
  • Rendering of building from page 59 of the file '2022-01-25 - Site & Floor Plans - D07-12-20-0041'
  • Rendering of building from page 7 of the file '2021-06-23 - Floor Plans and Elevations (2021-05-28) - D07-12-20-0041'
  • Rendering of building from page 66 of the file '2022-01-25 - Site & Floor Plans - D07-12-20-0041'
  • Rendering of building from page 41 of the file '2021-06-23 - Floor Plans and Elevations (2021-05-21)- D07-12-20-0041'
  • Rendering of building from page 3 of the file '2021-06-23 - Floor Plans and Elevations (2021-05-21)- D07-12-20-0041'
  • Rendering of building from page 65 of the file '2022-01-25 - Site & Floor Plans - D07-12-20-0041'
  • Rendering of building from page 58 of the file '2022-01-25 - Site & Floor Plans - D07-12-20-0041'
  • Rendering of building from page 44 of the file '2021-06-23 - Floor Plans and Elevations (2021-05-21)- D07-12-20-0041'
  • Rendering of building from page 9 of the file '2021-06-23 - Floor Plans and Elevations (2021-05-28) - D07-12-20-0041'
  • Rendering of building from page 34 of the file '2021-06-23 - Floor Plans and Elevations (2021-05-21)- D07-12-20-0041'
  • Rendering of building from page 43 of the file '2021-06-23 - Floor Plans and Elevations (2021-05-21)- D07-12-20-0041'
  • Rendering of building from page 62 of the file '2021-06-23 - Floor Plans and Elevations (2021-05-28) - D07-12-20-0041'

Location#

Select a marker to view the address.

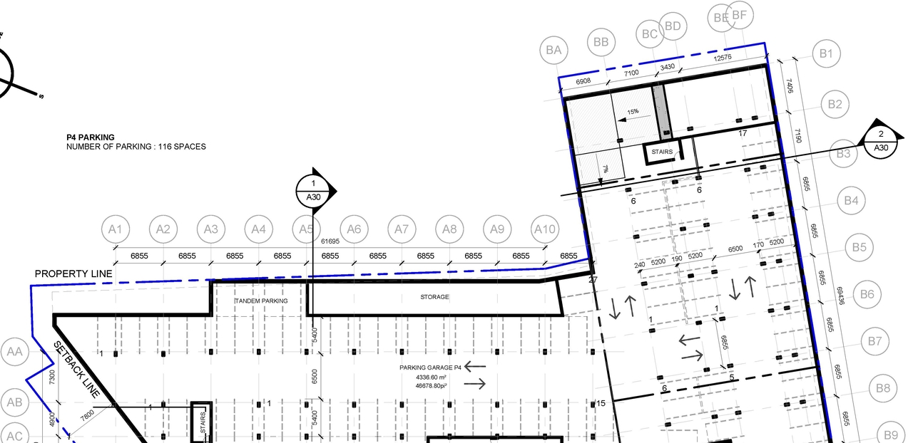
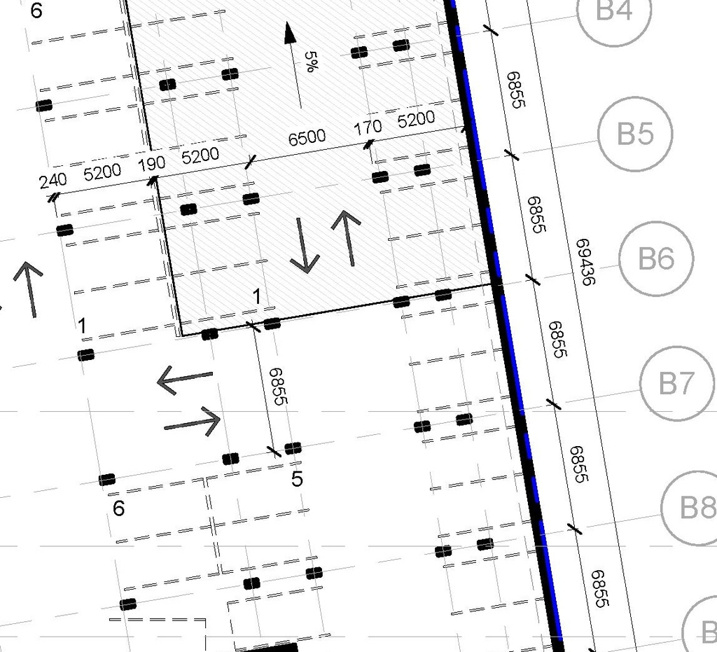
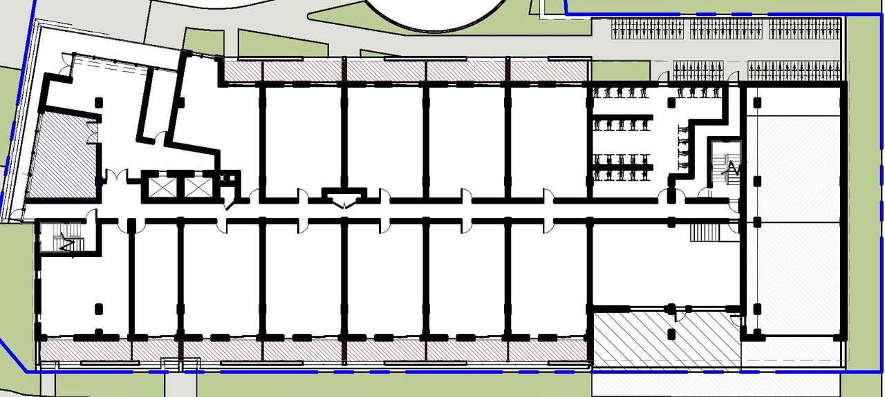
Site Plans, Elevations and Floor Plans#

  • Image from page 47 of the file '2021-06-23 - Floor Plans and Elevations (2021-05-28) - D07-12-20-0041'
  • Image from page 43 of the file '2022-01-25 - Site & Floor Plans - D07-12-20-0041'
  • Image from page 20 of the file '2021-06-23 - Floor Plans and Elevations (2021-05-21)- D07-12-20-0041'
  • Image from page 39 of the file '2022-01-25 - Site & Floor Plans - D07-12-20-0041'
  • Image from page 32 of the file '2021-06-23 - Floor Plans and Elevations (2021-05-28) - D07-12-20-0041'
  • Image from page 24 of the file '2022-01-25 - Site & Floor Plans - D07-12-20-0041'
  • Image from page 58 of the file '2021-06-23 - Floor Plans and Elevations (2021-05-21)- D07-12-20-0041'
  • Image from page 45 of the file '2022-01-25 - Site & Floor Plans - D07-12-20-0041'
  • Image from page 29 of the file '2021-06-23 - Floor Plans and Elevations (2021-05-28) - D07-12-20-0041'
  • Image from page 32 of the file '2021-06-23 - Floor Plans and Elevations (2021-05-28) - D07-12-20-0041'
  • Image from page 60 of the file '2021-06-23 - Floor Plans and Elevations (2021-05-21)- D07-12-20-0041'
  • Image from page 25 of the file '2022-01-25 - Site & Floor Plans - D07-12-20-0041'
  • Image from page 59 of the file '2021-06-23 - Floor Plans and Elevations (2021-05-21)- D07-12-20-0041'
  • Image from page 44 of the file '2022-01-25 - Site & Floor Plans - D07-12-20-0041'
  • Image from page 63 of the file '2021-06-23 - Floor Plans and Elevations (2021-05-21)- D07-12-20-0041'
  • Image from page 23 of the file '2021-06-23 - Floor Plans and Elevations (2021-05-21)- D07-12-20-0041'
  • Image from page 5 of the file '2021-06-23 - Floor Plans and Elevations (2021-05-28) - D07-12-20-0041'
  • Image from page 5 of the file '2021-06-23 - Floor Plans and Elevations (2021-05-28) - D07-12-20-0041'
  • Image from page 53 of the file '2022-01-25 - Site & Floor Plans - D07-12-20-0041'
  • Image from page 32 of the file '2021-06-23 - Floor Plans and Elevations (2021-05-21)- D07-12-20-0041'
  • Image from page 31 of the file '2021-06-23 - Floor Plans and Elevations (2021-05-21)- D07-12-20-0041'
  • Construction site plan for project from page 15 of the file '2021-06-23 - Floor Plans and Elevations (2021-05-28) - D07-12-20-0041'
  • Construction site plan for project from page 11 of the file '2021-06-23 - Floor Plans and Elevations (2021-05-21)- D07-12-20-0041'
  • Construction site plan for project from page 8 of the file '2022-01-25 - Site & Floor Plans - D07-12-20-0041'
  • Construction site plan for project from page 48 of the file '2022-01-25 - Site & Floor Plans - D07-12-20-0041'
  • Construction site plan for project from page 15 of the file '2021-06-23 - Floor Plans and Elevations (2021-05-28) - D07-12-20-0041'
  • Construction site plan for project from page 10 of the file '2021-06-23 - Floor Plans and Elevations (2021-05-21)- D07-12-20-0041'
  • Construction site plan for project from page 7 of the file '2022-01-25 - Site & Floor Plans - D07-12-20-0041'
  • Construction site plan for project from page 16 of the file '2021-06-23 - Floor Plans and Elevations (2021-05-28) - D07-12-20-0041'
  • Construction site plan for project from page 9 of the file '2022-01-25 - Site & Floor Plans - D07-12-20-0041'
  • Construction site plan for project from page 19 of the file '2021-06-23 - Floor Plans and Elevations (2021-05-28) - D07-12-20-0041'
  • Construction site plan for project from page 11 of the file '2021-06-23 - Floor Plans and Elevations (2021-05-21)- D07-12-20-0041'
  • Construction site plan for project from page 35 of the file '2022-01-25 - Site & Floor Plans - D07-12-20-0041'
  • Construction site plan for project from page 13 of the file '2021-06-23 - Floor Plans and Elevations (2021-05-21)- D07-12-20-0041'
  • Construction site plan for project from page 17 of the file '2022-01-25 - Site & Floor Plans - D07-12-20-0041'
  • Construction site plan for project from page 50 of the file '2021-06-23 - Floor Plans and Elevations (2021-05-21)- D07-12-20-0041'
  • Construction site plan for project from page 22 of the file '2021-06-23 - Floor Plans and Elevations (2021-05-28) - D07-12-20-0041'
  • Floor plan for project from page 40 of the file '2021-06-23 - Floor Plans and Elevations (2021-05-28) - D07-12-20-0041'
  • Floor plan for project from page 24 of the file '2021-06-23 - Floor Plans and Elevations (2021-05-28) - D07-12-20-0041'
  • Floor plan for project from page 35 of the file '2022-01-25 - Site & Floor Plans - D07-12-20-0041'
  • Floor plan for project from page 48 of the file '2022-01-25 - Site & Floor Plans - D07-12-20-0041'
  • Floor plan for project from page 33 of the file '2022-01-25 - Site & Floor Plans - D07-12-20-0041'
  • Image from page 47 of the file '2021-06-23 - Floor Plans and Elevations (2021-05-28) - D07-12-20-0041'
  • Image from page 43 of the file '2022-01-25 - Site & Floor Plans - D07-12-20-0041'
  • Image from page 20 of the file '2021-06-23 - Floor Plans and Elevations (2021-05-21)- D07-12-20-0041'
  • Image from page 39 of the file '2022-01-25 - Site & Floor Plans - D07-12-20-0041'
  • Image from page 32 of the file '2021-06-23 - Floor Plans and Elevations (2021-05-28) - D07-12-20-0041'
  • Image from page 24 of the file '2022-01-25 - Site & Floor Plans - D07-12-20-0041'
  • Image from page 58 of the file '2021-06-23 - Floor Plans and Elevations (2021-05-21)- D07-12-20-0041'
  • Image from page 45 of the file '2022-01-25 - Site & Floor Plans - D07-12-20-0041'
  • Image from page 29 of the file '2021-06-23 - Floor Plans and Elevations (2021-05-28) - D07-12-20-0041'
  • Image from page 32 of the file '2021-06-23 - Floor Plans and Elevations (2021-05-28) - D07-12-20-0041'
  • Image from page 60 of the file '2021-06-23 - Floor Plans and Elevations (2021-05-21)- D07-12-20-0041'
  • Image from page 25 of the file '2022-01-25 - Site & Floor Plans - D07-12-20-0041'
  • Image from page 59 of the file '2021-06-23 - Floor Plans and Elevations (2021-05-21)- D07-12-20-0041'
  • Image from page 44 of the file '2022-01-25 - Site & Floor Plans - D07-12-20-0041'
  • Image from page 63 of the file '2021-06-23 - Floor Plans and Elevations (2021-05-21)- D07-12-20-0041'
  • Image from page 23 of the file '2021-06-23 - Floor Plans and Elevations (2021-05-21)- D07-12-20-0041'
  • Image from page 5 of the file '2021-06-23 - Floor Plans and Elevations (2021-05-28) - D07-12-20-0041'
  • Image from page 5 of the file '2021-06-23 - Floor Plans and Elevations (2021-05-28) - D07-12-20-0041'
  • Image from page 53 of the file '2022-01-25 - Site & Floor Plans - D07-12-20-0041'
  • Image from page 32 of the file '2021-06-23 - Floor Plans and Elevations (2021-05-21)- D07-12-20-0041'
  • Image from page 31 of the file '2021-06-23 - Floor Plans and Elevations (2021-05-21)- D07-12-20-0041'
  • Construction site plan for project from page 15 of the file '2021-06-23 - Floor Plans and Elevations (2021-05-28) - D07-12-20-0041'
  • Construction site plan for project from page 11 of the file '2021-06-23 - Floor Plans and Elevations (2021-05-21)- D07-12-20-0041'
  • Construction site plan for project from page 8 of the file '2022-01-25 - Site & Floor Plans - D07-12-20-0041'
  • Construction site plan for project from page 48 of the file '2022-01-25 - Site & Floor Plans - D07-12-20-0041'
  • Construction site plan for project from page 15 of the file '2021-06-23 - Floor Plans and Elevations (2021-05-28) - D07-12-20-0041'
  • Construction site plan for project from page 10 of the file '2021-06-23 - Floor Plans and Elevations (2021-05-21)- D07-12-20-0041'
  • Construction site plan for project from page 7 of the file '2022-01-25 - Site & Floor Plans - D07-12-20-0041'
  • Construction site plan for project from page 16 of the file '2021-06-23 - Floor Plans and Elevations (2021-05-28) - D07-12-20-0041'
  • Construction site plan for project from page 9 of the file '2022-01-25 - Site & Floor Plans - D07-12-20-0041'
  • Construction site plan for project from page 19 of the file '2021-06-23 - Floor Plans and Elevations (2021-05-28) - D07-12-20-0041'
  • Construction site plan for project from page 11 of the file '2021-06-23 - Floor Plans and Elevations (2021-05-21)- D07-12-20-0041'
  • Construction site plan for project from page 35 of the file '2022-01-25 - Site & Floor Plans - D07-12-20-0041'
  • Construction site plan for project from page 13 of the file '2021-06-23 - Floor Plans and Elevations (2021-05-21)- D07-12-20-0041'
  • Construction site plan for project from page 17 of the file '2022-01-25 - Site & Floor Plans - D07-12-20-0041'
  • Construction site plan for project from page 50 of the file '2021-06-23 - Floor Plans and Elevations (2021-05-21)- D07-12-20-0041'
  • Construction site plan for project from page 22 of the file '2021-06-23 - Floor Plans and Elevations (2021-05-28) - D07-12-20-0041'
  • Floor plan for project from page 40 of the file '2021-06-23 - Floor Plans and Elevations (2021-05-28) - D07-12-20-0041'
  • Floor plan for project from page 24 of the file '2021-06-23 - Floor Plans and Elevations (2021-05-28) - D07-12-20-0041'
  • Floor plan for project from page 35 of the file '2022-01-25 - Site & Floor Plans - D07-12-20-0041'
  • Floor plan for project from page 48 of the file '2022-01-25 - Site & Floor Plans - D07-12-20-0041'
  • Floor plan for project from page 33 of the file '2022-01-25 - Site & Floor Plans - D07-12-20-0041'

Additional Information#

Date Initiated2020-04-16
WardWard 7 - Theresa Kavanagh
All Addresses2583 Bond St.
2589 Bond St.
1420 Richmond Rd.
365 Forest St.

Documents#

TypeDocument
Application Summary2020-07-06 - Application Summary - D07-12-20-0041
Architectural Plans2024-04-25 - Approved Tower B Elevations - D07-12-20-0041
Architectural Plans2024-04-25 - Approved Tower A Elevations - D07-12-20-0041
Architectural Plans2024-04-25 - Approved Site Plan - D07-12-20-0041
Architectural Plans2024-04-25 - Approved Site Grading Plan - D07-12-20-0041
Architectural Plans2024-04-25 - Approved Post Development Catchments Plan - D07-12-20-0041
Architectural Plans2024-02-20 - Site Grading Plan - D07-12-20-0041
Architectural Plans2024-02-20 - Post Development Catchments Plan - D07-12-20-0041
Architectural Plans2024-02-20 - Architectural Package - D07-12-20-0041
Architectural Plans2023-12-22 - Site Plan - D07-12-20-0041
Architectural Plans2023-12-22 - Site Grading Plan - D07-12-20-0041
Architectural Plans2023-12-22 - Architectural Package - D07-12-20-0041
Architectural Plans2023-11-01 - Site Grading Plan - D07-12-20-0041
Architectural Plans2023-11-01 - Plans - Mechanical Site - D07-12-20-0041
Architectural Plans2022-12-16 - Site Plan - D07-12-20-0041
Architectural Plans2022-12-16 - Site Grading Plan - D07-12-20-0041
Architectural Plans2022-12-16 - Post Development Cathments Plan - D07-12-20-0041
Architectural Plans2022-10-24 - Architectural Plans - D07-12-20-0041
Architectural Plans2022-10-17 - Site Grading Plan - D07-12-20-0041
Architectural Plans2022-10-17 - Post-Development SUBCATCH Plan - D07-12-20-0041
Architectural Plans2022-10-17 - Architectural Plans - D07-12-20-0041
Architectural Plans2022-01-25 - Site Plan & Flor Plans and Elevations - D07-12-20-0041
Architectural Plans2022-01-25 - Site Plan - D07-12-20-00411
Architectural Plans2022-01-25 - Site Plan - D07-12-20-0041
Architectural Plans2022-01-25 - Architectural Package - D07-12-20-0041
Architectural Plans2021-06-23 - Site Plan Review - D07-12-20-0041
Architectural Plans2020-04-16 - Post Development Catchments Plan - D07-12-20-0041
Architectural Plans2020-04-16 - Architectural Package - D07-12-20-0041
Electrical Plan2024-04-25 - Approved Site Lighting Plan & Fixture Schedule - D07-12-20-0041
Electrical Plan2022-10-24 - Electrical Issued for Site Lighting Coordination - D07-12-20-0041
Electrical Plan2022-10-17 - Electrical Site Plan - D07-12-20-0041
Electrical Plan2022-01-25 - Electrical Site Plan - D07-12-20-00411
Electrical Plan2022-01-25 - Electrical Site Plan - D07-12-20-0041
Environmental2022-01-25 - Phase Two Environmental Site Assessment - D07-12-20-0041
Environmental2021-06-23 - Phase II Environmental Site Assessment - D07-12-20-0041
Environmental2021-06-23 - Phase I Environmental Site Assessment - D07-12-20-0041
Environmental2020-04-22 - Phase II ESA - D07-12-20-0041
Environmental2020-04-22 - Phase I ESA - D07-12-20-0041
Erosion And Sediment Control Plan2024-04-25 - Approved Erosion & Sediment Control Plan - D07-12-20-0041
Erosion And Sediment Control Plan2024-02-20 - Erosion and Sediment Control Plan - D07-12-20-0041
Erosion And Sediment Control Plan2023-12-22 - Erosion and Sediment Control Plan - D07-12-20-0041
Erosion And Sediment Control Plan2023-11-01 - Erosion and Sediment Control Plan - D07-12-20-0041
Erosion And Sediment Control Plan2022-12-16 - Erosion & Sediment Control Plan - F07-12-20-0041
Erosion And Sediment Control Plan2022-10-24 - Erosion & Sediment Contol Plan - D07-12-20-0041
Erosion And Sediment Control Plan2022-10-17 - Erosion & Sediment Control Plan - D07-12-20-0041
Erosion And Sediment Control Plan2022-01-25 - Erosion & Sediment Control Plan - D07-12-20-0041
Erosion And Sediment Control Plan2021-06-23 - Erosion and Sediment Control Plan - D07-12-20-0041
Erosion And Sediment Control Plan2020-04-16 - Erosion and Sediment Control Plan - D07-12-20-0041
Existing Conditions2024-04-25 - Approved Existing Conditions & Removals Plan - D07-12-20-0041
Existing Conditions2024-02-20 - Existing Conditions and Removals Plan - D07-12-20-0041
Existing Conditions2023-12-22 - Existing Conditions and Removals Plan - D07-12-20-0041
Existing Conditions2023-11-01 - Existing Conditions and Removals Plan - D07-12-20-0041
Existing Conditions2022-12-16 - Existing Conditions & Removal Plan - D07-12-20-0041
Existing Conditions2022-10-24 - Existing Conditions & Removals Plans - D07-12-20-0041
Existing Conditions2022-10-17 - Existing Conditions & Removals Plan - D07-12-20-0041
Existing Conditions2022-01-25 - Existing Conditions and Removals Plan - D07-12-20-0041
Existing Conditions2021-06-23 - Existing Conditions and Removals Plan - D07-12-20-0041
Floor Plan2022-01-25 - Site & Floor Plans - D07-12-20-0041
Floor Plan2021-06-23 - Floor Plans and Elevations (2021-05-28) - D07-12-20-0041
Floor Plan2021-06-23 - Floor Plans and Elevations (2021-05-21)- D07-12-20-0041
Geotechnical Report2022-10-24 - Grading Plan - D07-12-20-0041
Geotechnical Report2022-10-24 - Geotechnical Report - D07-12-20-0041
Geotechnical Report2022-10-17 - Geotechnical Investigation - D07-12-20-0041
Geotechnical Report2022-01-25 - Hydrogeological - D07-12-20-0041
Geotechnical Report2022-01-25 - Grading - D07-12-20-0041
Geotechnical Report2022-01-25 - Geotechnical Investigation - D07-12-20-0041
Geotechnical Report2021-06-23 - Grading Plan - D07-12-20-0041
Geotechnical Report2021-06-23 - Geotechnical Investigation - D07-12-20-0041
Geotechnical Report2020-04-16 - Grading Plan - D07-12-20-0041
Geotechnical Report2020-04-16 - Geotechnical Investigation - D07-12-20-0041
Landscape Plan2021-06-23 - Landscape plan - D07-12-20-0041
Noise Study2023-11-01 - Stationary Noise Assessment - D07-12-20-0041
Noise Study2021-06-23 - Noise Study - D07-12-20-0041
Noise Study2020-04-16 - Noise Study - D07-12-20-0041
Planning2023-12-22 - Zoning Table - D07-12-20-0041
Planning2022-01-25 - Planning Rationale Addendum - D07-12-20-0041
Planning2020-04-16 - Planning Rationale - D07-12-20-0041
Site Servicing2024-04-25 - Approved Site Servicing Plan - D07-12-20-0041
Site Servicing2024-02-20 - Site Servicing Plan - D07-12-20-0041
Site Servicing2023-12-22 - Site Servicing Plan - D07-12-20-0041
Site Servicing2023-12-22 - Site Servicing & SWM Report - D07-12-20-0041
Site Servicing2023-11-01 - Site Servicing Plan - D07-12-20-0041
Site Servicing2023-11-01 - Site Servicing and Stormwater Management Report - D07-12-20-0041
Site Servicing2022-12-16 - Site Servicing Plan - D07-12-20-0041
Site Servicing2022-10-24 - Site Servicing Plan - D07-12-20-0041
Site Servicing2022-10-24 - Site Servicing and Stormwater Management Report - D07-12-20-0041
Site Servicing2022-10-17 - Site Servicing Plan - D07-12-20-0041
Site Servicing2022-10-17 - Site Servicing & Stormwater Management Report - D07-12-20-0041
Site Servicing2022-01-25 - Site Servicing Plan - D07-12-20-0041
Site Servicing2022-01-25 - Site Servicing & Stormwater Mangement Plan - D07-12-20-0041
Site Servicing2021-06-23 - Site Servicing Plan - D07-12-20-0041
Site Servicing2021-06-23 - Site Servicing and Stormwater Management Report - D07-12-20-0041
Site Servicing2020-04-16 - Site Servicing Plan - D07-12-20-0041
Stormwater Management2020-04-16 - Functional Servicing and Stormwater Management Report - D07-12-20-0041
Surveying2022-01-25 - Topographical Plan - D07-12-20-00411
Surveying2022-01-25 - Topographical Plan - D07-12-20-0041
Surveying2020-04-16 - Topographical Survey - D07-12-20-0041
Transportation Analysis2022-01-25 - Traffic Impact Assessment - D07-12-20-0041
Transportation Analysis2021-06-23 - Traffic Impact Assessment - D07-12-20-0041
Transportation Analysis2020-04-16 - Transportation Impact Assessment - D07-12-20-0041
Tree Information and Conservation2024-04-25 - Approved Tree Conservation Report & Landscape Plan - D07-12-20-0041
Tree Information and Conservation2023-11-01 - Tree Conservation Report and Landscape Plan - D07-12-20-0041
Tree Information and Conservation2023-11-01 - Tree Conservation Report and Landscape Plan - D07-12-20-0041
Tree Information and Conservation2022-10-24 - Tree Conservation Report & Landscape Plan - D07-12-20-0041
Tree Information and Conservation2022-10-17 - Tree Conservation Report & Landscape Plan - D07-12-20-0041
Tree Information and Conservation2022-01-25 - Tree Conservation Report - D07-12-20-0041
Tree Information and Conservation2020-04-16 - Tree Conservation and Lansdcape Plan - D07-12-20-0041
Wind Study2020-04-16 - Wind Study - D07-12-20-0041
2024-04-25 - Signed Delegated Authority Report - D07-12-20-0041
2024-04-25 - Approved Notes & Legend Sheet - D07-12-20-0041
2024-02-20 - Notes and Legend Sheet - D07-12-20-0041
2023-12-22 - Post-Development Catchments - D07-12-20-0041
2023-12-22 - Notes and Legends Sheet - D07-12-20-0041
2023-12-22 - Cistern Schematics and Details - D07-12-20-0041
2023-11-01 - Post-Development Catchments - D07-12-20-0041
2023-11-01 - Notes and Legend Sheet - D07-12-20-0041
2023-11-01 - Architect Package - D07-12-20-0041
2022-12-16 - Notes & Legend - D07-12-20-0041
2022-10-24 - Post Development SUBCATCH - D07-12-20-0041
2022-10-24 - Notes & Legend - D07-12-20-0041
2022-10-17 - Notes & Legend - D07-12-20-0041
2022-01-25 - Post Development Catchments - D07-12-20-0041
2022-01-25 - Notes & Legend - D07-12-20-0041
2022-01–25 - Geographic - D07-12-20-0041
2021-06-23 - Post-Development Catchments - D07-12-20-0041
2021-06-23 - Notes and Legend Sheet - D07-12-20-0041
2020-04-16 - Notes and Legend Sheet - D07-12-20-0041