315 Tweedsmuir Ave./320 McRae Ave.#
Last updated: 2025-03-18 · ID: D07-12-20-0035
Summary#
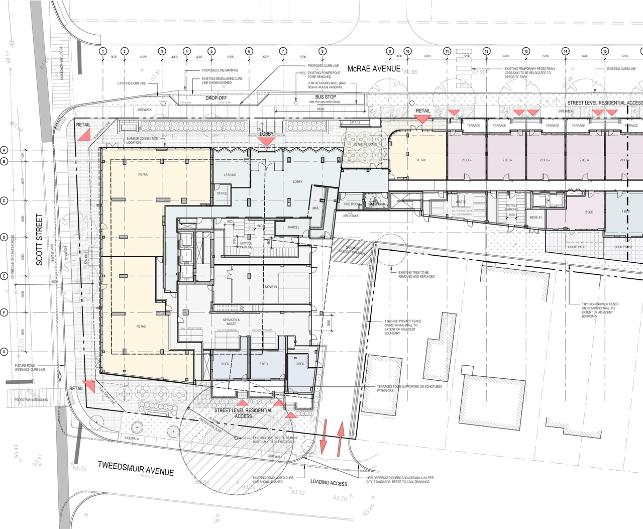
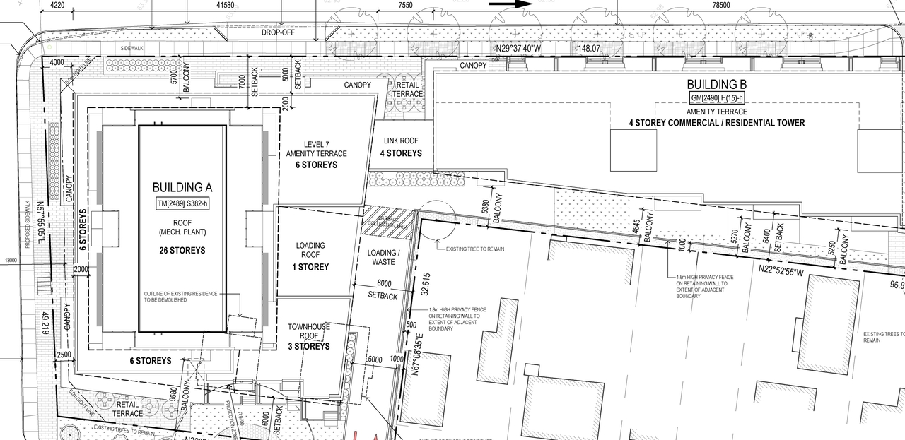
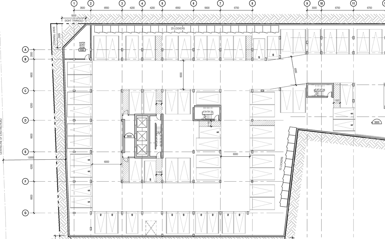
The City of Ottawa has received a Zoning By-law Amendment and Site Plan Control application to construct a 26-storey, mixed-use development containing 336 residential units, ground floor commercial/retail, and 180 underground parking spaces.
Status
Post Approval (Agreement Registered - Securities Held)
Building Scale (Max.)
Based on elevation drawings. Values may be approximate. See sources for exact figures.
High-rise · 26 storeys
· 79.4 m
Renders#
Location#
Select a marker to view the address.
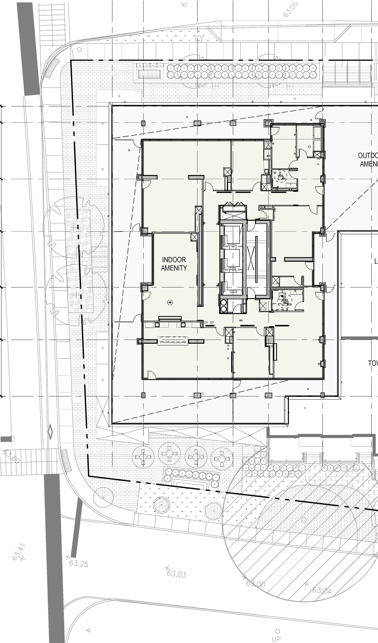
Site Plans, Elevations and Floor Plans#
Additional Information#
| Date Initiated | 2020-04-02 |
| Ward | Ward 15 - Jeff Leiper |
Documents#
Related Projects#
| Project | Last Updated | Date Initiated |
|---|---|---|
311-315 Tweedsmuir Ave.320 McRae Ave.
D07-05-20-0004 | 2021-01-25 | 2020-06-01 |





















