1380 Upper Canada St.#
Last updated: 2025-06-26 · ID: D07-12-20-0027
Summary#
Site Plan Control application for a 2-storey medical building with diagnostic imaging center and pharmacy
Status
Post Approval (Agreement Registered - Final Legal Clearance Given)
Building Scale (Max.)
Based on elevation drawings. Values may be approximate. See sources for exact figures.
Low-rise · 3 storeys
Data Quality Note
Text was extracted using optical character recognition. This may introduce artifacts or misreads.
· 9.6 m
Data Quality Note
Text was extracted using optical character recognition. This may introduce artifacts or misreads.
Renders#
Location#
Select a marker to view the address.
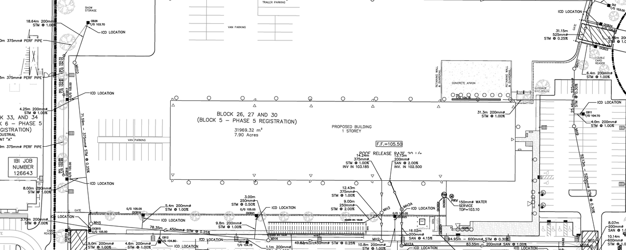
Site Plans, Elevations and Floor Plans#
Additional Information#
| Date Initiated | 2020-03-13 |
| Ward | Ward 4 - Cathy Curry |







