35-37 William St./62 York St.#
Last updated: 2024-10-17 · ID: D07-12-20-0006
Summary#
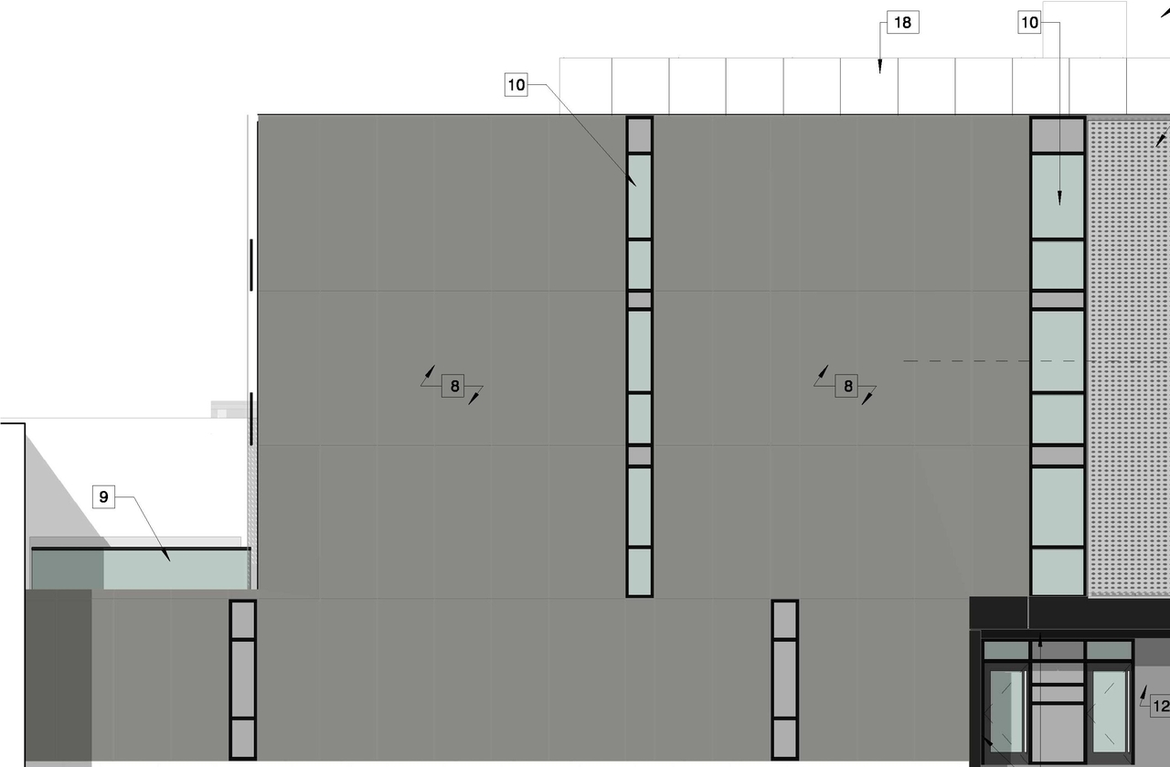
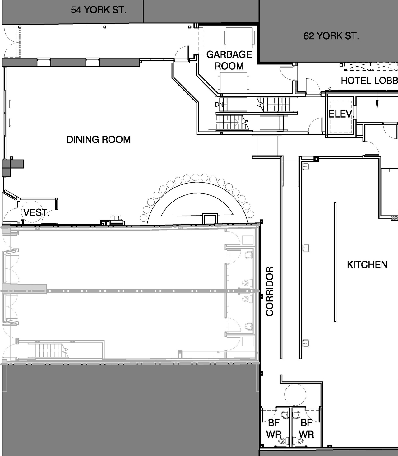
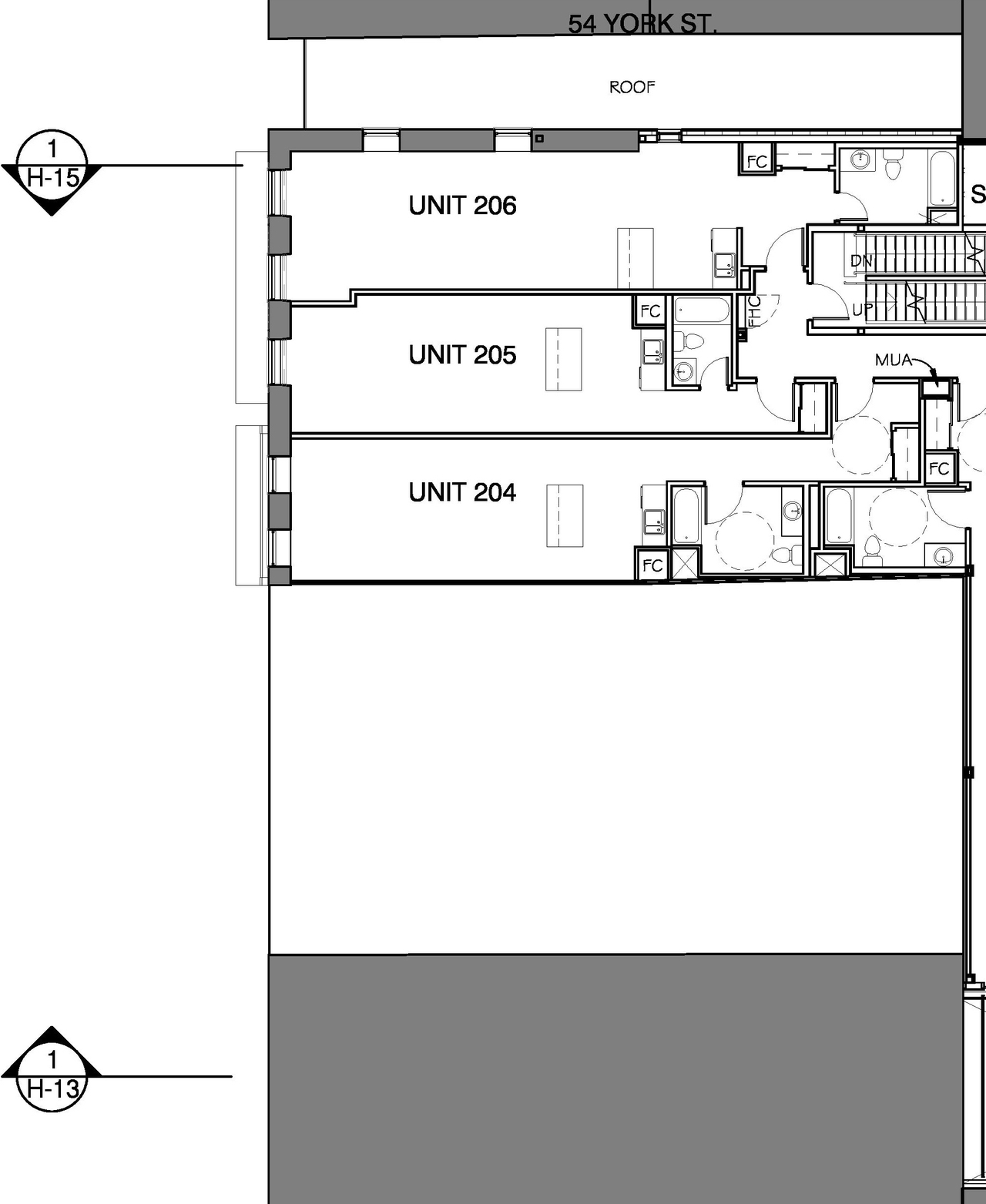
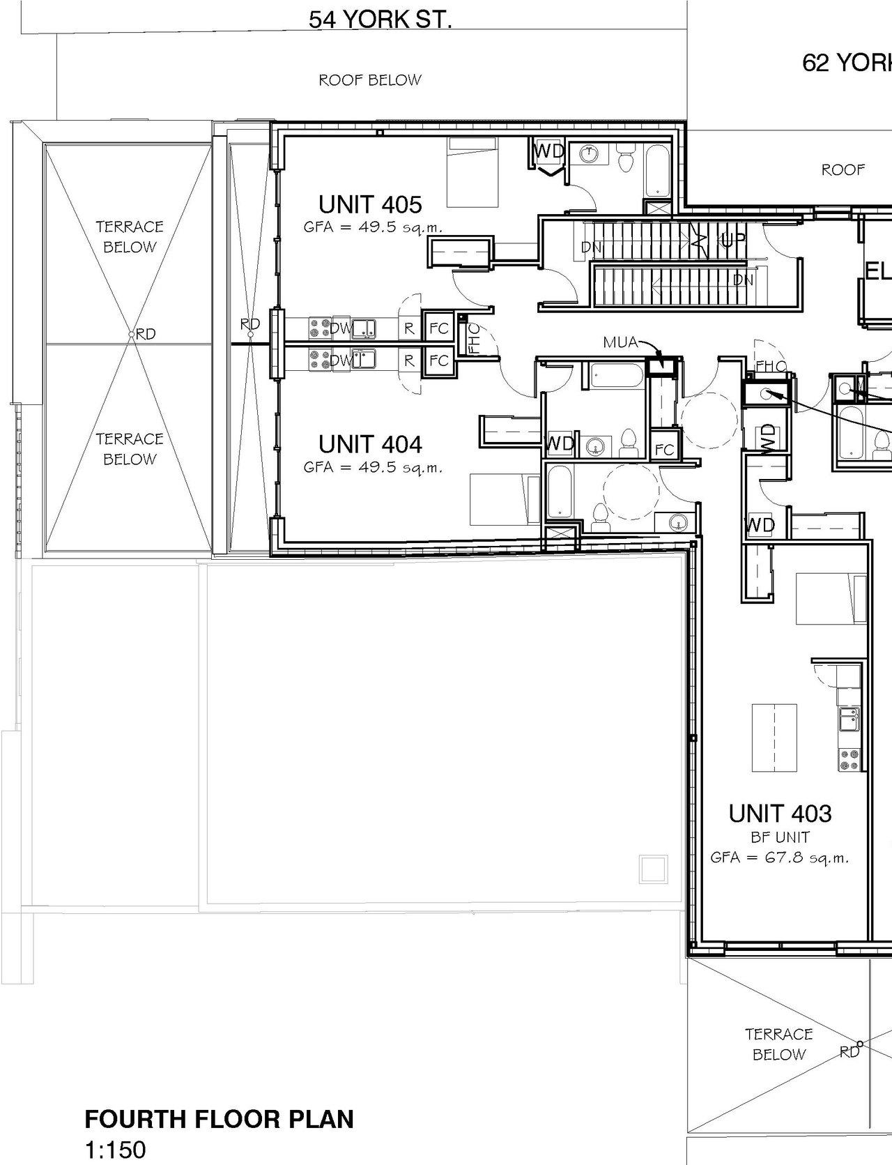
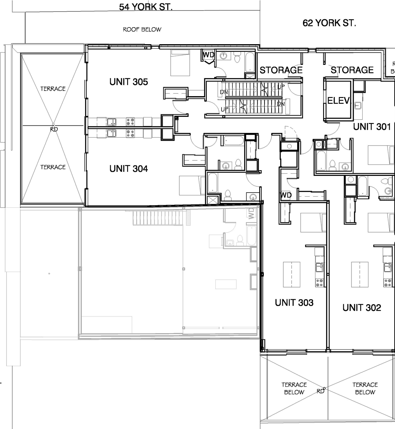
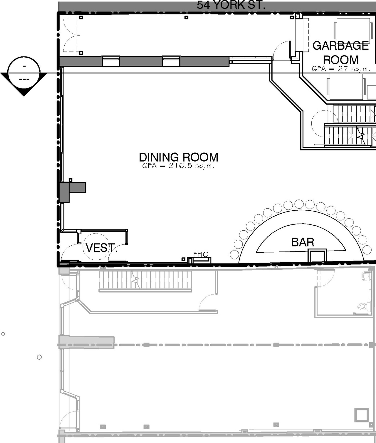
The City of Ottawa has received a Zoning By-law Amendment and a Site Plan Control application to permit a four-storey mixed-use building with ground floor restaurant use and 16 residential dwelling units.
Status
Post Approval (Agreement Signed)
Building Scale (Max.)
Based on elevation drawings. Values may be approximate. See sources for exact figures.
Mid-rise · 4 storeys
· 16.5 m
Location#
Select a marker to view the address.
Site Plans, Elevations and Floor Plans#
Additional Information#
| Date Initiated | 2020-01-28 |
| Ward | Ward 12 - Stéphanie Plante |
| All Addresses | 35 William St. 37 William St. 62 York St. |















