Ottawa Development Projects

1357-1405 Baseline Rd.#

Last updated: 2022-08-24 · ID: D07-12-20-0005

Summary#

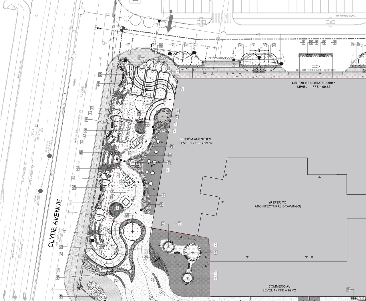
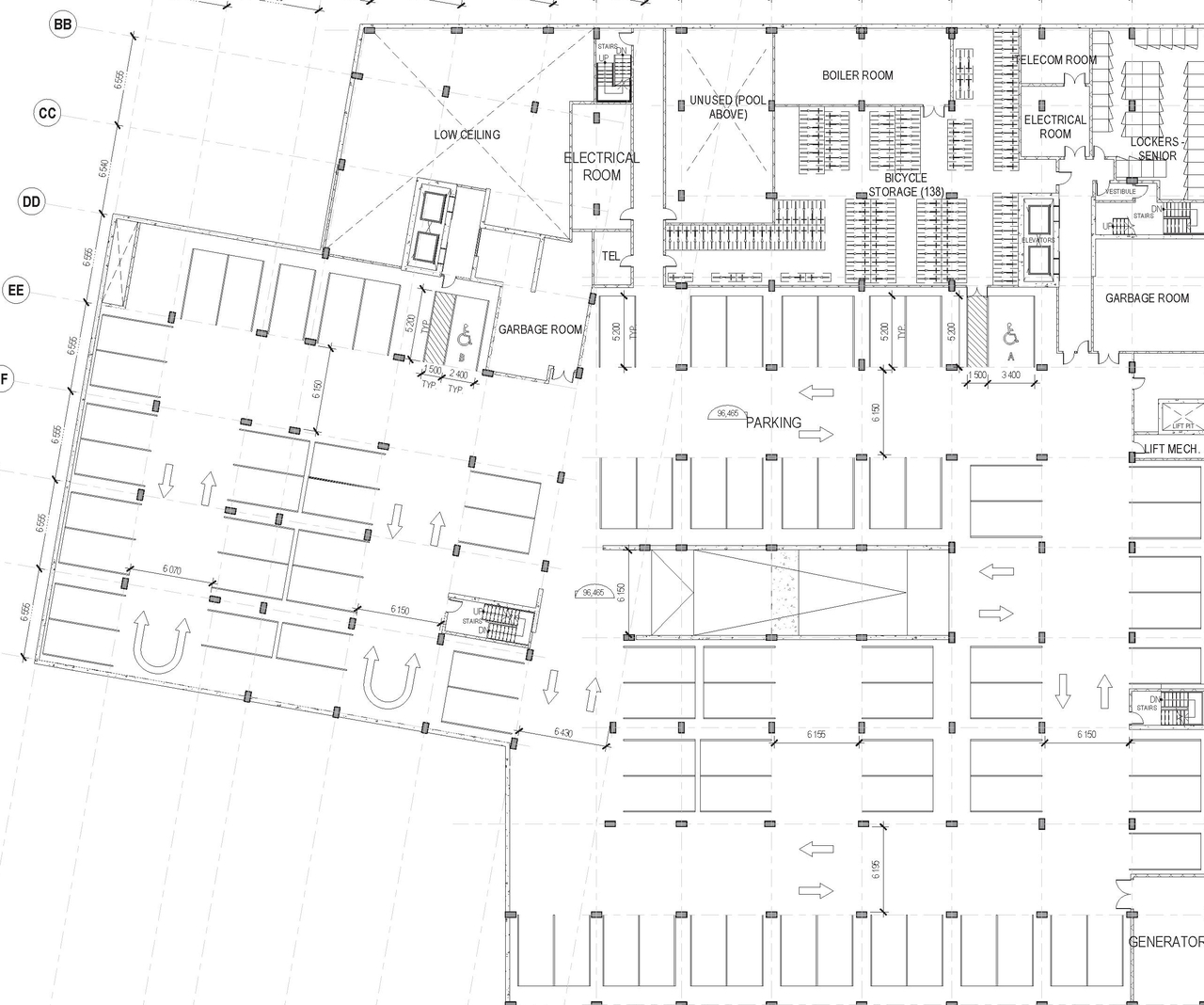
the proposal for a single mixt use building composed of a podium. The proposal includes 374 dwelling units, 28 rooming units, 3 commercial units, uses ancillary to a retirment home, 334 parking stalls ( internalized and below grade), and a total GFA of approximately 26,527.5 m2

Status
Post Approval (Agreement Registered - Securities Held)

Building Scale (Max.) Based on elevation drawings. Values may be approximate. See sources for exact figures.
High-rise · 15 storeys · 51.66 m

Renders#

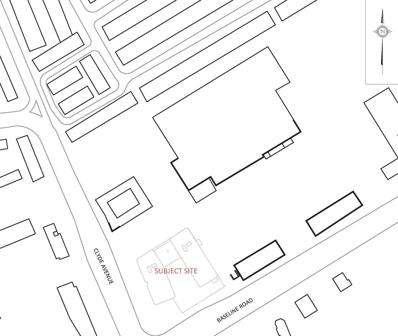
Location#

Select a marker to view the address.

Site Plans, Elevations and Floor Plans#

Additional Information#

Date Initiated2020-01-23
WardWard 16 - Riley Brockington
All Addresses1357 Baseline Rd.
1405 Baseline Rd.

Documents#

TypeDocument
Application Summary2020-02-19 - Application Summary - D07-12-20-0005
Architectural PlansBaseline, Site Plan
Architectural PlansBaseline, Parking Plans
Architectural PlansBaseline, Landscape Plan
Architectural Plans2021-04-30 - Approved West Elevation - D07-12-20-0005
Architectural Plans2021-04-30 - Approved South Elevation - D07-12-20-0005
Architectural Plans2021-04-30 - Approved Site Plan - D07-12-20-0005
Architectural Plans2021-04-30 - Approved Sanitary Drainage Plan - D07-12-20-0005
Architectural Plans2021-04-30 - Approved Overall Plan - D07-12-20-0005
Architectural Plans2021-04-30 - Approved Notes and Legends Plan - D07-12-20-0005
Architectural Plans2021-04-30 - Approved North Elevation - D07-12-20-0005
Architectural Plans2021-04-30 - Approved East-West Elevation Section - D07-12-20-0005
Architectural Plans2021-04-30 - Approved East Elevation Fridom - D07-12-20-0005
Architectural Plans2021-04-30 - Approved East Elevation - D07-12-20-0005
Architectural Plans2021-01-05 - Site Plan - D07-12-20-0005
Design Brief1357 Baseline, Formal UDRP Sub
Environmental2021-04-30 - Phase One Environmental Site Assessment - D07-12-20-0005
Existing Conditions2021-04-30 - Approved Existing Conditions Plan - D07-12-20-0005
Geotechnical Report2021-04-30 - Supplemental Geotechnical Investigation - D07-12-20-0005
Geotechnical Report2021-04-30 - Approved Grading Plan - D07-12-20-0005
Landscape Plan2021-04-30 - Approved Landscape Plans - D07-12-20-0005
Noise StudyBaseline, Transp Noise
Noise StudyBaseline, Stationary Noise
Noise Study2021-04-30 - Stationary Noise Assessment - D07-12-20-0005
Noise Study2021-04-30 - Detailed Transportation Noise Assessment - D07-12-20-0005
RenderingBaseline, Street Rendering
Shadow StudyBaseline, Sun Shadow
Site Servicing2021-04-30 - Site Servicing and Stormwater Mgmnt Report Appendices A-E - D07-12-20-0005
Site Servicing2021-04-30 - Site Servicing and Stormwater Mgmnt Report - D07-12-20-0005
Site Servicing2021-04-30 - Approved Site Servicing Plan - D07-12-20-0005
Stormwater ManagementBaseline, Storm Drainage
Stormwater ManagementBaseline, Overall Storm Drainage
Stormwater Management2021-04-30 - Approved Storm Drainage Plan - D07-12-20-0005
Stormwater Management2021-04-30 - Approved Overall Storm Drainage Plan - D07-12-20-0005
SurveyingBaseline, Survey
Tree Information and ConservationBaseline, TCR
Tree Information and Conservation2021-04-30 - Tree Conservation Report - D07-12-20-0005
Wind StudyBaseline, Ped Level Wind Study
Wind Study2021-04-30 - Pedestrian Level Wind Study - D07-12-20-0005
Baseline, TIA
Baseline, Servicing
Baseline, Sanitary
Baseline, Planning Rationale
Baseline, Phase 1 ESA
Baseline, Notes and Legend
Baseline, Grading
Baseline, Geotech
Baseline, Existing
Baseline, Erosion
2021-04-30 - Final Transportation Impact Assessment - D07-12-20-0005
2021-04-30 - Final Delegated Authority Report - D07-12-20-0005