1050-1060 Bank St.#
Last updated: 2021-01-28 · ID: D07-12-19-0215
Summary#
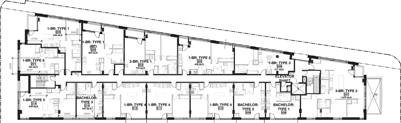
A Site Plan Control application to demolish the existing buildings on site and construct a six-storey building with 5,780 square metres GFA and 21 parking spaces and 25 bicycle spaces, consisting of ground floor retail-commercial and five floors containing 44 residential units.
Status
Post Approval (Request for Agreement Received)
Building Scale (Max.)
Based on elevation drawings. Values may be approximate. See sources for exact figures.
Mid-rise · 6 storeys
Data Quality Note
Text was extracted using optical character recognition. This may introduce artifacts or misreads.
· 19.35 m
Renders#
Location#
Select a marker to view the address.
Site Plans, Elevations and Floor Plans#
Additional Information#
| Date Initiated | 2019-12-23 |
| Ward | Ward 17 - Shawn Menard |
| All Addresses | 1050 Bank St. 1054 Bank St. 1056 Bank St. 1060 Bank St. |













