Ottawa Development Projects

593 Laurier Ave. W.#

Last updated: 2022-01-13 · ID: D07-12-19-0207

Summary#

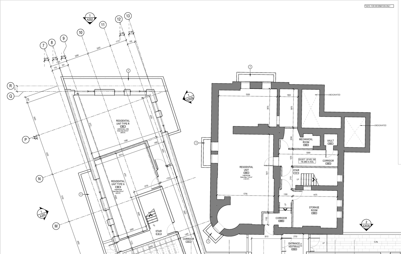
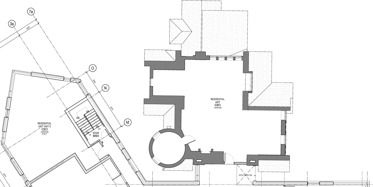
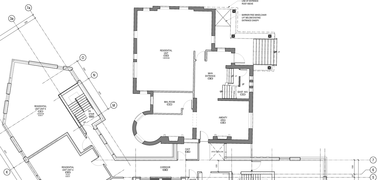
The City of Ottawa has received Zoning By-law Amendment and Site Plan Control applications to permit a new apartment building with approximately 63 dwelling units by adding a mid-rise residential tower addition to the existing heritage building (Alexander Fleck House).

Status
Post Approval (Receipt of Agreement from Owner Pending)

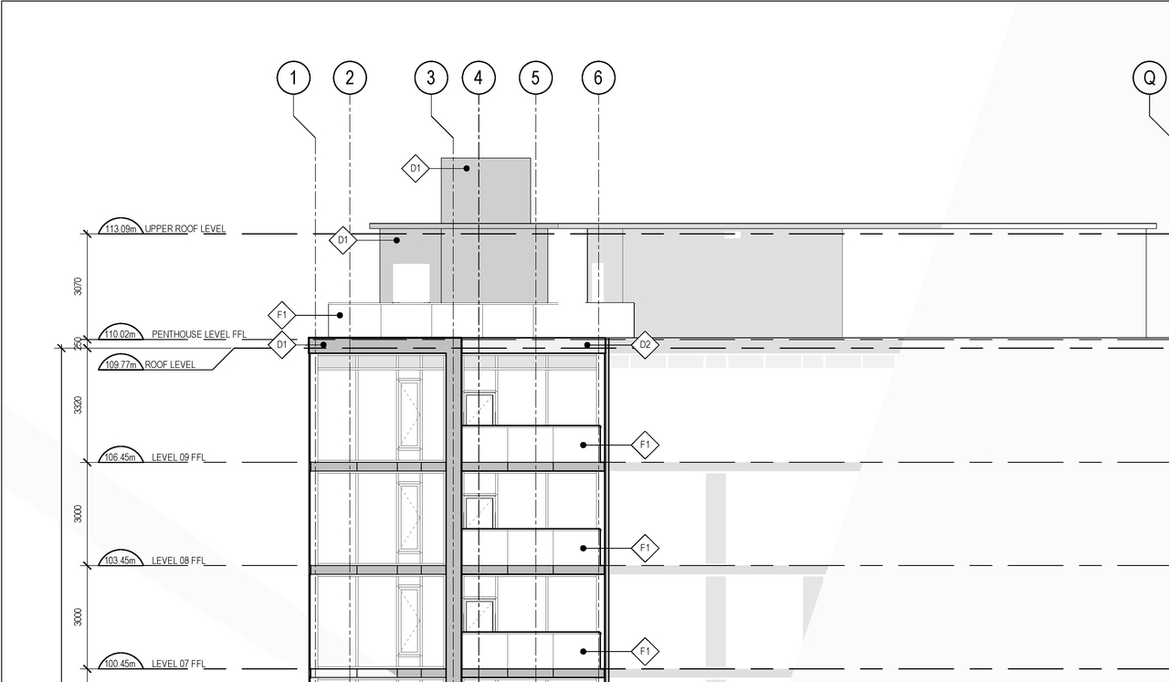
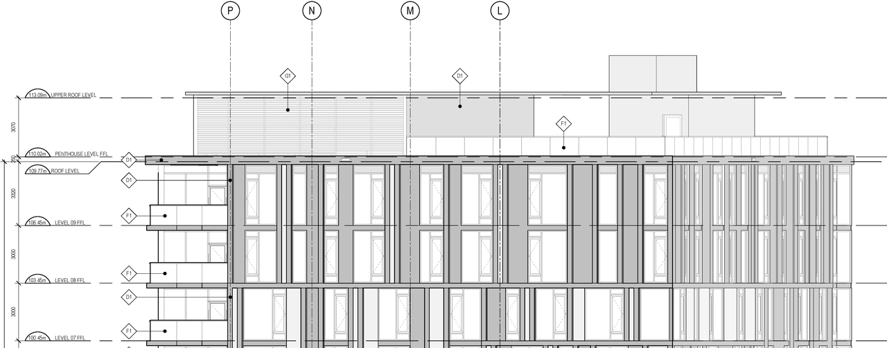
Building Scale (Max.) Based on elevation drawings. Values may be approximate. See sources for exact figures.
High-rise · 17 storeys · 51.33 m

Renders#

Location#

Select a marker to view the address.

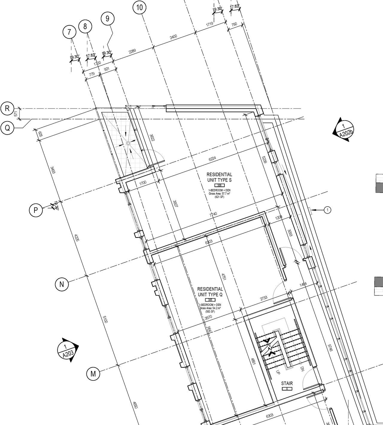
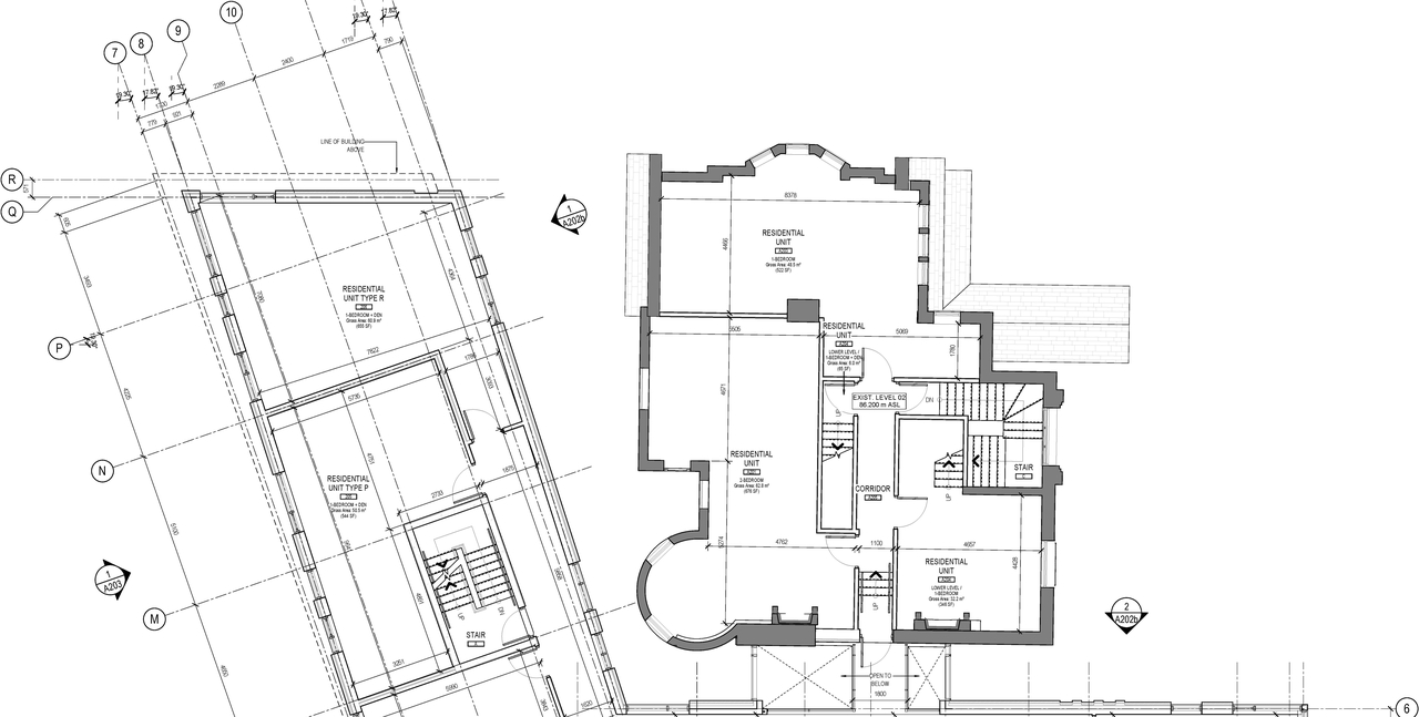
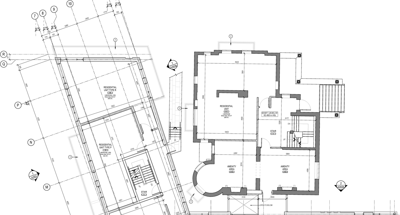
Site Plans, Elevations and Floor Plans#

Additional Information#

Date Initiated2019-12-16
WardWard 14 - Ariel Troster

Documents#

TypeDocument
Application Summary2020-01-15 - Application Summary and Location Map - D07-12-19-0207
Architectural Plans2021-08-16 - APPROVED 1908 210506 Site plan and Elevations sm - D07-12-19-0207
Architectural Plans2020-12-23 - 3rd Sub. - Site Plan - D07-12-19-0207
Architectural Plans2020-12-23 - 3rd Sub. - Heritage Conservation Plan - D07-12-19-0207
Architectural Plans2020-12-23 - 3rd Sub. - Elevations - D07-12-19-0207
Architectural Plans2020-09-04 - 2nd Sub. - Site Servicing Plan - D07-12-19-0207
Architectural Plans2020-09-04 - 2nd Sub. - Site Plan - D07-12-19-0207
Architectural Plans2020-09-04 - 2nd Sub. - Outlet Sewer Plan - D07-12-19-0207
Architectural Plans2020-09-04 - 2nd Sub. - Landscape Plan - D07-12-19-0207
Architectural Plans2020-09-04 - 2nd Sub. - Grading Plan - D07-12-19-0207
Architectural Plans2020-01-15 - Site Plan - D07-12-19-0207
Architectural Plans2020-01-15 - Outlet Sewer Plan and Profile - D07-12-19-0207
Environmental2020-01-15 - Phase II ESA - D07-12-19-0207
Environmental2020-01-15 - Phase I ESA - D07-12-19-0207
Floor Plan2020-09-04 - 2nd Sub. - Floor Plans and Elevations - D07-12-19-0207
Floor Plan2020-01-15 - Floor Plans and Elevations - D07-12-19-0207
Geotechnical Report2021-08-16 - APPROVED Geotechnical Investigation Alexander Fleck House Inc_R2_STAMPED - D07-12-19
Geotechnical Report2020-01-15 - Grading Plan - D07-12-19-0207
Geotechnical Report2020-01-15 - Geotechnical Investigation - D07-12-19-0207
Landscape Plan2020-02-12 - Landscape Plan - D07-12-19-0207
Noise Study2020-09-04 - 2nd Sub. - Noise Study - D07-12-19-0207
Noise Study2020-01-15 - Noise Impact Study - D07-12-19-0207
Planning2020-01-15 - Planning Rationale - D07-12-19-0207
Rendering2021-01-07 - 3rd Sub- Renderings 2- D07-12-19-0207
Rendering2020-12-23 - 3rd Sub. - Renderings - D07-12-19-0207
Rendering2020-09-04 - 2nd Sub. - Renderings - D07-12-19-0207
Rendering2020-01-15 - Renderings - D07-12-19-0207
Shadow Study2020-09-04 - 2nd Sub. - Sun Shadow Study - D07-12-19-0207
Shadow Study2020-01-15 - Sun Shadow Study - D07-12-19-0207
Site Servicing2020-01-15 - Site Servicing Plan - D07-12-19-0207
Site Servicing2020-01-15 - Servicing and Stormwater Management Report - D07-12-19-0207
Stormwater Management2020-09-04 - 2nd Sub. - Site Servicing and Stormwater Management Report - D07-12-19-0207
Surveying2020-01-15 - Survey - D07-12-19-0207
Transportation Analysis2021-08-16 - APPROVED TIA - D07-12-19-0207
Tree Information and Conservation2021-08-16 - APPROVED TCR - D07-12-19-0207
Tree Information and Conservation2020-09-04 - 2nd Sub. - Tree Conservation Report - D07-12-19-0207
Tree Information and Conservation2020-02-12 - Tree Conservation Report - D07-12-19-0207
Wind Study2021-08-16 - APPROVED Wind Study - D07-12-19-0207
Wind Study2020-12-23 - 3rd Sub. - Wind Study Addendum - D07-12-19-0207
Wind Study2020-09-04 - 2nd Sub. - Wind Study - D07-12-19-0207
Wind Study2020-01-15 - Wind Study - D07-12-19-0207
2021-08-16 - APPROVED Revised REPORT Phase ll ESA R1 - D07-12-19-0207
2021-08-16 - APPROVED Revised REPORT Phase I ESA R0 - D07-12-19-0207
2021-08-16 - APPROVED RemediationActionPlan (1) - D07-12-19-0207
2021-08-16 - APPROVED DS_&_SWM_Report_v2 - D07-12-19-0207
2021-08-16 - APPROVED Delegated Authority Report SIGNED - D07-12-19-0207
2021-08-16 - APPROVED AFHI_NIS - SACL Report SW19233 A2 - D07-12-19-0207
2021-08-16 - APPROVED 119019-SWM_rev2 - D07-12-19-0207
2021-08-16 - APPROVED 119019-PR_rev1 Outlet Sewer - D07-12-19-0207
2021-08-16 - APPROVED 119019-GR_rev2 Grading - D07-12-19-0207
2021-08-16 - APPROVED 119019-GP_rev2 Servicing - D07-12-19-0207
2021-08-16 - APPROVED 119019_20210309_L1 - D07-12-19-0207
2020-12-23 - 3rd Sub. - Transportation Impact Statement - D07-12-19-0207
2020-12-23 - 3rd Sub. - Landscape Rendered - D07-12-19-0207
2020-12-23 - 3rd Sub. - Cultural Heritage Impact Statement - D07-12-19-0207
2020-09-04 - 2nd Sub. - Transportation Impact Assessment - D07-12-19-0207
2020-09-04 - 2nd Sub. - Planning Rationale - D07-12-19-0207
2020-09-04 - 2nd Sub. - Geotechnical Study - D07-12-19-0207
2020-09-04 - 2nd Sub. - Cultural Heritage Impact Statement - D07-12-19-0207
2020-01-15 - Cultural Heritage Impact Statement - D07-12-19-0207
2020-01-15 - Contamination Delineation - D07-12-19-0207