261-265 Columbus Ave.#
Summary#
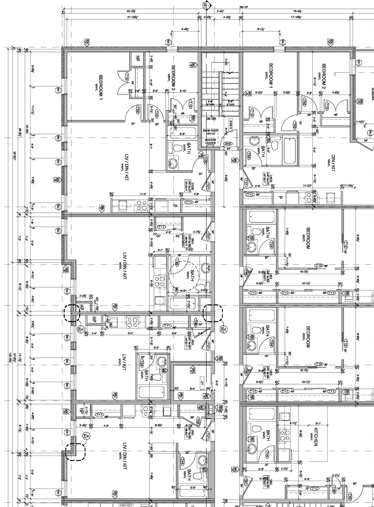
A Site Plan Control application to construct a four-storey low-rise apartment building with 34 dwelling units. Thirteen vehicular parking spaces and approximately seventeen bicycle parking spaces are proposed.
Status
Post Approval (Agreement Registered - Final Legal Clearance Given)
Building Scale (Max.)
Based on elevation drawings. Values may be approximate. See sources for exact figures.
Low-rise · 3 storeys
Data Quality Note
Text was extracted using optical character recognition. This may introduce artifacts or misreads.
· 9.1 m
Data Quality Note
Height was partially estimated using visual scale. This may be approximate.
Data Quality Note
Text was extracted using optical character recognition. This may introduce artifacts or misreads.
Location#
Site Plans, Elevations and Floor Plans#
Additional Information#
| Date Initiated | 2019-11-21 |
| Ward | Ward 13 - Rawlson King |
| All Addresses | 261 Columbus Ave. 265 Columbus Ave. |
