Ottawa Development Projects

16-20 Cedarow Ct.#

Last updated: 2024-08-07 · ID: D07-12-19-0189

Summary#

Site plan Control application for next phase of the Wellings of Stittsville residential development. Proposal is for a 2- building apartment complex, A 6-storey building with round floor retail uses and x220 apartments above will fronti onto Hazeldean Road. A second 5-storey 194-unit building would be located to the rear of the first building. A landscaped courtyard and surface parking lot is located bewtween the tewo buildings. An underground parking garae will provide parking for 400 vehicles.

Status
Post Approval (Receipt of Agreement from Owner Pending)

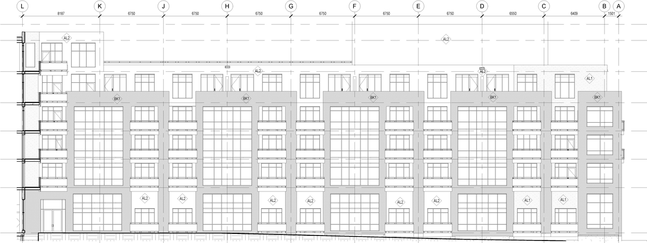
Building Scale (Max.) Based on elevation drawings. Values may be approximate. See sources for exact figures.
Mid-rise · 6 storeys · 23.2 m

Renders#

Location#

Select a marker to view the address.

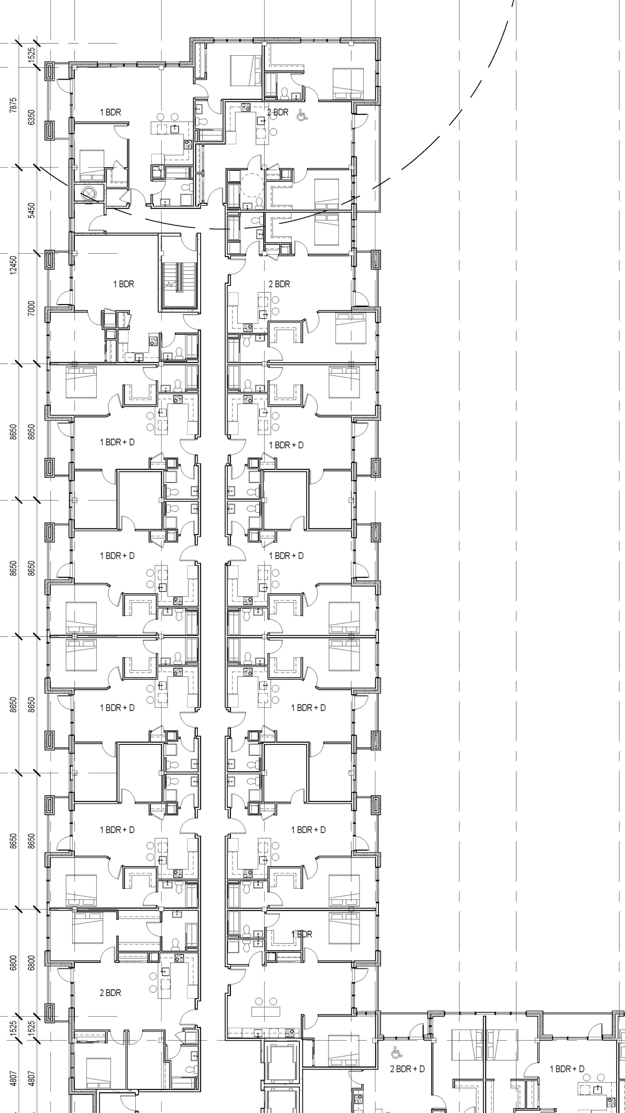
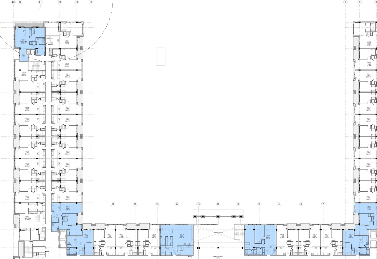
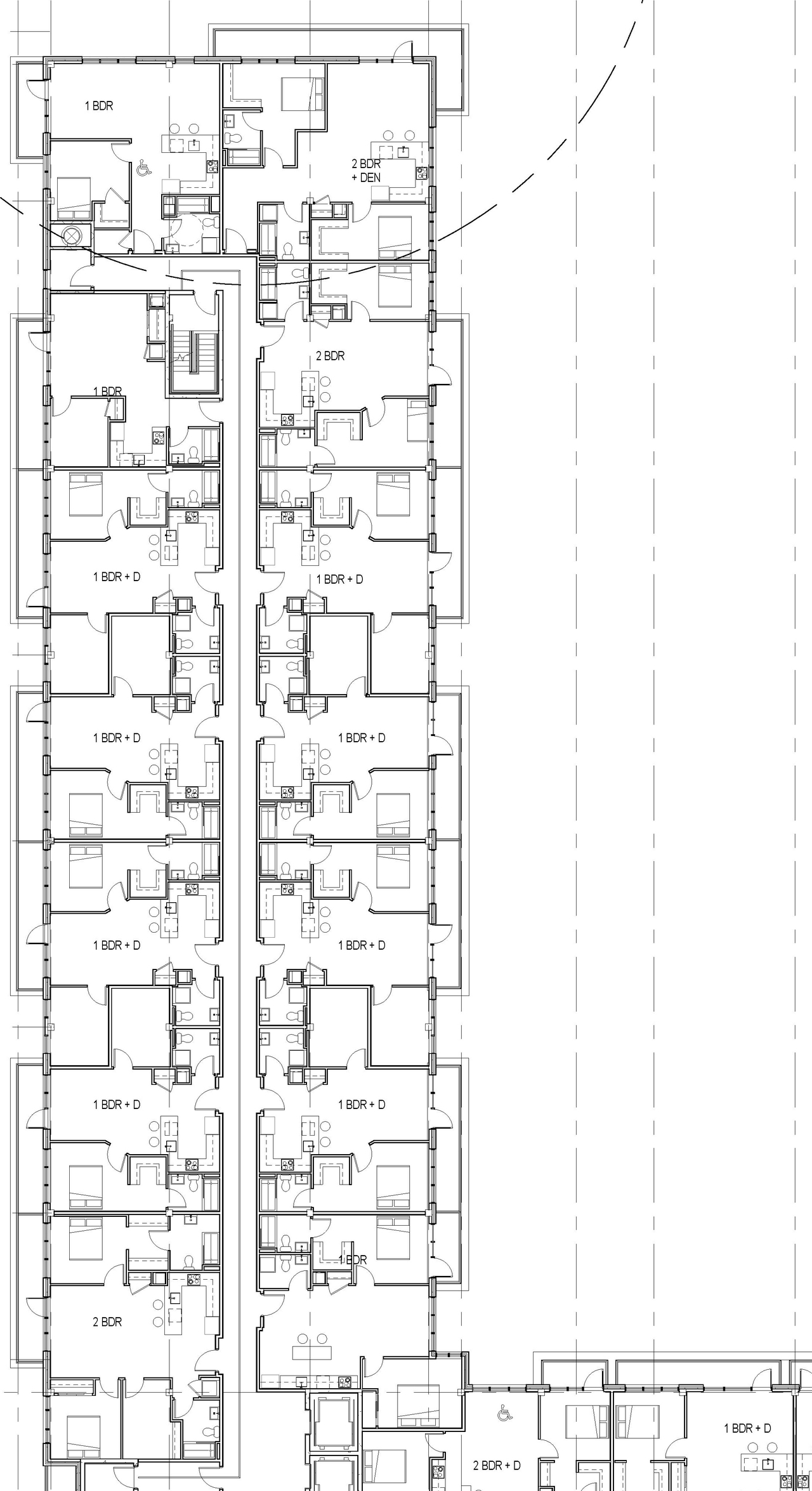
Site Plans, Elevations and Floor Plans#

  • Image from page 15 of the file '2020-06-29 - Ground Floor Plan A-100 - D07-12-19-0189'
  • Image from page 7 of the file '2021-09-15 - Floor Plans and Elevations and Renderings - D07-12-19-0189'
  • Image from page 16 of the file '2020-06-29 - Ground Floor Plan A-100 - D07-12-19-0189'
  • Image from page 17 of the file '2021-09-15 - Floor Plans and Elevations and Renderings - D07-12-19-0189'
  • Image from page 8 of the file '2021-09-15 - Floor Plans and Elevations and Renderings - D07-12-19-0189'
  • Construction site plan for project from page 1 of the file '2021-09-15 - Floor Plans and Elevations and Renderings - D07-12-19-0189'
  • Construction site plan for project from page 2 of the file '2021-09-15 - Floor Plans and Elevations and Renderings - D07-12-19-0189'
  • Construction site plan for project from page 1 of the file '2020-06-29 - Ground Floor Plan A-100 - D07-12-19-0189'
  • Construction site plan for project from page 8 of the file '2020-06-29 - Ground Floor Plan A-100 - D07-12-19-0189'
  • Construction site plan for project from page 5 of the file '2021-09-15 - Floor Plans and Elevations and Renderings - D07-12-19-0189'
  • Construction site plan for project from page 4 of the file '2021-09-15 - Floor Plans and Elevations and Renderings - D07-12-19-0189'
  • Construction site plan for project from page 9 of the file '2021-09-15 - Floor Plans and Elevations and Renderings - D07-12-19-0189'
  • Construction site plan for project from page 4 of the file '2020-06-29 - Ground Floor Plan A-100 - D07-12-19-0189'
  • Construction site plan for project from page 5 of the file '2020-06-29 - Ground Floor Plan A-100 - D07-12-19-0189'
  • Construction site plan for project from page 2 of the file '2020-06-29 - Ground Floor Plan A-100 - D07-12-19-0189'
  • Construction site plan for project from page 4 of the file '2020-06-29 - Ground Floor Plan A-100 - D07-12-19-0189'
  • Construction site plan for project from page 3 of the file '2020-06-29 - Ground Floor Plan A-100 - D07-12-19-0189'
  • Construction site plan for project from page 17 of the file '2020-06-29 - Ground Floor Plan A-100 - D07-12-19-0189'
  • Construction site plan for project from page 14 of the file '2020-06-29 - Ground Floor Plan A-100 - D07-12-19-0189'
  • Floor plan for project from page 15 of the file '2021-09-15 - Floor Plans and Elevations and Renderings - D07-12-19-0189'
  • Floor plan for project from page 13 of the file '2021-09-15 - Floor Plans and Elevations and Renderings - D07-12-19-0189'
  • Floor plan for project from page 3 of the file '2021-09-15 - Floor Plans and Elevations and Renderings - D07-12-19-0189'
  • Floor plan for project from page 7 of the file '2021-09-15 - Floor Plans and Elevations and Renderings - D07-12-19-0189'
  • Floor plan for project from page 14 of the file '2021-09-15 - Floor Plans and Elevations and Renderings - D07-12-19-0189'
  • Image from page 15 of the file '2020-06-29 - Ground Floor Plan A-100 - D07-12-19-0189'
  • Image from page 7 of the file '2021-09-15 - Floor Plans and Elevations and Renderings - D07-12-19-0189'
  • Image from page 16 of the file '2020-06-29 - Ground Floor Plan A-100 - D07-12-19-0189'
  • Image from page 17 of the file '2021-09-15 - Floor Plans and Elevations and Renderings - D07-12-19-0189'
  • Image from page 8 of the file '2021-09-15 - Floor Plans and Elevations and Renderings - D07-12-19-0189'
  • Construction site plan for project from page 1 of the file '2021-09-15 - Floor Plans and Elevations and Renderings - D07-12-19-0189'
  • Construction site plan for project from page 2 of the file '2021-09-15 - Floor Plans and Elevations and Renderings - D07-12-19-0189'
  • Construction site plan for project from page 1 of the file '2020-06-29 - Ground Floor Plan A-100 - D07-12-19-0189'
  • Construction site plan for project from page 8 of the file '2020-06-29 - Ground Floor Plan A-100 - D07-12-19-0189'
  • Construction site plan for project from page 5 of the file '2021-09-15 - Floor Plans and Elevations and Renderings - D07-12-19-0189'
  • Construction site plan for project from page 4 of the file '2021-09-15 - Floor Plans and Elevations and Renderings - D07-12-19-0189'
  • Construction site plan for project from page 9 of the file '2021-09-15 - Floor Plans and Elevations and Renderings - D07-12-19-0189'
  • Construction site plan for project from page 4 of the file '2020-06-29 - Ground Floor Plan A-100 - D07-12-19-0189'
  • Construction site plan for project from page 5 of the file '2020-06-29 - Ground Floor Plan A-100 - D07-12-19-0189'
  • Construction site plan for project from page 2 of the file '2020-06-29 - Ground Floor Plan A-100 - D07-12-19-0189'
  • Construction site plan for project from page 4 of the file '2020-06-29 - Ground Floor Plan A-100 - D07-12-19-0189'
  • Construction site plan for project from page 3 of the file '2020-06-29 - Ground Floor Plan A-100 - D07-12-19-0189'
  • Construction site plan for project from page 17 of the file '2020-06-29 - Ground Floor Plan A-100 - D07-12-19-0189'
  • Construction site plan for project from page 14 of the file '2020-06-29 - Ground Floor Plan A-100 - D07-12-19-0189'
  • Floor plan for project from page 15 of the file '2021-09-15 - Floor Plans and Elevations and Renderings - D07-12-19-0189'
  • Floor plan for project from page 13 of the file '2021-09-15 - Floor Plans and Elevations and Renderings - D07-12-19-0189'
  • Floor plan for project from page 3 of the file '2021-09-15 - Floor Plans and Elevations and Renderings - D07-12-19-0189'
  • Floor plan for project from page 7 of the file '2021-09-15 - Floor Plans and Elevations and Renderings - D07-12-19-0189'
  • Floor plan for project from page 14 of the file '2021-09-15 - Floor Plans and Elevations and Renderings - D07-12-19-0189'

Additional Information#

Date Initiated2019-11-19
WardWard 6 - Glen Gower
All Addresses16 Cedarow Ct.
20 Cedarow Ct.

Documents#

TypeDocument
Archaelogical Assessment2022-11-28 - Approved Stage 2 Archaeological Assessment - D07-12-19-0189
Archaelogical Assessment2020-06-29 - Stage 2 Archaeological Assessment - D07-12-19-0189
Architectural Plans2022-11-28 - Approved Site Plan - D07-12-19-0189
Architectural Plans2022-11-28 - Approved Sanitary Drainage Plan - D07-12-19-0189
Architectural Plans2022-11-28 - Approved Notes and Legend Plan - D07-12-19-0189
Architectural Plans2022-11-28 - Approved Building Elevations A202 - D07-12-19-0189
Architectural Plans2022-11-28 - Approved Building Elevations A201 - D07-12-19-0189
Architectural Plans2022-09-02 - Site Plan - D07-12-19-0189
Architectural Plans2022-07-19 - Sanitary Drainage Plan - D07-12-19-0189
Architectural Plans2022-07-19 - Notes and Legend Plan - D07-12-19-0189
Architectural Plans2022-04-08 - Tank Dimensions Plans - D07-12-19-0189
Architectural Plans2022-04-08 - Site Plan - D07-12-19-0189
Architectural Plans2022-04-08 - Sanitary Drainage Plan - D07-12-19-0189
Architectural Plans2022-04-08 - Notes & Legend Plan - D07-12-19-0189
Architectural Plans2021-09-15 - Sanitary Drainage Plan - D07-12-19-0189
Architectural Plans2020-06-29 - Site Plan SP-100 - D07-12-19-0189
Architectural Plans2020-06-29 - Landscap Plan L1-01- D07-12-19-0189
Design Brief2020-06-29 - Design Brief- D07-12-19-0189
Environmental2023-02-21 - Phase One Environmental Site Assessment - D07-12-19-0189
Environmental2022-11-28 - Approved Phase I Environmental Site Assessment - D07-12-19-0189
Environmental2022-11-28 - Approved Environmental Impact Study - D07-12-19-0189
Environmental2022-04-08 - Environmental Impact Study - D07-12-19-0189
Environmental2020-06-29 - Phase I Environmental Site Assessment - D07-12-19-0189
Environmental2020-06-29 - Environmental Impact Study - D07-12-19-0189
Erosion And Sediment Control Plan2022-11-28 - Approved Erosion Control Plan & Detail Sheet - D07-12-19-0189
Erosion And Sediment Control Plan2022-07-19 - Erosion Control Plan and Detail Sheet - D07-12-19-0189
Erosion And Sediment Control Plan2022-04-08 - Erosion Control Plan & Detail Sheet - D07-12-19-0189
Erosion And Sediment Control Plan2021-09-15 - Erosion Control Plan and Detail Sheet - D07-12-19-0189
Erosion And Sediment Control Plan2021-09-15 - Erosion Control and Detail Sheet - D07-12-19-0189
Floor Plan2020-06-29 - Ground Floor Plan A-100 - D07-12-19-0189
Geotechnical Report2022-11-28 - Approved Grading Plan - D07-12-19-0189
Geotechnical Report2022-11-28 - Approved Geotechnical Investigation - D07-12-19-0189
Geotechnical Report2022-07-19 - Grading Plan - D07-12-19-0189
Geotechnical Report2022-04-08 - Grading Plan - D07-12-19-0189
Geotechnical Report2021-09-15 - Grading Plan - D07-12-19-0189
Geotechnical Report2020-06-29 - Geotechnical Investigation - D07-12-19-0189
Landscape Plan2022-11-28 - Approved Landscape Plan - D07-12-19-0189
Landscape Plan2022-11-28 - Approved Landscape Details - D07-12-19-0189
Landscape Plan2022-04-08 - Landscape Drawings - D07-12-19-0189
Landscape Plan2021-09-15 - Landscape Plan - D07-12-19-0189
Noise Study2022-11-28 - Approved Noise Study - D07-12-19-0189
Noise Study2020-06-29 - Noise Study - D07-12-19-0189
Rendering2021-09-15 - Floor Plans and Elevations and Renderings - D07-12-19-0189
Site Servicing2022-11-28 - Approved Site Servicing Plan SSP-1 - D07-12-19-0189
Site Servicing2022-11-28 - Approved Site Servicing Plan Ex-1 - D07-12-19-0189
Site Servicing2022-11-28 - Approved Servicing & Stormwater Management Brief - D07-12-19-0189
Site Servicing2022-07-19 - Site Servicing Plan SSP-1 - D07-12-19-0189
Site Servicing2022-07-19 - Site Servicing Plan EX-1 - D07-12-19-0189
Site Servicing2022-07-19 - Servicing and Stormwater Management Brief - D07-12-19-0189
Site Servicing2022-04-08 - Site Servicing Plan (2) - D07-12-19-0189
Site Servicing2022-04-08 - Site Servicing Plan - D07-12-19-0189
Site Servicing2022-04-08 - Servicing & Stormwater Management Brief - D07-12-19-01891
Site Servicing2022-04-08 - Servicing & Stormwater Management Brief - D07-12-19-0189
Site Servicing2021-09-15 - Site Servicing Plan - D07-12-19-0189
Site Servicing2021-09-15 - Site Servicing - D07-12-19-0189
Site Servicing2020-06-29 - Site Servicing Plan SSP-1 - D07-12-19-0189
Site Servicing2020-06-29 - Site Servicing Plan EX-1 - D07-12-19-0189
Site Servicing2020-06-29 - Servicing and Stormwater Management Brief Appendix A - D07-12-19-0189
Site Servicing2020-06-29 - Servicing and Stormwater Management Brief - D07-12-19-0189
Stormwater Management2022-11-28 - Approved Storm Drainage Plan - D07-12-19-0189
Stormwater Management2022-07-19 - Storm Drainage Plan - D07-12-19-0189
Stormwater Management2022-04-08 - Storm Drainage Plan - D07-12-19-0189
Stormwater Management2022-04-08 - Storm Drainage Plan - D07-12-19-0189
Stormwater Management2021-09-15 - Storm Drainage Plan - D07-12-19-0189
Surveying2023-02-21 - Topographical Sketch - D07-12-19-0189
Surveying2023-02-21 - Topographic Plan of Survey - D07-12-19-0189
Transportation Analysis2022-11-28 - Approved Phase 2 Transportation Impact Assessment - D07-12-19-0189
Transportation Analysis2020-06-29 - Phase 2 Transportation Impact Assessment - D07-12-19-0189
Tree Information and Conservation2022-11-28 - Approved Tree Conservation Report - D07-12-19-0189
Tree Information and Conservation2021-09-15 - Tree Conservation Report - D07-12-19-0189
Tree Information and Conservation2020-06-29 - Tree Conservation Report - D07-12-19-0189
2022-11-28 - Signed Delegated Authority Report - D07-12-19-0189
2022-11-28 - Approved Retaining Wall Design - D07-12-19-0189
2022-11-28 - Approved Butternut Services Technical Memorandum - D07-12-19-0189
2022-07-19 - Underground Storage Tank - Buoyancy Review - D07-12-19-0189
2022-07-19 - Storage Tank Shop Drawing - R1 - D07-12-19-0189
2022-07-19 - Flow Control Roof Drainage Declaration - D07-12-19-0189
2022-04-08 - Retaining Wall Design - D07-12-19-0189
2021-11-08 Updated EIS 16-20 Cedarow
2021-09-15 - Notes and Legends - D07-12-19-0189
2020-06-29 - SD-1 - D07-12-19-0189
2020-06-29 - SA-1 - D07-12-19-0189
2020-06-29 - NL - D07-12-19-0189
2020-06-29 - GP-1 - D07-12-19-0189
2020-06-29 - ECDS-1 - D07-12-19-0189